1.1 plan:
Het bestemmingsplan Achter Zuideinde 95, Roelofarendsveen met identificatienummer NL.IMRO.1884.BPACHTERZUID95-ONT1 van de Gemeente Kaag en Braassem.
1.2 bestemmingsplan:
de geometrisch bepaalde planobjecten met de bijbehorende regels en de daarbij behorende bijlagen;
1.3 aan huis verbonden beroep:
de uitoefening van een beroep op administratief, juridisch, medisch, therapeutisch, kunstzinnig, ontwerptechnisch of hiermee gelijk te stellen gebied in een woning of bijgebouw, waarbij de woning overwegende mate haar woonfunctie behoudt en dat een ruimtelijke uitwerking of uitstraling die met de woonfunctie in overeenstemming is;
1.4 aanduiding:
een geometrisch bepaald vlak of figuur, waarmee gronden zijn aangeduid, waar ingevolge de regels worden gesteld ten aanzien van het gebruik en/of het bebouwen van deze gronden;
1.5 aanduidingsgrens:
de grens van een aanduiding indien het een vlak betreft;
1.6 achtererfgebied:
erf aan de achterkant en de niet naar openbaar toegankelijk gebied gekeerde zijkant, op meer dan 1,0 m van de voorkant van het hoofdgebouw;
1.7 afhankelijke woonruimte:
een onderdeel van het hoofdgebouw of bijbehorend bouwwerk dat qua ligging een ruimtelijke eenheid vormt met de woning en waarin een gedeelte van de huishouding uit een oogpunt van mantelzorg gehuisvest is;
1.8 antenne-installatie:
installatie bestaande uit een antenne, een antennedrager, de bedrading en de al dan niet in een techniekkast opgenomen apparatuur, met de daarbij behorende bevestigingsconstructie;
1.9 bebouwing:
één of meer gebouwen en/of bouwwerken, geen gebouwen zijnde;
1.10 bebouwingspercentage:
de gezamenlijke oppervlakte van gebouwen op een bouwperceel, in procenten van de oppervlakte van dat bouwperceel;
1.11 bed & breakfast:
de verzameling van voor publiek toegankelijke, besloten ruimtes waarin al dan niet bedrijfsmatig logies wordt verstrekt en in directe relatie daarmee ontbijt wordt aangeboden als nevenfunctie van de bestaande geldende bestemming;
1.12 bedrijf aan huis:
een bedrijf of het bedrijfsmatig verlenen van diensten c.q. het uitoefenen van ambachtelijke bedrijvigheid, geheel of overwegend door middel van handwerk, waaronder een kappersbedrijf, dat door de gebruiker van een woning in die woning of een bijbehorend bouwwerk wordt uitgeoefend, waarbij de woning in hoofdzaak de woonfunctie behoudt en dat een ruimtelijke uitwerking of uitstraling heeft die met de woonfunctie in overeenstemming is. Detailhandel valt hier niet onder;
1.13 bedrijfsmatige activiteiten:
handelingen voor de uitoefening van enig bedrijf of beroep;
1.14 bestaand:
- bestaande gebruik: het op het tijdstip van het in werking treden van het plan legaal aanwezige en/of vergunde gebruik;
- bestaande afstands-, hoogte-, inhouds- en oppervlaktematen: legale afstands-, hoogte-, inhouds- en oppervlaktematen die op het tijdstip van in werking treden van het plan tot stand zijn gekomen of tot stand zullen komen met inachtneming van het bepaalde bij of krachtens de Wet algemene bepalingen omgevingsrecht;
- bestaande bouwwerken: bouwwerken die op het tijdstip van de ter inzage legging van het ontwerp van dit bestemmingsplan zijn of (mogen) worden gebouwd krachtens een rechtsgeldig verleende omgevingsvergunning voor het bouwen dan wel een bouwvergunning;
1.15 bestemmingsgrens:
de grens van een bestemmingsvlak;
1.16 bestemmingsvlak:
een geometrisch bepaald vlak met eenzelfde bestemming; indien en voor zover twee bestemmingsvlakken middels de figuur 'relatie' met elkaar zijn verbonden worden deze aangemerkt als één bestemmingsvlak;
1.17 bijbehorende bouwwerken:
hieronder worden begrepen:
- aanbouw/uitbouw: een aan een hoofgebouw aangebouwd gebouw dat functioneel met een zich op hetzelfde perceel bevindend hoofdgebouw is verbonden en door zijn verschijningsvorm een ondergeschikte bouwmassa vormt;
- bijgebouw: een vrijstaand gebouw dat door de vorm onderscheiden kan worden van het hoofdgebouw en dat in architectonisch en functioneel opzicht ondergeschikt is aan het hoofdgebouw;
1.18 bouwen:
het plaatsen, het geheel of gedeeltelijk oprichten, vernieuwen of veranderen en het vergroten van een bouwwerk, alsmede het geheel of gedeeltelijk oprichten, vernieuwen of veranderen van een standplaats;
1.19 bouwgrens:
de grens van een bouwvlak;
1.20 bouwlaag:
een boven het peil gelegen en doorlopend gedeelte van een gebouw, dat door op gelijke of bij benadering gelijke hoogte liggende vloeren of balklagen binnenwerks is begrensd, zulks met inbegrip van de begane grond en met uitsluiting van onderbouw en ruimte onder de kap;
1.21 bouwperceel:
een aaneengesloten stuk grond, waarop ingevolge de regels een zelfstandige, bij elkaar behorende bebouwing is toegelaten. Bij woningen betreft dit het gehele perceel inclusief voor- en zijtuinen;
1.22 bouwvlak:
een geometrisch bepaald vlak, waarmee gronden zijn aangeduid, waar ingevolge de regels bepaalde gebouwen en bouwwerken geen gebouwen zijnde zijn toegelaten; indien en voor zover twee bouwvlakken middels de figuur 'relatie' met elkaar zijn verbonden worden deze aangemerkt als één bouwvlak;
1.23 bouwwerk:
elke constructie van enige omvang van hout, steen, metaal of ander materiaal, die hetzij direct hetzij indirect met de grond is verbonden, hetzij direct of indirect steun vindt in of op de grond;
1.24 dagrecreatie:
activiteiten gericht op ontspanning in de vrije tijd zoals sport en spel, natuurbeleving, amusement en uitstapjes, die uitsluitend plaatsvinden binnen een tijdsbestek van een dag, zonder overnachting en waartoe tevens kleinschalige horeca-activiteiten worden gerekend;
1.25 dakterras:
Terras gesitueerd op het hoofdgebouw of bijbehorende bouwwerk. Het is geen onderschikt bouwdeel;
1.26 detailhandel:
het bedrijfsmatig te koop aanbieden (waaronder de uitstalling ten verkoop), verkopen, verhuren en leveren van goederen aan personen die goederen kopen of huren voor gebruik, verbruik of aanwending anders dan in de uitoefening van een beroep of bedrijf;
1.27 gebouw:
elk bouwwerk, dat een voor mensen toegankelijke, overdekte, geheel of gedeeltelijk met wanden omsloten ruimte vormt;
1.28 hoofdgebouw:
een gebouw of gedeelte daarvan, dat noodzakelijk is voor de verwezenlijking van de geldende of toekomstige bestemming van een perceel en, indien meer gebouwen op het perceel aanwezig zijn, gelet op die bestemming het belangrijkst is;
1.29 horeca:
een bedrijf gericht op het verstrekken van al dan niet ter plaatse bereide en al dan niet ter plaatse te nuttigen dranken en/of etenswaren en/of het verstrekken van logies en/of het exploiteren van zaalaccommodaties;
1.30 kampeermiddelen:
niet als een bouwwerk aan te merken vouwwagens, kampeerauto's, caravans of hiermee gelijk te stellen onderkomens, die bestemd zijn voor recreatief verblijf en waarbij de gebruikers hun hoofdverblijf elders hebben. Onder een kampeermiddel wordt geen stacaravan begrepen;
1.31 lengte, breedte en diepte van een steiger
| Lengte | De diepte gemeten parallel of evenwijdig aan de oever van het water, zoals hieronder weergegeven; |
| Breedte | De diepte gemeten parallel of evenwijdig aan de oever van het water, zoals hieronder weergegeven; |
| Diepte | De diepte, gemeten loodrecht op de oever tussen de boveninsteek van het water en het deel van de steiger dat daar het verst gelegen is, zoals hieronder weergegeven; |
1.32 mantelzorg:
het bieden van zorg aan eenieder die hulpbehoevend is op het fysieke, psychische en/of sociale vlak, op vrijwillige basis en buiten organisatorische verband;
1.33 ondergronds bouwwerk:
een gedeelte van een bouwwerk, waarvan de bovenkant van de vloer is gelegen beneden maaiveld;
1.34 overkapping:
een bouwwerk, geen gebouw zijnde, voorzien van een (overwegend) gesloten dak;
1.35 peil:
- ten opzichte van gebouwen, waarvan de hoofdtoegang onmiddellijk aan een weg grenst: de hoogte van die weg ter plaatse van de hoofdingang;
- in andere gevallen: de gemiddelde hoogte van het aansluitende afgewerkte terrein;
1.36 perceelsgrens:
| algemeen | grens van een perceel |
| voor | de grens van een perceel gelegen aan de zijde van de voorgevel van de woning |
| zij | de grens tussen twee percelen, die voor- en achterzijde van een perceel verbindt |
| achter | de van de weg afgekeerde grens van een perceel |
|
indien meerdere zijden van het perceel van de weg afgekeerd zijn, wijzen burgemeester en wethouders een achterste perceelsgrens aan;
1.37 seksinrichting:
een voor het publiek toegankelijke besloten ruimte waarin bedrijfsmatig, of in een omvang als zij het bedrijfsmatig, seksuele handelingen worden verricht of vertoningen van erotische- of pornografische aard plaatsvinden. Hieronder wordt tevens verstaan een seksbioscoop, seksautomatenhal, sekstheater, parenclub, (raam)prostitutiebedrijf en een erotische massagesalon, al dan niet in combinatie met elkaar;
1.38 twee-aaneen gebouwde woning:
een woning die onderdeel uitmaakt van een blok van twee aaneengebouwde woningen;
1.39 verblijfsrecreatieve onderkomens:
onderkomens bedoeld voor tijdelijk recreatief verblijf van personen die elders hun hoofdverblijf hebben; hieronder vallen onder andere kampeermiddelen, stacaravans, chalets en recreatiewoningen. De verblijfsrecreatieve onderkomens worden onderverdeeld in de volgende categorieën:
- categorie 1: kampeermiddelen, geen gebouwen zijnde (bijv. tenten of caravans op seizoensplaatsen);
- categorie 2: verblijfsrecreatieve gebouwen tot 36 m² (bijv. stacaravans, trekkershutten);
- categorie 3: verblijfsrecreatieve gebouwen tot 60 m² (bijv. stacaravans, chalets, recreatiewoningen op daarvoor bestemde terreinen);
- categorie 4: verblijfsrecreatieve gebouwen tot 90 m² (bijv. vrijstaande recreatiewoningen).
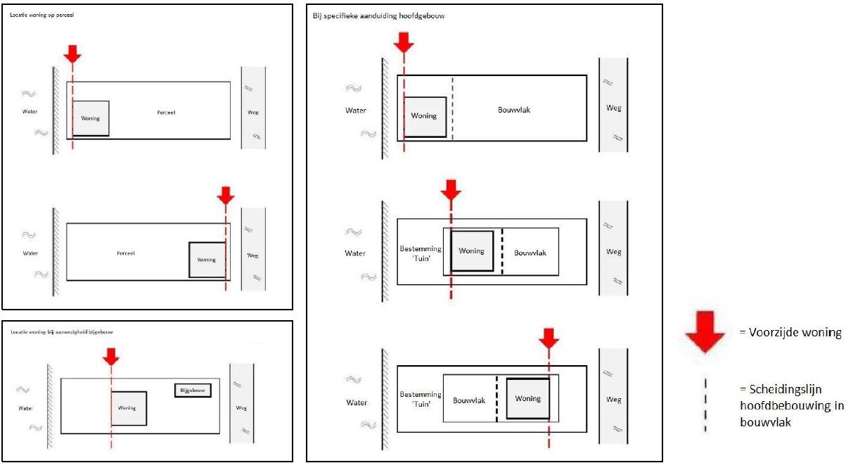
1.40 voorgevel:
tenzij anders op de verbeelding is aangegeven;

1.41 voorgevellijn:
een denkbeeldige, dan wel op de verbeelding middels de figuur gevellijn aangegeven, lijn die direct langs een voorgevel van een gebouw of in het verlengde ervan is gelegen;
1.42 voorzieningen van openbaar nut:
voorzieningen ten behoeve van het op het openbare net aangesloten nutsvoorziening, het telecommunicatieverkeer, het openbaar vervoer en/of het wegverkeer;
1.43 vrijstaande woning:
een woning die vrij staat van een andere woning;
1.44 woning:
een gebouw of gedeelte van een gebouw, geschikt en bestemd voor huisvesting van niet meer dan één huishouden;
1.45 zolder:
zolder onder een kap voor zover de hoogte van de borstwering ter plaatse van de omtrekmuren minder dan 80 cm boven de vloer is gelegen.
Artikel 2 Wijze van meten
Bij toepassing van deze planregels wordt als volgt gemeten:
2.1 De afstand tot de (zijdelingse) perceelgrens
De kortste afstand van enig punt van een gebouw tot de (zijdelingse) perceelsscheiding van het bouwperceel, met daarin geen onderscheid tussen bodem of water;
2.2 Afstand tussen gebouwen
De kortste afstand tussen de buitenwerkse gevelvlakken van de gebouwen zowel haaks als evenwijdig gepositioneerd;
2.3 De bouwhoogte van een bouwwerk, geen gebouwen zijnde
Bij bouwwerk op vlak maaiveld:
- tussen bovenkant van het bouwwerk (bij beweegbare delen te meten in de uiterste stand) en het peil.
Bij bouwwerken op talud of dijk:
- bovenkant van het bouwwerk (bij beweegbare delen te meten in de uiterste stand) en het gemiddelde maaiveldpeil van het aansluitend afgewerkt terrein.
2.4 Lengte, breedte en diepte van een bouwwerk
Tussen (de lijnen getrokken door) de buitenzijde van de gevels en/of hart van scheidsmuren, gemeten 1,0 m boven peil;
2.5 De bouwhoogte van een gebouw
Vanaf het peil tot aan het hoogste punt van een gebouw, met uitzondering van ondergeschikte bouwonderdelen, zoals schoorstenen, antennes en naar de aard daarmee gelijk te stellen bouwonderdelen;
2.6 Bebouwingspercentage
Een in de regels aangegeven percentage dat de grootte van het deel van een bouwperceel c.q. bouwvlak of bestemmingsvlak aangeeft dat maximaal mag worden gebouwd. Hierbij worden ondergrondse bouwwerken die zichtbaar zijn boven peil meegerekend, met uitzondering van ondergeschikte bouwdelen;
2.7 De goothoogte van een bouwwerk
Bij bouwwerk op vlak maaiveld:
- de bovenkant van de goot, c.q. de druiplijn, het boeibord, of een daarmee gelijk te stellen constructiedeel tot aan peil.
Bij bouwwerken op talud of dijk:
- de bovenkant van de goot, c.q. de druiplijn, het boeibord, of een daarmee gelijk te stellen constructiedeel tot het gemiddelde maaiveldpeil van het aansluitend afgewerkt terrein.
2.8 De oppervlakte van een gebouw
Tussen (de buitenste verticale projecties van) de buitenzijde van de gevels en/of het hart van de scheidingsmuren op 1,0 m boven peil;
2.9 De oppervlakte van een bouwwerk, geen gebouw zijnde
Tussen de buitenwerkse gevelvlakken en/of het hart van de scheidingsmuren geprojecteerd op het gemiddelde niveau van het afgewerkte bouwterrein ter plaatse van het bouwwerk, met inbegrip van de buitenste verticale projecties van overkappingen;
2.10 Vloeroppervlak van een gebouw
Gemeten (op alle bouwlagen) op vloerniveau langs de buitenomtrek van de opgaande scheidingsconstructies, of tot het hart van de desbetreffende scheidingsconstructie, indien de binnenruimte van het gebouw grenst aan de binnenruimte van een ander gebouw;
2.11 Inhoud van een gebouw
Boven peil tussen de bovenzijde van de begane grondvloer, buitenzijde van de gevels en/of het hart van de gemeenschappelijke scheidingsmuren en de buitenzijde van daken dit met inbegrip van aangebouwde bijgebouwen en dakkapellen;
2.12 De inhoud van een bouwwerk, geen gebouw zijnde
Tussen de onderzijde van de begane grondvloer, de buitenzijde aan de gevels en/of het hart van de gemeenschappelijke scheidingsmuren en de buitenzijde van daken en dakkapellen;
2.13 De dakhelling
Langs het dakvlak ten opzicht van het horizontale vlak.
3.1 Bestemmingsomschrijving
De op de verbeelding voor '
Tuin' aangewezen gronden zijn bestemd voor:
- tuinen bij de op de aangrenzende gronden gelegen hoofdgebouwen, met bijbehorende bouwwerken, geen gebouwen zijnde, niet zijnde een erf zoals bedoeld in artikel 1 Bijlage 2 van het Besluit omgevingsrecht (Bor);
- groenvoorzieningen;
- parkeervoorzieningen;
- insteekhavens;
met daaraan ondergeschikt:
- nutsvoorzieningen;
- waterlopen en waterpartijen.
3.2.1 Gebouwen
Voor het bouwen van gebouwen geldt de volgende bepaling:
- het bouwen van gebouwen is niet toegestaan.
3.2.2 Bouwwerken, geen gebouwen zijnde
De bouwhoogte van bouwwerken, geen gebouwen zijnde, bedraagt maximaal:
- erf- en terreinafscheidingen 1,0 m;
- overige bouwwerken, geen gebouwen zijnde 2,0 m.
3.2.3 Overkappingen
Voor het bouwen van overkappingen geldt de volgende bepaling:
- op deze gronden mogen geen overkappingen worden gebouwd.
3.3 Afwijken van de bouwregels
Burgemeester en wethouder kunnen met een omgevingsvergunning afwijken van het bepaalde in
artikel 3 lid 2.1 sub a ten einde aangebouwde bijbehorende bouwwerken (erkers) bij de aangrenzende gronden gelegen hoofdgebouwen toe te staan onder voorwaarde dat:
- de voorgevelbouwgrens van het hoofdgebouw met maximaal 1 meter mag worden overschreden;
- de breedte van de aangebouwde bijbehorende bouwwerken niet meer mag bedragen dan 2/3 van de breedte van de voorgevel van het oorspronkelijke hoofdgebouw.
4.1 Bestemmingsomschrijving
De op de verbeelding voor '
Wonen' aangewezen gronden zijn bestemd voor:
- wonen;
- de uitoefening van een aan huis verbonden beroep;
met daarbij behorende:
- tuinen en erven;
- parkeervoorzieningen;
met daaraan ondergeschikt:
- wegen, paden en bermen;
- waterlopen en waterpartijen;
- groenvoorzieningen;
- dakterassen.
4.2.1 Hoofdgebouwen
Voor het bouwen van hoofdgebouwen gelden de volgende bepalingen:
- hoofdgebouwen mogen uitsluitend binnen een bouwvlak worden gebouwd;
- hoofdgebouwen mogen zowel vrijstaand als twee-aan-een worden gebouwd;
- het aantal woningen bedraagt ter plaatse van de aanduiding 'maximum aantal wooneenheden' maximaal het aantal woningen dat is aangeduid;
- de goothoogte mag niet meer bedragen dan is aangegeven op de verbeelding;
- de bouwhoogte mag niet meer bedragen dan is aangegeven op de verbeelding.
4.2.2 Bijbehorende bouwwerken
Voor het bouwen van bijbehorende bouwwerken gelden de volgende bepalingen:
- bijbehorende bouwwerken worden uitsluitend gebouwd binnen het bouwvlak of op het achtererfgebied;
- niet meer dan 50% van het achtererfgebied mag worden bebouwd;
- bijbehorende bouwwerken dienen op een afstand van ten minste 3,0 m achter de voorgevellijn van het hoofdgebouw te worden gebouwd. Indien de bestaande afstand minder bedraagt dan 3,0 m, dan betreft de bestaande afstand de minimale afstand achter de voorgevellijn;
- de goothoogte van aangebouwde bijbehorende bouwwerken bedraagt ten hoogste de hoogte van de eerste bouwlaag van het hoofdgebouw vermeerderd met 0,25 m;
- de bouwhoogte van aangebouwde bijbehorende bouwwerken bedraagt ten hoogste de bouwhoogte van het hoofdgebouw van het hoofdgebouw minus 3,0 m, waarbij de bouwhoogte minimaal 3,0 m mag bedragen;
- de bouwhoogte van vrijstaande bijbehorende bouwwerken bedraagt ten hoogste 3,0 m;
- aanvullend aan het bepaalde in sub b bedraagt de maximale gezamenlijke oppervlakte aan bijbehorende bouwwerken en overkappingen:
| totale oppervlakte per bouwperceel | maximale gezamenlijke oppervlakte |
| tot 300 m² | 50 m² |
| van 300 tot 500 m² | 70 m² |
| van 500 tot 700 m² | 90 m² |
| van 700 tot 1000 m² | 130 m² |
| van 1000 tot 1500 m² | 170 m² |
| vanaf 1500 m² | 250 m² |
- in afwijking van het bepaalde onder a en b zijn aangebouwde bijbehorende bouwwerken (erkers) voor de voorgevel van de woning toegestaan mits:
- de voorgevelbouwgrens van het hoofdgebouw met maximaal 1,0 m wordt overschreden;
- de breedte van de aangebouwde bijbehorende bouwwerken niet meer bedraagt dan 2/3 van de breedte van het hoofdgebouw.
- in afwijking van het bepaalde onder e is een balustrade op bijbehorende bouwwerken toegestaan mits:
- de hoogte van een balustrade voor een dakterras op bijbehorende bouwwerken met maximaal 1,5 m wordt overschreden.
4.2.3 Bouwwerken, geen gebouwen zijnde
Voor het bouwen van bouwwerken, geen gebouwen zijnde gelden de volgende bepalingen:
- de bouwhoogte van erf- en terreinafscheidingen mag maximaal 2,0 m bedragen, met dien verstande dat de hoogte voor erf- en terreinafscheidingen voor zover gelegen voor de voorgevellijn maximaal 1,0 m mag bedragen;
- de bouwhoogte van overige bouwwerken, geen gebouwen zijnde, mag niet meer dan 2,5 m bedragen.
4.2.4 Overkappingen
Voor het bouwen van overkappingen gelden de volgende bepalingen:
- overkappingen mogen, achter de voorgevellijn, zowel binnen als buiten het bouwvlak worden gebouwd;
- de maximale bouwhoogte van een overkapping bedraagt 3,0 m.
4.3 Specifieke gebruiksregels
4.3.1 Algemeen
Tot een strijdig gebruik van gronden en bouwwerken, wordt in elk geval gerekend het gebruik voor:
- permanente of tijdelijke bewoning, voor zover het vrijstaande bijbehorende bouwwerken betreft;
- bewoning als afhankelijke woonruimte.
4.3.2 Aan-huis-verbonden-beroep
Gebruik van ruimten binnen de woning ten behoeve van de uitoefening van aan huis verbonden beroep wordt als gebruik overeenkomstig de bestemming aangemerkt voor zover dit gebruik ondergeschikt blijft aan de woonfunctie en mits voldaan wordt aan de volgende voorwaarden:
- ten hoogste 40% van het vloeroppervlak van de woning tot ten hoogste 30 m² wordt gebruikt voor het aan-huis-verbonden beroep;
- degene die het aan-huis-verbonden beroep in de woning uitoefent, dient tevens de bewoner van de woning te zijn;
- door degene die het aan-huis-verbonden beroep uitoefent, kan worden aangetoond dat de uitoefening van het beroep geen extra parkeerruimte vereist binnen het openbaar gebied;
- voorzien is in voldoende parkeergelegenheid op eigen terrein;
- er mag geen detailhandel, groothandel of horeca plaatsvinden.
4.4 Afwijken van de gebruiksregels
4.4.1 Omgevingsvergunning bedrijf aan huis
Burgemeester en wethouders kunnen met een omgevingsvergunning afwijken van het bepaalde in
artikel 4 lid 1 sub b voor het gebruik van ruimten binnen de woning en op het erf voor aan-huis-verbonden (bedrijfs)activiteiten, voor zover dit gebruik ondergeschikt blijft aan de woonfunctie en mits voldaan wordt aan de volgende voorwaarden:
- ten hoogste 40% van het vloeroppervlak van – bij elkaar geteld – de woning en de bijgebouwen, tot ten hoogste 50 m², mag worden gebruikt voor het aan- huis-verbonden bedrijf;
- degene die de activiteiten in de woning of het bijgebouw zal uitvoeren, dient tevens de bewoner van de woning te zijn;
- de noodzakelijke parkeervoorzieningen dienen op eigen terrein te worden gesitueerd;
- het bedrijf dient qua aard, milieubelasting en uitstraling te passen in een woonomgeving;
- voor de activiteit is geen omgevingsvergunning milieu benodigd;
- er mag geen detailhandel, groothandel of horeca plaatsvinden, uitgezonderd een beperkte verkoop als ondergeschikte activiteit in verband met de aan-huis-verbonden activiteit.
Artikel 5 Waarde - Archeologie 1
5.1 Bestemmingsomschrijving
De voor '
Waarde - Archeologie 1' aangewezen gronden zijn - behalve voor de andere aldaar voorkomende bestemming(en) - mede bestemd voor de bescherming en veiligstelling van archeologische waarden.
5.2 Bouwregels
Op deze gronden mag worden gebouwd en gelden de volgende regels:
- op deze gronden mogen ten behoeve van de in artikel 5 lid 1 genoemde bestemming uitsluitend bouwwerken, geen gebouwen zijnde, worden gebouwd met een bouwhoogte van ten hoogste 3 m;
ten behoeve van de andere, voor deze gronden geldende bestemming(en) mag - met inachtneming van de voor de betrokken bestemming(en) geldende (bouw)regels - uitsluitend worden gebouwd, indien:
- de aanvrager van de omgevingsvergunning voor het bouwen een rapport heeft overgelegd waarin de archeologische waarde van de betrokken locatie naar het oordeel van het bevoegd gezag in voldoende mate is vastgesteld;
- de betrokken archeologische waarden, gelet op dit rapport, door de bouwactiviteiten niet worden geschaad of mogelijke schade kan worden voorkomen door aan de omgevingsvergunning voor het bouwen voorschriften en beperkingen te verbinden, gericht op het behoud van de archeologische resten in de bodem, het doen van opgravingen dan wel het begeleiden van de bouwactiviteiten door een archeologische deskundige;
het bepaalde in dit lid onder b1 en b2 is niet van toepassing, indien het bouwplan betrekking heeft op één of meer van de volgende activiteiten of bouwwerken:
- vervanging, vernieuwing of verandering van bestaande bebouwing, waarbij de oppervlakte, voor zover gelegen op of onder peil, niet wordt uitgebreid en waarbij gebruik wordt gemaakt van de bestaande fundering;
- een bouwplan met een oppervlakte van ten hoogste 150 m²;
- een bouwwerk dat zonder graafwerkzaamheden dieper dan 30 cm en zonder heiwerkzaamheden kan worden geplaatst.
5.3 Omgevingsvergunning voor het uitvoeren van werken, geen bouwwerk zijnde, of van werkzaamheden
5.3.1 Uitvoeringsverbod zonder omgevingsvergunning
Het is verboden op of in de gronden met de bestemming 'Waarde - Archeologie 1' zonder of in afwijking van een omgevingsvergunning de volgende werken, geen bouwwerk zijnde, of de volgende werkzaamheden uit te voeren:
- het uitvoeren van grondbewerkingen op een grotere diepte of hoogte dan 30 cm, waartoe worden gerekend afgraven, woelen, mengen, diepploegen, egaliseren, ontginnen, ophogen en aanleggen van drainage;
- het uitvoeren van heiwerkzaamheden of het op een of ander wijze indrijven van voorwerpen;
- het verlagen of verhogen van het waterpeil;
- het aanleggen of rooien van bos of boomgaard waarbij stobben worden verwijderd;
- het aanleggen van ondergrondse kabels en leidingen en het aanbrengen van daarmee verband houdende constructies, installaties of apparatuur.
5.3.2 Uitzonderingen op het uitvoeringsverbod
Het verbod van
artikel 5 lid 3.1 is niet van toepassing, indien de werken en werkzaamheden:
- noodzakelijk zijn voor de uitvoering van een bouwplan waarbij artikel 5 lid 2 in acht is genomen, of;
- een oppervlakte beslaan van ten hoogste 150 m², of;
- reeds in uitvoering zijn op het tijdstip van de inwerkingtreding van het plan, of;
- ten dienste van archeologisch onderzoek worden uitgevoerd, of;
- alledaags gebruik van de gronden en ten behoeve van de primaire bestemming betreft.
5.3.3 Voorwaarden voor een omgevingsvergunning
De werken en werkzaamheden, zoals in
artikel 5 lid 3.1 bedoeld, zijn slechts toelaatbaar, indien de aanvrager van de omgevingsvergunning voor het uitvoeren van werken en werkzaamheden aan de hand van nader archeologisch onderzoek kan aantonen dat op de betrokken locatie geen archeologische waarden aanwezig zijn. Voorts zijn de werken en werkzaamheden toelaatbaar, indien:
- de aanvrager van de omgevingsvergunning voor het uitvoeren van werken en werkzaamheden een rapport heeft overgelegd waarin de archeologische waarde van de betrokken locatie naar het oordeel van het bevoegd gezag in voldoende mate is vastgesteld;
- de betrokken archeologische waarden, gelet op dit rapport, door de activiteiten niet worden geschaad of mogelijke schade kan worden voorkomen door aan de omgevingsvergunning voor het uitvoeren van werken en werkzaamheden voorschriften en beperkingen te verbinden, gericht op het behoud van de archeologische resten in de bodem, het doen van opgravingen dan wel het begeleiden van de bouwactiviteiten door een archeologische deskundige.
5.4 Wijzigingsbevoegdheid
Burgemeester en wethouders zijn bevoegd het bestemmingsplan te wijzigen door een of meer bestemmingsvlakken met de dubbelbestemming 'Waarde - Archeologie 1' geheel of gedeeltelijk van de verbeelding te verwijderen indien het op grond van nader archeologisch onderzoek niet meer noodzakelijk wordt geacht dat het bestemmingplan ter plaatse in bescherming en veiligstelling van archeologische waarden voorziet.
Artikel 6 Waarde - Archeologie 3
6.1 Bestemmingsomschrijving
De voor '
Waarde - Archeologie 3' aangewezen gronden zijn - behalve voor de andere aldaar voorkomende bestemming(en) - mede bestemd voor de bescherming en veiligstelling van archeologische waarden.
6.2 Bouwregels
Op deze gronden mag worden gebouwd en gelden de volgende regels:
- op deze gronden mogen ten behoeve van de in artikel 6 lid 1 genoemde bestemming uitsluitend bouwwerken, geen gebouwen zijnde, worden gebouwd met een bouwhoogte van ten hoogste 3 m;
ten behoeve van de andere, voor deze gronden geldende bestemming(en) mag - met inachtneming van de voor de betrokken bestemming(en) geldende (bouw)regels - uitsluitend worden gebouwd, indien:
- de aanvrager van de omgevingsvergunning voor het bouwen een rapport heeft overgelegd waarin de archeologische waarde van de betrokken locatie naar het oordeel van het bevoegd gezag in voldoende mate is vastgesteld;
- de betrokken archeologische waarden, gelet op dit rapport, door de bouwactiviteiten niet worden geschaad of mogelijke schade kan worden voorkomen door aan de omgevingsvergunning voor het bouwen voorschriften en beperkingen te verbinden, gericht op het behoud van de archeologische resten in de bodem, het doen van opgravingen dan wel het begeleiden van de bouwactiviteiten door een archeologische deskundige;
het bepaalde in dit lid onder b1 en b2 is niet van toepassing, indien het bouwplan betrekking heeft op één of meer van de volgende activiteiten of bouwwerken:
- vervanging, vernieuwing of verandering van bestaande bebouwing, waarbij de oppervlakte, voor zover gelegen op of onder peil, niet wordt uitgebreid en waarbij gebruik wordt gemaakt van de bestaande fundering;
- een bouwplan met een oppervlakte van ten hoogste 2500 m²;
- een bouwwerk dat zonder graafwerkzaamheden dieper dan 30 cm en zonder heiwerkzaamheden kan worden geplaatst.
6.3 Omgevingsvergunning voor het uitvoeren van werken, geen bouwwerk zijnde, of van werkzaamheden
6.3.1 Uitvoeringsverbod zonder omgevingsvergunning
Het is verboden op of in de gronden met de bestemming 'Waarde - Archeologie 3' zonder of in afwijking van een omgevingsvergunning de volgende werken, geen bouwwerk zijnde, of de volgende werkzaamheden uit te voeren:
- het uitvoeren van grondbewerkingen op een grotere diepte of hoogte dan 30 cm, waartoe worden gerekend afgraven, woelen, mengen, diepploegen, egaliseren, ontginnen, ophogen en aanleggen van drainage;
- het uitvoeren van heiwerkzaamheden of het op een of ander wijze indrijven van voorwerpen;
- het verlagen of verhogen van het waterpeil;
- het aanleggen of rooien van bos of boomgaard waarbij stobben worden verwijderd;
- het aanleggen van ondergrondse kabels en leidingen en het aanbrengen van daarmee verband houdende constructies, installaties of apparatuur.
6.3.2 Uitzonderingen op het uitvoeringsverbod
Het verbod van
artikel 6 lid 3.1 is niet van toepassing, indien de werken en werkzaamheden:
- noodzakelijk zijn voor de uitvoering van een bouwplan waarbij artikel 6 lid 2 acht is genomen, of;
- een oppervlakte beslaan van ten hoogste 2500 m², of;
- reeds in uitvoering zijn op het tijdstip van de inwerkingtreding van het plan, of;
- ten dienste van archeologisch onderzoek worden uitgevoerd, of;
- alledaags gebruik van de gronden en ten behoeve van de primaire bestemming betreft.
6.3.3 Voorwaarden voor een omgevingsvergunning
De werken en werkzaamheden, zoals in
artikel 6 lid 3.1 bedoeld, zijn slechts toelaatbaar, indien de aanvrager van de omgevingsvergunning voor het uitvoeren van werken en werkzaamheden aan de hand van nader archeologisch onderzoek kan aantonen dat op de betrokken locatie geen archeologische waarden aanwezig zijn. Voorts zijn de werken en werkzaamheden toelaatbaar, indien:
- de aanvrager van de omgevingsvergunning voor het uitvoeren van werken en werkzaamheden een rapport heeft overgelegd waarin de archeologische waarde van de betrokken locatie naar het oordeel van het bevoegd gezag in voldoende mate is vastgesteld;
- de betrokken archeologische waarden, gelet op dit rapport, door de activiteiten niet worden geschaad of mogelijke schade kan worden voorkomen door aan de omgevingsvergunning voor het uitvoeren van werken en werkzaamheden voorschriften en beperkingen te verbinden, gericht op het behoud van de archeologische resten in de bodem, het doen van opgravingen dan wel het begeleiden van de bouwactiviteiten door een archeologische deskundige.
6.4 Wijzigingsbevoegdheid
Burgemeester en wethouders zijn bevoegd het bestemmingsplan te wijzigen door een of meer bestemmingsvlakken met de dubbelbestemming 'Waarde - Archeologie 3' geheel of gedeeltelijk van de verbeelding te verwijderen indien het op grond van nader archeologisch onderzoek niet meer noodzakelijk wordt geacht dat het bestemmingplan ter plaatse in bescherming en veiligstelling van archeologische waarden voorziet.
Artikel 7 Waterstaat - Waterkering
7.1 Bestemmingsomschrijving
De op de verbeelding voor '
Waterstaat - Waterkering' aangewezen gronden zijn - behalve voor de andere aldaar voorkomende bestemming(en) - primair bestemd voor waterkeringen.
7.2.1 Dubbelbestemming
Op de gronden mogen ten behoeve van de bestemming, zoals in
artikel 7 lid 1 bedoeld, geen gebouwen of bouwwerken, geen gebouwen zijnde, worden gebouwd.
7.2.2 Primaire bestemming
Voor het bouwen op deze gronden ten behoeve van de andere voor deze gronden geldende bestemming(en) mag, met inachtneming van de voor de bestemming geldende (bouw)regels, uitsluitend worden gebouwd conform een schriftelijke toestemming danwel een watervergunning van het hoogheemraadschap van Rijnland.
7.3 Afwijken van de bouwregels
7.3.1 Ten behoeve van de genoemde bestemming
Het bevoegd gezag kan bij een omgevingsvergunning afwijken van
artikel 7 lid 2.1, voor de bouw van bouwwerken, geen gebouwen zijn, die noodzakelijk zijn in het kader van waterstaatsbelang.
7.4 Omgevingsvergunning voor het uitvoeren van werken, geen bouwwerk zijnde, of van werkzaamheden
7.4.1 Aanlegverbod zonder omgevingsvergunning
Het is verboden op of in gronden met de bestemming '
Waterstaat - Waterkering' zonder of in afwijking van een omgevingsvergunning de volgende werken, geen bouwwerken zijnde, aan te leggen of de volgende werkzaamheden uit te voeren ten behoeve van andere, voor deze gronden geldende bestemming(en):
- ontginnen, ophogen, afgraven, bodemverhogen, egaliseren;
- aanbrengen opgaande beplantingen;
- aanleg van verharde wandel-, fiets- en ruiterpaden en (half-)verhardingen >50 m² (niet zijnde kavelpaden);
- dempen, graven, vergroten of herprofileren van waterlopen.
7.4.2 Uitzonderingen op het aanlegverbod
Het verbod van
artikel 7 lid 4.1 is niet van toepassing, indien de werken en werkzaamheden:
- normaal onderhoud, beheer en gebruik overeenkomstig de bestemming betreffen;
- reeds in uitvoering zijn op het tijdstip van de inwerkingtreding van het plan;
- reeds mogen worden uitgevoerd krachtens een verleende vergunning.
7.4.3 Voorwaarden van een omgevingsvergunning
De werken of werkzaamheden als bedoeld in
artikel 7 lid 4.1 zijn slechts toelaatbaar, indien daardoor het waterkeringsbelang, zoals bedoeld in
artikel 7 lid 4.1 niet onevenredig wordt of kan worden aangetast; ter beoordeling dient de aanvrager hiertoe een schriftelijk advies van het hoogheemraadschap van Rijnland aan te leveren.
Artikel 8 Anti-dubbeltelregel
Grond die eenmaal in aanmerking is genomen bij het toestaan van een bouwplan waaraan uitvoering is gegeven of alsnog kan worden gegeven, blijft bij de beoordeling van latere bouwplannen buiten beschouwing.
Artikel 9 Algemene bouwregels
9.1 Algemeen
Voor het uitvoeren van ondergrondse werken, geen bouwwerken zijnde en werkzaamheden gelden, behoudens in deze regels opgenomen afwijkingen, geen beperkingen.
9.2 Ondergronds bouwen
Voor het bouwen van ondergrondse bouwwerken gelden, behoudens in deze regels opgenomen afwijkingen, de volgende bepalingen:
- ondergrondse bouwwerken zijn uitsluitend toegestaan binnen het bouwvlak;
- het oppervlak aan ondergrondse bouwwerken mag niet meer bedragen dan het toegestane oppervlak aan bouwwerken boven peil vermeerderd met 15 m²;
in aanvulling op het bepaalde sub 1 en 2 is maximaal 1 niet - overdekt zwembad toegestaan onder de volgende voorwaarden:
- het zwembad dient te worden gebouwd achter de achtergevel of het verlengde daarvan en op een afstand van ten minste 3,0 m van zijdelingse en achterste perceelsgrens;
- het zwembad mag niet overdekt zijn, tenzij de regeling voor bijbehorende bouwwerken als bedoeld in artikel 4 Bijlage 2 van het Besluit omgevingsrecht (Bor) in acht wordt genomen;
- het zwembad mag uitsluitend voor hobbymatig gebruik worden benut;
- per perceel mag maximaal 1 zwembad worden gebouwd;
- de ondergrondse bouwdiepte van ondergrondse bouwwerken bedraagt maximaal 4,0 m onder peil;
- bij het berekenen van de blijkens de deze regels geldende bebouwingspercentages, of van het in deze regels maximaal te bebouwen oppervlak, wordt de oppervlakte van ondergrondse gebouwen mede in aanmerking genomen.
Het bevoegd gezag kan door middel van een omgevingsvergunning afwijken van het bepaalde in
artikel 9 lid 2 sub a onder 4 voor het bouwen van ondergrondse bouwwerken met een ondergrondse bouwdiepte van maximaal 10,0 m onder peil onder de voorwaarde dat:
- de waterhuishouding niet wordt verstoord;
- geen afbreuk wordt gedaan aan archeologische waarden.
9.3 Ondergeschikte bouwdelen
- Bij de toepassing van het bepaalde ten aanzien van het bouwen worden ondergeschikte bouwdelen, als plinten, pilasters, kozijnen, gevelversieringen, ventilatiekanalen, schoorstenen, gevel- en kroonlijsten, luifels, uitbouwen en overstekende daken buiten beschouwing gelaten, mits de overschrijding van bouw-, c.q. bestemmingsgrenzen niet meer dan 1,5 m bedraagt;
Voor balkons gelden de volgende regels:
- de diepte van een balkon bedraagt maximaal 3 m, gemeten vanuit de gevel van het hoofdgebouw;
- de onderzijde van balkons zijn niet lager gelegen dan 2,90 m boven peil.
9.4 Bestaande afstanden en maten
- Indien afstanden tot, en bouwhoogten, inhoud, aantallen en/of oppervlakten van bestaande bouwwerken die gebouwd zijn met inachtneming van het bepaalde bij of krachtens de Woningwet, op het tijdstip van de terinzagelegging van het ontwerp van het plan meer bedragen dan ingevolge hoofdstuk II is voorgeschreven, mogen deze maten en hoeveelheden als maximaal toelaatbaar worden aangehouden.
- In die gevallen dat afstanden tot, en bouwhoogten, inhoud, aantallen en/of oppervlakten van bestaande bouwwerken, die gebouwd zijn met inachtneming van het bepaalde bij of krachtens de Woningwet, op het tijdstip van de terinzagelegging van het ontwerp van het plan minder bedragen dan ingevolge hoofdstuk II is voorgeschreven, mogen deze maten en hoeveelheden als minimaal toelaatbaar worden aangehouden.
- In het geval van (her)oprichting van gebouwen is het bepaalde in sub a en b uitsluitend van toepassing indien het geschiedt op dezelfde plaats.
Artikel 10 Algemene gebruiksregels
10.1 Strijdig gebruik
Tot een strijdig gebruik van gronden en bouwwerken, wordt in elk geval gerekend het gebruik voor:
- het opslaan van onbruikbare of althans aan hun oorspronkelijke gebruik onttrokken voorwerpen, goederen, stoffen en materialen en van emballage en/of afval, behoudens voor zover zulks noodzakelijk is in verband met het op de bestemming gerichte gebruik van de grond;
- het opslaan, opgeslagen houden, storten of lozen van vaste of vloeibare afvalstoffen behoudens voor zover zulks noodzakelijk is in verband met het op de bestemming gerichte gebruik van de grond;
- seksinrichtingen;
- permanente bewoning van een verblijfsrecreatieve onderkomen;
- zelfstandig gebruik van een bijbehorend bouwwerk als woning of als een verblijfsrecreatieve onderkomen;
- inrichtingen die vallen onder het Besluit externe veiligheid inrichtingen (Bevi);
- bewoning van hoofdgebouwen ten behoeve van meer woningen dan op grond van de bouwregels is toegestaan.
10.2 Voorwaardelijke verplichting Parkeren
Voordat de verschillende bestemmingen in gebruik genomen worden, dient er voldoende parkeergelegenheid aanwezig te zijn. Daarbij dient getoetst te worden aan de meest recente normen van de ‘Nota Parkeernomen 2018' of ander vigerend beleid. De parkeergelegenheid dient niet alleen tijdig gerealiseerd te worden, maar moet ook in stand gehouden worden.
Het bovenstaande is ook van toepassing bij gebruiksveranderingen van bestaande gebouwen, zonder dat een omgevingsvergunning nodig is voor de activiteit bouwen.
Artikel 11 Algemene afwijkingsregels
11.1 Algemeen
Het bevoegd gezag kan door middel van een omgevingsvergunning afwijken van:
- de bestemmingsbepalingen en toestaan dat het beloop of het profiel van wegen of de aansluiting van wegen onderling in geringe mate wordt aangepast, indien de verkeersveiligheid en/of -intensiteit daartoe aanleiding geeft;
- de bestemmingsbepalingen en toestaan dat bouwgrenzen worden overschreden, indien een meetverschil daartoe aanleiding geeft;
- de bestemmingsbepalingen en toestaan dat nutsgebouwtjes, kunstobjecten, wachthuisjes ten behoeve van het openbaar vervoer, telefooncellen, gebouwtjes ten behoeve van de bediening van kunstwerken, toiletgebouwtjes, en naar de aard daarmee gelijk te stellen gebouwtjes worden gebouwd, mits de inhoud per gebouwtje maximaal 50 m³ bedraagt en een maximale hoogte van 3,0 m heeft;
- de bestemmingsbepalingen ten aanzien van de bouwhoogte van bouwwerken, geen gebouwen zijnde, en toestaan dat de bouwhoogte van de bouwwerken, geen gebouwen zijnde, wordt vergroot tot maximaal 10,0 m;
de bestemmingsbepalingen ten aanzien van de hoogte van bouwwerken geen gebouwen zijnde, en toestaan dat de hoogte van bouwwerken, geen gebouwen zijnde, ten behoeve van kunstwerken, geen gebouwen zijnde, en ten behoeve van zend-, ontvang- en/of sirenemasten, wordt vergroot tot maximaal 40 m. Wat betreft zend- en ontvang- en/of sirenemasten gelden nog de volgende voorwaarden:
losse masten met hekwerken, gebouwtjes e.d. zijn alleen toegestaan:
- buiten de bebouwde kom en in landschappelijk minder gevoelige gebieden, langs grote verkeerswegen en dan bij voorkeur bij parkeerplaatsen, benzinestations, knooppunten, viaducten, bedrijventerreinen en horecagelegenheden;
- binnen de bebouwde kom uitsluitend op bedrijventerreinen en sportparken.
installaties op of aan een gebouw zijn alleen toegestaan:
- op hoge gebouwen (minimale hoogte 14,0 m); bij voorkeur op een plat dak en zo ver mogelijk van een dakrand, met dien verstande dat bijzondere en waardevolle gebouwen in beginsel geheel dienen te worden ontzien, zonodig in overleg met een door B&W aan te wijzen deskundige/commissie inzake monumenten of inzake beschermd dorpsgezicht;
- tegen gevels aan; wanneer de invloed van die installaties geen afbreuk doen aan de aanwezige kwaliteiten.
11.2 Bed & Breakfast
Het bevoegd gezag kan bij een omgevingsvergunning afwijken van het gestelde in hoofdstuk 2, ten behoeve van de realisatie van een bed & breakfast binnen bestaande bebouwing met dien verstande dat:
- het maximaal aantal kamers niet meer dan 5 bedraagt;
de uitvoerbaarheid van de omgevingsvergunning is gewaarborgd, in verband waarmee in elk geval aangetoond moet worden dat:
- voorzien wordt in voldoende parkeergelegenheid;
- geen onevenredige toename van de verkeersbewegingen optreedt, naar oordeel van een door het B&W daartoe aangewezen deskundige;
- geen onevenredige afbreuk wordt gedaan aan belangen van direct omwonenden;
- de gemeente gevrijwaard wordt van alle plankosten.
Artikel 12 Algemene wijzigingsregels
12.1 Algemeen
Burgemeester en wethouders zijn bevoegd de in het plan opgenomen bestemmingen te wijzigen ten behoeve van:
- overschrijding van bestemmingsgrenzen, voor zover dit van belang is voor een technisch betere realisering van bestemmingen of bouwwerken dan wel voor zover dit noodzakelijk is in verband met de werkelijke toestand van het terrein;
- overschrijding van bestemmingsgrenzen en toestaan dat het beloop van wegen of de aansluiting van wegen onderling in geringe mate wordt aangepast, indien de verkeersveiligheid en/of -intensiteit daartoe aanleiding geeft.
De overschrijdingen mogen echter niet meer dan 3,0 m bedragen en het bestemmingsvlak mag met niet meer dan 10% worden vergroot.
4 Overgangs- en slotregels
Artikel 13 Overgangsrecht
13.1 Overgangsrecht bouwwerken
Een bouwwerk dat op het tijdstip van inwerkingtreding van het bestemmingsplan aanwezig of in uitvoering is, dan wel gebouwd kan worden krachtens een omgevingsvergunning voor het bouwen, en afwijkt van het plan, mag, mits deze afwijking naar aard en omvang niet wordt vergroot,
- gedeeltelijk worden vernieuw of veranderd;
- na het teniet gaan ten gevolge van een calamiteit geheel worden vernieuwd of veranderd, mits de aanvraag van de bouwvergunning wordt gedaan binnen 2 jaar na de dag waarop het bouwwerk is teniet gegaan.
- Het bevoegd gezag kan eenmalig in afwijking van het bepaalde in artikel 13 lid 1 sub a een omgevingsvergunning verlenen voor het vergroten van de inhoud van een bouwwerk als bedoeld in artikel 13 lid 1 sub a onder 1 van dit artikel met maximaal 10%.
- Het bepaalde in artikel 13 lid 1 sub a van dit artikel is niet van toepassing op bouwwerken die weliswaar bestaan op het tijdstip van inwerkingtreding van het plan, maar zijn gebouwd zonder vergunning en in strijd met het daarvoor geldende plan, daaronder begrepen de overgangsbepalingen van dat plan.
13.2 Overgangsrecht gebruik
- Het gebruik van grond en bouwwerken dat bestond op het tijdstip van de inwerkingtreding van het plan en hiermee in strijd is, mag worden voortgezet.
- Het is verboden het met het bestemmingsplan strijdige gebruik, bedoeld in artikel 13 lid 2 sub a, te veranderen of te laten veranderen in een ander met het plan strijdig gebruik, tenzij door deze verandering de afwijking naar aard en omvang wordt verkleind.
- Indien het gebruik, bedoeld in artikel 13 lid 2 sub a, na het tijdstip van inwerkingtreding van het plan voor een periode langer dan een jaar wordt onderbroken, is het verboden dit gebruik daarna te hervatten of te laten hervatten.
- Het bepaalde in artikel 13 lid 2 sub a is niet van toepassing op het gebruik dat reeds in strijd was met het voorheen geldende bestemmingsplan, daaronder begrepen de overgangsbepalingen van dat plan.
13.3 Hardheidsclausule
Voor zover toepassing van het overgangsrecht gebruik leidt tot een onbillijkheid van overwegende aard voor een of meer natuurlijke personen die op het tijdstip van inwerkingtreding van het plan grond en bouwwerken gebruikten in strijd met het voordien geldende bestemmingsplan, kunnen burgemeester en wethouders met het oog op beëindiging op termijn van die met het plan strijdige situatie, ten behoeve van die persoon of personen van dat overgangsrecht met een omgevingsvergunning afwijken.
Artikel 14 Slotregel
Deze regels worden aangehaald als: Regels van het bestemmingsplan 'Achter Zuideinde 95, Roelofarendsveen'.