Type plan: bestemmingsplan
Naam van het plan: Karperhof, Woubrugge
Status: ontwerp
Plan identificatie: NL.IMRO.1884.BPKARPERHOF-ONT1

Regels

1 Inleidende regels
Artikel 1 Begrippen
 
1.1 plan:
het bestemmingsplan Karperhof, Woubrugge met identificatienummer NL.IMRO.1884.BPKARPERHOF-ONT1 van de gemeente Kaag en Braassem;
 
1.2 bestemmingsplan:
de geometrisch bepaalde planobjecten met de bijbehorende regels en de daarbij behorende bijlagen; 
 
1.3 aan huis verbonden beroep:
de uitoefening van een beroep op administratief, juridisch, medisch, therapeutisch, kunstzinnig, ontwerptechnisch of hiermee gelijk te stellen gebied in een woning of bijgebouw, waarbij de woning overwegende mate haar woonfunctie behoudt en dat een ruimtelijke uitwerking of uitstraling die met de woonfunctie in overeenstemming is;
 
1.4 aanduiding:
een geometrisch bepaald vlak of figuur, waarmee gronden zijn aangeduid, waar ingevolge de regels worden gesteld ten aanzien van het gebruik en/of het bebouwen van deze gronden;
 
1.5 aanduidingsgrens:
de grens van een aanduiding indien het een vlak betreft.
 
1.6 aaneengebouwde woning:
een woning die onderdeel uitmaakt van minimaal drie aaneengebouwde woningen, niet zijnde gestapelde woningen;
 
1.7 achtererfgebied:
erf aan de achterkant en de niet naar openbaar toegankelijk gebied gekeerde zijkant, op meer dan 1,0 m van de voorkant van het hoofdgebouw;
 
1.8 bebouwing:
één of meer gebouwen en/of bouwwerken, geen gebouwen zijnde.
 
1.9 bed & breakfast:
de verzameling van voor publiek toegankelijke, besloten ruimtes waarin al dan niet bedrijfsmatig logies wordt verstrekt en in directe relatie daarmee ontbijt wordt aangeboden als nevenfunctie van de bestaande geldende bestemming;
 
1.10 bedrijf aan huis:
een bedrijf of het bedrijfsmatig verlenen van diensten c.q. het uitoefenen van ambachtelijke bedrijvigheid, geheel of overwegend door middel van handwerk, waaronder een kappersbedrijf, dat door de gebruiker van een woning in die woning of een bijbehorend bouwwerk wordt uitgeoefend, waarbij de woning in hoofdzaak de woonfunctie behoudt en dat een ruimtelijke uitwerking of uitstraling heeft die met de woonfunctie in overeenstemming is. Detailhandel valt hier niet onder;
 
1.11 bestaand:
bij bouwwerken:
  • bouwwerken die op het tijdstip van de ter inzage legging van het ontwerp van dit bestemmingsplan zijn of (mogen) worden gebouwd krachtens een rechtsgeldig verleende omgevingsvergunning voor het bouwen dan wel een bouwvergunning;
bij gebruik:
  • het op het tijdstip van het in werking treden van het plan legaal aanwezige en/of vergunde gebruik;
1.12 bestemmingsgrens:
de grens van een bestemmingsvlak;
 
1.13 bestemmingsvlak:
een geometrisch bepaald vlak met eenzelfde bestemming;
 
1.14 bijbehorende bouwwerken:
hieronder worden begrepen:
  • aan- of uitbouw: een aan een hoofgebouw aangebouwd gebouw dat functioneel met een zich op hetzelfde perceel bevindend hoofdgebouw is verbonden en door zijn verschijningsvorm een ondergeschikte bouwmassa vormt;
  • bijgebouw: een vrijstaand gebouw dat door de vorm onderscheiden kan worden van het hoofdgebouw en dat in architectonisch en functioneel opzicht ondergeschikt is aan het hoofdgebouw;
1.15 bouwen:
het plaatsen, het geheel of gedeeltelijk oprichten, vernieuwen of veranderen en het vergroten van een bouwwerk, alsmede het geheel of gedeeltelijk oprichten, vernieuwen of veranderen van een standplaats;
 
1.16 bouwgrens:
de grens van een bouwvlak;
 
1.17 bouwlaag:
een boven het peil gelegen en doorlopend gedeelte van een gebouw, dat door op gelijke of bij benadering gelijke hoogte liggende vloeren of balklagen binnenwerks is begrensd, zulks met inbegrip van de begane grond en met uitsluiting van onderbouw en ruimte onder de kap;
 
1.18 bouwperceel:
een aaneengesloten stuk grond, waarop ingevolge de regels een zelfstandige, bij elkaar behorende bebouwing is toegelaten;
 
1.19 bouwperceelgrens:
de grens van een bouwperceel;
 
1.20 bouwvlak:
een geometrisch bepaald vlak, waarmee gronden zijn aangeduid, waar ingevolge de regels bepaalde gebouwen en bouwwerken, geen gebouwen zijnde, zijn toegelaten;
 
1.21 bouwwerk:
elke constructie van enige omvang van hout, steen, metaal of ander materiaal, die hetzij direct hetzij indirect met de grond is verbonden, hetzij direct of indirect steun vindt in of op de grond;
 
1.22 detailhandel:
het bedrijfsmatig te koop aanbieden (waaronder de uitstalling ten verkoop), verkopen, verhuren en leveren van goederen aan personen die die goederen kopen of huren voor gebruik, verbruik of aanwending anders dan in de uitoefening van een beroep of bedrijf;
 
1.23 erker:
een plat afgedekte uitbouw aan de gevel van een woning;
 
1.24 gebouw:
elk bouwwerk, dat een voor mensen toegankelijke, overdekte, geheel of gedeeltelijk met wanden omsloten ruimte vormt;
 
1.25 gestapelde woning:
een woning in een gebouw dat twee of meer geheel of gedeeltelijk boven elkaar gelegen woningen omvat (al dan niet met daarbij behorende bergingen) waarbij per woning een zelfstandige toegankelijkheid, al dan niet direct vanaf het voetgangersniveau, gewaarborgd is;
 
1.26 hoofdgebouw:
een gebouw, of gedeelte daarvan, dat noodzakelijk is voor de verwezenlijking van de geldende of toekomstige bestemming van een perceel en, indien meer gebouwen op het perceel aanwezig zijn, gelet op die bestemming het belangrijkst is;
 
1.27 horeca:
een bedrijf gericht op het verstrekken van al dan niet ter plaatse bereide en al dan niet ter plaatse te nuttigen dranken en/of etenswaren en/of het verstrekken van logies en/of het exploiteren van zaalaccommodaties;
 
1.28 huishouden:
een aantal door eerstegraads familie- of vergelijkbare band aan elkaar gerelateerde personen, dat gezamenlijk één eenheid vormt en als zodanig ook gebruik maakt van dezelfde gemeenschappelijke voorzieningen en de gezamenlijke toegang in één wooneenheid (zoals een gezin of een gezin met inwonende familieleden) die continue een eenheid vormt;
 
1.29 nutsvoorziening:
voorzieningen ten behoeve van het op het openbare net aangesloten nutsvoorziening, het telecommunicatieverkeer, het openbaar vervoer en/of het wegverkeer;
 
1.30 ondergronds bouwwerk:
een gedeelte van een bouwwerk, waarvan de bovenkant van de vloer is gelegen beneden maaiveld;
 
1.31 overkapping:
een bouwwerk, geen gebouw zijnde, voorzien van maximaal één wand en een (overwegend) gesloten dak;
 
1.32 peil:
  1. voor een gebouw, waarvan de hoofdtoegang aan een weg grenst of op ten hoogste 1 m afstand van die weg ligt: de hoogte van de weg;
  2. voor een gebouw, waarvan de hoofdtoegang niet aan de weg grenst of op meer dan 1 m afstand van die weg ligt: de gemiddelde hoogte van het aansluitende afgewerkte terrein ter plaatse van de hoofdtoegang;
  3. voor een ander bouwwerk: de hoogte van de weg waaraan het bouwwerk is gelegen of, indien het bouwwerk niet direct aan de weg is gelegen, de gemiddelde hoogte van het aansluitende afgewerkte terrein.
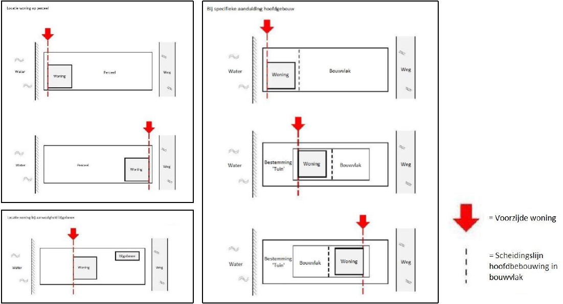
1.33 perceel:
gronden die bij elkaar horen, omdat zij aan elkaar grenzen en in het gebruik een eenheid vormen, doordat zij uitsluitend bij hetzelfde bedrijf, dezelfde woning of instelling behoren;
 
1.34 perceelsgrens:
algemeen
grens van een perceel  
voor  
de grens van een perceel gelegen aan de zijde van de voorgevel van de woning  
zij  
de grens tussen twee percelen, die voor- en achterzijde van een perceel verbindt  
achter  
de van de weg afgekeerde grens van een perceel  
 
indien meerdere zijden van het perceel van de weg afgekeerd zijn, wijzen burgemeester en wethouders een achterste perceelsgrens aan;
 
1.35 permanente bewoning:
bewoning door een persoon of door groepen van personen van een voor recreatieve bewoning bedoelde ruimte als hoofdverblijf c.q. vaste woon- of verblijfplaats;
 
1.36 seksinrichting:
een voor het publiek toegankelijke besloten ruimte waarin bedrijfsmatig, of in een omvang als zij het bedrijfsmatig, seksuele handelingen worden verricht of vertoningen van erotische- of pornografische aard plaatsvinden. Hieronder wordt tevens verstaan een seksbioscoop, seksautomatenhal, sekstheater, parenclub, (raam)prostitutiebedrijf en een erotische massagesalon, al dan niet in combinatie met elkaar;
 
1.37 sociale huur:
huur in de zin van artikel 1.1.1 lid 1 onder d van het Besluit ruimtelijke ordening;
1.38 twee-aaneen gebouwde woning:
een woning die onderdeel uitmaakt van een blok van twee aaneengebouwde woningen;
 
1.39 voorgevel:
tenzij anders op de plankaart is aangegeven;
 
 
1.40 voorgevellijn:
een denkbeeldige, dan wel op de verbeelding middels de figuur gevellijn aangegeven, lijn die direct langs een voorgevel van een gebouw of in het verlengde ervan is gelegen;
 
1.41 vrijstaande woning:
een woning die vrij staat van een andere woning;
 
1.42 woning:
een gebouw of gedeelte van een gebouw, geschikt en bestemd voor huisvesting van niet meer dan één huishouden.
 
Artikel 2 Wijze van meten
Bij toepassing van deze planregels wordt als volgt gemeten:
 
2.1 De afstand tot de (zijdelingse) perceelsgrens
De kortste afstand van enig punt van een gebouw tot de (zijdelingse) perceelsscheiding van het bouwperceel, met daarin geen onderscheid tussen bodem of water.
 
2.2 De afstand tussen gebouwen
De kortste afstand tussen de buitenwerkse gevelvlakken van de gebouwen zowel haaks als evenwijdig gepositioneerd.
 
2.3 De bouwhoogte van een bouwwerk, geen gebouw zijnde
Bij een bouwwerk op vlak maaiveld: 
  • tussen bovenkant van het bouwwerk (bij beweegbare delen te meten in de uiterste stand) en het peil. 
Bij bouwwerken op talud of dijk: 
  • bovenkant van het bouwwerk (bij beweegbare delen te meten in de uiterste stand) en het gemiddelde maaiveldpeil van het aansluitend afgewerkt terrein.
2.4 De lengte, breedte en diepte van een gebouw
Tussen (de lijnen getrokken door) de buitenzijde van de gevels en/of hart van scheidsmuren, gemeten 1 m boven peil.
 
2.5 De bouwhoogte van een gebouw
Vanaf het peil tot aan het hoogste punt van een gebouw, met uitzondering van ondergeschikte bouwonderdelen, zoals schoorstenen, antennes en naar de aard daarmee gelijk te stellen bouwonderdelen.
 
2.6 De goothoogte van een gebouw
Vanaf het peil tot aan de bovenkant van de goot, c.q. de druiplijn, het boeiboord, of een daarmee gelijk te stellen constructiedeel.
 
2.7 De oppervlakte van een gebouw
Tussen (de buitenste verticale projecties van) de buitenzijde van de gevels en/of het hart van de scheidingsmuren op 1,0 m boven peil.
 
2.8 De oppervlakte van een bouwwerk, geen gebouw zijnde
Tussen de buitenwerkse gevelvlakken en/of het hart van de scheidingsmuren geprojecteerd op het gemiddelde niveau van het afgewerkte bouwterrein ter plaatse van het bouwwerk, met inbegrip van de buitenste verticale projecties van overkappingen.
 
2.9 De vloeroppervlakte van een gebouw
De gebruiksoppervlakte volgens NEN2580.
 
2.10 De inhoud van een gebouw
Boven peil tussen de bovenzijde van de begane grondvloer, buitenzijde van de gevels en/of het hart van de gemeenschappelijke scheidingsmuren en de buitenzijde van daken dit met inbegrip van aangebouwde bijgebouwen en dakkapellen.
 
2.11 De inhoud van een bouwwerk, geen gebouw zijnde
Tussen de onderzijde van de begane grondvloer, de buitenzijde aan de gevels en/of het hart van de gemeenschappelijke scheidingsmuren en de buitenzijde van daken en dakkapellen.
 
2.12 De dakhelling
Langs het dakvlak ten opzicht van het horizontale vlak.
 
2 Bestemmingsregels
Artikel 3 Groen
3.1 Bestemmingsomschrijving
De voor 'Groen' aangewezen gronden zijn bestemd voor: 
  1. groenvoorzieningen;
  2. bermen en beplanting;
  3. wegen en paden;
  4. speelvoorzieningen;
  5. verhardingen;
  6. straatmeubilair;
  7. objecten van beeldende kunst; 
met daaraan ondergeschikt: 
  1. waterlopen en waterpartijen;
  2. parkeervoorzieningen.
3.2 Bouwregels
3.2.1 Gebouwen
Voor het bouwen van gebouwen gelden de volgende bepalingen: 
  1. op of in deze gronden mogen uitsluitend gebouwen ten behoeve van voorzieningen van algemeen nut worden gebouwd;
  2. de bouwhoogte van gebouwen bedraagt maximaal 3,0 m;
  3. de maximale oppervlakte van gebouwen bedraagt 15 m².
3.2.2 Bouwwerken, geen gebouwen zijnde
Voor het bouwen van bouwwerken, geen gebouwen zijnde, gelden de volgende bepalingen: 
  1. bouwwerken, geen gebouwen zijnde, mogen zowel binnen als buiten het bouwvlak worden gebouwd;
  2. overkappingen zijn niet toegestaan;
  3. de bouwhoogte van lichtmasten mag niet meer dan 9 m bedragen;
  4. de bouwhoogte van vlaggenmasten mag niet meer dan 6 m bedragen;
  5. de bouwhoogte van bouwwerken, geen gebouwen zijnde, mag niet meer dan 6 m bedragen.
3.3 Nadere eisen
Burgemeester en wethouders kunnen met het oog op het voorkomen van een onevenredige aantasting van ecologische waarden nadere eisen stellen aan de hoogte, de situering en de toepassing van lantarenpalen en lichtarmaturen alsmede begrepen het type lantarenpalen of armaturen.
 
3.4 Specifieke gebruiksregels
3.4.1 Strijdig gebruik
Tot een strijdig gebruik van gronden en bouwwerken, wordt in elk geval gerekend het gebruik voor: 
  1. het opslaan van onbruikbare of althans aan hun oorspronkelijke gebruik onttrokken voorwerpen, goederen, stoffen en materialen en van emballage en/of afval, behoudens voor zover zulks noodzakelijk is in verband met het op de bestemming gerichte gebruik van de grond;
  2. het opslaan, opgeslagen houden, storten of lozen van vaste of vloeibare afvalstoffen behoudens voor zover zulks noodzakelijk is in verband met het op de bestemming gerichte gebruik van de grond.
Artikel 4 Verkeer
4.1 Bestemmingsomschrijving
De voor 'Verkeer' aangewezen gronden zijn bestemd voor: 
  1. wegen, straten en paden met hoofdzakelijk een verkeersfunctie of verblijfsfunctie;
  2. tuinen ten behoeve van aangrenzende percelen; 
alsmede voor: 
  1. voet- en rijwielpaden;
  2. parkeervoorzieningen;
  3. nutsvoorzieningen;
  4. kunstwerken;
  5. straatmeubilair en speelvoorzieningen;
  6. objecten van beeldende kunst;
  7. oeververbindingen (bruggen); 
  8. in- en uitritten; 
met daaraan ondergeschikt: 
  1. groenvoorzieningen en bermen;
  2. waterlopen en waterpartijen.
4.2 Bouwregels
4.2.1 Gebouwen
Voor het bouwen van gebouwen geldt de volgende bepaling: 
  1. het bouwen van gebouwen is niet toegestaan;
  2. in afwijking van het bepaalde onder a mogen nutsvoorzieningen worden gebouwd, mits:
    1. de oppervlakte niet meer dan 25 m² bedraagt;
    2. de bouwhoogte niet meer dan 3 m bedraagt.
4.2.2 Bouwwerken, geen gebouwen en geen overkappingen zijnde
Voor het bouwen van bouwwerken, geen gebouwen en geen overkappingen zijnde, gelden de volgende bepalingen: 
  1. de bouwhoogte van lichtmasten en geluidwerende voorzieningen mag niet meer dan 12 m bedragen;
  2. de bouwhoogte van vlaggenmasten mag niet meer dan 6 m bedragen;
  3. de bouwhoogte van overige bouwwerken, geen gebouwen en geen overkappingen zijnde, mag niet meer dan 5 m bedragen;
  4. het bepaalde onder sub c is niet van toepassing op kunstwerken.
4.2.3 Overkappingen
Voor het bouwen van overkappingen geldt de volgende bepaling: 
  1. op deze gronden mogen geen overkappingen worden gebouwd.
Artikel 5 Water
5.1 Bestemmingsomschrijving
De voor 'Water' aangewezen gronden zijn bestemd voor: 
  1. waterberging- en -huishouding;
  2. waterlopen en -partijen;
  3. bruggen voor de ontsluiting van aangrenzende percelen; 
alsmede voor: 
  1. groenvoorzieningen;
  2. nutsvoorzieningen;
  3. infiltratievoorzieningen;
  4. kruisingen en overbruggingen ten behoeve van verkeersdoeleinden.
5.2 Bouwregels
5.2.1 Gebouwen
Op of in deze gronden mogen geen gebouwen worden gebouwd.
 
5.2.2 Bouwwerken, geen gebouwen zijnde
Voor het bouwen van bouwwerken, geen gebouwen zijnde, gelden de volgende bepalingen: 
  1. er mogen uitsluitend keermuren voor de waterbeheersing, oeverbeschoeiingen, dammen, duikers, bruggen worden gebouwd;
  2. de bouwhoogte van overige bouwwerken, geen gebouwen zijnde, mag maximaal 5 m bedragen.
5.3 Nadere eisen
  1. Burgemeester en wethouders kunnen met het oog op het voorkomen van een onevenredige aantasting van ecologische waarden nadere eisen stellen aan:
    1. de hoogte, de situering en de toepassing van lantarenpalen en lichtarmaturen alsmede begrepen het type lantarenpalen of armaturen;
    2. de hoogte van kruisingen en overbruggingen ten behoeve van verkeersdoeleinden;
  2. Burgemeester en wethouders zijn bevoegd nadere eisen te stellen omtrent de afstand van bebouwing tot de perceelsgrenzen en het water, teneinde aantasting van de bestaande ruimtelijke structuur en de gebruiks- en belevingswaarde van openbare en particuliere ruimten tegen te gaan.
5.4 Specifieke gebruiksregels
 
5.4.1 Strijdig gebruik
Tot een strijdig gebruik van gronden en bouwwerken, wordt in elk geval gerekend het gebruik voor: 
  1. het opslaan van onbruikbare of althans aan hun oorspronkelijke gebruik onttrokken voorwerpen, goederen, stoffen en materialen en van emballage en/of afval, behoudens voor zover zulks noodzakelijk is in verband met het normale onderhoud en/of het op de bestemming gerichte gebruik van de grond;
  2. het opslaan, opgeslagen houden, storten of lozen van vaste of vloeibare afvalstoffen behoudens voor zover zulks noodzakelijk is in verband met het normale onderhoud en/of het op de bestemming gerichte gebruik van de grond;
  3. het al dan niet langdurig aanleggen van een boot op een dusdanige wijze dat daarmee de doorvaart wordt gehinderd;
  4. het is niet toegestaan om de verblijfsrecreatieve onderkomens dan wel andere gebouwen te gebruiken voor permanente bewoning;
  5. het water mag niet worden gedempt zonder toestemming van het bevoegd gezag.
Artikel 6 Woongebied
 
6.1 Bestemmingsomschrijving
De voor 'Woongebied' aangewezen gronden zijn bestemd voor:
  1. wonen;
met daarbij behorende:
  1. tuinen en erven;
  2. parkeervoorzieningen;
met daaraan ondergeschikt:
  1. de uitoefening van een aan huis verbonden beroep;
  2. wegen, paden en bermen;
  3. waterlopen en waterpartijen;
  4. nutsvoorzieningen;
  5. speelvoorzieningen;
  6. groenvoorzieningen.
6.2 Bouwregels
6.2.1 Hoofdgebouwen
Op deze gronden mogen uitsluitend gebouwen ten dienste van de bestemming worden gebouwd en gelden de volgende regels:
  1. hoofdgebouwen mogen uitsluitend binnen een bouwvlak worden gebouwd;
  2. het maximum aantal wooneenheden mag niet meer bedragen dan is aangegeven ter plaatse van de aanduiding 'maximum aantal wooneenheden';
  3. de goot- en bouwhoogte van hoofdgebouwen binnen het bouwvlak mag niet meer bedragen dan is aangegeven ter plaatse van de aanduiding 'maximum goothoogte (m), maximum bouwhoogte (m)';
  4. het bebouwingspercentage mag niet meer bedragen dan is aangegeven ter plaatse van de aanduiding 'maximum bebouwingspercentage (%)';
  5. binnen de bestemming mogen uitsluitend grondgebonden woningen worden gebouwd, met dien verstande dat uitsluitend ter plaatse van de aanduiding 'gestapeld' ook gestapelde woningen mogen worden gebouwd;
  6. ter plaatse van de aanduiding 'specifieke vorm van wonen - sociale huur' is uitsluitend sociale huur toegestaan;
  7. de afstand van het hoofdgebouw tot de zijdelingse perceelgrens bedraagt:
    1. bij twee-aaneengebouwde aan de niet aaneengebouwde zijde ten minste 2 m;
    2. bij vrijstaande woningen ten minste 1 m.
6.2.2 Bijbehorende bouwwerken
Voor het bouwen van bijbehorende bouwwerken gelden de volgende bepalingen: 
  1. bijbehorende bouwwerken worden uitsluitend gebouwd binnen het bouwvlak of in het achtererfgebied;
  2. bijbehorende bouwwerken dienen op een afstand van ten minste 1 m achter de voorgevellijn van het hoofdgebouw te worden gebouwd;
  3. ter plaatse van de aanduiding 'gestapeld' zijn bergingen toegelaten;
  4. de goothoogte van aan- en uitbouwen bedraagt ten hoogste de hoogte van de eerste bouwlaag van het hoofdgebouw vermeerderd met 0,3 m;
  5. de bouwhoogte van aan- en uitbouwen bedraagt ten hoogste 6 m;
  6. de goothoogte van bijgebouwen bedraagt ten hoogste 3 m;
  7. de bouwhoogte van bijgebouwen bedraagt ten hoogste 6 m;
  8. de maximale gezamenlijke oppervlakte aan bijbehorende bouwwerken (uitgezonderd overkappingen) bedraagt:
Totale oppervlakte per bouwperceelMaximale gezamenlijke oppervlakte
tot 300 m²60 m²
van 300 m² tot 500 m²80 m²
van 500 m² tot 750 m²90 m²
van 750 m² tot 1.000 m²100 m²
van 1.000 m² en meer150 m²
met dien verstande dat het achtererf voor maximaal 50% bebouwd mag worden.
 
6.2.3 Bouwwerken, geen gebouwen en geen overkappingen zijnde
Voor het bouwen van bouwwerken, geen gebouwen en geen overkappingen zijnde, gelden de volgende bepalingen:
  1. bouwwerken, geen gebouwen en geen overkappingen zijnde, mogen zowel binnen als buiten het bouwvlak worden gebouwd;
  2. de bouwhoogte van erf- en terreinafscheidingen mag maximaal 2 m bedragen, met dien verstande dat de hoogte voor erf- en terreinafscheidingen vóór de naar de weg gekeerde gevel maximaal 1 m mag bedragen;
  3. de bouwhoogte van lichtmasten mag niet meer bedragen dan 6 m;
  4. de bouwhoogte van overige bouwwerken, geen gebouwen en geen overkappingen zijnde, mag niet meer dan 3 m bedragen.
6.2.4 Overkappingen
Voor het bouwen van overkappingen gelden de volgende bepalingen: 
  1. overkappingen mogen, achter de voorgevellijn, zowel binnen als buiten het bouwvlak worden gebouwd;
  2. de bouwhoogte van een overkapping bedraagt ten hoogste 3 m, met dien verstande dat de maximale oppervlakte 30 m² bedraagt;
  3. per bouwperceel is niet meer dan één overkapping toegestaan.
6.2.5 Voorwaardelijke verplichting ventilatie
Een omgevingsvergunning voor het bouwen van een gebouw als bedoeld in artikel 6 lid 2.1 wordt uitsluitend verleend indien de (mechanische) ventilatie handmatig afgesloten en uitgeschakeld kan worden bij calamiteiten, ter voorkoming van het naar binnen zuigen van toxische gassen.
 
6.3 Specifieke gebruiksregels
6.3.1 Algemeen
Tot een strijdig gebruik van gronden en bouwwerken, wordt in elk geval gerekend het gebruik voor: 
  1. permanente of tijdelijke bewoning, voor zover het vrijstaande bijbehorende bouwwerken betreft;
  2. woning als afhankelijke woonruimte;
  3. seksinrichtingen.
6.3.2 Aan huis verbonden beroepen
Gebruik van ruimten binnen de woning ten behoeve van de uitoefening van aan huis verbonden beroep wordt als gebruik overeenkomstig de bestemming aangemerkt voor zover dit gebruik ondergeschikt blijft aan de woonfunctie en mits voldaan wordt aan de volgende voorwaarden:
  1. ten hoogste 40% van het vloeroppervlak van de woning tot ten hoogste 30 m² wordt gebruikt voor het aan huis verbonden beroep;
  2. degene die het aan huis verbonden beroep in de woning uitoefent, dient tevens de bewoner van de woning te zijn;
  3. door degene die het aan huis verbonden beroep uitoefent, kan worden aangetoond dat de uitoefening van het beroep geen extra parkeerruimte vereist binnen het openbaar gebied;
  4. voorzien is in voldoende parkeergelegenheid op eigen terrein;
  5. er mag geen detailhandel, groothandel of horeca plaatsvinden.
6.3.3 Sociale huurwoningen
Van het totaal aantal woningen dient minimaal 31% als sociale huurwoning te worden gebouwd en als zodanig in stand te worden gehouden.
 
6.4 Afwijken van de gebruiksregels
6.4.1 Omgevingsvergunning bedrijf aan huis
Burgemeester en wethouders kunnen met een omgevingsvergunning afwijken van het bepaalde in artikel 6 lid 1 voor het gebruik van ruimten binnen de woning en op het erf voor aan huis verbonden bedrijf(sactiviteiten), voor zover dit gebruik ondergeschikt blijft aan de woonfunctie en mits voldaan wordt aan de volgende voorwaarden:
  1. ten hoogste 40% van het vloeroppervlak van – bij elkaar geteld – de woning en de bijgebouwen, tot ten hoogste 50 m², mag worden gebruikt voor het aan huis verbonden bedrijf;
  2. degene die de activiteiten in de woning of het bijgebouw zal uitvoeren, dient tevens de bewoner van de woning te zijn;
  3. de noodzakelijke parkeervoorzieningen dienen op eigen terrein te worden gesitueerd;
  4. het bedrijf dient qua aard, milieubelasting en uitstraling te passen in een woonomgeving;
  5. het een activiteit betreft vallend onder type A als bedoeld in het Activiteitenbesluit milieubeheer;
  6. er mag geen detailhandel, groothandel of horeca plaatsvinden, uitgezonderd een beperkte verkoop als ondergeschikte activiteit in verband met de aan huis verbonden activiteit.
3 Algemene regels
Artikel 7 Anti-dubbeltelregel
Grond die eenmaal in aanmerking is genomen bij het toestaan van een bouwplan waaraan uitvoering is gegeven of alsnog kan worden gegeven, blijft bij de beoordeling van latere bouwplannen buiten beschouwing.
Artikel 8 Algemene bouwregels
 
8.1 Algemeen
Voor het uitvoeren van ondergrondse werken, geen bouwwerken zijnde, en werkzaamheden gelden, behoudens in deze regels opgenomen afwijkingen, geen beperkingen.
 
8.2 Ondergronds bouwen
  1. Voor het bouwen van ondergrondse bouwwerken gelden, behoudens in deze regels opgenomen afwijkingen, de volgende bepalingen:
    1. ondergrondse bouwwerken zijn uitsluitend toegestaan binnen het bouwvlak;
    2. het oppervlak aan ondergrondse bouwwerken mag niet meer bedragen dan het toegestane oppervlak aan bouwwerken boven peil vermeerderd met 15 m²;
    3. in aanvulling op het bepaalde sub a onder 1 en 2 is maximaal één niet-overdekt zwembad toegestaan onder de volgende voorwaarden:
      • het zwembad dient te worden gebouwd achter de achtergevel of het verlengde daarvan en op een afstand van ten minste 3 m van zijdelingse en achterste perceelsgrens;
      • het zwembad mag niet overdekt zijn, tenzij de regeling voor bijbehorende bouwwerken als bedoeld in Bijlage II van het Besluit omgevingsrecht (Bor) in acht wordt genomen;
      • het zwembad mag uitsluitend voor hobbymatig gebruik worden benut;
      • per bouwperceel mag maximaal één zwembad worden gebouwd;
    4. de ondergrondse bouwdiepte van ondergrondse bouwwerken bedraagt maximaal 4 m onder peil;
    5. bij het berekenen van de blijkens deze regels geldende bebouwingspercentages of van het in deze regels maximaal te bebouwen oppervlak, wordt de oppervlakte van ondergrondse gebouwen mede in aanmerking genomen.
  2. Het bevoegd gezag kan door middel van een omgevingsvergunning afwijken van het bepaalde in artikel 8 lid 2 sub a onder 4 voor het bouwen van ondergrondse bouwwerken met een ondergrondse bouwdiepte van maximaal 10 m onder peil onder de voorwaarde dat:
    1. de waterhuishouding niet wordt verstoord;
    2. geen afbreuk wordt gedaan aan archeologische waarden.
8.3 Ondergeschikte bouwdelen
Bij de toepassing van het bepaalde ten aanzien van het bouwen worden ondergeschikte bouwdelen, als plinten, pilasters, kozijnen, gevelversieringen, ventilatiekanalen, schoorstenen, gevel- en kroonlijsten, luifels, uitbouwen, balkons en overstekende daken buiten beschouwing gelaten, mits de overschrijding van bouw-, c.q. bestemmingsgrenzen niet meer dan 1,5 m bedraagt.
 
8.4 Dakkapellen
Dakkapellen aan de achterzijde, voorzijde en in het naar openbaar gebied gekeerd zijdakvlak van een woning zijn toegestaan, mits wordt voldaan aan de volgende eisen: 
  1. de dakkapel is voorzien van een plat dak;
  2. gemeten vanaf de voet van de dakkapel, mag deze niet hoger zijn dan 1,85 m;
  3. de onderzijde van de dakkapel dient meer dan 0,5 m en minder dan 1,0 m boven de dakvoet gesitueerd te worden;
  4. de bovenzijde van de dakkapel dient meer dan 0,5 m onder de daknok gesitueerd te worden;
  5. de zijkanten van de dakkapel dienen meer dan 0,5 m van de zijkanten van het dakvlak gesitueerd te worden.
8.5 Parkeren
  1. Voor zover in hoofdstuk 2 geen specifieke parkeernormen zijn opgenomen, dient bij het wijzigen van het bestaande gebruik en/of het bouwen op grond van de regels in hoofdstuk 2, voorzien te worden in voldoende parkeergelegenheid overeenkomstig de 'Nota parkeernormen 2018', die als bijlagen bij de regels bijlage 1 is opgenomen, of het beleid dat daarop volgt.
  2. Van het bepaalde onder a kan worden afgeweken, indien kan worden aangetoond dat op andere wijze is voorzien in voldoende parkeergelegenheid.
Artikel 9 Algemene gebruiksregels
9.1 Strijdig gebruik
Tot een strijdig gebruik van gronden en bouwwerken, wordt in elk geval gerekend het gebruik voor:
  1. het opslaan van onbruikbare of althans aan hun oorspronkelijke gebruik onttrokken voorwerpen, goederen, stoffen en materialen en van emballage en/of afval, behoudens voor zover zulks noodzakelijk is in verband met het op de bestemming gerichte gebruik van de grond;
  2. het opslaan, opgeslagen houden, storten of lozen van vaste of vloeibare afvalstoffen behoudens voor zover zulks noodzakelijk is in verband met het op de bestemming gerichte gebruik van de grond;
  3. seksinrichtingen;
  4. permanente bewoning van verblijfsrecreatieve onderkomens;
  5. zelfstandig gebruik van een bijbehorend bouwwerk als woning of als een verblijfsrecreatief onderkomen;
  6. inrichtingen die vallen onder het Besluit externe veiligheid inrichtingen (Bevi);
  7. bewoning van hoofdgebouwen ten behoeve van meer woningen dan op grond van de bouwregels is toegestaan.
Artikel 10 Algemene afwijkingsregels
 
10.1 Algemeen
Het bevoegd gezag kan door middel van een omgevingsvergunning afwijken van:
  1. de bestemmingsregels voor afwijkingen van maten (waaronder percentages) met ten hoogste 10%;
  2. de bestemmingsbepalingen en toestaan dat het beloop of het profiel van wegen of de aansluiting van wegen onderling in geringe mate wordt aangepast, indien de verkeersveiligheid en/of -intensiteit daartoe aanleiding geeft;
  3. de bestemmingsbepalingen en toestaan dat bouwgrenzen worden overschreden, indien een meetverschil daartoe aanleiding geeft;
  4. de bestemmingsbepalingen en toestaan dat nutsgebouwtjes, kunstobjecten, wachthuisjes ten behoeve van het openbaar vervoer, telefooncellen, gebouwtjes ten behoeve van de bediening van kunstwerken, toiletgebouwtjes, en naar de aard daarmee gelijk te stellen gebouwtjes worden gebouwd, mits de inhoud per gebouwtje maximaal 50 m³ bedraagt en een maximale hoogte van 3 m heeft;
  5. de bestemmingsbepalingen ten aanzien van de bouwhoogte van bouwwerken, geen gebouwen zijnde, en toestaan dat de bouwhoogte van de bouwwerken, geen gebouwen zijnde, wordt vergroot tot maximaal 10 m;
  6. de bestemmingsbepalingen ten aanzien van de hoogte van bouwwerken, geen gebouwen zijnde, en toestaan dat de hoogte van bouwwerken, geen gebouwen zijnde, ten behoeve van kunstwerken, geen gebouwen zijnde, en ten behoeve van zend-, ontvang- en/of sirenemasten, wordt vergroot tot maximaal 40 m. Wat betreft zend- en ontvang- en/of sirenemasten gelden nog de volgende voorwaarden:
    1. losse masten met hekwerken, gebouwtjes e.d. zijn alleen toegestaan:
      • buiten de bebouwde kom en in landschappelijk minder gevoelige gebieden, langs grote verkeerswegen en dan bij voorkeur bij parkeerplaatsen, benzinestations, knooppunten, viaducten, bedrijventerreinen en horecagelegenheden;
      • binnen de bebouwde kom uitsluitend op bedrijventerreinen en sportparken;
    2. installaties op of aan een gebouw zijn alleen toegestaan:
      • op hoge gebouwen (minimale hoogte 14 m); bij voorkeur op een plat dak en zo ver mogelijk van een dakrand, met dien verstande dat bijzondere en waardevolle gebouwen in beginsel geheel dienen te worden ontzien, zonodig in overleg met een door B&W aan te wijzen deskundige/commissie inzake monumenten of inzake beschermd dorpsgezicht;
      • tegen gevels aan; wanneer de invloed van die installaties geen afbreuk doen aan de aanwezige kwaliteiten.
10.2 Openbare recreatieve voorzieningen
Het bevoegd gezag kan bij een omgevingsvergunning afwijken van het gestelde in regels hoofdstuk 2, ten behoeve van de realisatie van openbare recreatieve voorzieningen, zoals vis-, zwem- of aanlegsteigers, picknickplaatsen, speelvoorzieningen, informatiepanelen, fietsenrekken en soortgelijke bouwwerken, met inachtneming van het volgende: 
  1. de voorzieningen mogen geen afbreuk doen aan de bestaande landschaps- en natuurwaarden;
  2. de voorzieningen mogen geen onevenredig grote verkeersaantrekkende werking hebben en er mag geen verslechtering optreden in de verkeersafwikkeling ter plaatse;
  3. de voorzieningen dienen openbaar toegankelijk te zijn.
10.3 Bed & breakfast
Het bevoegd gezag kan bij een omgevingsvergunning afwijken van het gestelde in regels hoofdstuk 2, ten behoeve van de realisatie van een bed & breakfast binnen bestaande bebouwing met dien verstande dat: 
  1. het maximaal aantal kamers niet meer dan 5 mag bedragen en/of maximaal 10 bedden bedraagt;
  2. de uitvoerbaarheid van de omgevingsvergunning is gewaarborgd, in verband waarmee in elk geval aangetoond moet worden dat:
    1. voorzien wordt in voldoende parkeergelegenheid;
    2. de voorzieningen mogen geen onevenredig grote verkeersaantrekkende werking hebben en er mag geen verslechtering optreden in de verkeersafwikkeling ter plaatse;
    3. geen onevenredige afbreuk wordt gedaan aan belangen van direct omwonenden;
    4. de gemeente gevrijwaard wordt van alle plankosten.
10.4 Algemene randvoorwaarden
Afwijken is slechts mogelijk mits: 
  1. de geluidsbelasting op de gevel van geluidsgevoelige gebouwen niet hoger zal zijn dan de daarvoor geldende grenswaarde uit de Wet geluidhinder of de vastgestelde hogere grenswaarde;
  2. blijkens een beeldkwaliteitsparagraaf of motivering voldaan wordt aan de richtpunten van de kwaliteitskaart als bedoeld in de provinciale Omgevingsverordening;
  3. dit ruimtelijk inpasbaar is gelet op:
    1. de bebouwingsmogelijkheden, gebruiksmogelijkheden en/of bezonning van het betreffende perceel en de aangrenzende percelen en bouwwerken;
    2. de verkeersveiligheid;
    3. de sociale veiligheid;
    4. het milieu;
  4. de natuurlijke, cultuurhistorische en landschappelijke waarden van de grond, dan wel de mogelijkheid van herstel van die waarden niet onevenredig wordt verkleind en de overige belangen niet onevenredig worden geschaad;
  5. de verkeersaantrekkende werking in overeenstemming is met de functie en vormgeving van de wegen in de nabije omgeving;
  6. voorzien wordt in de (extra) parkeerbehoefte.
Artikel 11 Algemene wijzigingsregels
11.1 Algemeen
Burgemeester en wethouders zijn bevoegd de in het plan opgenomen bestemmingen te wijzigen ten behoeve van:
  1. overschrijding van bestemmingsgrenzen, voor zover dit van belang is voor een technisch betere realisering van bestemmingen of bouwwerken dan wel voor zover dit noodzakelijk is in verband met de werkelijke toestand van het terrein;
  2. overschrijding van bestemmingsgrenzen en toestaan dat het beloop van wegen of de aansluiting van wegen onderling in geringe mate wordt aangepast, indien de verkeersveiligheid en/of -intensiteit daartoe aanleiding geeft.
De overschrijdingen mogen echter niet meer dan 3 m bedragen en het bestemmingsvlak mag met niet meer dan 10% worden vergroot.
 
4 Overgangs- en slotregels
Artikel 12 Overgangsrecht
12.1 Overgangsrecht bouwwerken
  1. Een bouwwerk dat op het tijdstip van inwerkingtreding van het bestemmingsplan aanwezig of in uitvoering is, dan wel gebouwd kan worden krachtens een omgevingsvergunning voor het bouwen, en afwijkt van het plan, mag, mits deze afwijking naar aard en omvang niet wordt vergroot,
    1. gedeeltelijk worden vernieuw of veranderd;
    2. na het teniet gaan ten gevolge van een calamiteit geheel worden vernieuwd of veranderd, mits de aanvraag van de bouwvergunning wordt gedaan binnen 2 jaar na de dag waarop het bouwwerk is teniet gegaan.
  2. Het bevoegd gezag kan eenmalig in afwijking van het bepaalde in artikel 12 lid 1 sub a een omgevingsvergunning verlenen voor het vergroten van de inhoud van een bouwwerk als bedoeld in artikel 12 lid 1 sub a van dit artikel met maximaal 10%.
  3. Het bepaalde in artikel 12 lid 1 sub a van dit artikel is niet van toepassing op bouwwerken die weliswaar bestaan op het tijdstip van inwerkingtreding van het plan, maar zijn gebouwd zonder vergunning en in strijd met het daarvoor geldende plan, daaronder begrepen de overgangsbepalingen van dat plan.
12.2 Overgangsrecht gebruik
  1. Het gebruik van grond en bouwwerken dat bestond op het tijdstip van de inwerkingtreding van het plan en hiermee in strijd is, mag worden voortgezet. 
  2. Het is verboden het met het bestemmingsplan strijdige gebruik, bedoeld in artikel 12 lid 2 sub a, te veranderen of te laten veranderen in een ander met het plan strijdig gebruik, tenzij door deze verandering de afwijking naar aard en omvang wordt verkleind.
  3. Indien het gebruik, bedoeld in , na het tijdstip van inwerkingtreding van het plan voor een periode langer dan een jaar wordt onderbroken, is het verboden dit gebruik daarna te hervatten of te laten hervatten.
  4. Het bepaalde in artikel 12 lid 2 sub a is niet van toepassing op het gebruik dat reeds in strijd was met het voorheen geldende bestemmingsplan, daaronder begrepen de overgangsbepalingen van dat plan.
Artikel 13 Slotregel
Deze regels worden aangehaald als: Regels van het bestemmingsplan 'Karperhof, Woubrugge' van de Gemeente Kaag en Braassem.