Type plan: bestemmingsplan
Naam van het plan: Noordkade 21, Roelofarendsveen
Status: ontwerp
Plan identificatie: NL.IMRO.1884.BPNOORDKADE21-ONT1

Toelichting

 
1 Inleiding
1.1 Aanleiding
Initiatiefnemer is voornemens om op het perceel aan de Noordkade 21 te Roelofarendsveen de bestaande vrijstaande woning te slopen en daarvoor in de plaats een nieuwe vrijstaande woning te realiseren. De percelen van het plangebied zijn kadastraal bekend onder de gemeente Alkemade, sectie K, perceel 3118. Deze gronden hebben reeds de bestemming Wonen, Tuin en Water.     
  
Voor de gronden van het plangebied geldt het bestemmingsplan 'Braassemerland 2019', vastgesteld door de raad van de gemeente Kaag en Braassem op 27 mei 2019. De gronden beschikken over dubbelbestemming 'Archeologie 3' en een bouwvlak met een maximum goot- en bouwhoogte van 3 en 6 m. De beoogde nieuwe woning past niet binnen het bouwvlak van het geldende bestemmingsplan, het realiseren van de nieuwe woning is dan ook niet mogelijk binnen het geldende bestemmingsplan. 
 
Om het plan juridisch-planologisch mogelijk te maken dient een partiële herziening van het bestemmingsplan (postzegelbestemmingsplan) vastgesteld te worden. Hierin behoudt het perceel de bestemming 'Wonen' en wordt het bouwvlak verplaatst en uitgebreid. Het voorliggende bestemmingsplan voorziet hierin.
1.2 Ligging plangebied
Het plangebied van onderhavig initiatief is gelegen aan de Noordkade 21 aan de zuidrand van het woongebied Braassemerland en ligt direct aan het Braassemermeer, in het zuidelijke gedeelte van de kern Roelofarendsveen. Het betreffende perceel is kadastraal bekend onder de gemeente Alkemade, sectie K, perceel 3118. Ten noorden van het plangebied wordt de nieuwe wijk Braassemerland ontwikkeld.
 
Op de navolgende afbeeldingen staan de globale ligging en begrenzing van het plangebied weergegeven.
 
Globale ligging plangebied, rood omcirkeld (bron: Google Maps).
 
Globale begrenzing plangebied, rood omkaderd (bron: ruimtelijkeplannen.nl).
   
1.3 Geldend bestemmingsplan
Voor de gronden van het plangebied geldt het bestemmingsplan 'Braassemerland 2019', vastgesteld door de raad van de gemeente Kaag en Braassem op 27 mei 2019. In het geldende bestemmingsplan zijn de gronden voorzien van de bestemming 'Wonen'. Gebouwen mogen binnen het bouwvlak gebouwd worden met een maximale bouwhoogte van 6 m een maximale goothoogte van 3 m.
 
Navolgende afbeelding toont een uitsnede van het geldende bestemmingsplan 'Braassemerland 2019'.
 
Uitsnede bestemmingsplan 'Braassemerland 2019', plangebied rood omkaderd (bron: ruimtelijkeplannen.nl).
 
Ook beschikt een deel van de gronden van het plangebied over de dubbelbestemming 'Waarde - Archeologie 3'. De voor 'Waarde - Archeologie 3' aangewezen gronden zijn, behalve voor de andere aldaar voorkomende bestemming(en), mede bestemd voor de bescherming en veiligstelling van archeologische waarden. Tevens ligt de dubbelbestemming 'Waterstaat - Waterstaatkundige functie' op een deel van het plangebied. Deze gronden zijn, behalve voor de andere daar voorkomende bestemming(en), mede bestemd voor de instandhouding, het beheer en de bescherming van (natuur)waarden in de vorm van waterhuishouding/waterberging en waterkeringen.

De beoogde ontwikkeling is niet mogelijk op basis van dit bestemmingsplan. Voor de gronden aan de Noordkade 21 geldt reeds de bestemming Wonen, Tuin, en Water. De beoogde ontwikkeling realiseert één nieuwe vrijstaande woning die niet in het bestemmingsplan opgestelde bouwvlak past. Hiervoor is een aanpassing aan het bouwvlak noodzakelijk.
 
De beoogde ontwikkeling past niet in het geldende bestemmingsplan. Om de ontwikkeling mogelijk te maken dient een nieuw bestemmingsplan opgesteld te worden. Onderhavig bestemmingsplan voorziet hierin. Met dit bestemmingsplan blijft de woonbestemming op de planlocatie gelden.  
     
1.4 Leeswijzer
Dit hoofdstuk is de inleiding op het plan. In hoofdstuk 2 wordt het beoogde plan beschreven. Hoofdstuk 3 beschrijft de relevante beleidskaders. In hoofdstuk 4 wordt het project inhoudelijk op haalbaarheid getoetst aan de hand van het geldende beleid en milieuwetgeving. In hoofdstuk 5 wordt de juridische planopzet beschreven. Hoofdstuk 6 gaat in op de economische uitvoerbaarheid van het plan. Tot slot beschrijft hoofdstuk 7 de maatschappelijke haalbaarheid van het plan waarbij de uitkomsten van de inspraak en overlegmomenten zijn opgenomen.
2 Planbeschrijving
2.1 Huidige situatie
Het plangebied ligt ten zuiden van de kern Roelofarendsveen en maakt onderdeel uit van de rand van het Braassemermeer. Het plangebied bevindt zich ter plaatse van Noordkade 21, waarvan de gronden deels verhard zijn middels de bestaande vrijstaande woning en deels in gebruik als tuin. Het plangebied heeft een oppervlakte van in totaal 2.930 m². 
    
Navolgende afbeelding toont impressies van de huidige situatie van het plangebied:
 
Impressie plangebied met bestaande bebouwing (bron: Geonius).
2.2 Toekomstige situatie
Initiatiefnemer is voornemens om een nieuwe vrijstaande woning te realiseren op de locatie. Het perceel wordt omringd door water van het Braassemermeer. Om de ontwikkeling mogelijk te maken wordt de aanwezige bebouwing gesloopt. De ontsluiting van het perceel wordt aangepast, de toegangsbrug wordt gedeeltelijk verschoven en verbreed om het plangebied te kunnen bereiken. De woning wordt georiënteerd op het omringende water in dezelfde lijn als de aangrenzende woningen. De ligging aan het water vormt een extra kwaliteit voor het gebied waardoor de ontwikkeling een nieuwe impuls geeft aan het gebied.
 
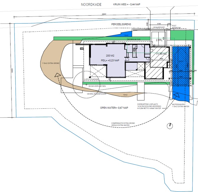
Op navolgende afbeeldingen staat een plattegrond van het perceel met de beoogde vrijstaande woning en een vooraanzicht van de beoogde woning.
 
Plattegrond van de toekomstige situatie (bron: Denoldervleugels).
 
Vooraanzicht toekomstige bebouwing (bron: Denoldervleugels).
3 Beleidskader
3.1 Rijksbeleid
3.1.1 Nationale Omgevingsvisie (NOVI)
Op 11 september 2020 is de Nationale Omgevingsvisie (NOVI) in werking getreden. Deze visie bevat de hoofdzaken van het strategisch rijksbeleid voor de fysieke leefomgeving. Dit is een combinatie van beleid uit de bestaande beleidsdocumenten, met en zonder wettelijke grondslag, en nieuw strategisch beleid. De grote en complexe opgaven, zoals klimaatverandering, energietransitie, circulaire economie, bereikbaarheid en woningbouw zullen Nederland gaan veranderen. De NOVI bevat een toekomstperspectief met de ambities van het Rijk. In de NOVI zijn 21 nationale belangen met bijbehorende opgaven geformuleerd. Deze nationale belangen komen samen in vier prioriteiten:
  1. ruimte voor klimaatadaptatie en energietransitie;
  2. duurzaam economisch groeipotentieel;
  3. sterke en gezonde steden en regio's;
  4. toekomstbestendige ontwikkeling van het landelijk gebied. 
Voor de vier NOVI-prioriteiten geldt steeds dat zowel voor de lange als de korte termijn maatregelen nodig zijn. Deze maatregelen dienen in de praktijk voortdurend op elkaar in te spelen. Bij de afweging van de belangen staat een evenwichtig gebruik van de fysieke leefomgeving centraal voor zowel de boven- als de ondergrond.
    
Planspecifiek
Gezien de aard en omvang is de NOVI verder niet specifiek van belang. Wel wordt er aangesloten op de ambities en belangen van het Rijk zoals het realiseren en behouden van een goede leefomgevingskwaliteit en het realiseren van woningen.
 
3.1.2 Besluit algemene regels ruimtelijke ordening
De wetgever heeft in de Wro, ter waarborging van de nationale of provinciale belangen, de besluitmogelijkheden van lagere overheden begrensd. Indien nationale of provinciale belangen dat met het oog op een goede ruimtelijke ordening noodzakelijk maken, kunnen bij of krachtens algemene maatregel van bestuur respectievelijk bij of krachtens provinciale verordening regels worden gesteld omtrent de inhoud van bestemmingsplannen. In het Besluit algemene regels ruimtelijke ordening (Barro) zijn 14 nationale belangen opgenomen die in de Structuurvisie Infrastructuur en Ruimte (SVIR) zijn herbevestigd. Voor deze belangen is het Rijk verantwoordelijk en wil het resultaten boeken. Buiten deze belangen hebben decentrale overheden beleidsvrijheid. Het Barro is op 30 december 2011 in werking getreden en op 1 oktober 2012, 1 juli 2014 en 1 juli 2016 op onderdelen aangevuld.
 
Planspecifiek
De voorgenomen ontwikkeling in het plangebied raakt niet aan één van de nationale belangen en dus is het Barro ook niet specifiek van toepassing op het plangebied.
3.1.3 Ladder voor duurzame verstedelijking
In het Besluit ruimtelijke ordening (Bro) is de verplichting opgenomen om in het geval van een nieuwe stedelijke ontwikkeling in de toelichting een onderbouwing op te nemen van nut en noodzaak van de nieuwe stedelijke ruimtevraag en de ruimtelijke inpassing. Hierbij wordt uitgegaan van de 'ladder voor duurzame verstedelijking'.
 
De 'stappen van de ladder' worden in artikel 3.1.6, leden 2 - 4 Bro als volgt omschreven:
  • De toelichting bij een bestemmingsplan dat een nieuwe stedelijke ontwikkeling mogelijk maakt, bevat een beschrijving van de behoefte aan die ontwikkeling, en, indien het bestemmingsplan die ontwikkeling mogelijk maakt buiten het bestaand stedelijk gebied, een motivering waarom niet binnen het bestaand stedelijk gebied in die behoefte kan worden voorzien.
  • Indien in een bestemmingsplan als bedoeld in het tweede lid toepassing is gegeven aan artikel 3.6, eerste lid, onder a of b, van de wet kan bij dat bestemmingsplan worden bepaald dat de beschrijving van de behoefte aan een nieuwe stedelijke ontwikkeling en een motivering als bedoeld in het tweede lid eerst wordt opgenomen in de toelichting bij het wijzigings- of het uitwerkingsplan als bedoeld in dat artikel.
  • Een onderzoek naar de behoefte als bedoeld in het tweede lid, heeft, in het geval dat een bestemmingsplan als bedoeld in het tweede lid, ziet op de vestiging van een dienst als bedoeld in artikel 1 van de Dienstenwet en dit onderzoek betrekking heeft op de economische behoefte, de marktvraag of de beoordeling van de mogelijke of actuele economische gevolgen van die vestiging, slechts tot doel na te gaan of de vestiging van een dienst in overeenstemming is met een goede ruimtelijke ordening.
Planspecifiek
Conform artikel 1.1.1, eerste lid onder i van het Bro wordt onder een stedelijke ontwikkeling verstaan: een 'ruimtelijke ontwikkeling van een bedrijventerrein of zeehaventerrein, of van kantoren, detailhandel, woningbouwlocaties of andere stedelijke voorzieningen.' Uit jurisprudentie van de Afdeling bestuursrechtspraak van de Raad van State blijkt dat de ondergrens van wat als nieuwe stedelijke ontwikkeling moet worden gezien, ligt bij 12 nieuwe woningen. In het onderhavige geval is er sprake van sloop-nieuwbouw, waarbij de bestaande woning wordt vervangen door een nieuwe woning. Daarmee is er geen sprake van een stedelijke ontwikkeling en hoeft het plan niet nader getoetst te worden aan de ladder voor duurzame verstedelijking.
 
Geconcludeerd wordt dat voorgenomen ontwikkeling past binnen de ladder voor duurzame verstedelijking.
  
3.1.4 Luchthavenindelingbesluit Schiphol (LIB)
Het Luchthavenindelingbesluit Schiphol (LIB) legt beperkingen op aan bebouwing, activiteiten en functies in de buurt van luchthaven Schiphol. De beperkingen zijn ingesteld om te voorkomen dat objecten of gebruiksfuncties worden ontwikkeld die:
  1. het vliegverkeer belemmeren en/of in gevaar brengen (vliegveiligheid);
  2. zelf te veel geluidhinder of risico ondervinden als gevolg van het vliegverkeer (externe veiligheid en geluid).
De beperkingen hebben geen consequenties voor bestaand gebruik of al vóór inwerkingtreding vergunde objecten en gebruiksfuncties, uitgezonderd bestaande woningen binnen de zogenaamde sloopzones LIB 1 en LIB 2. 
 
Planspecifiek
Het plangebied bevindt zich in het 'beperkingengebied van het 'Luchthavenindelingbesluit Schiphol' (LIB). Het plangebied valt onder het gebied waar een maatgevende toetshoogte van 146 m NAP geldt. Binnen dit gebied zijn geen objecten hoger dan 146 m NAP toegestaan. Onderhavig plan voorziet niet in hoogbouw hoger dan 146 m NAP. Er is dan ook geen overschrijding van de gestelde toetshoogte. Geconcludeerd kan worden dat het 'Luchthavenindelingbesluit Schiphol' geen belemmeringen voor de uitwerking van het plan veroorzaakt.
3.2 Provinciaal beleid
3.2.1 Omgevingsvisie Zuid-Holland
De Omgevingsvisie is in werking getreden op 1 februari 2023. De Omgevingsvisie bestaat uit 4 onderdelen: 
  1. Ruimtelijke hoofdstructuur
De ruimtelijke hoofdstructuur toont de essentie en de samenhang van verschillende ruimtelijke beleidskeuzes uit de Omgevingsvisie. Het integrale kaartbeeld van de ruimtelijke hoofdstructuur is opgebouwd uit de volgende kaartbeelden:
  • het dagelijks stedelijk systeem, dat bestaat uit de stedelijke agglomeratie en de daarmee via hov (hoogwaardig openbaar vervoer) verbonden regiokernen;
  • de hoogstedelijke zone tussen Leiden en Dordrecht;
  • het logistiek-industriële systeem van mainport, greenports langs vaarwegen en zware infrastructuur;
  • de samenhang van grote landschappelijke eenheden met de stedelijke agglomeratie;
  • de groene ruimte en de groenblauwe structuur;
  • het bodem- en watersysteem;
  • energie.
In aanvulling hierop toont de ruimtelijke hoofdstructuur van de ondergrond indicatief de ruimtelijke situatie van de ondergrond.   
  1. Ambities en sturing
De provincie wil meer vertrouwen geven aan maatschappelijke initiatieven. De provincie werkt daarom vanuit een aantal sturingsprincipes: opgavegericht, provinciaal belang en maatwerk.
 
De provincie heeft zes richtinggevende ambities in de fysieke leefomgeving. Deze ambities zijn geworteld in de historie, ligging en economische structuur van Zuid-Holland en zijn gekoppeld aan de strategische uitdagingen waar de regio voor staat. De provincie heeft de volgende ambities:
  • naar een klimaatbestendige delta;
  • naar een nieuwe economie: the next level;
  • naar een levendig meerkernige metropool;
  • energievernieuwing;
  • best bereikbare provincie;
  • gezonde en aantrekkelijke leefomgeving.
  1. Omgevingskwaliteit
Onder 'omgevingskwaliteit' wordt verstaan: het geheel aan kwaliteiten die de waarde van de fysieke leefomgeving bepalen. De volgende onderdelen vormen de basis van de omgevingskwaliteit:
  • een beschrijving van de unieke kwaliteiten van Zuid-Holland: de drie deltalandschappen, de Zuid-Hollandse steden en de strategische ligging in internationale netwerken;
  • een beschrijving van de bestaande omgevingskwaliteit op basis van de leefomgevingstoets, met aandacht voor aspecten van milieukwaliteit. Hiertoe implementeert de provincie de beleidscyclus en monitor Omgevingskwaliteit;
  • een nadere uitwerking van het provinciale beleid voor het verbeteren van de ruimtelijke kwaliteit, op basis van de 'kwaliteitskaart' en de 'richtpunten ruimtelijke kwaliteit'.
  1. Beleidskeuzes
De provincie heeft in de Omgevingsvisie een overzicht gemaakt van samenhangende beleidskeuzes (zie Omgevingsvisie Zuid Holland).
  
Planspecifiek
  1. Ruimtelijke hoofdstructuur
De ruimtelijke hoofdstructuur is voor het beoogde initiatief niet specifiek van belang gezien de aard en omvang van het initiatief.
  1. Ambities en sturing
De ambities van de provincie zijn niet specifiek van toepassing voor het beoogde initiatief, maar vormen tevens geen belemmering voor de ontwikkeling.
  1. Omgevingskwaliteit
Voor de beoogde ontwikkeling is de omgevingskwaliteit wel van belang. Hiervoor zullen de relevante kaartlagen van de kwaliteitskaart en de bijbehorende richtpunten nader worden omschreven.
 
Laag van de ondergrond
Op de kaart van de 'Laag van de ondergrond' staat aangegeven dat het plangebied in een Veencomplex - Veen gelegen is. De voormalige plassen zijn drooggemalen en staan bekend als droogmakerijen. Binnen het veengebied is een aantal plekken waar in de ondergrond nog grote veenpakketten aanwezig zijn. Niet alleen zijn deze veenpakketten van bijzondere waarde, ook zijn deze gebieden zeer gevoelig voor bodemdaling. Ontwikkelingen in het veenlandschap dragen zorg voor behoud van het veen en zijn met name bij de diepe veenpakketten gericht op het beperken van de bodemdaling. In de huidige situatie is het plangebied deels verhard en bebouwd. Gezien de aard en omvang van de ontwikkeling zal deze waarschijnlijk geen invloed hebben op het veencomplex en de diepe veenpakketten.
 
Laag van de cultuur- en natuurlandschappen
Het plangebied bevindt zich in de onverveende bovenlanden. Een bovenland is een smalle strook onvergraven veengrond aan weerszijden van een veenstroom of wetering, met een scherpe overgang naar de aangrenzende droogmakerijen. Ontwikkelingen dragen bij aan de contrasten tussen het (oude) bovenland (hooggelegen, besloten, kleinschalig karakter) en de aangrenzende droogmakerijen (laaggelegen, grootschalig, weids). Het plangebied grenst aan een gebied waar grootschalige woningbouw gaat plaatsvinden. Hier zal de weidsheid van de droogmakerijen in de toekomst dan ook niet meer aanwezig zijn.
  1. Beleidskeuzes
De ontwikkeling sluit aan bij de beleidskeuze 'behoud en versterking ruimtelijke kwaliteit'. Het ruimtelijke kwaliteitsbeleid bestaat uit de voorgenoemde lagen van de kwaliteitskaart. Daarnaast zijn er gebiedsprofielen opgesteld, gezamenlijk met decentrale overheden en andere partijen in de regio. De gebiedsprofielen hebben de status van handreiking, maar nadrukkelijk niet de status van toetsingskader.
 
Het plangebied valt binnen het gebiedsprofiel 'Hollands Passengebied'. Voor elk gebiedsprofiel zijn meerdere kaarten beschikbaar. Hieronder worden alleen de voor het plangebied relevante kaarten besproken die een aanvulling vormen op de reeds genoemde aspecten van de kwaliteitskaart:
 
Droogmakerij als herkenbare eenheid - Ringdijk
De ringdijken en kades van de droogmakerijen vormen een duidelijk ruimtelijk kader voor de polders. De ringdijk is de buitenste begrenzing van de polder. Van oudsher wordt aan de dijk gewoond en gewerkt. Naast hun waterkundige en kerende functie zijn de ringdijken en kades een essentiële ontsluiting van het gebied. Ontwikkelingen aan de dijken en kades houden rekening met de beleefbaarheid van het contrast tussen de hoge boezemkade en lage polder. Zicht vanaf de dijken op de polders wordt gekoesterd. Het voorliggende plan maakt sloop-nieuwbouw in het plangebied mogelijk waarbij er een nieuwe vrijstaande woning wordt gerealiseerd. De verandering ten opzichte van de bestaande situatie is daardoor beperkt.
 
Water als structuurdrager
Het plangebied grenst aan boezemwater (Braassemermeer). Een opvallend kenmerk is de combinatie van de hoge ligging van het boezemwater ten opzichte van het lagere ommeland, het hoge waterpeil en de verre zichten over het water en omringend landschap. Het water wordt vooral in de zomer volop bevaren met zeilboten, sloepen en andere vaartuigen. Vooral rond de grote plassen zijn dan ook tal van jachthavens te vinden. Het doel is het behoud en versterken van een voor iedereen zichtbare, toegankelijke en beleefbare waterstructuur als dragende identiteit van het gebied. Om oevers en water toegankelijk en beleefbaar te houden is er geen ruimte voor verdere verdichting (privatisering) van de oevers. Dit betekent ook geen nieuwe ligplaatsen voor woonboten. Het voorliggende plan voorziet in de sloop en nieuwbouw van een vrijstaande woning, daarmee vindt er geen verdere verdichting plaats langs het water. Het voorliggende plan past daarom bij de kwaliteitskaart.
 
Kwaliteit van de stads- en dorpsrand - Waterfront
Dit is een scherpe stads- of dorpsrand langs een waterloop of plas, waarbij de bebouwing en landschap 'met het gezicht naar elkaar' zijn gekeerd. Stad en buitengebied brengen hun eigen eigenschappen maximaal tot expressie. Bij ontwikkelingen wordt rekening gehouden met het versterken van de visuele relatie tussen stad en buitengebied. Bebouwing oriënteert zich op het landschappelijke panorama over het water. Het doel is om het contrast tussen stad en water zo scherp mogelijk maken. Het voorliggende plan voorziet in de sloop en nieuwbouw van een vrijstaande woning, daarmee vindt er een beperkte wijziging plaats die het contrast niet nadrukkelijk veranderd.
 
Identiteitsdragers van Zuid-Holland - Water
Onder de identiteitsdragers van Zuid-Holland valt het Hollandse Plassengebied met de plassen waaronder het Braassemermeer. Middels het boezemstelsel staan de plassen in verbinding met elkaar. Het Hollands Plassengebied kent soms een hoge (water)recreatiedruk en dit zal in de toekomst vermoedelijk toenemen. Het tekort aan ligplaatsen leidt tot ontwikkeling van nieuwe jachthavens. Verdichting van de oevers vindt plaats door recreatieve ontwikkelingen, woonboten en nieuwbouw. Door de klimaatverandering zullen mogelijk ingrepen gedaan worden in en om de watergangen om de veiligheid blijvend te waarborgen. Het voorliggende plan ziet toe op sloop en nieuwbouw van een vrijstaande woning aan de rand van het Braassemermeer en het plangebied krijgt een kwaliteitsimpuls.
 
Conclusie
Met de beoogde ontwikkeling zijn er geen belemmeringen vanuit de Omgevingsvisie. De ruimtelijke kwaliteit verbetert en er wordt aangesloten bij de gebiedsprofielen. De beoogde herontwikkeling past binnen de Omgevingsvisie en is in lijn met de provinciale ambities.  
3.2.2 Omgevingsverordening Zuid-Holland
Tegelijk met de Omgevingsvisie is de Omgevingsverordening op 1 februari 2023 in werking getreden. De Omgevingsverordening omvat in aanvulling op de Omgevingsvisie toetsbare criteria waaraan planvorming moet voldoen. 
  
Ruimtelijke kwaliteit
In artikel 6.9 lid 5 van de Omgevingsverordening is opgenomen dat een bestemmingsplan, onder de volgende voorwaarden ten aanzien van ruimtelijke kwaliteit, kan voorzien in een nieuwe ruimtelijke ontwikkeling:
  1. de ruimtelijke ontwikkeling past binnen de bestaande gebiedsidentiteit, voorziet geen wijziging op structuurniveau, past bij de aard en schaal van het gebied en houdt rekening met de relevante richtpunten ruimtelijke kwaliteit, zodanig dat de ruimtelijke kwaliteit per saldo ten minste gelijk blijft. In dit geval is er sprake van inpassen;
  2. de ruimtelijke ontwikkeling past binnen de bestaande gebiedsidentiteit, maar veroorzaakt wijziging op structuurniveau. Een dergelijke ontwikkeling wordt alleen toegestaan mits de ruimtelijke kwaliteit per saldo ten minste gelijk blijft door zorgvuldige inbedding van de ontwikkeling in de omgeving, rekening houdend met de relevante richtpunten ruimtelijke kwaliteit. In dit geval is er sprake van aanpassen;
  3.  de ruimtelijke ontwikkeling past niet binnen de bestaande gebiedsidentiteit. Een dergelijke ontwikkeling wordt uitsluitend toegestaan mits de ruimtelijke kwaliteit van de nieuwe ontwikkeling is gewaarborgd door een integraal ontwerp. Daarin wordt behalve aan de ruimtelijke kwaliteit van het gehele gebied ook aandacht besteed aan de fysieke en visuele overgang naar de omgeving en de fasering in ruimte en tijd en wordt ook rekening gehouden met de relevante richtpunten ruimtelijke kwaliteit. In dit geval is er sprake van transformeren.
Ten aanzien van ruimtelijke kwaliteit is sprake van een vorm van inpassen (sub a). De ontwikkeling maakt een nieuwe vrijstaande woning mogelijk. Daarmee past de ontwikkeling bij de aard en schaal van het gebied. De relevante richtpunten van de kwaliteitskaart en gebiedsprofielen zijn in toelichting paragraaf 3.1.2 toegelicht. Hieruit blijkt dat het beoogde plan aan de relevante richtpunten van de kwaliteitskaart en gebiedsprofielen voldoet.
 
Beschermingscategorie 3 buitengebied
Het plangebied is gelegen in het buitengebied, waarvoor beschermingscategorie 3 geldt. In artikel 6.9a van de Omgevingsverordening is opgenomen dat een bestemmingsplan voor een locatie in het buitengebied in een ruimtelijke ontwikkeling kan voorzien, mits de openheid en het groene karakter van het landschap niet onevenredig worden aangetast. In de motivering moeten de volgende kwaliteiten betrokken worden:
  1. de openheid en de structuur van het landschap en de vergezichten daarin;
  2. de relatie tussen stad en buitengebied en het onderscheid daartussen;
  3. het groene karakter, het type functies en de kenmerkende verschijningsvormen van het landschap;
  4. de herkenbaarheid van de ontstaansgeschiedenis van het landschap.
De voorgenomen ontwikkeling heeft betrekking op het saneren van de bestaande vrijstaande woning en het realiseren van een nieuwe vrijstaande woning. Het plangebied ligt aan de rand van het Braassemermeer waar diverse vrijstaande woningen staan. Aangezien het voorliggende plan enkel het vervangen van een bestaande woning betreft wordt er geen afbreuk gedaan aan de openheid en structuur van het landschap. Het voorliggende plan is passend binnen het gebied.
 
Ladder voor duurzame verstedelijking
In artikel 6.10 van de Omgevingsverordening is opgenomen dat een bestemmingsplan dat een nieuwe stedelijke ontwikkeling mogelijk maakt, moet voldoen aan de volgende eisen:
  1. de toelichting van het bestemmingsplan gaat in op de toepassing van de ladder voor duurzame verstedelijking overeenkomstig artikel 3.1.6, tweede, derde en vierde lid van het Besluit ruimtelijke ordening;
  2. indien in de behoefte aan de stedelijke ontwikkeling niet binnen bestaand stads- en dorpsgebied kan worden voorzien en voor zover daarvoor een locatie groter dan 3 hectare nodig is, wordt gebruik gemaakt van locaties die zijn opgenomen in het Programma ruimte. 
Bij het voorgenomen plan is in toelichting paragraaf 3.1.3 ingegaan op de ladder voor duurzame verstelijking. Hieruit is gebleken dat de beoogde ontwikkeling niet wordt aangemerkt als een nieuwe stedelijke ontwikkeling. Omdat bij onderhavig initiatief geen sprake is van een nieuwe stedelijke ontwikkeling is sub b niet van toepassing. Bovendien betreft het hier geen locatie groter dan 3 hectare. Er wordt daarmee voldaan aan artikel 6.10 van de Omgevingsverordening. 
 
Bescherming recreatietoervaartnet
In artikel 6.20 van de Omgevingsverordening is opgenomen dat een voor gronden waarbinnen een recreatieve vaarverbinding ligt, kan voorzien in nieuwe ruimtelijke ontwikkelingen voor zover:
  1. de ontwikkeling geen beperking oplevert van de recreatieve bevaarbaarheid van de vaarweg rekening houdend met het huidig gebruik; of
  2. de ontwikkeling is gericht op verbetering en versterking van de bevaarbaarheid of de recreatieve waarden van de vaarweg.
Het voorliggende plan is gelegen aan de rand van het Braassemermeer, waarbij de beoogde ingrepen zijn voorzien op bestaande gronden en de eventuele aanpassingen aan de kade geen beperkingen opleveren voor de recreatieve bevaarbaarheid van de vaarweg. Er wordt daarmee voldaan aan artikel 6.20 van de Omgevingsverordening.
 
Regionale waterkeringen
In artikel 6.22 van de Omgevingsverordening is opgenomen dat een bestemmingsplan voor gronden waarop een regionale waterkering ligt, deze waterkering als zodanig bestemt. In het voorliggende plan wordt er ten aanzien van de waterkering een dubbelstemming opgenomen om de waterkering te borgen. Er wordt daarmee voldaan aan artikel 6.22 van de Omgevingsverordening.
 
Conclusie 
Gezien het voorgaande kan er geconcludeerd worden dat er geen belemmeringen zijn voor het voorgenomen plan vanuit de Omgevingsverordening.
3.3 Regionaal beleid
3.3.1 Regionale Structuurvisie Holland Rijnland 2020
De Regionale Structuurvisie van Holland Rijnland geeft de grote lijnen weer van de door gewenste richting en duidt de grote projecten aan waar de deelnemende gemeenten aan willen werken. De Regionale Structuurvisie is een product van intensieve samenwerking van de vijftien gemeenten in Holland Rijnland. Ze laat zien hoe sterk de gezamenlijke gemeenten kunnen zijn en hoe belangrijk het is dat deze met elkaar de toekomst ingaan. De visie levert een bijdrage aan het denken over de toekomst van de Randstad.
 
In deze Regionale Structuurvisie wordt inzicht gegeven in de ruimtelijke ontwikkelingen tot 2020 (met doorkijk naar 2030). Op basis van deze visie worden de onderstaande zeven kernbeslissingen geformuleerd. Deze kernbeslissingen geven de belangrijkste keuzes weer:
  1. Holland Rijnland is een top woonregio;
  2. Leiden vervult een regionale centrumfunctie;
  3. Concentratie stedelijke ontwikkeling;
  4. Groen-blauwe kwaliteit staat centraal;
  5. Het Groene Hart, de Bollenstreek en Duin, Horst en Weide blijven open;
  6. Twee speerpunten voor economische ontwikkeling: kennis en Greenports;
  7. Verbetering van de regionale bereikbaarheid.
Planspecifiek
Voorliggend plan is voornamelijk gerelateerd aan de punten 1 en 4 van de kernbeslissingen. De ontwikkeling betreft sloop en nieuwbouw van de bestaande vrijstaande woning. Het initiatief levert een (beperkte) bijdrage aan de woonbehoefte binnen de regio. Tevens wordt de groen-blauwe structuur niet uit het oog verloren. Gesteld kan worden dat het initiatief aansluit op de Regionale Structuurvisie Holland Rijnland 2020.
3.3.2 Regionale Woon Agenda 2019-2023 Holland-Rijnland
Op dit moment ligt de concept Regionale Woonagenda van de regio Holland Rijnland ter inzage. In de regio Holland Rijnland is het tekort aan woningen groot, zijn de prijzen van koophuizen hoog en lopen de wachttijden voor sociale huurwoningen op. Een grote diversiteit aan doelgroepen wacht met smart op een geschikte woning, met een steeds grotere groep die tussen wal en schip valt. De gemeenten in Holland Rijnland maken al jaren met elkaar afspraken over hoeveel woningen we bouwen, waar deze gebouwd worden, wat voor woningen dat zijn en voor wie deze beschikbaar komen. Die afspraken worden vastgelegd in de Regionale Woonagenda.
  
Door het groeiend aantal huishoudens en de gestegen huizenprijzen versterkt door inflatie en stijgende rentestanden zal de druk op de woningmarkt alleen maar verder toenemen. Zeker in het betaalbare segment. Daarom wil de regio stevig inzetten op het realiseren van nieuwe (betaalbare) woningen. Dit vraagt om doorpakken op de volgende thema's: Woningbouw versnellen, betaalbaar wonen, mensen tussen wal en schip en Langer (en weer) zelfstandig wonen.
 
Het uitgangspunt van de woonagenda is de regionale omgevingsagenda 2040. Hierin zijn de volgende kaders en afspraken over woningbouw vastgelegd.
  • Primair doorzetten van de ontwikkeling langs de verstedelijkingsas Oost-West van Katwijk tot Zoeterwoude tot 2030. De stedelijke as wordt vanaf het einde van dit decennium doorgetrokken tot Alphen aan den Rijn. Secundair richten op lopende kleinschaligere woningbouwlocaties in middelgrote kernen;
  • Buiten de verstedelijkingsas zorgen voor veelkleurige en vitale kernen zodat deze leefbaar blijven en meegaan in de ontwikkeling. Beperkt woningen toevoegen in en direct langs de randen van de kernen blijft dus mogelijk, met name gericht op de lokale behoefte;
  • Realiseren van een prettig woon- en leefklimaat met diverse woon- en leefmilieus;
  • Woningen aanbieden voor diverse doelgroepen en woonwensen, in zowel grote als kleinere kernen, met elk een eigen identiteit en woningaanbod;
  • Diverse woonmilieus in een compacte setting realiseren met gezonde vergroening van de bebouwde omgeving als uitgangspunt;
  • We kiezen voor geconcentreerde verstedelijking om het landschap en de dorpsranden te sparen. De woningbehoefte is alleen binnenstedelijk in subregio’s noord en oost niet altijd meer op te lossen. Daar waar het binnenstedelijk of binnen de kern niet meer past, benutten we daarom de kansen die er liggen om de kwaliteit van de stads- en dorpsranden te versterken via landschappelijke verstedelijking. Door middel van “landschapsplannen” kunnen harde overgangen tussen kern en landschap verbeterd worden. 
Sinds de vorige Woonagenda is de regio erin geslaagd goede stappen te zetten in de woningproductie. In de periode van 2015 tot 2020 zijn 14.384 woningen toegevoegd aan de woningvoorraad (inclusief sloop). De provinciale Woningbehoefteraming uit 2021 valt echter aanzienlijk hoger uit dan de laatste raming uit 2019. Dit betekent dat er versneld moet worden. De woningbehoefte komt uit op 30.500 nieuw woningen vergeleken met 22.800 in de vorige prognose. Voor de periode 2021-2030 zijn plannen voor circa 36.500 woningen (direct uitvoerbaar, passende kansen en plannen op basis van afspraken). Voor de Subregio Oost geldt een woningbehoefteraming van circa 9.500 – 11.000 woningen.
 
Planspecifiek
Het plangebied is gelegen in de subregio Oost, ten zuiden van het woongebied Braassemerland aan de Noordkade 21 in Roelofarendsveen. In de periode van 2022 tot 2030 is er in subregio Oost een woningbehoefte van circa 9.500 - 11.000 woningen. Voor de lange termijn (tot 2030) is de planvoorraad onvoldoende. Er zijn dan ook aanvullende plannen nodig om aan de behoefte te voldoen. De ontwikkeling van één woning ter vervanging van een bestaande sterk verouderde woning levert hier een beperkte bijdrage aan. Geconcludeerd kan worden dat het beoogde plan in lijn is met de Regionale Woon Agenda van Holland-Rijnland.
3.4 Gemeentelijk beleid
3.4.1 Omgevingsvisie Kaag en Braassem
De gemeenteraad van de gemeente Kaag en Braassem heeft op 26 oktober 2020 de 'Omgevingsvisie Kaag en Braassem' vastgesteld. De omgevingsvisie betreft de strategische langetermijnvisie voor de fysieke leefomgeving van Kaag en Braassem. De toekomst van de fysieke leefomgeving wordt daarbij vanuit een integraal perspectief benaderd. Dat wil zeggen dat sociale, economische en fysieke vraagstukken in samenhang worden beschouwd en vervolgens vertaald naar de fysieke leefomgeving. De omgevingsvisie gaat in op verschillende thema's zoals recreatie, natuur, onderwijs, mobiliteit, gezondheid, wonen, landbouw, economie en duurzaamheid. Verder is de gemeente in vier gebiedstypen ingedeeld. Voor de verschillende gebieden zijn de kenmerken en waarden bepaald, zodat het duidelijk is hoe zo’n gebied eruit ziet en wat het beeld voor de toekomst is.
    
De gemeente Kaag en Braassem wil met de omgevingsvisie samenwerking verder uitdragen en stimuleren tussen organisaties, inwoners en de gemeente. Samenwerken vanuit een gezamenlijke verantwoordelijkheid, maar ieder vanuit zijn eigen rol. Doordat de rol van de gemeente steeds verschillend is, wordt per opgave, per thema of per taak aangegeven welke rol de gemeente zal innemen.
 
In de omgevingsvisie staan de volgende thema's centraal:
  • energie & grondstoffen in Kaag en Braassem;
  • natuur, water en lucht in Kaag en Braassem;
  • wonen in Kaag en Braassem;
  • gezonde economische ontwikkeling in Kaag en Braassem;
  • sociaal Kaag en Braassem;
  • veilig Kaag en Braassem. 
In de omgevingsvisie wordt per thema aangegeven wat de gewenste beweging is en wat men wenst te bereiken. Dit resulteert vervolgens in specifieke uitgangspunten voor een bepaald thema.
 
Gebiedstypen
Naast de bovengenoemde thema's wordt in de omgevingsvisie de gemeente opgedeeld in vier verschillende soorten gebieden, namelijk het buitengebied, glastuinbouwgebieden, bedrijventerreinen en de kernen. Binnen ieder gebiedstype spelen verschillende belangen en thema’s. In de omgevingsvisie wordt per gebiedstype een beschrijving van het gebied gegeven met de doelen en de specifieke uitgangspunten waarbinnen deze doelen bereikt moeten worden.
       
Planspecifiek
De planlocatie maakt onderdeel uit van het gebiedstype 'Kernen'. De gemeente Kaag en Braassem bestaat uit 11 kernen. De kernen zijn de gebieden binnen de gemeente waar onder andere veel ruimte is voor winkels, horeca, sport en wonen. Iedere kern heeft een eigen identiteit met eigen karakteristieken. Voor het bouwen van nieuwe woningen ligt de voorkeur bij inbreiding. Echter betekent dit niet dat uitbreiding geen mogelijkheid is. Het opwekken van energie op een duurzame manier is een aandachtspunt van de gemeente, bijvoorbeeld door het plaatsen van zonnepanelen op daken. Daarnaast is klimaatadaptatie een belangrijk thema binnen dit gebiedstype. Het toevoegen van verharding kan overlast veroorzaken bij extreem weer. Er dient dan ook nagedacht te worden over de te nemen maatregelen.
 
De kern Roelofarendsveen valt naast Oude Wetering, Leimuiden en Woubrugge onder 'centrum dorps'. In deze kernen is een relatief hoog voorzieningenniveau en inwonersaantal. De gemeente wil hier het voorzieningenniveau in stand houden en verder opwaarderen. Daarnaast moet er een passende woning voor iedereen beschikbaar zijn in een veilige, leefbare en klimaatadaptieve woon- en werkomgeving.
 
Het voorliggende initiatief maakt de sloop en nieuwbouw van een vrijstaande woning mogelijk. De nieuwe woning levert een bijdrage aan de woningbehoefte in de gemeente. De kern Roelofarendsveen wordt verder versterkt.
 
Gesteld kan worden dat het initiatief past binnen de ambities van de Omgevingsvisie Kaag en Braassem.
 
3.4.2 Welstandsnota
De raad van Kaag en Braassem heeft ervoor gekozen om voor de cultuurhistorisch waardevolle gebieden welstandsbeleid op te stellen. Het gaat dan om de beschermde dorpsgezichten, de monumenten en de omliggende percelen van monumenten. In de welstandsnota zijn deze gebieden en objecten beschreven. Het individuele belang van de initiatiefnemer wordt gewogen ten opzichte van het collectieve belang.
 
Op de welstandskaart staan de percelen aangeduid waarvoor een welstandstoets geldt. De rest van de gemeente is welstandsluw. Welstandsluw betekent dat een eventuele excessenregeling wel van toepassing is. De excessenregeling maakt het mogelijk een bouwwerk dat “in ernstige strijd is met redelijke eisen van welstand” alsnog aan een welstandstoets onderhevig kan zijn. Burgemeesters en wethouders kunnen de eigenaar van een bouwwerk aanschrijven om deze strijdigheid op te heffen.
 
Planspecifiek
Navolgende afbeelding toont een uitsnede van de welstandskaart van de gemeente Kaag en Braassem in de kern Roelofarendsveen.
 
Uitsnede Welstandskaart Roelofarendsveen, gemeente Kaag en Braassem (plangebied zwart omkaderd) (bron: welstandsnota Kaag en Braassem).
 
Uit de gegevens van de Welstandskaart blijkt dat het plangebied gelegen is in welstandsluw gebied. Een welstandstoets voor de beoogde ontwikkeling is daarom niet aan de orde. Tevens bevindt er zich geen monumentale bebouwing binnen het plangebied. Gesteld kan worden dat de Welstandsnota geen belemmeringen veroorzaakt voor de beoogde ontwikkeling.
4 Milieu- en omgevingsaspecten
In dit hoofdstuk zal, in het kader van een goede ruimtelijke ordening, worden aangetoond dat de nieuwe ontwikkeling past binnen de uitwerkingsregels van het globale bestemmingsplan en past binnen de geldende milieuwetgeving. Hiermee wordt aangetoond dat onderhavig project uitgaat van een goede ruimtelijke ordening en uitvoerbaar is.
4.1 Milieueffectrapportage
De milieueffectrapportage (m.e.r.) is een hulpmiddel om bij diverse procedures het milieubelang een volwaardige plaats in de besluitvorming te geven. Een m.e.r. is verplicht bij de voorbereiding van plannen en besluiten van de overheid over initiatieven en activiteiten van publieke en private partijen die belangrijke nadelige gevolgen voor het milieu kunnen hebben. De m.e.r. is wettelijk verankerd in hoofdstuk 7 van de Wet milieubeheer. Naast de Wet milieubeheer is het Besluit m.e.r. belangrijk om te kunnen bepalen of bij de voorbereiding van een plan of een besluit de m.e.r.-procedure moet worden doorlopen. Bij toetsing aan het Besluit m.e.r. zijn er vier mogelijkheden:
  1. het plan of besluit is direct m.e.r.-plichtig;
  2. het plan of besluit bevat activiteiten uit kolom 1 van onderdeel D, en ligt boven de (indicatieve) drempelwaarden, zoals beschreven in kolom 2 ‘gevallen’, van onderdeel D. Het besluit moet eerst worden beoordeeld om na te gaan of er sprake is van m.e.r.-plicht: het besluit is dan m.e.r.-beoordelingsplichtig. Voor een plan in kolom 3 ‘plannen’ geldt geen m.e.r-beoordelingsplicht, maar direct een (plan-)m.e.r.-plicht;
  3. het plan of besluit bevat wel de activiteiten uit kolom 1, maar ligt beneden de drempelwaarden, zoals beschreven in kolom 2 ‘gevallen’, van onderdeel D: er dient in overleg met de aanvrager van het bijbehorende plan of besluit beoordeeld te worden of er aanleiding is voor het uitvoeren van een m.e.r.-beoordeling (als sprake is van een besluit) of het direct uitvoeren van een m.e.r. (als sprake is van een plan). Deze keuze wordt uiteindelijk in het bijbehorende plan of besluit gemotiveerd;
  4. de activiteit(en) of het betreffende plan en/of besluit worden niet genoemd in het Besluit m.e.r.: er geldt geen m.e.r.-(beoordelings)plicht.
Sinds 16 mei 2017 geldt er een directe werking van het Europees recht. Daarom is per 7 juli 2017 het gewijzigde Besluit m.e.r. in werking getreden. In de gewijzigde Besluit m.e.r. staat de nieuwe procedure voor de vormvrije m.e.r.-beoordeling. Voor elke aanvraag, waarbij een vormvrije m.e.r.-beoordeling aan de orde is, moet:
  • door de initiatiefnemer een aanmeldingsnotitie worden opgesteld;
  • het bevoegd gezag binnen 6 weken een m.e.r.-beoordelingsbesluit nemen. Dit besluit hoeft niet in de Staatscourant gepubliceerd te worden;
  • de initiatiefnemer het (vormvrije) m.e.r.-beoordelingsbesluit bij de vergunningaanvraag voegen (Artikel 7.28 Wet milieubeheer).
De artikelen 7.16 tot en met 7.20a Wm zijn in de nieuwe wetgeving voor alle in het Besluit m.e.r. genoemde activiteiten van de D-lijst van toepassing.
  
Planspecifiek
Het bestemmingsplan bevat een activiteit die genoemd wordt in onderdeel D van de bijlage bij het Besluit milieueffectrapportage. Het realiseren van woningen valt onder onderdeel D.11.2 'De aanleg, wijziging of uitbreiding van een stedelijk ontwikkelingsproject met inbegrip van de bouw van winkelcentra of parkeerterreinen', (drempelwaarde: een aangesloten gebied dat 2.000 woningen of meer omvat) van het Besluit milieueffectrapportage. Daarmee valt voorliggend plan onder sub c: het plan wordt wel genoemd maar voldoet niet aan de drempelwaarde. Dit betekent dat het Besluit milieueffectrapportage niet van toepassing is en dat er geen m.e.r.-(beoordelings)plicht geldt.
  
Daarnaast blijkt uit uitspraken van de Afdeling Bestuursrechtspraak van de Raad van State (ECLI:NL:RBOBR:2017:3537, 29 juni 2017) en (ECLI:NL:RVS:2018:2414, 18 juli 2018) dat het antwoord op de vraag of er sprake is van een (wijziging van een) stedelijk ontwikkelingsproject in de zin van het Besluit milieueffectrapportage afhangt van de concrete omstandigheden van het geval, waarbij onder meer aspecten als aard en omvang van de voorziene wijzigingen van de stedelijke ontwikkeling een rol spelen. Daarbij mogen de bestaande planologische mogelijkheden worden meegewogen bij de vraag of er sprake is van een stedelijke ontwikkeling. Ook het opvullen van een open gebied in een stedelijke omgeving en het uitbreiden van bebouwing zijn, op basis van een uitspraak 12 juni 2019 (ECLI:NL:RVS:2019:1879, 12 juni 2019) en een tussenuitspraak van de AbRvS (ECLI:NL:RVS:2019:1668, 22 mei 2019) niet zonder meer te beschouwen als een stedelijke ontwikkeling zoals bedoeld in het Besluit m.e.r.
 
Met het voorliggende plan blijft de bestemming van het plangebied ongewijzigd en blijft het een woonbestemming, waarbij de bestaande woning wordt gesloopt en er een nieuwe woning wordt gerealiseerd. Gelet op de omvang van het plangebied, en de realisatie van slechts één woning ter vervanging van de bestaande woning, wijzigt het totale bouwvolume niet substantieel. 
 
Gelet op het voorgaande kan gesteld worden dat er hier geen sprake is van een stedelijke ontwikkeling zoals bedoeld in onderdeel D.11.2 van de bijlage van het Besluit m.e.r. Een (vormvrije) m.e.r.-beoordelingsbesluit is niet noodzakelijk.
 
4.2 Milieu
4.2.1 Bodem
In het kader van een ruimtelijk plan dient aangetoond te worden dat de kwaliteit van de bodem en het grondwater in het plangebied in overeenstemming zijn met het beoogde gebruik. De bodemkwaliteit kan namelijk van invloed zijn op de beoogde functie van het plangebied. Indien sprake is van een functiewijziging zal er soms een bodemonderzoek moeten worden uitgevoerd in het plangebied. Ontwikkelingen kunnen pas plaatsvinden als de bodem waarop deze ontwikkelingen plaatsvinden geschikt is of geschikt is gemaakt voor het beoogde doel.
 
Bij een bestemmingswijziging is een bodemonderzoek slechts noodzakelijk, indien de bestemmingswijziging tevens een wijziging naar een gevoeliger bodemgebruik inhoudt. Bij een bestemmingswijziging die een gelijkblijvend of minder gevoelig bodemgebruik oplevert, is de bodemkwaliteit in het kader van de bestemmingswijziging niet relevant en is bodemonderzoek niet noodzakelijk.
 
Planspecifiek
Om aan te tonen dat de kwaliteit van de bodem en het grondwater geschikt is voor het beoogde gebruik van de gronden voor wonen, is een verkennend bodemonderzoek noodzakelijk. Op basis van dit onderzoek kan het volgende worden geconcludeerd:
 
Bodemonderzoek
Ten behoeve van de voorgenomen ontwikkeling is een verkennend bodemonderzoek uitgevoerd (Dijk geotechniek en milieu b.v., 27-10-2022, zie bijlagen bij toelichting bijlagen 1a en 1b).
 
Uit de analyseresultaten blijkt dat de toplaag van de bodem ter plaatse van de voorziene nieuwbouwlocatie over het algemeen licht verontreinigd is met meerdere zware metalen en/of PAK. De onderlaag is licht verontreinigd met meerdere zware metalen. Uitzondering hierop betreft plaatselijk (ten zuiden van de bungalow) aangetroffen zandlaag, welke enkel als gevolg van de AS3000-correctie licht verontreinigd is met PCB. Voor een nadere toelichting inzake het licht verhoogde gehalte wordt verwezen naar paragraaf 4.4 uit het rapport. De vastgestelde gehaltes aan zware metalen en/of PAK worden vaker vastgesteld in van oudsher bewoonde gebieden en kunnen derhalve gezien worden als verhoogd achtergrondgehalte.
 
Het grondwater ter plaatse is licht verontreinigd met barium en naftaleen. Dergelijke licht verhoogde gehalten worden vaker in het grondwater vastgesteld en worden doorgaans veroorzaakt door natuurlijke ophoping. Daarnaast is het grondwater als gevolg van de AS3000-correctie licht verontreinigd met som xylenen en som dichlooretheen. Voor een nadere toelichting inzake het licht verhoogde gehalte wordt verwezen naar paragraaf 4.4 uit het rapport.
 
Met betrekking tot de vastgestelde milieuhygiënische kwaliteit van de bodem ter plaatse kan worden geconcludeerd dat er, gezien de geringe mate aan verontreiniging, milieuhygiënisch gezien geen bezwaar is tegen de toekomstige nieuwbouw van een woning. De beslissing of op deze locatie gebouwd mag worden ligt uiteindelijk bij de gemeente (bouwverordening).
 
Conclusie
Op basis van het bodemonderzoek kan geconcludeerd worden dat het aspect bodem geen belemmeringen veroorzaakt voor de beoogde ontwikkeling.
4.2.2 Geluid
De mate waarin het geluid, het woonmilieu mag belasten, is geregeld in de Wet geluidhinder (Wgh). De kern van de wet is dat geluidsgevoelige objecten worden beschermd tegen geluidhinder uit de omgeving. In de Wgh worden de volgende objecten beschermd (artikel 1 Wgh):
  • woningen;
  • geluidsgevoelige terreinen (woonwagenstandplaatsen, ligplaatsen voor woonschepen);
  • andere geluidsgevoelige gebouwen (onderwijsgebouwen, ziekenhuizen, verpleeghuizen, verzorgingstehuizen, psychiatrische inrichtingen, kinderdagverblijven).
Het beschermen van deze geluidsgevoelige objecten gebeurt aan de hand van vastgestelde zoneringen. De belangrijkste geluidsbronnen die in de Wet geluidhinder worden geregeld zijn: industrielawaai, wegverkeerslawaai en spoorweglawaai. Verder gaat deze wet onder meer ook in op geluidwerende voorzieningen en geluidbelastingkaarten en actieplannen.
 
Planspecifiek
Wonen is een geluidgevoelige functie in het kader van de Wet geluidhinder. Het plangebied is gelegen aan de Noordkade, dit is een weg in het buitengebied van Roelofarendsveen, die ter plaatse enkel geschikt is voor fietsers en bestemmingsverkeer. Dit betekent dat de verkeersintensiteit zeer beperkt is en daarmee ook de geluidsbelasting van wegverkeer. Het is daarmee aannemelijk dat de voorkeursgrenswaarde ter plaatse van de woning niet overschreden zal worden. Het uitvoeren van een akoestisch onderzoek is niet noodzakelijk. Dit blijkt ook uit gegevens van de Atlasleefomgeving, waarbij er geen geluidbelasting van wegverkeer is ter plaatse van het plangebied. Dit is weergegeven op de onderstaande afbeelding,
 
 
Geluidbelasting wegverkeer, plangebied zwart omcirkeld (bron: Atlasleefomgeving.nl).
 
Conclusie
Het aspect geluid vormt geen belemmering voor de voorgenomen ontwikkeling.
4.2.3 Luchtkwaliteit
In de Wet Milieubeheer gaat paragraaf 5.2 over luchtkwaliteit en staat ook wel bekend als de ‘Wet luchtkwaliteit’. Deze wet maakt onderscheid tussen 'kleine' en 'grote' projecten. Kleine projecten dragen 'niet in betekenende mate' (NIBM) bij aan de verslechtering van de luchtkwaliteit. Een paar honderd grote projecten dragen juist wel 'in betekenende mate' bij aan de verslechtering van de luchtkwaliteit. Het gaat hierbij vooral om bedrijventerreinen en infrastructuur (wegen).
 
Wat het begrip 'in betekenende mate' precies inhoudt, staat in een de algemene maatregel van bestuur ‘Niet in betekenende mate bijdragen’ (Besluit NIBM). Op hoofdlijnen komt het erop neer dat 'grote' projecten die jaarlijks meer dan 3% bijdragen aan de jaargemiddelde norm voor fijnstof (PM10) en stikstofdioxide (NO2) (1,2 µg/m³) een 'betekenend' negatief effect hebben op de luchtkwaliteit. 'Kleine' projecten die minder dan 3% bijdragen, kunnen doorgaan zonder toetsing. Dat betekent bijvoorbeeld dat lokale overheden een woonwijk van minder dan 1.500 woningen niet hoeven te toetsen aan de normen voor luchtkwaliteit. Deze kwantitatieve vertaling naar verschillende functies is neergelegd in de 'Regeling niet in betekenende mate bijdragen'.
 
Een belangrijk onderdeel voor de verbetering van de luchtkwaliteit is het Nationale Samenwerkingsprogramma Luchtkwaliteit (NSL). Binnen dit NSL, dat sinds 1 augustus 2009 in werking is, werken het Rijk, de provincies en gemeenten samen om de Europese eisen voor luchtkwaliteit te realiseren.
 
Vanaf 1 januari 2015 geldt er ook een grenswaarde voor een kleinere fractie van fijnstof namelijk PM2,5. De grenswaarde voor PM2,5 bedraagt 25 µg/m³. Gezien het grote verschil tussen de grenswaarde en de achtergrondconcentratie zullen overschrijdingen van deze grenswaarde niet vaak voorkomen. Het blijkt dat als de grenswaarde voor PM10 niet wordt overschreden, er geen overschrijding van de grenswaarde voor PM2,5 zal zijn. Het is de verwachting dat door het schoner worden van de autotechniek de concentratie van met name stikstofdioxide in de toekomst nog verder afneemt.
    
Planspecifiek
De voorgenomen ontwikkeling bestaat uit de sloop en nieuwbouw van één woning. Het project is aan te merken als een project van 'niet in betekenende mate'. Toetsing van het aspect luchtkwaliteit is daardoor, op grond van artikel 4 van de Regeling NIBM, niet noodzakelijk.
 
In het kader van een goede ruimtelijke ordening is met behulp van de 'Atlas leefomgeving' gekeken naar de luchtkwaliteit in en rondom het plangebied. De achtergrondconcentraties over 2020 van fijnstof (PM10 en PM2,5) en stikstofdioxide (NO2) nabij het plangebied bedragen respectievelijk maximaal 15,9 μg/m³, 8,4 μg/m³ en 13,1 µg/m³. Daarmee wordt ruimschoots voldaan aan de wettelijke grenswaarden van 40 μg/m³ voor fijnstof PM10 en stikstofdioxide en 25 µg/m³ voor fijnstof PM2,5.
 
Het aspect luchtkwaliteit vormt geen belemmering voor de uitvoerbaarheid van de voorgenomen ontwikkeling.
 
4.2.4 Milieuzonering
Het aspect milieuzonering gaat in op de invloed die bedrijven kunnen hebben op hun omgeving. Deze invloed is afhankelijk van de afstand tussen een gevoelige bestemming en de bedrijvigheid. Milieugevoelige bestemmingen zijn gebouwen en terreinen die naar hun aard bestemd zijn voor het verblijf van personen gedurende de dag of nacht of een gedeelte daarvan (bijvoorbeeld woningen). Daarnaast kunnen ook landelijke gebieden en/of andere landschappen belangrijk zijn bij een zonering tot andere, minder gevoelige, functies zoals bedrijven.
 
Bij een ruimtelijke ontwikkeling kan sprake zijn van reeds aanwezige bedrijvigheid en van nieuwe bedrijvigheid. Milieuzonering zorgt er voor dat nieuwe bedrijven een juiste plek in de nabijheid van de gevoelige functie krijgen en dat de (nieuwe) gevoelige functie op een verantwoorde afstand van bedrijven komen te staan. Doel hiervan is het waarborgen van de veiligheid en het garanderen van de continuïteit van de bedrijven alsmede een goed klimaat voor de gevoelige functies.
 
Milieuzonering beperkt zich tot milieuaspecten met een ruimtelijke dimensie zoals: geluid, geur, gevaar en stof. De mate waarin de milieuaspecten gelden en waaraan de milieucontour wordt vastgesteld, is voor elk type bedrijvigheid verschillend. De Vereniging van Nederlandse Gemeenten (VNG) geeft sinds 1986 de publicatie 'Bedrijven en Milieuzonering' uit. In deze publicatie (editie 2009) is een lijst opgenomen, met daarin de minimale richtafstanden tussen een gevoelige bestemming en bedrijven. Indien van deze richtafstanden afgeweken wordt dient een nadere motivatie gegeven te worden waarom dat wordt gedaan.
 
Het belang van milieuzonering wordt steeds groter aangezien functiemenging steeds vaker voorkomt. Hierbij is het motto: 'scheiden waar het moet, mengen waar het kan'. Het scheiden van milieubelastende en milieugevoelige bestemmingen dient twee doelen:
  • het reeds in het ruimtelijk spoor voorkomen of zoveel mogelijk beperken van hinder en gevaar bij gevoelige bestemmingen;
  • het bieden van voldoende zekerheid aan de milieubelastende activiteiten (bijvoorbeeld bedrijven) zodat zij de activiteiten duurzaam, en binnen aanvaardbare voorwaarden, kunnen uitoefenen.
Planspecifiek
Met de beoogde ontwikkeling wordt een bestaande vrijstaande woning vervangen aan de Noordkade 21. Het plangebied is omgeven door gronden met de bestemming 'Wonen', 'Bedrijf', 'Recreatie' en 'Verkeer'. Vanwege de diversiteit aan bestemmingen rond het plangebied kan het plangebied en de omgeving worden getypeerd als 'gemengd gebied'. Zoals in de VNG publicatie (editie 2009) staat vermeld, kan bij het type gemengd gebied de richtafstand met één afstandsstap worden verlaagd. De dichtstbijzijnde bedrijven/inrichtingen zijn:
 
AdresInrichting SBI-2008MilieucategorieRichtafstand gemengd gebied Afstand tot plangebied
Noordkade 25
Visverwerkingsbedrijf 
Palingrokerij
1024.2 200 m28 m
Noordkade 19Recreatie verblijven-210 m20 m
Noorderhem 2Jachthaven9323.130 m150 m
 
Uit bovenstaande tabel blijkt dat voor twee van de drie bedrijven in de omgeving wordt voldaan aan de richtafstanden. Deze omliggende bedrijven worden niet belemmerd door het plan en ter plaatse van de woning is sprake van een aanvaardbaar woon- en leefklimaat.
 
Ten aanzien van de palingrokerij aan de Noordkade 25 wordt echter niet voldaan aan de richtafstand. Een visverwerkingsbedrijf waar vis wordt gerookt heeft in gemengd gebied namelijk een richtafstand van 200 m. In het voorliggende geval is de afstand tot het plangebied circa 28 m. Met het voorliggende plan is er sprake van de sloop van een bestaande vrijstaande woning, waarvoor in de plaats een nieuwe woning wordt gerealiseerd. Er worden geen nieuwe woningen toegevoegd binnen de richtafstand. Feitelijk blijft de bestaande situatie daarmee gehandhaafd. De nieuwe woning wordt daarnaast voorzien van betere isolatie, ramen en kierafdichtingen ten opzichte van de bestaande (te slopen) woning, wat een verbetering ter plaatse zal betekenen. Het bedrijf wordt door het plan tevens niet beperkt in zijn bedrijfsvoering, omdat er al een woning (Noordkade 23) op kortere afstand is gelegen van het bedrijf.
 
Verder moet worden nagegaan dat de beoogde ontwikkeling geen milieubelastende activiteiten omvat. In onderhavig plan gaat het om de ontwikkeling van een nieuwe woning, ter plaatse van een reeds bestaande woonfunctie aan de Noordkade. Hier zullen geen activiteiten plaatsvinden die een belemmering vormen voor de omliggende (woon)functies.
 
Conclusie
Het aspect milieuzonering vormt geen belemmering voor de uitvoerbaarheid van de voorgenomen ontwikkeling.
4.2.5 Externe veiligheid
Sommige activiteiten brengen risico's op zware ongevallen met mogelijk grote gevolgen voor de omgeving met zich mee. Externe veiligheid richt zich op het beheersen van deze risico's. Het gaat daarbij om onder meer de productie, opslag, transport en het gebruik van gevaarlijke stoffen. Dergelijke activiteiten kunnen een beperking opleggen aan de omgeving. Door voldoende afstand tot de risicovolle activiteiten aan te houden kan voldaan worden aan de normen. Aan de andere kant is de ruimte schaars en het rijksbeleid erop gericht de schaarse ruimte zo efficiënt mogelijk te benutten. Het ruimtelijk beleid en het externe veiligheidsbeleid moeten dus goed worden afgestemd. De wetgeving rond externe veiligheid richt zich op de volgende risico’s:
  • risicovolle (Bevi-)inrichtingen;
  • vervoer gevaarlijke stoffen door buisleidingen;
  • vervoer gevaarlijke stoffen over weg, water of spoor.
Daarnaast wordt er in de wetgeving onderscheid gemaakt tussen de begrippen kwetsbaar en beperkt kwetsbaar en plaatsgebonden risico en groepsrisico.
 
Planspecifiek
Voor zover bekend zijn er geen risicobronnen in de directe buurt van de locatie aanwezig. Er kan van uitgegaan worden dat er geen nader onderzoek naar het plaatsgebonden en/of groepsrisico vereist is.
 
Navolgende afbeelding toont een uitsnede van de risicokaart ter plaatse van het plangebied.
 
Uitsnede risicokaart (plangebied zwart omcirkeld, bron: risicokaart.nl). 
 
Transport gevaarlijke stoffen
Op een afstand van ca. 1,5 km ten westen van het plangebied is de rijksweg A4 gelegen. De A4 is een weg waar gevaarlijke stoffen over worden vervoerd, vanwege het transport van toxische vloeistoffen van categorie LT3 heeft de A4 een effectgebied van meer dan 4 km. Er geldt een plaatsgebonden risicocontour 10-6 van 0 m en een groepsrisicocontour 10-7 van 65 m. Een risicoberekening is echter niet verplicht gezien de ruime afstand tot de A4. Uit eerdere berekeningen (onder andere Risicoberekening BP Bedrijventerrein A4 (ODWH, 2013) en Risicoberekening BP Sotaweg 134-150 (ODWH, 2013)) is bovendien bekend, dat het groepsrisico van de A4 ter hoogte van Roelofarendsveen kleiner is dan 0,1 maal de oriëntatiewaarde van het groepsrisico.
 
Bij een incident met toxische stoffen op de A4 kan een giftige gaswolk ontstaan die de locatie kan bereiken. Bij een dergelijke calamiteit zijn geen bijzondere voorzieningen nodig om de omvang van een ramp te beperken en om de aanwezige personen veiligheid te bieden. Het sluiten van ramen, deuren en ventilatieroosters, en zoveel mogelijk uitschakelen van ventilatiesystemen na alarmering door de Veiligheidsregio of bericht van NL-Alert, is daarvoor voldoende.
  
Inrichtingen
In de omgeving van het plangebied zijn geen risicovolle inrichtingen aanwezig. Ook worden er met onderhavig initiatief geen risicovolle inrichtingen mogelijk gemaakt.
 
Buisleidingen
Uit het raadplegen van de risicokaart blijkt dat er in de directe omgeving van het plangebied geen buisleidingen zijn gelegen. Op meer dan 2,3 km zijn enkele aardgasleidingen gelegen, maar gezien de grote afstand is het niet te verwachten dat dit een belemmering is.
 
Gezien het voorgaande vormt het aspect externe veiligheid geen belemmering voor de voorgenomen ontwikkeling.
4.2.6 Ecologie
Bij ruimtelijke ingrepen dient rekening te worden gehouden met de natuurwaarden ter plaatse. Daarbij wordt onderscheid gemaakt tussen gebiedsbescherming en soortenbescherming. Gebiedsbescherming kan volgen uit de aanwijzing van een gebied. Wat betreft soortenbescherming is per 1 januari 2017 de Flora- en faunawet samen met de Boswet en Natuurbeschermingswet vervangen door de Wet natuurbescherming (Wnb). Onder de Wet natuurbescherming zijn de tabellen 1, 2 en 3 vervallen waarin de beschermde soorten zijn opgenomen. Tevens zijn er circa 200 soorten niet langer beschermd en zijn enkele bedreigde soorten toegevoegd. De soortenbescherming binnen de Wet natuurbescherming is opgedeeld in de volgende beschermingsregimes: Vogelrichtlijnsoorten, Habitatrichtlijnsoorten en andere soorten. Voor alle beschermde soorten geldt een ontheffingsplicht. Het bevoegd gezag (de provincie) kan voor de soorten die zijn opgenomen in het ‘beschermingsregime andere soorten’ vrijstellingbesluit nemen en hierin onderscheid maken tussen meer en minder strikt beschermde soorten.
 
Daarnaast geldt voor iedereen in Nederland altijd, dus ook los van het voorliggende beoogde ruimtelijke project, dat de zorgplicht nageleefd moet worden bij het verrichten van werkzaamheden. Voor menig soort geldt dat indien deze zorgplicht nagekomen wordt een bepaald beoogd project uitvoerbaar is.
 
Planspecifiek
Het voorliggende plan betreft de sloop van een bestaande woning en het oprichten van een nieuwe woning. Dergelijke ingrepen kunnen leiden tot negatieve effecten op beschermde soorten en/of beschermde gebieden. Om de mogelijke gevolgen van de beoogde ontwikkeling in kaart te brengen is een quickscan flora en fauna uitgevoerd ('Quickscan natuurwetgeving, Geonius, d.d. 13 januari 2023), zie bijlagen bij toelichting bijlage 2. In de quickscan is het plangebied onderzocht op de aanwezigheid van beschermde flora en fauna en de mogelijke effecten van de werkzaamheden en het vigerend beleid.
 
Soortenbescherming
Uit het ecologisch onderzoek blijkt dat door de ingreep negatieve effecten optreden voor de volgende (mogelijk) aanwezige soorten:
  • Vogels zonder een jaarrond beschermd nest – diverse soorten;
  • Grondgebonden zoogdieren – algemene grondgebonden zoogdieren;
  • Amfibieën – rugstreeppad en algemene amfibieën.
Het is mogelijk om alle negatieve effecten met mitigerende maatregelen op voorhand te voorkomen. Als deze maatregelen toepasbaar en uitvoerbaar zijn binnen de ingreep is de ingreep niet ontheffing plichtig in het kader van soortenbescherming Wnb. De aanwezige algemene soorten grondgebonden zoogdieren en amfibieën zijn vrijgesteld in het kader van ruimtelijke ingrepen. Daarmee vervalt de noodzaak voor mitigerende maatregelen. Wel blijft voor deze soorten (en alle andere soorten) de zorgplicht gelden. Deze maatregelen betreffen voor:
 
Vogels zonder een jaarrond beschermd nest
Negatieve effecten treden op door de werkzaamheden in het broedseizoen uit te voeren/starten. Voer de sloopwerkzaamheden en het kappen van vegetatie daarom uit in de periode 15 augustus tot 1 maart. Werkzaamheden kunnen echter wel in het broedseizoen gestart worden, enkel na inspectie en vrijgave door een daartoe deskundig ecoloog. Deze inspectie heeft als doel vast te stellen of nestplaatsen binnen de verstoringsafstand van de werkzaamheden liggen. Mocht dit zo blijken te zijn, dienen de werkzaamheden aldaar uitgesteld te worden tot na het natuurlijk verlaten van het nest.
 
Amfibieën
Negatieve effecten treden op enkel wanneer het plangebied gedurende de werkzaamheden geschikt wordt voor de rugstreeppad en de soort vervolgens het plangebied koloniseert. Dit kan voorkomen worden door in het plangebied wegkruipplekken te voorkomen en ontstaan van waterpoelen in grondopslag of rijsporen te voorkomen.
 
Is dit niet mogelijk, dan kunnen aanvullende maatregelen noodzakelijk zijn door te werken buiten het actieve seizoen van deze soorten. Dit resulteert in een werkbare periode van september t/m maart. Ook kunnen maatregelen genomen worden om de betreding van soorten te voorkomen in het plangebied door een amfibieënscherm te plaatsen rondom de werkzaamheden.
 
Zorgplicht
Maatregelen voor alle soorten in het kader van de zorgplicht dienen te allen tijde genomen te worden. Dit geldt ook voor de in het plangebied vrijgestelde soorten. Een inzicht van deze maatregelen is hieronder gegeven. Dit betreft echter enkel een indicatie en kan afhankelijk van de manier van ingreep en daadwerkelijke invulling van de werkwijze aangevuld worden.
  • Voer de werkzaamheden altijd in één richting uit naar aanwezige groenstructuren toe zodat eventueel aanwezige dieren altijd kunnen vluchten naar schuilplaatsen. Vermijd daarbij het werken naar water of wegen toe.
  • Maak gebruik van vooraf bepaalde aan- en afvoerroutes die voor zoverre mogelijk lopen over al aanwezige verharding om het omliggende habitat zoveel als mogelijk te behouden.
  • Voer de werkzaamheden uit met daartoe bestemde machines en opgeleid personeel om onnodige schade aan de omgeving door foute toepassing ervan te voorkomen.
  • De werkzaamheden worden in de periode april tot en met half oktober alleen overdag uitgevoerd in verband met vliegroutes van vleermuizen.
  • Er wordt geen gebruik gemaakt van tijdelijke verlichting of verlichting van de nieuwbouwwoning.
Gebiedsbescherming
De planlocatie maakt geen onderdeel uit van een Natura 2000-gebied, het Natuurnetwerk Nederland, Belangrijk Weidevogelgebied, strategische reservering natuur of karakteristieke landschapselementen. Gelet op de aard van de werkzaamheden, de afstand tot de gebieden en de beoogde situatie is van externe werking op omliggende Natura 2000-gebieden geen sprake. Op de planlocatie zijn geen houtopstanden aanwezig waarvoor bij kap een melding- of vergunningplicht geldt.
 
Stikstofdepositie
Een plan mag geen significante gevolgen hebben voor een Natura 2000-gebied. Gelet op de afstand tot de dichtst bijgelegen Natura 2000-gebieden 'Nieuwkoopse Plassen & De Haeck' circa 11 km, kan alleen stikstofdepositie nog een verstorende factor zijn. Door Geonius is een AERIUS-berekening uitgevoerd ('Notitie AERIUS-berekening Noordkade 21', Geonius, d.d. 13 februari 2023), zie bijlagen bij toelichting bijlage 3.
 
Uit de berekening voor de realisatiefase blijkt dat er geen sprake is van een toename van stikstofdepositie op gevoelige habitattypen ter plaatse van de omliggende Natura 2000-gebieden. Uit de AERIUS-berekening voor de gebruiksfase blijkt dat voor de omliggende Natura 2000-gebieden de stikstofdepositietoename onder de grenswaarde van 0,00 mol/ha/jr. blijft. Daarmee worden er ook geen significante gevolgen verwacht voor een Natura 2000-gebied vanwege dit plan. Er is geen vergunning nodig ingevolge de Wet natuurbescherming, onderdeel Gebiedsbescherming.
     
Conclusie
De beoogde ruimtelijke ingreep leidt niet tot overtreding van verbodsbepalingen omtrent soortenbescherming, gebiedsbescherming en houtopstanden in het kader van de Wet natuurbescherming. Tijdens de uitvoering van de werkzaamheden dient rekening te worden gehouden met de gestelde mitigerende maatregelen ten aanzien van amfibieën. Daarnaast dienen voor de (mogelijke) aanwezigheid van zoogdieren en algemene broedvogels (in het kader van algemene zorgplicht) maatregelen te worden getroffen om effecten te voorkomen. Het voorliggende plan is daarmee uitvoerbaar met betrekking tot het aspect ecologie.
4.3 Water
De waterhuishouding is van groot belang binnen de ruimtelijke ordening. Door verstandig om te gaan met het water kan verdroging en wateroverlast (waaronder ook risico van overstromingen e.d.) voorkomen worden en de kwaliteit van het water hoog gehouden worden.
 
Op rijksniveau en Europees niveau zijn de laatste jaren veel plannen en wetten gemaakt met betrekking tot water. De belangrijkste hiervan zijn het Waterbeleid voor de 21e eeuw, de Waterwet en het Nationaal Waterplan. 
 
Waterbeleid voor de 21e eeuw
De Commissie Waterbeheer 21e eeuw heeft in augustus 2000 advies uitgebracht over het toekomstige waterbeleid in Nederland. De adviezen van de commissie staan in het rapport ‘Anders omgaan met water, Waterbeleid voor de 21e eeuw’ (WB21). De kern van het rapport WB21 is dat water de ruimte moet krijgen, voordat het die ruimte zelf neemt. In het Waterbeleid voor de 21e eeuw worden twee principes (drietrapsstrategieën) voor duurzaam waterbeheer geïntroduceerd:
  • vasthouden, bergen en afvoeren: dit houdt in dat overtollig water zoveel mogelijk bovenstrooms wordt vastgehouden in de bodem en in het oppervlaktewater. Vervolgens wordt zo nodig het water tijdelijk geborgen in bergingsgebieden en pas als vasthouden en bergen te weinig opleveren wordt het water afgevoerd.
  • schoonhouden, scheiden en zuiveren: hier gaat het erom dat het water zoveel mogelijk schoon wordt gehouden. Vervolgens worden schoon en vuil water zoveel mogelijk gescheiden en als laatste komt het zuiveren van verontreinigd water aan bod. 
Waterwet
Centraal in de Waterwet staat een integraal waterbeheer op basis van de ‘watersysteembenadering’. Deze benadering gaat uit van het geheel van relaties binnen watersystemen. Denk hierbij aan de relaties tussen waterkwaliteit, -kwantiteit, oppervlakte- en grondwater, maar ook aan de samenhang tussen water, grondgebruik en watergebruikers. Het doel van de Waterwet is het integreren van acht bestaande wetten voor waterbeheer. Door middel van één watervergunning regelt de wet het beheer van oppervlaktewater en grondwater en de juridische implementatie van Europese richtlijnen, waaronder de Kaderrichtlijn Water. Via de Waterwet gelden verschillende algemene regels. Niet alles is onder algemene regels te vangen en daarom is er de integrale watervergunning. In deze integrale watervergunning zijn zes vergunningen uit eerdere wetten (inclusief keurvergunning) opgegaan in één aparte watervergunning.
 
Nationaal Water Programma
Op basis van de Waterwet is het Nationaal Water Programma vastgesteld door het kabinet. Het Nationaal Water Programma geeft op hoofdlijnen aan welk beleid het Rijk in de periode 2022-2027 voert om te komen tot een duurzaam waterbeheer. Het Nationaal Water Programma richt zich op bescherming tegen overstromingen, beschikbaarheid van voldoende en schoon water en de diverse vormen van gebruik van water. Het geeft maatregelen die in de periode 2022-2027 genomen moeten worden om Nederland ook voor toekomstige generaties veilig en leefbaar te houden en de kansen die water biedt te benutten.
 
Waterbeheerprogramma 2022 - 2028
Voor de planperiode 2022 - 2028 is het waterbeheerprogramma (WBP6) van het hoogheemraadschap van Rijnland van toepassing. Met het programma WBP6 maakt Rijnland duidelijk hoe het, in samenwerking met de omgeving, invulling geeft aan zijn wettelijke taken en zijn eigen ambities voor de periode 2022 - 2028. In het WBP zijn voor een aantal onderdelen verschillende doelen geformuleerd. Het gaat daarbij in hoofdlijnen om het volgende: 
  1. Waterveiligheid: Rijnland beschermt het beheergebied, de inwoners en bedrijven tegen overstromingen vanuit zee, de rivieren en het regionale watersysteem.
  2. Voldoende water: Samen met de omgeving zorgt Rijnland voor voldoende water. Niet te veel, niet te weinig, maar precies genoeg voor inwoners, bedrijven en natuur.
  3. Schoon water: Rijnland zorgt voor een goede ecologische en chemische waterkwaliteit, afgestemd op de verschillende functies en versterkt de biodiversiteit.
  4. Waterketen: Rijnland zuivert afvalwater van huishoudens en bedrijven. Hiermee draagt het waterschap bij aan een goede volksgezondheid, een goede waterkwaliteit en een gezonde leefomgeving.
  5. Rijnland duurzaam: Samen met de omgeving zet Rijnland in op duurzaam werken door de kringloop van water, energie en grondstoffen zoveel mogelijk te sluiten
  6. Rijnland klimaatadaptief: Rijnland maakt het beheergebied klimaatadaptief door de inrichting van de omgeving aan te passen aan de gevolgen van klimaatverandering.
  7. Financiën: Rijnland voert een financieel beleid dat betaalbaar en volhoudbaar is, maar ook uitvoerbaar en uitlegbaar.
Het watersysteem is niet de verantwoordelijkheid van Rijnland alleen. Ook inwoners, bedrijven, overheden en andere organisaties hebben er invloed op en zijn dus medeverantwoordelijk. Denk bijvoorbeeld aan woningbouw, dempen of graven van watergangen of activiteiten waarbij stoffen vrijkomen die de waterkwaliteit beïnvloeden. Rijnland zorgt ervoor dat ook anderen doen waar ze verantwoordelijk voor zijn. Daarvoor geven ze voorlichting en advies, verlenen we vergunningen en controleren we of iedereen zich aan de afspraken houdt.
 
Rijnland staat initiatieven zoveel mogelijk toe, vanuit het principe 'ja, tenzij' dat ze sinds 2015 hanteren. Door minder regels en meer ruimte voor initiatieven voldoet Rijnland aan één van de belangrijkste uitgangspunten van de nieuwe Omgevingswet.
 
Keur en Uitvoeringsregels
Op grond van de Waterwet is het hoogheemraadschap bevoegd via een eigen verordening, de Keur, regels te stellen aan handelingen die het watersysteem beïnvloeden. Denk hierbij aan handelingen in of nabij:
  • waterkeringen (onder andere duinen, dijken en kaden);
  • watergangen (onder andere kanalen, rivieren, sloten, beken);
  • andere waterstaatswerken (o.a. bruggen, duikers, stuwen, sluizen en gemalen);
  • de bodem van kwelgevoelige gebieden.
Maar ook aan:
  • het onttrekken en lozen van grondwater;
  • het aanbrengen van verhard oppervlak.
De Keur vermeldt expliciet welke handelingen vergunningsplichtig zijn en welke aan algemene regels of aan de zorgplicht moeten voldoen. In de Uitvoeringsregels die bij de Keur horen is dit nader uitgewerkt.
 
Hemelwater
Indien een toename van het verhard oppervlak plaatsvindt, dient de initiatiefnemer een verhard oppervlak ter grootte van minimaal 15 % van het nieuw aan te leggen verhard oppervlak te reserveren voor extra open water (bij een toename aan verhard oppervlak: vanaf 500 m² tot 5.000 m²). Het nieuwe open water moet aangesloten worden op het bestaande watersysteem. Uitgangspunt is dat de aanleg van verhard oppervlak geen negatieve gevolgen mag hebben op het watersysteem.
 
In overleg met het hoogheemraadschap is het mogelijk om de compensatie-eis voor verhard oppervlak te verminderen door alternatieve maatregelen toe te passen.
 
Riolering en afkoppelen
Voor zover het bestemmingsplan nieuwe ontwikkelingen mogelijk maakt, is het van belang dat er met het hoogheemraadschap afstemming plaatsvindt over het omgaan met afvalwater en hemelwater. Overeenkomstig het rijksbeleid gaat het hoogheemraadschap uit van een voorkeursvolgorde voor de omgang met deze waterstromen. Deze houdt in dat allereerst geprobeerd moet worden het ontstaan van (verontreinigd) afvalwater te voorkomen, bijvoorbeeld door het toepassen van niet uitlogende bouwmaterialen en het vermijden van vervuilende activiteiten op straat zoals auto’s wassen en chemische onkruidbestrijding. Vervolgens is het streven vuil water te scheiden van schoon water, bijvoorbeeld door het afkoppelen van hemelwaterafvoeren van gemengde rioolstelsels. De laatste stap in de voorkeursvolgorde is het zuiveren van het afvalwater. De doelmatigheid daarvan wordt vergroot door het scheiden van de schone en de vuile stromen.
 
De gemeente kan gebruik maken van deze voorkeursvolgorde bij de totstandkoming van het gemeentelijk rioleringsplan (GRP), waarin de uiteindelijke afweging wordt gemaakt en waarbij doelmatigheid van de oplossing centraal staat.
 
Zorgplicht en preventieve maatregelen voor hemelwater
Voor de verwerking van hemelwater wijst het hoogheemraadschap op de zorgplicht en op het nemen van preventieve maatregelen. Het verdient aanbeveling daar waar mogelijk aandacht te besteden aan maatregelen bij de bron. Preventie heeft de voorkeur boven ‘end-of-pipe’ maatregelen. Uitgangspunt is dat het te lozen hemelwater geen significante verslechtering van de kwaliteit van het ontvangende oppervlaktewater mag veroorzaken en emissie van vervuilende stoffen op het oppervlaktewater waar mogelijk wordt voorkomen door bijvoorbeeld:
  • duurzaam bouwen;
  • het toepassen berm- of bodempassage;
  • toezicht en controle tijdens de aanlegfase en handhaving tijdens de beheerfase ter voorkoming van verkeerde aansluitingen;
  • het regenwaterriool uit te voeren met (straat)kolken voorzien van extra zand- slibvang of zakputten (putten met verdiepte bodem) op tactische plekken in het stelsel;
  • adequaat beheer van straatoppervlak, straatkolken en zakputten (straatvegen en kolken/putten zuigen);
  • het toepassen van duurzaam onkruidbeheer;
  • de bewoners, gebruikers en beheerders voor te lichten over de werking van de riolering en een juist gebruik hiervan;
  • het vermijden van vervuilende activiteiten op straat zoals auto’s wassen en repareren en chemische onkruidbestrijding.
Daar waar ondanks de zorgplicht en de preventieve maatregelen het te lozen hemelwater naar verwachting een aanmerkelijk negatief effect heeft op de oppervlaktewaterkwaliteit, kan in overleg tussen gemeente en waterschap gekozen worden voor aanvullende voorzieningen, een verbeterd gescheiden stelsel of - als laatste keus - aansluiten op het gemengde stelsel. Ook kan de gemeente in overleg met het hoogheemraadschap kiezen voor een generieke ‘end-of-pipe’ aanpak. Deze keuze moet dan expliciet gemaakt worden in het GRP.
 
Planspecifiek
Het plangebied van voorgenomen ontwikkeling heeft een oppervlakte van circa 950 m². In de huidige situatie bevindt zich een vrijstaande woning en een bijgebouw in het plangebied. Voorts is een deel van het plangebied verhard.
 
Watercompensatie
In de toekomstige situatie wordt de bestaande bebouwing (woning en bijgebouwen) gesloopt en wordt er een nieuwe vrijstaande woning gerealiseerd met bijbehorende parkeervoorzieningen en ontsluiting. De navolgende tabel geeft een balans weer van de huidige en toekomstige situatie:
 
 Bestaande situatie (m²)Toekomstige situatie (m²)
Water--
Groen--
Verharding: parkeren en woning/bebouwing  
394,7
630,1
Kavels onverhard553476,6
Totaal 947,71.106,7
 
Uit voorgaande tabel volgt dat er als gevolg van de ontwikkeling een toename aan verharding plaatsvindt van circa 236 m². Omdat geen toename aan verharding plaatsvindt van meer dan 500 m² is watercompensatie niet noodzakelijk.
 
Naast de ontwikkeling van een nieuwe woning wordt een deel van de bestaande grond afgegraven ten behoeve van een insteekhaven. Het voornemen is om de hoeveelheid afgegraven grond aan de westzijde van het plangebied extra aan te leggen. Wanneer er meer land gecreëerd wordt, houdt dit in dat er water gedempt wordt, voor deze werkzaamheden is een watervergunning nodig. Het verlies aan bergend vermogen dient gecompenseerd te worden. Dit kan onder andere gedaan worden door water aan te leggen dat minimaal even groot is als het oppervlak van de demping. De extra grond aan de westzijde is 115 m² en wordt één op één gecompenseerd door de aanleg van de insteekhaven die ook een oppervlak van 115 m² heeft. Dit is ook weergegeven op de afbeelding in toelichting paragraaf 2.2. Het voorliggende initiatief is besproken met het hoogheemraadschap. Er is aangegeven dat mits er voldaan wordt aan de compensatieeisen en de benodigde watervergunning wordt verkregen, er geen belemmeringen zijn te verwachten. Ten aanzien van deze werkzaamheden zal er een watervergunning worden aangevraagd bij het hoogheemraadschap van Rijnland.
 
Waterkering
Uit het raadplegen van de legger van het hoogheemraadschap van Rijnland blijkt dat de gronden van het plangebied zijn gelegen in de beschermingszone van een regionale waterkering. Binnen deze zones mag niet gebouwd worden zonder watervergunning. Bouwen is mogelijk, mits er geen onevenredige aantasting plaatsvindt van het doelmatig functioneren van de waterkering. Aan de gronden die binnen de beschermingszone liggen is in het voorliggende bestemmingsplan de dubbelbestemming 'Waterstaat - Waterkering' toegekend. Tevens dient er voor deze werkzaamheden een watervergunning verkregen te worden.
 
Waterafvoer
Het afvalwatersysteem van de ontwikkeling wordt zodanig vormgegeven dat het regenwater kan worden afgekoppeld. Het overige vuilwater wordt afgevoerd middels de riolering.
 
Conclusie
Geconcludeerd kan worden dat het aspect water geen belemmeringen vormt voor het beoogde initiatief.
  
4.4 Archeologie en Cultuurhistorie
4.4.1 Archeologie
In 1992 is in Valletta (Malta) het Europees Verdrag inzake de bescherming van het archeologisch erfgoed (Verdrag van Malta) ondertekend. Het Verdrag van Malta voorziet in bescherming van het Europees archeologisch erfgoed onder meer door de risico's op aantasting van dit erfgoed te beperken. Per 1 juli 2016 is de Erfgoedwet ingegaan totdat de Omgevingswet in werking treedt. De Erfgoedwet bundelt bestaande wet- en regelgeving voor behoud en beheer van het cultureel erfgoed in Nederland. Onder andere de Monumentenwet is hierin opgegaan. Op basis van de Erfgoedwet zijn mogelijke (toevals)vondsten bij het verrichten van werkzaamheden in de bodem altijd beschermd. Artikel 5.10 lid 1 van de Erfgoedwet stelt namelijk: 'Degene die anders dan bij het verrichten van opgravingen een vondst doet waarvan hij weet dan wel redelijkerwijs moet vermoeden dat het een archeologische vondst betreft, meldt dit zo spoedig mogelijk bij Onze Minister'.
 
Planspecifiek
De gemeente Kaag en Braassem heeft een archeologische beleidskaart op laten stellen voor haar gebied. Navolgende afbeelding toont een uitsnede van de archeologische beleidskaart ter plaatse van het plangebied.
 
Uitsnede archeologische beleidskaart (plangebied rood omkaderd) (bron gemeente Kaag en Braassem 2013).
 
Conform de archeologische beleidskaart van de gemeente Kaag en Braassem ligt het plangebied grotendeels in het gebied aangeduid als 'Middelhoge verwachting'. Hierbij geldt dat bij bodemingrepen groter dan 2.500 m² en dieper dan 30 cm het uitvoeren van een archeologisch onderzoek noodzakelijk is. Er dient aangetoond te worden dat er op de betrokken locatie geen archeologisch waardevolle objecten worden verwacht. Met de voorgenomen ontwikkeling wordt de bestaande vrijstaande woning gesloopt en wordt een nieuwe vrijstaande woning gerealiseerd, tevens wordt een deel van de grond afgegraven en verplaatst. De oppervlakte van de gronden waar deze ingrepen op voorzien zijn is ruim kleiner dan 2.500 m². Derhalve is er geen archeologisch onderzoek nodig.
 
Conclusie
Op basis van het voorgaande kan geconcludeerd worden dat ten aanzien van de realisatie van een nieuwe woning geen aanvullende maatregelen noodzakelijk zijn voor wat betreft het behoud van archeologische waarden. Wel geldt als er tijdens de graafwerkzaamheden toch zaken aan het licht komen, deze op grond van de Erfgoedwet 2016, artikel 5.10, bij de gemeente dienen te worden gemeld.
    
4.4.2 Cultuurhistorie
Goede ruimtelijke ordening betekent dat er een integrale afweging plaatsvindt van alle belangen die effect hebben op de kwaliteit van de ruimte. Een van die belangen is de cultuurhistorie. Het bestemmingsplan is een belangrijk instrument om cultuurhistorische waarden in een gebied te beschermen.
 
Per 1 januari 2012 is in het kader van de modernisering van de monumentenzorg (MOMO) in het Besluit ruimtelijke ordening van het Rijk opgenomen dat gemeenten bij het maken van bestemmingsplannen rekening moeten houden met cultuurhistorische waarden.
 
Planspecifiek
De planlocatie maakt geen deel uit van een karakteristiek gebied en de bestaande bebouwing betreft geen karakteristiek pand of rijksmonument. Ook zijn er geen andere cultuurhistorische elementen aanwezig binnen het plangebied. In de omgeving van de planlocatie bevinden geen (gemeentelijk) monumenten. 
 
Gezien het voorgaande dient te worden geconcludeerd dat het aspect cultuurhistorie geen belemmering vormt voor de uitvoerbaarheid van het voorgenomen plan.
4.5 Verkeer en parkeren
Onderdeel van een goede ruimtelijke ordening is het effect van een beoogd nieuw project op de verkeersstructuur en het parkeren in en rondom het plangebied.
4.5.1 Verkeer
Voor het maken van een inschatting van de hoeveelheid autoverkeer dat wordt gegenereerd bij ruimtelijke ontwikkelingen, zijn kencijfers verkeersgeneratie ontwikkeld. Onder verkeersgeneratie wordt hierbij verstaan de totale hoeveelheid gemotoriseerd verkeer (exclusief openbaar vervoer) die gedurende een gekozen tijdsperiode naar de beoogde ontwikkeling toe rijdt en hiervan wegrijdt.
 
Het nationale kennisplatform voor infrastructuur, verkeer, vervoer en openbare ruimte (CROW) geeft in publicatie 381 'Toekomstbestendig parkeren, van parkeerkencijfers naar parkeernormen' kencijfers voor verkeersgeneratie. In de richtlijnen wordt onderscheid gemaakt op basis van de functie van de ontwikkeling (wonen, bedrijf, etc.) en op basis van de locatiekenmerken. Zodoende kan bij ruimtelijke ontwikkelingen voor vrijwel elke locatie een goed beeld worden verkregen wat de totale verkeersaantrekkende werking bedraagt.
 
Planspecifiek
De ontwikkeling van een vrijstaande woning brengt verkeersbewegingen met zich mee. Om de verkeersgeneratie te bepalen is de CROW-publicatie 381 'Toekomstbestendig parkeren' geraadpleegd. Het plangebied bevindt zich in 'rest bebouwde kom' en 'weinig stedelijk' gebied. In navolgende tabel staat de verkeersgeneratie conform de CROW-publicatie 381 weergegeven.
 
Soort woningAantalCROW verkeersgeneratieTotale verkeersgeneratie
Koop, huis, vrijstaand18,2 (gemiddelde)8,2
Totaal18,28,2
 
De totale verkeersgeneratie die de nieuwe vrijstaande woning met zich meebrengt bedraagt 8,2 verkeersbewegingen per etmaal. De planlocatie is ontsloten via de Noordkade en er wordt een nieuwe inrit naar het plangebied aangelegd. De nieuwe woning vervangt de bestaande vrijstaande woning, er zal daarom geen sprake zijn van een toename van het aantal verkeersbewegingen. Zodoende kan gesteld worden dat de verkeersgeneratie opgevangen kan worden met de huidige ontsluiting.
 
Geconcludeerd kan worden dat het aspect verkeer geen belemmeringen veroorzaakt voor de beoogde ontwikkeling.
 
4.5.2 Parkeren
Het benodigde of gewenste aantal parkeerplaatsen bij ruimtelijke ontwikkelingen kan worden bepaald op basis van parkeerkencijfers of op basis van parkeernormen. Parkeerkencijfers zijn op de praktijk gebaseerde cijfers van de verwachte parkeerbehoefte. Parkeernormen staan voor het aantal vereiste parkeerplaatsen per type bestemming. Op basis van deze parkeernormen wordt parkeerbeleid veelal vormgegeven.
 
Het nationale kennisplatform voor infrastructuur, verkeer, vervoer en openbare ruimte (CROW) geeft in publicatie 381 'Toekomstbestendig parkeren, van parkeerkencijfers naar parkeernormen' richtlijnen voor parkeernormen. In de richtlijnen wordt onderscheid gemaakt op basis van de functie van de ontwikkeling (wonen, bedrijf, etc.) en op basis van de locatiekenmerken. Zodoende kan bij ruimtelijke ontwikkelingen voor vrijwel elke locatie een goed beeld worden verkregen of voorzien wordt in voldoende (auto)parkeerplaatsen. Voorts voorziet de publicatie in minimale voorwaarden voor parkeervoorzieningen.
 
Planspecifiek
De gemeente Kaag en Braassem heeft de Nota parkeernormen 2018 opgesteld om voor de gehele gemeente de parkeernormen voor de komende jaren vast te leggen.
 
Soort woningAantalParkeernormTotaal aantal parkeerplaatsen
Grondgebonden, vrijstaand12,3 (gemiddelde)2,3
Totaal12,32,3
 
Zoals in bovenstaande tabel staat aangegeven moeten er met de ontwikkeling 2,3 parkeerplaatsen mogelijk gemaakt worden. Het plangebied beschikt over ruimte aan de wegkant, waar de nieuwe toegang tot het perceel komt, om het benodigde aantal parkeerplaatsen op eigen terrein te realiseren.
 
Het aspect parkeren vormt geen belemmering voor de beoogde ontwikkeling.
5 Juridische planbeschrijving
5.1 Algemeen
Voor het bestemmingsplan is gebruik gemaakt van de in de Wet ruimtelijke ordening opgenomen standaardvorm van de Standaard Vergelijkbare Bestemmingplannen 2012 (SVBP 2012).     
 
Dit bestemmingsplan bestaat uit een verbeelding, planregels en een toelichting. De verbeelding en de planregels vormen samen het juridisch bindende gedeelte van het bestemmingsplan. Beide planonderdelen dienen in onderlinge samenhang te worden bezien en toegepast. Op de verbeelding zijn de bestemmingen aangewezen. Aan deze bestemmingen zijn bouwregels en regels betreffende het gebruik gekoppeld.
 
De toelichting heeft geen rechtskracht, maar vormt niettemin een belangrijk onderdeel van het plan. De toelichting van dit bestemmingsplan geeft de beweegredenen, de onderzoeksresultaten en de beleidsuitgangspunten weer die aan het bestemmingsplan ten grondslag liggen. Ook is de toelichting van wezenlijk belang voor een juiste interpretatie en toepassing van het bestemmingsplan. Tot slot maakt een eventuele bijlage onlosmakelijk onderdeel uit van het bestemmingsplan.   
  
5.2 Verbeelding
Op de verbeelding worden de bestemmingen weergegeven, met daarbij andere bepalingen als gebiedsaanduidingen, bouwaanduidingen, bouwvlakken etc.. Voor de analoge verbeelding is gebruik gemaakt van een digitale ondergrond (Grootschalige Basiskaart en/of kadastrale kaart).
5.3 Planregels
De planregels zijn onderverdeeld in vier hoofdstukken. Hoofdstuk I bevat de inleidende regels voor het hele plangebied. Hoofdstuk II geeft de bestemmingsregels. Hoofdstuk III geeft vervolgens de algemene regels waaronder (mogelijke) flexibiliteitsbepalingen in de vorm van wijzigings- en afwijkingsbevoegdheden. In dit derde hoofdstuk kunnen belangrijke algemene bepalingen zijn opgenomen die van invloed zijn op het bepaalde in hoofdstuk II. Ten slotte regelt hoofdstuk IV de overgangs- en slotbepalingen. 
 
Voor de planregels is de gestandaardiseerde opbouw uit de SVBP 2012 gebruikt. In de planregels is een standaard hoofdstukindeling aangehouden die begint met 'Inleidende regels' (begrippen en wijze van meten), vervolgens met de 'Bestemmingsregels', de 'Algemene regels' (de regels die voor alle bestemmingen gelden) en de 'Overgangs- en slotregels'. In het tweede hoofdstuk, de Bestemmingsregels, staan de verschillende bestemming op alfabetische volgorde. Ook dit hoofdstuk kent een standaardopbouw:
  • Bestemmingsomschrijving (in elk bestemmingsplan);
  • Bouwregels (bestemmingsplanafhankelijk);
  • Nadere eisen (bestemmingsplanafhankelijk);
  • Afwijken van de bouwregels (bestemmingsplanafhankelijk);
  • Specifieke gebruiksregels (bestemmingsplanafhankelijk);
  • Afwijken van de gebruiksregels (bestemmingsplanafhankelijk);
  • Omgevingsvergunning voor het uitvoeren van een werk, geen bouwwerk zijnde, of van werkzaamheden (bestemmingsplanafhankelijk).
5.4 Wijze van bestemmen
Voorliggend bestemmingsplan bevat de volgende (dubbel)bestemmingen:
 
'Tuin'
Binnen deze bestemming zijn de gronden onder andere bestemd voor tuinen, groenvoorzieningen, parkeervoorzieningen, toegangswegen en inritten en insteekhavens. De bouwmogelijkheden binnen deze bestemming zijn beperkt.
 
'Water'
Binnen deze bestemming zijn de gronden onder andere bestemd voor waterberging, waterhuishouding, waterlopen en waterpartijen, oevers en oeververbindingen, steigers, groenvoorzieningen, nutsvoorzieningen, infiltratievoorzieningen, kruisingen en overbruggingen ten behoeve van verkeersdoeleinden.
 
'Wonen'
De bestemming 'Wonen' is opgenomen voor de woning binnen het plangebied. Woningen dienen binnen het bouwvlak gebouwd te worden. Het aantal wooneenheden mag niet meer bedragen dan met de aanduiding 'maximum aantal wooneenheden' is aangegeven. Ter plaatse van de 'specifieke bouwaanduiding - botenhuis' mag een gebouw of overkapping voor een botenhuis worden gerealiseerd. De gronden zijn tevens bestemd voor insteekhavens en andere bij de bestemming behorende voorzieningen zoals tuinen en erven, parkeervoorzieningen, waterlopen en waterpartijen en groenvoorzieningen. Naast de woonfunctie is ook kleinschalige bedrijvigheid in de vorm van een aan huis verbonden beroep toegestaan.
 
'Waarde - Archeologie 3'
De gronden aangewezen met deze dubbelbestemming zijn mede bestemd voor de bescherming en de veiligstelling van archeologische waarden.
6 Economische uitvoerbaarheid
Bij de voorbereiding van een bestemmingsplan dient, op grond van artikel 3.1.6 lid 1, sub f van het Bro, onderzoek plaats te vinden naar de (economische) uitvoerbaarheid van het plan. In principe dient bij vaststelling van een ruimtelijk besluit tevens een exploitatieplan vastgesteld te worden om verhaal van plankosten zeker te stellen. Op basis van ‘afdeling 6.4 grondexploitatie', artikel 6.12, lid 2 van de Wro kan de gemeenteraad bij het besluit tot vaststelling van het bestemmingsplan echter besluiten geen exploitatieplan vast te stellen indien:
  • het verhaal van kosten van de grondexploitatie over de in het plan of besluit begrepen gronden anderszins verzekerd is;
  • het bepalen van een tijdvak of fasering als bedoeld in artikel 6.13, eerste lid, onder c, 4°, onderscheidenlijk 5°, niet noodzakelijk is;
  • het stellen van eisen, regels, of een uitwerking van regels als bedoeld in artikel 6.13, tweede lid, onderscheidenlijk b, c of d, niet noodzakelijk is.
Planspecifiek
Het uitvoeren van het project heeft geen financiële gevolgen voor de gemeente. De financiële verantwoordelijkheid voor het project en het daarbij horende risico wordt volledig gedragen door de initiatiefnemer. De gemeente sluit ten behoeve van het project met de initiatiefnemer een overeenkomst, als bedoeld in artikel 6.4a Wet ruimtelijke ordening. In deze overeenkomst wordt onder andere de betaling van de eventuele tegemoetkoming in de planschade, die het nieuwe planologisch kader kan veroorzaken, geregeld. De kosten zijn dankzij de overeenkomst anderszins verzekerd waardoor een exploitatieplan niet nodig is. De economische uitvoerbaarheid van het plan is derhalve verzekerd.
7 Maatschappelijke uitvoerbaarheid
 
7.1 Algemeen
Bij de voorbereiding van een ontwerpbestemmingsplan dient op grond van artikel 3.1.6 lid 1 Wro sub c overleg te worden gevoerd als bedoeld in artikel 3.1.1 Bro. Op basis van het eerste lid van dit artikel wordt overleg gevoerd met waterschappen en met die diensten van provincie en Rijk die betrokken zijn bij de zorg voor de ruimtelijke ordening of belast zijn met de behartiging van belangen welke in het plan in het geding zijn. 
 
Een ontwerpbestemmingsplan dient conform afdeling 3.4 Awb gedurende 6 weken ter inzage gelegd worden. Hierbij is er de mogelijkheid voor een ieder om zienswijzen in te dienen op het plan. Na vaststelling door de Raad wordt het vaststellingsbesluit bekend gemaakt. Het bestemmingsplan ligt na bekendmaking 6 weken ter inzage. Gedurende deze termijn is er de mogelijkheid beroep in te dienen bij de Afdeling bestuursrechtspraak van de Raad van State. Het bestemmingsplan treedt vervolgens de dag na afloop van de tervisielegging in werking als er geen beroep is ingesteld. Is er wel beroep ingesteld dan treedt het bestemmingsplan ook in werking, tenzij naast het indienen van een beroepschrift ook om een voorlopige voorziening is gevraagd. De schorsing van de inwerkingtreding eindigt indien de voorlopige voorziening wordt afgewezen. De procedure eindigt met de uitspraak van de Afdeling bestuursrechtspraak van de Raad van State.
7.2 Verslag artikel 3.1.1 Bro overleg
In het kader van het wettelijk vooroverleg (artikel 3.1.1. Bro) is het voorliggende bestemmingsplan toegestuurd aan diverse vooroverleg partners. Er zijn twee vooroverlegreacties ontvangen van de Veiligheidsregio Hollands Midden en het Hoogheemraadschap van Rijnland.
 
Veiligheidsregio Hollands Midden
In de vooroverlegreactie van de veiligheidsregio is aangegeven dat er geen bijzonderheden zijn ten aanzien van de bereikbaarheid en dat het plangebied bereikbaar is voor de hulpdiensten. Het aanwezige openwater kan dienst doen voor de offensieve bluswaterwinning en aanvullende voorzieningen zijn niet benodigd. Daarnaast voldoen de te verwachte precentieve voorzieningen en opkomsttijd aan de uitgnagspunten van het Dekkingsplan. Naast het scenario ‘Gebouwbrand’ zijn er geen andere scenario’s relevant (denk hierbij aan externe veiligheid en overstromingsrisico). Ook heb ik geen aanvullingen/opmerkingen op de uitwerking van paragraaf 'Externe veiligheid' in de Toelichting. Daarnaast is het advies om de nieuwe woning te voorzien van de mogelijkheid om de (mechanische)ventilatie met een druk op de knop af te kunnen schakelen, met het oog op een externe calamiteit, een brand of toxische wolk in de omgeving. Dit advies wordt meegenomen bij de uitwerking van de woning. De vooroverlegreactie leidt niet to aanpassingen van het voorliggende plan.
 
Hoogheemraadschap van Rijnland
Het hoogheemraadschap van Rijnland heeft in de vooroverlegreactie aangegeven dat er rekening gehouden dient te worden met het leggerprofiel/profiel van vrije ruimte. Zolang er geen kelder onder de woning komt zal het leggerprofiel/profiel van vrije ruimte niet in geding komen. Wel dient er voor de werkzaamgeden een watervergunning aangevraagd te worden. Tevens zijn er aanbevelingen gedaan ten aanzien van het opgenomen beleid in de toelichting van het voorliggende plan, de meeste recente beleidsstukken zijn verwerkt in paragraaf 4.3. De vooroverlegreactie gaf aanleiding tot het aanpassen voor het voorliggende plan.
7.3 Verslag zienswijzen
In een separate bijlage worden te zijner tijd de eventuele zienswijzen op het ontwerpbestemmingsplan en de gemeentelijke reactie hierop opgenomen.