1.1 Aanleiding
Initiatiefnemer is voornemens om op de percelen achter de woning aan de Noordeinde 133 te Roelofarendsveen één vrijstaande, levensloopbestendigde en energie neutrale woning te realiseren en het bestaande kantoorgebouw om te bouwen tot twee appartementen. De percelen van het plangebied zijn kadastraal bekend onder de gemeente Alkemade, sectie K, percelen 2463, 4419 en 4420. Perceelnummer 4242 maakt geen onderdeel uit van het plangebied. Deze gronden hebben reeds de bestemming Groen en Water.
Voor de gronden van het plangebied geldt het bestemmingsplan 'Braassemerland 2019', vastgesteld door de raad van de gemeente Kaag en Braassem op 27 mei 2019. De gronden beschikken over een bedrijfsbestemming met de functieaanduiding 'specifieke vorm van bedrijf - aannemersbedrijf'. De ontwikkeling van de vrijstaande woning en het ombouwen van het bestaande kantoorgebouw naar twee appartementen is volgens het geldende bestemmingsplan niet toegestaan.
De gemeente Kaag en Braassem heeft op 18 april 2019 laten weten medewerking te willen verlenen aan het beoogde initiatief. Om de ontwikkeling mogelijk te maken dient een nieuw bestemmingsplan opgesteld te worden. Onderhavig bestemmingsplan voorziet hierin. Met dit bestemmingsplan komt de bedrijfsbestemming in milieucategorie 3.1 te vervallen en wordt de bestemming wonen opgenomen. Het opnemen van deze nieuwe bestemming heeft tevens als voordeel dat de achterliggende gronden, gelegen in het woningbouwgebied Braassemerland, ook in ontwikkeling genomen kunnen worden.
1.2 Ligging plangebied
Het plangebied van onderhavig initiatief is gelegen aan het bebouwingslint van het Noordeinde in het zuidelijke gedeelte van de kern Roelofarendsveen. De betreffende percelen zijn kadastraal bekend onder de gemeente Alkemade, sectie K, percelen 2463, 4419 en 4420.
Het plangebied is gelegen achter de woning aan het Noordeinde 133 te Roelofarendsveen. Ten oosten van het plangebied bevinden zich de gronden van het uit te werken woongebied 'de Poelen' wat onderdeel is van 'Braassemerland'.
Op de navolgende afbeeldingen staan de globale ligging en begrenzing van het plangebied weergegeven.
Globale ligging plangebied, rood omcirkeld (bron: Google Maps)
Globale begrenzing plangebied, rood omkaderd (bron: Google Maps)
1.3 Geldend bestemmingsplan
Voor de gronden van het plangebied geldt het bestemmingsplan 'Braassemerland 2019', vastgesteld door de raad van de gemeente Kaag en Braassem op 27 mei 2020. In het geldende bestemmingsplan zijn de gronden voorzien van de bestemming 'Bedrijf' met de aanduiding 'specifieke vorm van bedrijf - aannemersbedrijf'. Binnen deze bestemming is het uitoefenen van bedrijfsmatige activiteiten die vallen onder de categorieën 1 en 2. Tevens is een aannemers- en/of bouwbedrijf met ten hoogste de categorie 3.1 toegestaan. Gebouwen mogen binnen het bouwvlak gebouwd worden met een maximale bouwhoogte van 7 m en een goothoogte van 5 m.
Navolgende afbeelding toont een uitsnede van het geldende bestemmingsplan 'Braassemerland 2019'.
Uitsnede bestemmingsplan 'Braassemerland 2019', plangebied rood omkaderd (bron: ruimtelijkeplannen.nl)
Ook beschikt een deel van de gronden van het plangebied over de dubbelbestemming 'Waarde - Archeologie 1'. De voor 'Waarde - Archeologie 1' aangewezen gronden zijn, behalve voor de andere aldaar voorkomende bestemming(en), mede bestemd voor de bescherming en veiligstelling van archeologische waarden. Bij grondwerkzaamheden met een oppervlakte groter dan 150 m² en dieper dan 30 cm dient een archeologisch onderzoek uitgevoerd te worden.
Binnen de bedrijfsbestemming is het ontwikkelen van één vrijstaande woning en het ombouwen van een deel van het kantoor naar twee appartementen niet toegestaan. Ten behoeve van de beoogde ontwikkeling is het opstellen van een nieuw bestemmingsplan noodzakelijk. Het voorliggende bestemmingsplan voorziet hierin.
1.4 Leeswijzer
Dit hoofdstuk is de inleiding op het plan. In hoofdstuk 2 wordt het beoogde plan beschreven. Hoofdstuk 3 beschrijft de relevante beleidskaders. In hoofdstuk 4 wordt het project inhoudelijk op haalbaarheid getoetst aan de hand van het geldende beleid en milieuwetgeving. Hoofdstuk 5 gaat in op de economische uitvoerbaarheid van het plan. Tot slot beschrijft hoofdstuk 6 de maatschappelijke haalbaarheid van het plan waarbij de uitkomsten van de inspraak en overlegmomenten zijn opgenomen. Tot slot wordt in hoofdstuk 7 de juridische planopzet beschreven.
2.1 Huidige situatie
In de huidige situatie zijn er op de planlocatie twee bedrijfsgebouwen aanwezig. De bedrijfsgebouwen worden gebruikt als werkplaats (milieucategorie 3.1), kantoor en voor opslag. Het overige gedeelte bestaat voor het grootste deel uit verhard oppervlak. Het terrein is te bereiken door middel van een inrit aan het Noordeinde. In de omgeving van het plangebied zijn voornamelijk woningen en enkele bedrijven te vinden. Ten oosten van het plangebied bevindt zich het woningbouwproject 'Braassemerland'.
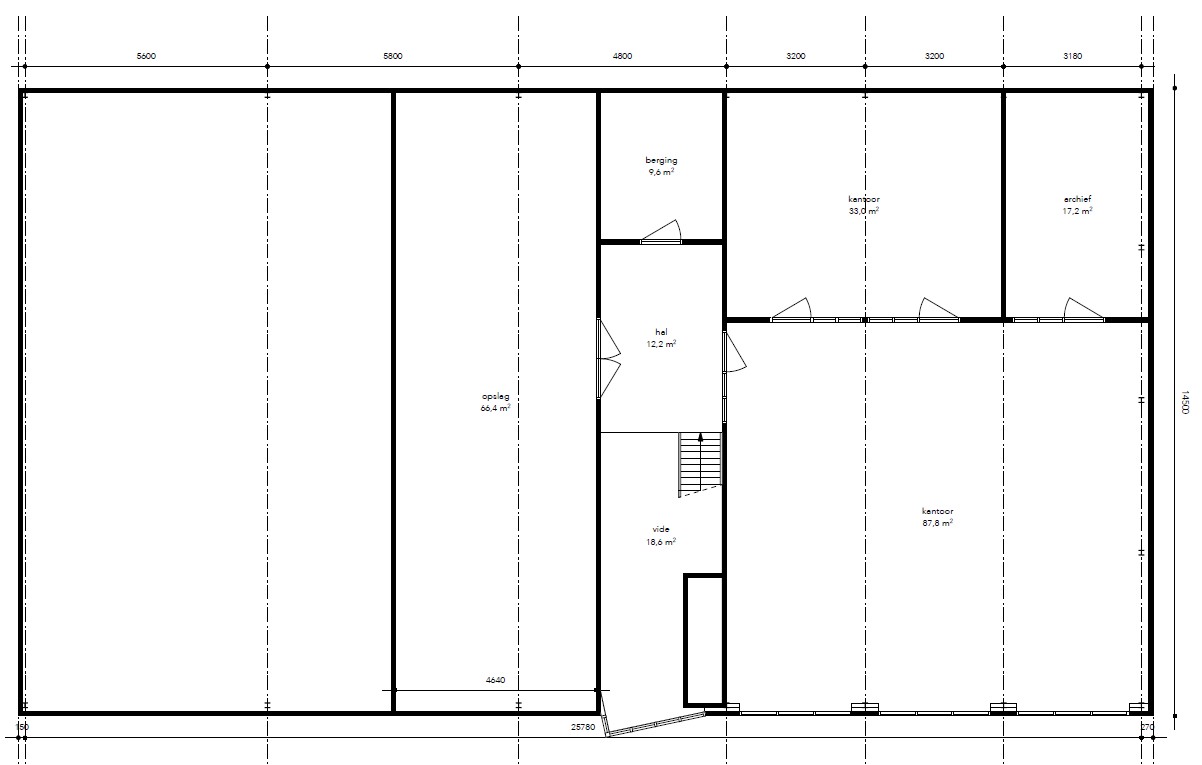
Navolgende afbeelding toont een plattegrond van de huidige situatie van het plangebied en een plattegrond van het westelijk gelegen bedrijfsgebouw.
Plattegrond huidige situatie (bron: Broos de Bruijn architecten)
Plattegrond verdieping westelijk gelegen bedrijfsgebouw (bron: Broos de Bruijn architecten)
2.2 Toekomstige situatie
Initiatiefnemer is voornemens om één vrijstaande woning te ontwikkelen en een gedeelte van het bedrijfsgebouw om te bouwen tot twee appartementen.
Het meest oostelijk gelegen bedrijfsgebouw op de planlocatie wordt gesloopt. Hiervoor in de plaats wordt één vrijstaande, levensloopbestendige en energie neutrale woning gerealiseerd. Het betreft een ruime woning met beneden de entree, garderobe, bergingen en een multifunctionele ruimte. De eerste verdieping is voorzien van een ruime woonkamer, twee slaapkamers, keuken en badkamer. Vanaf de woonkamer is het buitenterras te bereiken. De ruimte rondom de woning wordt ingericht als tuin. Onder een deel van de woning kan geparkeerd worden.
Op navolgende afbeeldingen staat een plattegrond van het perceel en impressie van de beoogde vrijstaande woning weergegeven.
Plattegrond perceel vrijstaande woning (bron: Broos de Bruijn architecten)
Impressie vrijstaande woning (bron: Broos de Bruijn architecten)
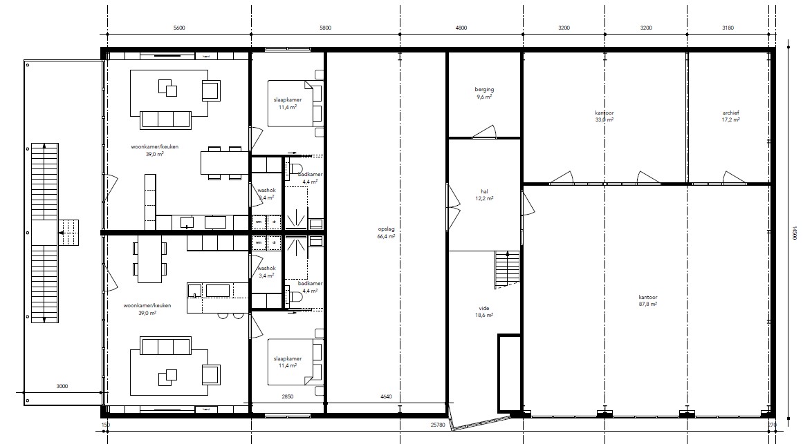
Een deel van het westelijk gelegen bedrijfsgebouw wordt op de verdieping omgebouwd tot twee appartementen. Beide appartementen bestaan uit een woonkamer met keuken, badkamer en één slaapkamer. In het westelijke gedeelte van het gebouw (op de verdieping) blijft de functie als opslag en kantoor behouden. Echter bevinden deze functies zich in de nieuwe situatie binnen de woonbestemming. Voor dit 'afwijkende gebruik' is de nadere aanduiding 'kantoor' opgenomen. De begane grond van het bestaande gebouw wordt door de eigenaar nog gebruikt als garage en werkruimte als ZZP'er in de aannemerij. Omdat deze bedrijfsfunctie groter is dan 'een bedrijf- en beroep aan huis' is een aanvullende aanduiding 'bedrijf' opgenomen. Hiermee wordt het toegestaan dat de bewoner van nieuw te bouwen woning op locatie nog bedrijfsactiviteiten uitoefent ondergeschikt aan de woonfunctie. Milieutechnisch kan daarmee het 'bedrijf' afgeschaald worden van milieucategorie 3.1 naar milieucategorie B (gemengde bedrijvenlijst). Deze afschaling heeft tot gevolg dat ook de achterliggende woningbouwplannen in Braassemerland doorgang kunnen vinden.
Op navolgende afbeelding staat een plattegrond en impressie van het gebouw weergegeven.
Plattegrond verdieping van het westelijk gelegen gebouw met twee appartementen (bron: Broos de Bruijn architecten)
Impressie van de appartementen (bron: Broos de Bruijn architecten)
3.1.1 Nationale Omgevingsvisie (NOVI)
Op 11 september 2020 is de Nationale Omgevingsvisie (NOVI) in werking getreden. Deze visie bevat de hoofdzaken van het strategisch rijksbeleid voor de fysieke leefomgeving. Dit is een combinatie van beleid uit de bestaande beleidsdocumenten, met en zonder wettelijke grondslag, en nieuw strategisch beleid. De grote en complexe opgaven, zoals klimaatverandering, energietransitie, circulaire economie, bereikbaarheid en woningbouw zullen Nederland gaan veranderen. De NOVI bevat een toekomstperspectief met de ambities van het Rijk. In de NOVI zijn 21 nationale belangen met bijbehorende opgaven geformuleerd. Deze nationale belangen komen samen in vier prioriteiten:
- ruimte voor klimaatadaptatie en energietransitie;
- duurzaam economisch groeipotentieel;
- sterke en gezonde steden en regio's;
- toekomstbestendige ontwikkeling van het landelijk gebied.
Voor de vier NOVI-prioriteiten geldt steeds dat zowel voor de lange als de korte termijn maatregelen nodig zijn. Deze maatregelen dienen in de praktijk voortdurend op elkaar in te spelen. Bij de afweging van de belangen staat een evenwichtig gebruik van de fysieke leefomgeving centraal voor zowel de boven- als de ondergrond.
Planspecifiek
Gezien de aard en omvang is de NOVI verder niet specifiek van belang. Wel wordt er aangesloten op de ambities en belangen van het rijk zoals het realiseren en behouden van een goede leefomgevingskwaliteit en het realiseren van woningen.
3.1.2 Besluit algemene regels ruimtelijke ordening
De wetgever heeft in de Wro, ter waarborging van de nationale of provinciale belangen, de besluitmogelijkheden van lagere overheden begrensd. Indien nationale of provinciale belangen dat met het oog op een goede ruimtelijke ordening noodzakelijk maken, kunnen bij of krachtens algemene maatregel van bestuur respectievelijk bij of krachtens provinciale verordening regels worden gesteld omtrent de inhoud van bestemmingsplannen. In het Besluit algemene regels ruimtelijke ordening (Barro) zijn 14 nationale belangen opgenomen die in de Structuurvisie Infrastructuur en Ruimte (SVIR) zijn herbevestigd. Voor deze belangen is het Rijk verantwoordelijk en wil het resultaten boeken. Buiten deze belangen hebben decentrale overheden beleidsvrijheid. Het Barro is op 30 december 2011 in werking getreden en op 1 oktober 2012, 1 juli 2014 en 1 juli 2016 op onderdelen aangevuld.
Planspecifiek
De voorgenomen ontwikkeling in het plangebied raakt niet aan één van de nationale belangen en is dus ook niet specifiek van toepassing op het plangebied.
3.1.3 Ladder voor duurzame verstedelijking
In het Besluit ruimtelijke ordening (Bro) is de verplichting opgenomen om in het geval van een nieuwe stedelijke ontwikkeling in de toelichting een onderbouwing op te nemen van nut en noodzaak van de nieuwe stedelijke ruimtevraag en de ruimtelijke inpassing. Hierbij wordt uitgegaan van de 'ladder voor duurzame verstedelijking'.
De 'stappen van de ladder' worden in artikel 3.1.6, leden 2 - 4 Bro als volgt omschreven:
- De toelichting bij een bestemmingsplan dat een nieuwe stedelijke ontwikkeling mogelijk maakt, bevat een beschrijving van de behoefte aan die ontwikkeling, en, indien het bestemmingsplan die ontwikkeling mogelijk maakt buiten het bestaand stedelijk gebied, een motivering waarom niet binnen het bestaand stedelijk gebied in die behoefte kan worden voorzien.
- Indien in een bestemmingsplan als bedoeld in het tweede lid toepassing is gegeven aan artikel 3.6, eerste lid, onder a of b, van de wet kan bij dat bestemmingsplan worden bepaald dat de beschrijving van de behoefte aan een nieuwe stedelijke ontwikkeling en een motivering als bedoeld in het tweede lid eerst wordt opgenomen in de toelichting bij het wijzigings- of het uitwerkingsplan als bedoeld in dat artikel.
- Een onderzoek naar de behoefte als bedoeld in het tweede lid, heeft, in het geval dat een bestemmingsplan als bedoeld in het tweede lid, ziet op de vestiging van een dienst als bedoeld in artikel 1 van de Dienstenwet en dit onderzoek betrekking heeft op de economische behoefte, de marktvraag of de beoordeling van de mogelijke of actuele economische gevolgen van die vestiging, slechts tot doel na te gaan of de vestiging van een dienst in overeenstemming is met een goede ruimtelijke ordening.
Planspecifiek
Conform artikel 1.1.1, eerste lid onder i van het Bro wordt onder een stedelijke ontwikkeling verstaan: een 'ruimtelijke ontwikkeling van een bedrijventerrein of zeehaventerrein, of van kantoren, detailhandel, woningbouwlocaties of andere stedelijke voorzieningen.' Uit jurisprudentie van de Afdeling bestuursrechtspraak van de Raad van State blijkt dat de ondergrens van wat als nieuwe stedelijke ontwikkeling moet worden gezien, ligt tussen de 9 en 14 nieuwe woningen afhankelijk van de omgeving waarin de ontwikkeling plaatsvindt. In het onderhavige geval worden slechts drie woningen mogelijk gemaakt. Daarmee is er geen sprake van een stedelijke ontwikkeling en hoeft het plan niet nader getoetst te worden aan de ladder voor duurzame verstedelijking.
Onder bestaand stedelijk gebied wordt conform artikel 1.1.1 eerste lid onder h van het Bro verstaan: het bestaand stedenbouwkundig samenstel van bebouwing ten behoeve van wonen, dienstverlening, bedrijvigheid, detailhandel of horeca, alsmede de daarbij behorende openbare of sociaal culturele voorzieningen, stedelijk groen en infrastructuur. Omdat ter plaatse van het voorgenomen plan reeds de bestemmingen 'Bedrijf' geldt en het plangebied aansluit op de lintbebouwing van het Noordeinde, dient het plangebied aangemerkt te worden als bestaand stedelijk gebied.
Geconcludeerd wordt dat voorgenomen ontwikkeling past binnen de ladder voor duurzame verstedelijking.
3.1.4 Luchthavenindelingbesluit Schiphol (LIB)
Het Luchthavenindelingbesluit Schiphol (LIB) legt beperkingen op aan bebouwing, activiteiten en functies in de buurt van luchthaven Schiphol. De beperkingen zijn ingesteld om te voorkomen dat objecten of gebruiksfuncties worden ontwikkeld die:
- het vliegverkeer belemmeren en/of in gevaar brengen (vliegveiligheid);
- zelf te veel geluidhinder of risico ondervinden als gevolg van het vliegverkeer (externe veiligheid en geluid).
De beperkingen hebben geen consequenties voor bestaand gebruik of al vóór inwerkingtreding vergunde objecten en gebruiksfuncties, uitgezonderd bestaande woningen binnen de zogenaamde sloopzones LIB 1 en LIB 2.
Planspecifiek
Het plangebied bevindt zich in het 'beperkingengebied van het 'Luchthavenindelingbesluit Schiphol' (LIB). Het plangebied valt onder het gebied waar een maatgevende toetshoogte van 146 m NAP geldt. Binnen dit gebied zijn geen objecten hoger dan 146 m NAP toegestaan. Onderhavig plan voorziet niet in hoogbouw hoger dan 146 m NAP. Er is dan ook geen overschrijding van de gestelde toetshoogte. Geconcludeerd kan worden dat het 'Luchthavenindelingbesluit Schiphol' geen belemmeringen voor de uitwerking van het plan veroorzaakt.
3.2.1 Omgevingsvisie Zuid-Holland
De Omgevingsvisie is in werking getreden op 20 april 2019. De Omgevingsvisie bestaat uit 4 onderdelen:
- Ruimtelijke hoofdstructuur
De ruimtelijke hoofdstructuur toont de essentie en de samenhang van verschillende ruimtelijke beleidskeuzes uit de Omgevingsvisie. Het integrale kaartbeeld van de ruimtelijke hoofdstructuur is opgebouwd uit de volgende kaartbeelden:
- het dagelijks stedelijk systeem, dat bestaat uit de stedelijke agglomeratie en de daarmee via hov (hoogwaardig openbaar vervoer) verbonden regiokernen;
- de hoogstedelijke zone tussen Leiden en Dordrecht;
- het logistiek-industriële systeem van mainport, greenports langs vaarwegen en zware infrastructuur;
- de samenhang van grote landschappelijke eenheden met de stedelijke agglomeratie;
- de groene ruimte en de groenblauwe structuur;
- het bodem- en watersysteem;
- energie.
In aanvulling hierop toont de ruimtelijke hoofdstructuur van de ondergrond indicatief de ruimtelijke situatie van de ondergrond.
De provincie wil meer vertrouwen geven aan maatschappelijke initiatieven. De provincie werkt daarom vanuit een aantal sturingsprincipes: opgavegericht, provinciaal belang en maatwerk.
De provincie heeft zes richtinggevende ambities in de fysieke leefomgeving. Deze ambities zijn geworteld in de historie, ligging en economische structuur van Zuid-Holland en zijn gekoppeld aan de strategische uitdagingen waar de regio voor staat. De provincie heeft de volgende ambities:
- naar een klimaatbestendige delta;
- naar een nieuwe economie: the next level;
- naar een levendig meerkernige metropool;
- energievernieuwing;
- best bereikbare provincie;
- gezonde en aantrekkelijke leefomgeving.
- Omgevingskwaliteit
Onder 'omgevingskwaliteit' wordt verstaan: het geheel aan kwaliteiten die de waarde van de fysieke leefomgeving bepalen. De volgende onderdelen vormen de basis van de omgevingskwaliteit:
- een beschrijving van de unieke kwaliteiten van Zuid-Holland: de drie deltalandschappen, de Zuid-Hollandse steden en de strategische ligging in internationale netwerken;
- een beschrijving van de bestaande omgevingskwaliteit op basis van de leefomgevingstoets, met aandacht voor aspecten van milieukwaliteit. Hiertoe implementeert de provincie de beleidscyclus en monitor Omgevingskwaliteit;
- een nadere uitwerking van het provinciale beleid voor het verbeteren van de ruimtelijke kwaliteit, op basis van de 'kwaliteitskaart' en de 'richtpunten ruimtelijke kwaliteit'.
- Beleidskeuzes
De provincie heeft in de Omgevingsvisie een overzicht gemaakt van samenhangende beleidskeuzes (zie Omgevingsvisie Zuid Holland).
Planspecifiek
- Ruimtelijke hoofdstructuur
De ruimtelijke hoofdstructuur is voor het beoogde initiatief niet specifiek van belang gezien de aard en omvang van het initiatief.
- Ambities en sturing
De ambities van de provincie zijn niet specifiek van toepassing voor het beoogde initiatief, maar vormen tevens geen belemmering voor de ontwikkeling.
- Omgevingskwaliteit
Voor de beoogde ontwikkeling is de omgevingskwaliteit wel van belang. Hiervoor zullen de relevante kaartlagen van de kwaliteitskaart en de bijbehorende richtpunten nader worden omschreven.
Laag van de ondergrond
Op de kaart van de 'Laag van de ondergrond' staat aangegeven dat het plangebied in een Veencomplex - Veen gelegen is. De voormalige plassen zijn drooggemalen en staan bekend als droogmakerijen. Binnen het veengebied is een aantal plekken waar in de ondergrond nog grote veenpakketten aanwezig zijn. Niet alleen zijn deze veenpakketten van bijzondere waarde, ook zijn deze gebieden zeer gevoelig voor bodemdaling. Ontwikkelingen in het veenlandschap dragen zorg voor behoud van het veen en zijn met name bij de diepe veenpakketten gericht op het beperken van de bodemdaling. In de huidige situatie is het plangebied grotendeels verhard en bebouwd. De nieuwe bebouwing wordt teruggebouwd op de plek van de oude bebouwing. De ontwikkeling zal dan ook geen invloed hebben op het veencomplex en de diepe veenpakketten.
Laag van de cultuur- en natuurlandschappen
Het plangebied bevindt zich in de onderverveende bovenlanden. Een bovenland is een smalle strook onvergraven veengrond aan weerszijden van een veenstroom of wetering, met een scherpe overgang naar de aangrenzende droogmakerijen. Ontwikkelingen dragen bij aan de contrasten tussen het (oude) bovenland (hooggelegen, besloten, kleinschalig karakter) en de aangrenzende droogmakerijen (laaggelegen, grootschalig, weids). Het plangebied grenst aan een gebied waar grootschalige woningbouw gaat plaatsvinden. Hier zal de weidsheid van de droogmakerijen in de toekomst dan ook niet meer aanwezig zijn.
Laag van stedelijke occupatie
Op de kaart van de 'Laag van stedelijke occupatie' staat het plangebied aangegeven als 'Stads- en dorpsranden' en 'Steden en dorpen'. De stads- en dorpsrand is de zone op de grens van bebouwd gebied en landschap. Ontwikkelingen aan de stads- of dorpsrand dragen bij aan het realiseren van een rand met passende overgangskwaliteit (front, contact of overlap). Tevens dragen ze bij aan de karakteristieke kenmerken/identiteit van stad, kern of dorp. In de toekomst zal er hier door het achtergelegen woningbouwproject 'Braassemerland' geen overgang meer zijn van het bebouwd gebied en het landschap. De drie woningen zijn passend binnen de karakteristieke kenmerken en identiteit van Roelofarendsveen en sluiten aan op het toekomstige woningbouwproject.
- Beleidskeuzes
De ontwikkeling sluit aan bij de beleidskeuze 'behoud en versterking ruimtelijke kwaliteit'. Het ruimtelijke kwaliteitsbeleid bestaat uit de voorgenoemde lagen van de kwaliteitskaart. Daarnaast zijn er gebiedsprofielen opgesteld, gezamenlijk met decentrale overheden en andere partijen in de regio. De gebiedsprofielen hebben de status van handreiking, maar nadrukkelijk niet de status van toetsingskader.
Het plangebied valt binnen het gebiedsprofiel 'Hollands Passengebied'. Voor elk gebiedsprofiel zijn meerdere kaarten beschikbaar. Hieronder worden alleen de voor het plangebied relevante kaarten besproken die een aanvulling vormen op de reeds genoemde aspecten van de kwaliteitskaart:
Kwaliteit van stads- en dorpsgebied
De dorpen in het Hollands Plassengebied verschillen in oorsprong, stedenbouwkundige opzet en grootte. Deze verscheidenheid is nog herkenbaar. Nieuwe ontwikkelingen pakken de maat en schaal van het dorp op, sluiten aan bij de typologie aan bebouwingsvormen en functies. De ontwikkeling van in totaal drie woningen is passend binnen de maat en schaal van het drop. Tevens grenst het plangebied aan het grootschalige woningbouwproject 'Braassemerland'. Gesteld kan worden dat woningen hier gewenst zijn.
Linten blijven linten
Het plangebied bevindt zich aan het bebouwingslint van het Noordeinde. Het lint is ingesloten door het dorp (of stad) zonder doorzichten naar het ommeland, maar is nog wel herkenbaar als lint. Er is weinig ruimte voor ontwikkelingen door de dichtheid van het lint, tenzij bebouwing vervangen wordt. De beoogde vrijstaande woning wordt gerealiseerd op de plek van één van de bedrijfsgebouwen. Het andere bedrijfsgebouw wordt deels omgebouwd tot twee appartementen. Hiermee is de ontwikkeling passend binnen het lint.
Conclusie
Met de beoogde ontwikkeling zijn er geen belemmeringen vanuit de Omgevingsvisie. De ruimtelijke kwaliteit verbetert en er wordt aangesloten bij de gebiedsprofielen. De beoogde herontwikkeling past binnen de Omgevingsvisie en is in lijn met de provinciale ambities.
3.2.2 Omgevingsverordening Zuid-Holland
Tegelijk met de Omgevingsvisie is de Omgevingsverordening op 20 april 2019 in werking getreden. De Omgevingsverordening omvat in aanvulling op de Omgevingsvisie toetsbare criteria waaraan planvorming moet voldoen.
Ruimtelijke kwaliteit
In artikel 6.9 van de Omgevingsverordening is opgenomen dat een bestemmingsplan, onder de volgende voorwaarden ten aanzien van ruimtelijke kwaliteit, kan voorzien in een nieuwe ruimtelijke ontwikkeling:
- de ruimtelijke ontwikkeling past binnen de bestaande gebiedsidentiteit, voorziet geen wijziging op structuurniveau, past bij de aard en schaal van het gebied en voldoet aan de relevante richtpunten van de kwaliteitskaart (inpassen);
als de ruimtelijke ontwikkeling past binnen de bestaande gebiedsidentiteit, maar wijziging op structuurniveau voorziet (aanpassen), wordt deze uitsluitend toegestaan mits de ruimtelijke kwaliteit per saldo ten minste gelijk blijft door:
- zorgvuldige inbedding van de ontwikkeling in de omgeving, rekening houdend met de relevante richtpunten van de kwaliteitskaart, en
- het zo nodig treffen van aanvullende ruimtelijke maatregelen zoals bedoeld in het derde lid;
als de ruimtelijke ontwikkeling niet past bij de bestaande gebiedsidentiteit (transformeren), wordt deze uitsluitend toegestaan mits de ruimtelijke kwaliteit van de nieuwe ontwikkeling is gewaarborgd door:
- een integraal ontwerp, waarin behalve aan de ruimtelijke kwaliteit van het gehele gebied ook aandacht is besteed aan de fysieke en visuele overgang naar de omgeving en de fasering in ruimte en tijd, alsmede rekening is gehouden met de relevante richtpunten van de kwaliteitskaart, en
- het zo nodig treffen van aanvullende ruimtelijke maatregelen zoals bedoeld in het derde lid.
Ten aanzien van ruimtelijke kwaliteit is sprake van een vorm van inpassen (sub a). De ontwikkeling maakt slechts drie woningen mogelijk. Daarmee past de ontwikkeling bij de aard en schaal van het gebied. De relevante richtpunten van de kwaliteitskaart en gebiedsprofielen zijn in
toelichting paragraaf 3.2.1 toegelicht. Hieruit blijkt dat het beoogde plan aan de relevante richtpunten van de kwaliteitskaart en gebiedsprofielen voldoet.
Ladder voor duurzame verstedelijking
In artikel 6.10 van de Omgevingsverordening is opgenomen dat een bestemmingsplan dat een nieuwe stedelijke ontwikkeling mogelijk maakt, moet voldoen aan de volgende eisen:
- de toelichting van het bestemmingsplan gaat in op de toepassing van de ladder voor duurzame verstedelijking overeenkomstig artikel 3.1.6, tweede, derde en vierde lid van het Besluit ruimtelijke ordening;
- indien in de behoefte aan de stedelijke ontwikkeling niet binnen bestaand stads- en dorpsgebied kan worden voorzien en voor zover daarvoor een locatie groter dan 3 hectare nodig is, wordt gebruik gemaakt van locaties die zijn opgenomen in het Programma ruimte.
Bij het voorgenomen plan is in
toelichting paragraaf 3.1.3 ingegaan op de ladder voor duurzame verstelijking. Hieruit is gebleken dat de beoogde ontwikkeling niet wordt aangemerkt als een nieuwe stedelijke ontwikkeling. Omdat bij onderhavig initiatief geen sprake is van een nieuwe stedelijke ontwikkeling is sub b niet van toepassing. Bovendien betreft het hier geen locatie groter dan 3 hectare. Er wordt daarmee voldaan aan artikel 6.10 van de Omgevingsverordening.
Conclusie
Gezien het voorgaande dient er geconcludeerd te worden dat er geen belemmeringen zijn voor het voorgenomen plan vanuit de Omgevingsverordening.
3.3.1 Regionale Structuurvisie Holland Rijnland 2020
De Regionale Structuurvisie van Holland Rijnland geeft de grote lijnen weer van de door gewenste richting en duidt de grote projecten aan waar de deelnemende gemeenten aan willen werken. De Regionale Structuurvisie is een product van intensieve samenwerking van de vijftien gemeenten in Holland Rijnland. Ze laat zien hoe sterk de gezamenlijke gemeenten kunnen zijn en hoe belangrijk het is dat deze met elkaar de toekomst ingaan. De visie levert een bijdrage aan het denken over de toekomst van de Randstad.
In deze Regionale Structuurvisie wordt inzicht gegeven in de ruimtelijke ontwikkelingen tot 2020 (met doorkijk naar 2030). Op basis van deze visie worden de onderstaande zeven kernbeslissingen geformuleerd. Deze kernbeslissingen geven de belangrijkste keuzes weer:
- Holland Rijnland is een top woonregio;
- Leiden vervult een regionale centrumfunctie;
- Concentratie stedelijke ontwikkeling;
- Groen-blauwe kwaliteit staat centraal;
- Het Groene Hart, de Bollenstreek en Duin, Horst en Weide blijven open;
- Twee speerpunten voor economische ontwikkeling: kennis en Greenports;
- Verbetering van de regionale bereikbaarheid.
Planspecifiek
Voorliggend plan is voornamelijk gerelateerd aan de punten 1 en 4 van de kernbeslissingen. Met de ontwikkeling van in totaal drie woningen worden twee appartementen en één vrijstaande woning gerealiseerd, waarmee voorzien wordt in woningen voor meerdere doelgroepen. Het initiatief levert een bijdrage aan de woonbehoefte binnen de regio. Tevens wordt de groen-blauwe structuur niet uit het oog verloren. Gesteld kan worden dat het initiatief aansluit op de Regionale Structuurvisie Holland Rijnland 2020.
3.3.2 Regionale Woon Agenda 2017 Holland-Rijnland
Op 14 maart 2018 heeft het algemeen bestuur van de regio Holland Rijnland de nieuwe Regionale woonagenda (Woonagenda) vastgesteld. Het aantal inwoners en huishoudens in Holland Rijnland neemt nog steeds toe. Daarnaast verandert de leeftijd en samenstelling van de bevolking door vergrijzing en steeds kleinere gezinnen. Met de woonagenda willen de gemeenten het woningaanbod de komende jaren beter laten aansluiten op de behoefte in de regio Holland Rijnland en in de subregio’s Duin- en Bollenstreek, Leidse regio en Rijn- en Veenstreek.
Op de eerste plaats gaat het om de ontwikkeling van kansrijke bouwlocaties (woonmilieus). Andere belangrijke opgaven zijn het voorzien in voldoende sociale huurwoningen en passende woonruimten voor bijzondere doelgroepen, waarvoor aanvullende zorg noodzakelijk is. Met de vernieuwde Regionale Woonagenda zijn gemeenten in staat hun woningbouwplannen onderling beter af te stemmen, qua bouwjaar en woonmilieu.
Kwantitatieve behoefte en kwalitatieve behoefte
Bij de beoordeling van de vraag of behoefte bestaat aan een bepaalde woningbouwontwikkeling wordt zowel gekeken naar kwantiteit als naar kwaliteit. De kwantitatieve behoefte gaat in op het aantal te realiseren woningen, terwijl de kwalitatieve behoefte ziet op het type woning/woonmilieu.
Kwantitatieve behoefte
De kwantitatieve behoefte wordt in de Regionale Woonagenda Holland Rijnland nog berekend op basis van een actuele Woningbehoefteraming (WBR) en Bevolkingsprognose (BP) en de daaruit voortvloeiende bandbreedte, waarbij in het onderliggend beleidsstuk de onderkant van de bandbreedte wordt gebruikt voor het aantonen van de behoefte. De getoonde cijfers tonen daarom de minimale behoefte.
Uit de Woonagenda blijkt dat de harde plancapaciteit (zoals plannen op basis van (onherroepelijke) bestemmingsplannen, uitwerkingsplannen of anderszins, concrete afspraken tussen verschillende overheden) de kwantitatieve behoefte tot 2019 overstijgt. Dit betekent dat er meer plannen op de stapel liggen dan strikt noodzakelijk is. Dit is echter een normale ontwikkeling bij het programmeren van woningbouw, omdat altijd sprake zal zijn van enige planuitval of vertraging.
De plancapaciteit voor de behoefte op korte termijn is voldoende. Bij vertraging ontstaat er echter een tekort. Voor de behoefte op de lange termijn (na 2022) zijn er nog ruim onvoldoende plannen vastgesteld.
Planspecifiek
Het plangebied is gelegen in de subregio Oost aan het bebouwingslint van het Noordeinde. Voor de subregio Oost is er in de periode 2017 tot 2022 een woningbehoefte van 3.480 woningen. In de periode van 2022 tot 2030 is er in subregio Oost een woningbehoefte van 3.080 woningen. Voor de lange termijn (tot 2030) is de planvoorraad onvoldoende. Er zijn dan ook aanvullende plannen nodig om aan de behoefte te voldoen. De ontwikkeling van drie woningen levert hier een bijdrage. Geconcludeerd kan worden dat het beoogde plan in lijn is met de Regionale Woon Agenda 2017 van Holland-Rijnland.
3.4.1 Omgevingsvisie Kaag en Braassem
De gemeenteraad van de gemeente Kaag en Braassem heeft op 26 oktober 2020 de 'Omgevingsvisie Kaag en Braassem' vastgesteld. De omgevingsvisie betreft de strategische langetermijnvisie voor de fysieke leefomgeving van Kaag en Braassem. De toekomst van de fysieke leefomgeving wordt daarbij vanuit een integraal perspectief benaderd. Dat wil zeggen dat sociale, economische en fysieke vraagstukken in samenhang worden beschouwd en vervolgens vertaald naar de fysieke leefomgeving. De omgevingsvisie gaat in op verschillende thema's zoals recreatie, natuur, onderwijs, mobiliteit, gezondheid, wonen, landbouw, economie en duurzaamheid. Verder is de gemeente in vier gebiedstypen ingedeeld. Voor de verschillende gebieden zijn de kenmerken en waarden bepaald, zodat het duidelijk is hoe zo’n gebied eruit ziet en wat het beeld voor de toekomst is.
De gemeente Kaag en Braassem wil met de omgevingsvisie samenwerking verder uitdragen en stimuleren tussen organisaties, inwoners en de gemeente. Samenwerken vanuit een gezamenlijke verantwoordelijkheid, maar ieder vanuit zijn eigen rol. Doordat de rol van de gemeente steeds verschillend is, wordt per opgave, per thema of per taak aangegeven welke rol de gemeente zal innemen.
In de omgevingsvisie staan de volgende thema's centraal:
- energie & grondstoffen in Kaag en Braassem;
- natuur, water en lucht in Kaag en Braassem;
- wonen in Kaag en Braassem;
- gezonde economische ontwikkeling in Kaag en Braassem;
- sociaal Kaag en Braassem;
- veilig Kaag en Braassem.
In de omgevingsvisie wordt per thema's aangegeven wat de gewenste beweging is en wat men wenst te bereiken. Dit resulteert vervolgens in specifieke uitgangspunten voor een bepaald thema.
Gebiedstypen
Naast de bovengenoemde thema's wordt in de omgevingsvisie de gemeente opgedeeld in vier verschillende soorten gebieden, namelijk het buitengebied, glastuinbouwgebieden, bedrijventerreinen en de kernen. Binnen ieder gebiedstype spelen verschillende belangen en thema’s. In de omgevingsvisie wordt per gebiedstype een beschrijving van het gebied gegeven met de doelen en de specifieke uitgangspunten waarbinnen deze doelen bereikt moeten worden.
Planspecifiek
De planlocatie maakt onderdeel uit van het gebiedstype 'Kernen'. De gemeente Kaag en Braassem bestaat uit 11 kernen. De kernen zijn de gebieden binnen de gemeente waar onder andere veel ruimte is voor winkels, horeca, sport en wonen. Iedere kern heeft een eigen identiteit met eigen karakteristieken. Voor het bouwen van nieuwe woningen ligt de voorkeur bij inbreiding. Echter betekent dit niet dat uitbreiding geen mogelijkheid is. Het opwekken van energie op een duurzame manier is een aandachtspunt van de gemeente, bijvoorbeeld door het plaatsen van zonnepanelen op daken. Daarnaast is klimaatadaptatie een belangrijk thema binnen dit gebiedstype. Het toevoegen van verharding kan overlast veroorzaken bij extreem weer. Er dient dan ook nagedacht te worden over de te nemen maatregelen.
De kern Roelofarendsveen valt naast Oude Wetering, Leimuiden en Woubrugge onder 'centrum dorps'. In deze kernen is een relatief hoog voorzieningenniveau en inwonersaantal. De gemeente wil hier het voorzieningenniveau in stand houden en verder opwaarderen. Daarnaast moet er een passende woning voor iedereen beschikbaar zijn in een veilige, leefbare en klimaatadaptieve woon- en werkomgeving.
Het voorliggende initiatief maakt één vrijstaande woning en twee appartementen mogelijk door middel van inbreiding. Daarnaast gaat het westelijk gelegen gebouw tevens functioneren als kantoor en opslag. De begane grond van dit gebouw wordt door de eigenaar nog gebruikt als garage en werkruimte als ZZP'er in de aannemerij. De nieuwe woningen leveren een bijdrage aan de woningbehoefte in de gemeente. De kern Roelofarendsveen wordt verder versterkt.
Wat betreft klimaatadaptatie verbetert de nieuwe situatie ten opzichte van de huidige situatie. Het plangebied bestaat vrijwel volledig uit verharding. Het initiatief zorgt voor een vermindering van het verhard oppervlak, waardoor minder overlast door water wordt veroorzaakt.
Gesteld kan worden dat het initiatief past binnen de ambities van de Omgevingsvisie Kaag en Braassem.
3.4.2 Welstandsnota
De raad van Kaag en Braassem heeft ervoor gekozen om voor de cultuurhistorisch waardevolle gebieden welstandsbeleid op te stellen. Het gaat dan om de beschermde dorpsgezichten, de monumenten en de omliggende percelen van monumenten. In de welstandsnota zijn deze gebieden en objecten beschreven. Het individuele belang van de initiatiefnemer wordt gewogen ten opzichte van het collectieve belang.
Op de welstandskaart staan de percelen aangeduid waarvoor een welstandstoets geldt. De rest van de gemeente is welstandsluw. Welstandsluw betekent dat een eventuele excessenregeling wel van toepassing is. De excessenregeling maakt het mogelijk een bouwwerk dat “in ernstige strijd is met redelijke eisen van welstand” alsnog aan een welstandstoets onderhevig kan zijn. Burgemeesters en wethouders kunnen de eigenaar van een bouwwerk aanschrijven om deze strijdigheid op te heffen.
Planspecifiek
Navolgende afbeelding toont een uitsnede van de welstandskaart van de gemeente Kaag en Braassem in de kern Roelofarendsveen.
Uitsnede Welstandskaart Roelofarendsveen, gemeente Kaag en Braassem (plangebied zwart omkaderd)
Uit de gegevens van de Welstandskaart blijkt dat het plangebied gelegen is in welstandsluw gebied. Een welstandstoets voor de beoogde ontwikkeling is daarom niet aan de orde. Tevens bevindt er zich geen monumentale bebouwing binnen het plangebied. Gesteld kan worden dat de Welstandsnota geen belemmeringen veroorzaakt voor de beoogde ontwikkeling.
4 Milieu- en omgevingsaspecten
In dit hoofdstuk zal, in het kader van een goede ruimtelijke ordening, worden aangetoond dat de nieuwe ontwikkeling past binnen de uitwerkingsregels van het globale bestemmingsplan en past binnen de geldende milieuwetgeving. Hiermee wordt aangetoond dat onderhavig project uitgaat van een goede ruimtelijke ordening en uitvoerbaar is.
4.1 Milieueffectrapportage
De milieueffectrapportage (m.e.r.) is een hulpmiddel om bij diverse procedures het milieubelang een volwaardige plaats in de besluitvorming te geven. Een m.e.r. is verplicht bij de voorbereiding van plannen en besluiten van de overheid over initiatieven en activiteiten van publieke en private partijen die belangrijke nadelige gevolgen voor het milieu kunnen hebben. De m.e.r. is wettelijk verankerd in hoofdstuk 7 van de Wet milieubeheer. Naast de Wet milieubeheer is het Besluit m.e.r. belangrijk om te kunnen bepalen of bij de voorbereiding van een plan of een besluit de m.e.r.-procedure moet worden doorlopen. Bij toetsing aan het Besluit m.e.r. zijn er vier mogelijkheden:
- het plan of besluit is direct m.e.r.-plichtig;
- het plan of besluit bevat activiteiten uit kolom 1 van onderdeel D, en ligt boven de (indicatieve) drempelwaarden, zoals beschreven in kolom 2 ‘gevallen’, van onderdeel D. Het besluit moet eerst worden beoordeeld om na te gaan of er sprake is van m.e.r.-plicht: het besluit is dan m.e.r.-beoordelingsplichtig. Voor een plan in kolom 3 ‘plannen’ geldt geen m.e.r-beoordelingsplicht, maar direct een (plan-)m.e.r.-plicht;
- het plan of besluit bevat wel de activiteiten uit kolom 1, maar ligt beneden de drempelwaarden, zoals beschreven in kolom 2 ‘gevallen’, van onderdeel D: er dient in overleg met de aanvrager van het bijbehorende plan of besluit beoordeeld te worden of er aanleiding is voor het uitvoeren van een m.e.r.-beoordeling (als sprake is van een besluit) of het direct uitvoeren van een m.e.r. (als sprake is van een plan). Deze keuze wordt uiteindelijk in het bijbehorende plan of besluit gemotiveerd;
- de activiteit(en) of het betreffende plan en/of besluit worden niet genoemd in het Besluit m.e.r.: er geldt geen m.e.r.-(beoordelings)plicht.
Sinds 16 mei 2017 geldt er een directe werking van het Europees recht. Daarom is per 7 juli 2017 het gewijzigde Besluit m.e.r. in werking getreden. In de gewijzigde Besluit m.e.r. staat de nieuwe procedure voor de vormvrije m.e.r.-beoordeling. Voor elke aanvraag, waarbij een vormvrije m.e.r.-beoordeling aan de orde is, moet:
- door de initiatiefnemer een aanmeldingsnotitie worden opgesteld;
- het bevoegd gezag binnen 6 weken een m.e.r.-beoordelingsbesluit nemen. Dit besluit hoeft niet in de Staatscourant gepubliceerd te worden;
- de initiatiefnemer het (vormvrije) m.e.r.-beoordelingsbesluit bij de vergunningaanvraag voegen (Artikel 7.28 Wet milieubeheer).
De artikelen 7.16 tot en met 7.20a Wm zijn in de nieuwe wetgeving voor alle in het Besluit m.e.r. genoemde activiteiten van de D-lijst van toepassing.
Planspecifiek
Het bestemmingsplan bevat een activiteit die genoemd wordt in onderdeel D van de bijlage bij het Besluit milieueffectrapportage. Het realiseren van woningen valt onder onderdeel D.11.2 'De aanleg, wijziging of uitbreiding van een stedelijk ontwikkelingsproject met inbegrip van de bouw van winkelcentra of parkeerterreinen', (drempelwaarde: een aangesloten gebied dat 2.000 woningen of meer omvat) van het Besluit milieueffectrapportage. Daarmee valt voorliggend plan onder sub c: het plan wordt wel genoemd maar voldoet niet aan de drempelwaarde. Dit betekent dat het Besluit milieueffectrapportage niet van toepassing is en dat er geen m.e.r.-(beoordelings)plicht geldt.
Daarnaast blijkt uit uitspraken van de Afdeling Bestuursrechtspraak van de Raad van State (ECLI:NL:RBOBR:2017:3537, 29 juni 2017) en (ECLI:NL:RVS:2018:2414, 18 juli 2018) dat het antwoord op de vraag of er sprake is van een (wijziging van een) stedelijk ontwikkelingsproject in de zin van het Besluit milieueffectrapportage afhangt van de concrete omstandigheden van het geval, waarbij onder meer aspecten als aard en omvang van de voorziene wijzigingen van de stedelijke ontwikkeling een rol spelen. Daarbij mogen de bestaande planologische mogelijkheden worden meegewogen bij de vraag of er sprake is van een stedelijke ontwikkeling. Ook het opvullen van een open gebied in een stedelijke omgeving en het uitbreiden van bebouwing zijn, op basis van een uitspraak 12 juni 2019 (ECLI:NL:RVS:2019:1879, 12 juni 2019) en een tussenuitspraak van de AbRvS (ECLI:NL:RVS:2019:1668, 22 mei 2019) niet zonder meer te beschouwen als een stedelijke ontwikkeling zoals bedoeld in het Besluit m.e.r.
Met het voorliggende plan wordt de bestemming van het plangebied gewijzigd van een bedrijfsbestemming naar een woonbestemming, waarbij drie nieuwe woningen gerealiseerd worden. Gelet op de omvang van het plangebied, de omvang van de te slopen bebouwing en de realisatie van slechts drie woningen, wijzigt het totale bouwvolume niet substantieel. Tevens is de ontwikkeling te zien als een vorm van kleinschalige opvulling in bestaand stedelijk gebied.
Gelet op het voorgaande kan gesteld worden dat er hier geen sprake is van een stedelijke ontwikkeling zoals bedoeld in onderdeel D.11.2 van de bijlage van het Besluit m.e.r. Een (vormvrije) m.e.r.-beoordelingsbesluit is niet noodzakelijk.
4.2.1 Bodem
In het kader van een ruimtelijk plan dient aangetoond te worden dat de kwaliteit van de bodem en het grondwater in het plangebied in overeenstemming zijn met het beoogde gebruik. De bodemkwaliteit kan namelijk van invloed zijn op de beoogde functie van het plangebied. Indien sprake is van een functiewijziging zal er soms een bodemonderzoek moeten worden uitgevoerd in het plangebied. Ontwikkelingen kunnen pas plaatsvinden als de bodem waarop deze ontwikkelingen plaatsvinden geschikt is of geschikt is gemaakt voor het beoogde doel.
Bij een bestemmingswijziging is een bodemonderzoek slechts noodzakelijk, indien de bestemmingswijziging tevens een wijziging naar een gevoeliger bodemgebruik inhoudt. Bij een bestemmingswijziging die een gelijkblijvend of minder gevoelig bodemgebruik oplevert, is de bodemkwaliteit in het kader van de bestemmingswijziging niet relevant en is bodemonderzoek niet noodzakelijk.
Planspecifiek
Om aan te tonen dat de kwaliteit van de bodem en het grondwater geschikt is voor het beoogde gebruik van de gronden voor wonen, heeft APS milieu B.V. een verkennend bodemonderzoek uitgevoerd (december 2019, APS milieu B.V., zie
bijlagen bij toelichting bijlage 1). Op basis van dit onderzoek kan het volgende worden geconcludeerd:
Bodemonderzoek
De uitpandige bovengrond is licht verontreinigd met barium, koper, kwik, zink en lood. Wat betreft hergebruik wordt deze grond indicatief ingedeeld in de klasse ‘industrie’.
De puinhoudende bovengrond in de schuur is licht verontreinigd met kwik, lood, koper, kobalt, barium, zink en PAK. Wat betreft hergebruik wordt deze grond indicatief ingedeeld in de klasse ‘industrie’.
De puinhoudende bovengrond in de loods is licht verontreinigd met minerale olie, lood, PCB, barium, zink en PAK. Wat betreft hergebruik wordt deze grond indicatief ingedeeld in de klasse ‘niet toepasbaar’.
De ondergrond in de schuur is licht verontreinigd met kwik, lood, koper, kobalt, nikkel en zink. Wat betreft hergebruik wordt deze grond indicatief ingedeeld in de klasse ‘wonen’.
De venige ondergrond is licht verontreinigd met minerale olie, kobalt en nikkel. Wat betreft hergebruik wordt deze grond indicatief ingedeeld in de klasse ‘industrie’.
In het grondwater zijn lichte verontreinigingen met barium, xylenen en naftaleen aangetroffen.
Geconcludeerd kan worden dat de locatie licht verontreinigd is. De aangetroffen verontreinigingen geven geen aanleiding tot het uitvoeren van een nader bodemonderzoek.
Asbestonderzoek (bodem)
Er is geen asbestverdacht materiaal op of in de grond aangetroffen. Op basis van onderhavig verkennend bodemonderzoek asbest kan gesteld worden dat de locatie vrij is van verontreiniging met asbest.
Beoordeling omgevingsdienst West-Holland
Bovenstaande rapportage is beoordeeld door de omgevingsdienst West-Holland. In een brief (Advies ruimtelijke plannen, kenmerk D2020-200065, Zaaknummer 2020-021232, d.d. 02-12-2020) heeft de omgevingsdienst West-Holland laten weten welke aanvullende werkzaamheden nog uitgevoerd moeten worden. In de brief zijn verschillende disciplines genoemd. In onderhavige rapportage wordt ingegaan op het bodemonderzoek. Uit de conclusie komt naar voren dat niet de gehele ontwikkelingslocatie is onderzocht. In het kader van de bestemmingsplanprocedure is het noodzakelijk dat de grond onder de asfaltverharding wordt onderzocht. Tevens wordt aanbevolen een asfalt- en funderingsonderzoek uit te voeren, indien de verharding wordt verwijderd (voor de afvoer van het asfalt en funderingsmateriaal). Hierbij moet onderzocht worden of het asfalt teerhoudend is en wat de milieuhygiënische bodemkwaliteit van het funderingsmateriaal is.
Aanvullend onderzoek
Hiertoe is een aanvullend bodemonderzoek uitgevoerd (februari 2021, APS milieu B.V., zie
bijlagen bij toelichting bijlage 2). In dit bodemonderzoek wordt een aanvullend bodemonderzoek verricht ter plaatse van de asfaltverharding. Hierbij wordt de boven- en de ondergrond onder de asfaltverharding onderzocht. Tevens wordt een asfalt- en funderingsonderzoek uitgevoerd. Daarna is een tweede aanvullend onderzoek uitgevoerd naar de ernst en de omvang van de matige verontreinigingen onder de funderingslaag (maart 2021, APS milieu B.V., zie
bijlagen bij toelichting bijlage 3). Hieronder worden de resultaten en conclusies van deze twee onderzoeken uiteengezet.
Grond
De bovengrond ter plaatse van boring 100 (M100.4, veen onder asfaltverharding en funderingslaag) is matig verontreinigd met nikkel en licht verontreinigd met kobalt, koper, zink, molybdeen, kwik en lood. De grond wordt hiermee indicatief als klasse industrie geclassificeerd. De bovengrond ter plaatse van boring 104 (M104.4, veen onder asfaltverharding en funderingslaag) is matig verontreinigd met PAK en licht verontreinigd met kobalt, nikkel, koper, zink, molybdeen, kwik en lood. De grond wordt hiermee indicatief als klasse industrie geclassificeerd. De ondergrond (MM100, veen) is licht verontreinigd met kobalt. De grond wordt hiermee indicatief als altijd toepasbaar geclassificeerd.
Naar aanleiding van de aangetoonde matige verontreinigingen met nikkel en PAK in de veenlaag onder de asfaltverharding, zijn op 02-03-2021, aanvullende boringen uitgevoerd. Opgemerkt wordt dat het plan was om de boringen 200 tot en met 205 uit te voeren. Van deze boringen zijn alleen de boringen 203 en 205 tot 2,0 m-mv uitgevoerd. De overige boringen zijn gestuit op de puinlaag. Uit de analyseresultaten blijkt dat de ondergrond ter plaatse van boring 205 licht verontreinigd is met barium. De ondergrond ter plaatse van boring 203 is niet verontreinigd met de onderzochte parameters.
Op basis van de onderzoeksresultaten wordt aangenomen dat onder de asfaltverharding geen sprake is van een geval van ernstige bodemverontreiniging (>25 m3 sterk verontreinigd bodemvolume). De onderzoeksresultaten vormen, naar inzien van APS milieu B.V., milieuhygiënisch geen belemmeringen voor de voorgenomen bouwwerkzaamheden.
Funderingslaag
De funderingslaag (MMfundering) is sterk verontreinigd met PCB, koper en PAK, matig verontreinigd met minerale olie en licht verontreinigd met kobalt, nikkel, zink, molybdeen, cadmium en lood. Opgemerkt wordt dat de funderingslaag indicatief getoetst is aan de normen voor bodem maar dat dit geen bodem betreft.
Asfalt
Uit de analyseresultaten van de PAK-markers en het HPLC-onderzoek blijkt dat het asfalt niet teerhoudend is. Het asfalt komt hierdoor in aanmerking voor hergebruik.
Conclusie
Op basis van het verkennend bodemonderzoek en de aanvullende bodemonderzoeken kan geconcludeerd worden dat het aspect bodem geen belemmeringen veroorzaakt voor de beoogde ontwikkeling.
4.2.2 Geluid
De mate waarin het geluid, het woonmilieu mag belasten, is geregeld in de Wet geluidhinder (Wgh). De kern van de wet is dat geluidsgevoelige objecten worden beschermd tegen geluidhinder uit de omgeving. In de Wgh worden de volgende objecten beschermd (artikel 1 Wgh):
- woningen;
- geluidsgevoelige terreinen (woonwagenstandplaatsen, ligplaatsen voor woonschepen);
- andere geluidsgevoelige gebouwen (onderwijsgebouwen, ziekenhuizen, verpleeghuizen, verzorgingstehuizen, psychiatrische inrichtingen, kinderdagverblijven).
Het beschermen van deze geluidsgevoelige objecten gebeurt aan de hand van vastgestelde zoneringen. De belangrijkste geluidsbronnen die in de Wet geluidhinder worden geregeld zijn: industrielawaai, wegverkeerslawaai en spoorweglawaai. Verder gaat deze wet onder meer ook in op geluidwerende voorzieningen en geluidbelastingkaarten en actieplannen.
Planspecifiek
Wonen is een geluidgevoelige functie in het kader van de Wet geluidhinder. De planlocatie ligt op een afstand van ca. 35 m van de weg Noordeinde. Ter hoogte van de planlocatie geldt voor deze weg een snelheidsregime van 50 km/uur. Om die reden is een akoestisch onderzoek naar wegverkeerlawaai uitgevoerd (11 januari 2021, Van der Boom Advies, zie
bijlagen bij toelichting bijlage 4). Uit dit onderzoek zijn de volgende resultaten naar voren gekomen.
De geluidbelasting door wegverkeer op de Noordeinde bedraagt ten hoogste 45 dB resp. 41 dB op de gevels van de woningen. De voorkeursgrenswaarde van 48 dB wordt daardoor niet overschreden. Een hogere waarde voor wegverkeer op deze locatie is daardoor niet nodig.
Bij het toetsen of sprake is van een 'goede ruimtelijke ordening' is aangesloten bij het toetsingskader van de Wgh en van het geluidbeleid van de gemeente. Aan dit toetsingskader kan zonder maatregelen worden voldaan. Voor het aspect geluid zal sprake zijn van een goede ruimtelijke ordening als daarnaast voldaan wordt aan de eisen voor het verlenen van een hogere waarde en als voor de woningen wordt voldaan aan de eisen voor de geluidwering conform het Bouwbesluit.
Bij het bepalen van de benodigde geluidwering mag geen aftrek plaatsvinden ex. artikel 110-g Wgh. De hoogst geluidbelaste woningen ondervinden een geluidbelasting van ten hoogste 50 dB zonder aftrek. Voor gevels met een geluidbelasting van ten hoogste 53 dB zonder aftrek bedraagt de benodigde karakteristieke geluidwering GA;k 20 dB. Dit is de minimale waarde conform het Bouwbesluit. Voor deze gevels zijn geen aanvullende geluidwerende voorzieningen nodig.
Geconcludeerd kan worden dat het aspect geluid geen belemmeringen veroorzaakt voor de beoogde ontwikkeling.
4.2.3 Luchtkwaliteit
In de Wet Milieubeheer gaat paragraaf 5.2 over luchtkwaliteit en staat ook wel bekend als de ‘Wet luchtkwaliteit’. Deze wet maakt onderscheid tussen 'kleine' en 'grote' projecten. Kleine projecten dragen 'niet in betekenende mate' (NIBM) bij aan de verslechtering van de luchtkwaliteit. Een paar honderd grote projecten dragen juist wel 'in betekenende mate' bij aan de verslechtering van de luchtkwaliteit. Het gaat hierbij vooral om bedrijventerreinen en infrastructuur (wegen).
Wat het begrip 'in betekenende mate' precies inhoudt, staat in een de algemene maatregel van bestuur ‘Niet in betekenende mate bijdragen’ (Besluit NIBM). Op hoofdlijnen komt het erop neer dat 'grote' projecten die jaarlijks meer dan 3 % bijdragen aan de jaargemiddelde norm voor fijn stof (PM10) en stikstofdioxide (NO2) (1,2 µg/m³) een 'betekenend' negatief effect hebben op de luchtkwaliteit. 'Kleine' projecten die minder dan 3 % bijdragen, kunnen doorgaan zonder toetsing. Dat betekent bijvoorbeeld dat lokale overheden een woonwijk van minder dan 1.500 woningen niet hoeven te toetsen aan de normen voor luchtkwaliteit. Deze kwantitatieve vertaling naar verschillende functies is neergelegd in de 'Regeling niet in betekenende mate bijdragen'.
Een belangrijk onderdeel voor de verbetering van de luchtkwaliteit is het Nationale Samenwerkingsprogramma Luchtkwaliteit (NSL). Binnen dit NSL, dat sinds 1 augustus 2009 in werking is, werken het Rijk, de provincies en gemeenten samen om de Europese eisen voor luchtkwaliteit te realiseren.
Vanaf 1 januari 2015 geldt er ook een grenswaarde voor een kleinere fractie van fijn stof namelijk PM2,5. De grenswaarde voor PM2,5 bedraagt 25 µg/m³. Gezien het grote verschil tussen de grenswaarde en de achtergrondconcentratie zullen overschrijdingen van deze grenswaarde niet vaak voorkomen. Het blijkt dat als de grenswaarde voor PM10 niet wordt overschreden, er geen overschrijding van de grenswaarde voor PM2,5 zal zijn. Het is de verwachting dat door het schoner worden van de autotechniek de concentratie van met name stikstofdioxide in de toekomst nog verder afneemt.
Planspecifiek
De voorgenomen ontwikkeling bestaat uit drie woningen meer dan in het geldende bestemmingsplan is toegestaan. Het project is aan te merken als een project van 'niet in betekenende mate'. Toetsing van het aspect luchtkwaliteit is daardoor, op grond van artikel 4 van de Regeling NIBM, niet noodzakelijk.
In het kader van een goede ruimtelijke ordening is met behulp van de 'Atlas leefomgeving' gekeken naar de luchtkwaliteit in en rondom het plangebied. De achtergrondconcentraties over 2017 van fijnstof (PM10 en PM2,5) en stikstofdioxide (NO2) nabij het plangebied bedragen respectievelijk maximaal 17,9 μg/m³, 10,6 μg/m³ en 19,01 µg/m³. Daarmee wordt ruimschoots voldaan aan de wettelijke grenswaarden van 40 μg/m³ voor fijnstof PM10 en stikstofdioxide en 25 µg/m³ voor fijnstof PM2,5.
Het aspect luchtkwaliteit vormt geen belemmering voor de uitvoerbaarheid van de voorgenomen ontwikkeling.
4.2.4 Milieuzonering
Het aspect milieuzonering gaat in op de invloed die bedrijven kunnen hebben op hun omgeving. Deze invloed is afhankelijk van de afstand tussen een gevoelige bestemming en de bedrijvigheid. Milieugevoelige bestemmingen zijn gebouwen en terreinen die naar hun aard bestemd zijn voor het verblijf van personen gedurende de dag of nacht of een gedeelte daarvan (bijvoorbeeld woningen). Daarnaast kunnen ook landelijke gebieden en/of andere landschappen belangrijk zijn bij een zonering tot andere, minder gevoelige, functies zoals bedrijven.
Bij een ruimtelijke ontwikkeling kan sprake zijn van reeds aanwezige bedrijvigheid en van nieuwe bedrijvigheid. Milieuzonering zorgt er voor dat nieuwe bedrijven een juiste plek in de nabijheid van de gevoelige functie krijgen en dat de (nieuwe) gevoelige functie op een verantwoorde afstand van bedrijven komen te staan. Doel hiervan is het waarborgen van de veiligheid en het garanderen van de continuïteit van de bedrijven alsmede een goed klimaat voor de gevoelige functies.
Milieuzonering beperkt zich tot milieuaspecten met een ruimtelijke dimensie zoals: geluid, geur, gevaar en stof. De mate waarin de milieuaspecten gelden en waaraan de milieucontour wordt vastgesteld, is voor elk type bedrijvigheid verschillend. De Vereniging van Nederlandse Gemeenten (VNG) geeft sinds 1986 de publicatie 'Bedrijven en Milieuzonering' uit. In deze publicatie (editie 2009) is een lijst opgenomen, met daarin de minimale richtafstanden tussen een gevoelige bestemming en bedrijven. Indien van deze richtafstanden afgeweken wordt dient een nadere motivatie gegeven te worden waarom dat wordt gedaan.
Het belang van milieuzonering wordt steeds groter aangezien functiemenging steeds vaker voorkomt. Hierbij is het motto: 'scheiden waar het moet, mengen waar het kan'. Het scheiden van milieubelastende en milieugevoelige bestemmingen dient twee doelen:
- het reeds in het ruimtelijk spoor voorkomen of zoveel mogelijk beperken van hinder en gevaar bij gevoelige bestemmingen;
- het bieden van voldoende zekerheid aan de milieubelastende activiteiten (bijvoorbeeld bedrijven) zodat zij de activiteiten duurzaam, en binnen aanvaardbare voorwaarden, kunnen uitoefenen.
Planspecifiek
De voorgenomen ontwikkeling voorziet in de realisatie van drie woningen aan het Noordeinde. Hiermee is sprake van het toevoegen van een gevoelige bestemming. Er dient getoetst te worden of er sprake is van een goed woon- en leefklimaat met betrekking tot bedrijven en milieuzonering. Hiervoor wordt gebruik gemaakt van de lijst voor functiemenging uit de VNG-publicatie 'Bedrijven en Milieuzonering'. Volgens de VNG-publicatie valt de omgeving van het plangebied dan ook onder een gemengd gebied. Gebieden die direct langs de hoofdinfrastructuur liggen, behoren tot het omgevingstype gemengd gebied. Daarnaast bevindt het plangebied zich aan het bebouwingslint van het Noordeinde, waar zowel woningen als meerdere bedrijven aan gevestigd zijn. Zo zijn er diverse bloemisten en garagebedrijven rondom het plangebied gevestigd. Derhalve kunnen de richtafstanden uit de VNG-publicatie met één afstandstap worden verminderd.
Volgens het geldende bestemmingsplan 'Braassemerland 2019' beschikken de gronden van het Noordeinde 144 over een bedrijfsbestemming. Hier zijn bedrijven met een maximale milieucategorie 2 toegestaan. In een gemengd gebied geldt hiervoor een richtafstand van 10 m. Met een afstand van ca. 85 m tot het plangebied wordt hier ruim aan voldaan.
Aan het Noordeinde 100 bevindt zich een restaurant met milieucategorie 1. De afstand tussen het plangebied en dit restaurant bedraagt ca. 70 m, waarmee ruimschoots voldaan wordt aan de bijbehorende richtafstand van 0 m in een gemengd gebied.
In het westelijk gelegen gebouw wordt naast de appartementen tevens een kantoorruimte mogelijk gemaakt. Voor een kantoor met opslag geldt de milieucategorie 1 met een richtafstand van 0 m in een gemengd gebied. In de opslag worden bouwmaterialen opgeslagen en daarnaast zal de opslag gebruikt worden als archief. Er zullen geen gevaarlijke stoffen en dergelijke opgeslagen worden.
Op locatie betreffende het te handhaven bestaande gebouw blijft op de begane grond, in afgeslankte vorm, bedrijfsactiviteiten in stand. Het betreft de uitoefening van een 'aannemersbedrijf' in ZZP vorm. Een dergelijk bedrijf kan ondergebracht worden in milieucategorie B2. Het betreft dan bedrijfsactiviteiten die in een gemengd gebied kunnen worden uitgeoefend indien deze bouwkundig zijn afgescheiden van woningen, in casu de twee bovenliggende appartementen. Bouwkundig afgescheiden betekent in deze dat er bouwkundige voorzieningen getroffen zijn waardoor milieubelasting voorkomen wordt. Op locatie zelf zullen nagenoeg geen werkzaamheden uitgevoerd worden. Het gebouw, althans de begane grond, wordt voornamelijk gebruikt voor de opslag van bouwmaterialen en lichte werkzaamheden. Daarnaast wordt de verdiepingsvloer/plafond geïsoleerd zodat de mogelijke geluidshinder geminimaliseerd wordt. Gelet op het voorgaande kan gesteld worden dat er voor de vrijstaande woning en de appartementen sprake is van een aanvaardbaar woon- en leefklimaat.
Gelet op voorstaande is er met de beoogde ontwikkeling sprake van een goede ruimtelijke ordening wat betreft milieuzonering. Er kan geconcludeerd worden dat er geen belemmeringen zijn met betrekking tot het aspect milieuzonering.
4.2.5 Externe veiligheid
Sommige activiteiten brengen risico's op zware ongevallen met mogelijk grote gevolgen voor de omgeving met zich mee. Externe veiligheid richt zich op het beheersen van deze risico's. Het gaat daarbij om onder meer de productie, opslag, transport en het gebruik van gevaarlijke stoffen. Dergelijke activiteiten kunnen een beperking opleggen aan de omgeving. Door voldoende afstand tot de risicovolle activiteiten aan te houden kan voldaan worden aan de normen. Aan de andere kant is de ruimte schaars en het rijksbeleid erop gericht de schaarse ruimte zo efficiënt mogelijk te benutten. Het ruimtelijk beleid en het externe veiligheidsbeleid moeten dus goed worden afgestemd. De wetgeving rond externe veiligheid richt zich op de volgende risico’s:
- risicovolle (Bevi-)inrichtingen;
- vervoer gevaarlijke stoffen door buisleidingen;
- vervoer gevaarlijke stoffen over weg, water of spoor.
Daarnaast wordt er in de wetgeving onderscheid gemaakt tussen de begrippen kwetsbaar en beperkt kwetsbaar en plaatsgebonden risico en groepsrisico.
Planspecifiek
Met de beoogde ontwikkeling van woningen is er sprake van een kwetsbare objecten. Daarom dient de externe veiligheid voor de beoogde ontwikkeling getoetst te worden. Navolgende afbeelding toont een uitsnede van de risicokaart ter plaatse van het plangebied.
Uitsnede risicokaart (plangebied zwart omcirkeld, bron: risicokaart.nl)
Transport gevaarlijke stoffen
Op een afstand van ca. 1 km ten westen van het plangebied is de rijksweg A4 gelegen. De A4 is een weg waar gevaarlijke stoffen over worden vervoerd, vanwege het transport van toxische vloeistoffen van categorie LT3 heeft de A4 een effectgebied van meer dan 4 km. Er geldt een plaatsgebonden risicocontour 10-6 van 0 m en een groepsrisicocontour 10-7 van 65 m. Een risicoberekening is echter niet verplicht gezien de ruime afstand tot de A4. Uit eerdere berekeningen (onder andere Risicoberekening BP Bedrijventerrein A4 (ODWH, 2013) en Risicoberekening BP Sotaweg 134-150 (ODWH, 2013)) is bovendien bekend, dat het groepsrisico van de A4 ter hoogte van Roelofarendsveen kleiner is dan 0,1 maal de oriëntatiewaarde van het groepsrisico.
Bij een incident met toxische stoffen op de A4 kan een giftige gaswolk ontstaan die de locatie kan bereiken. Bij een dergelijke calamiteit zijn geen bijzondere voorzieningen nodig om de omvang van een ramp te beperken en om de aanwezige personen veiligheid te bieden. Het sluiten van ramen, deuren en ventilatieroosters, en zoveel mogelijk uitschakelen van ventilatiesystemen na alarmering door de Veiligheidsregio of bericht van NL-Alert, is daarvoor voldoende.
Inrichtingen
In de omgeving van het plangebied zijn geen risicovolle inrichtingen aanwezig. Ook worden er met onderhavig initiatief geen risicovolle inrichtingen mogelijk gemaakt.
Buisleidingen
Uit het raadplegen van de risicokaart blijkt dat er in de omgeving van het plangebied geen buisleidingen zijn gelegen.
Gezien het voorgaande vormt het aspect externe veiligheid geen belemmering voor de voorgenomen ontwikkeling.
4.2.6 Ecologie
Bij ruimtelijke ingrepen dient rekening te worden gehouden met de natuurwaarden ter plaatse. Daarbij wordt onderscheid gemaakt tussen gebiedsbescherming en soortenbescherming. Gebiedsbescherming kan volgen uit de aanwijzing van een gebied. Wat betreft soortenbescherming is per 1 januari 2017 de Flora- en faunawet samen met de Boswet en Natuurbeschermingswet vervangen door de Wet natuurbescherming (Wnb). Onder de Wet natuurbescherming zijn de tabellen 1, 2 en 3 vervallen waarin de beschermde soorten zijn opgenomen. Tevens zijn er circa 200 soorten niet langer beschermd en zijn enkele bedreigde soorten toegevoegd. De soortenbescherming binnen de Wet natuurbescherming is opgedeeld in de volgende beschermingsregimes: Vogelrichtlijnsoorten, Habitatrichtlijnsoorten en andere soorten. Voor alle beschermde soorten geldt een ontheffingsplicht. Het bevoegd gezag (de provincie) kan voor de soorten die zijn opgenomen in het ‘beschermingsregime andere soorten’ vrijstellingbesluit nemen en hierin onderscheid maken tussen meer en minder strikt beschermde soorten.
Daarnaast geldt voor iedereen in Nederland altijd, dus ook los van het voorliggende beoogde ruimtelijke project, dat de zorgplicht nageleefd moet worden bij het verrichten van werkzaamheden. Voor menig soort geldt dat indien deze zorgplicht nagekomen wordt een bepaald beoogd project uitvoerbaar is.
Planspecifiek
Soortenbescherming
In de huidige situatie bestaat het plangebied vrijwel volledig uit verharding. Met de herontwikkeling van het terrein wordt de meest oostelijk gelegen bebouwing gesloopt. Dit betreft bebouwing zonder spouwmuren. Tevens zijn in de gevels van de bebouwing geen gleuven, open stootvoegen of aantrekkelijke dakoverstekken aanwezig, waardoor de bebouwing geen aantrekkelijke locatie is voor beschermde soorten zoals vleermuizen, huismussen en gierzwaluwen. De planlocatie is dan ook geen geschikt leefgebied voor beschermde soorten conform de Wet natuurbescherming.
Op navolgende afbeelding staat de te slopen bebouwing weergeven
De te slopen bebouwing
Voor het te verbouwen kantoorpand en de opslag geldt dat enkel de schil aan de oostzijde van het gebouw wordt aangepast. Ten behoeve van de appartementen wordt een balkon van 3 m diep, over de gele breedte (14,5 m) gerealiseerd. Aan de oostzijde is nu enkel een gemetselde wand aanwezig van 10 cm dik. Tegen deze wand wordt isolatie aangebracht met gevelmetselwerk tot aan de verdieping. Daarboven zitten kozijnen met de toegangsdeuren, deze zijn voorzien van HR++ isolatieglas. De overige werkzaamheden vinden inpandig plaats.
Deze oostzijde waar de werkzaamheden plaatsvinden staat tegen het te slopen gebouw aan. De buitengevels van het te verbouwen kantoorpand zijn aan de zuidzijde van vloer tot dak en aan de west- en noordzijde vanaf de verdiepingsvloer voorzien van sandwichpanelen. De overige gevels bestaan uit een spouwmuur met isolatie. Door de isolatie en doordat de oostzijde tegen het te slopen gebouw aan staat, is de spouwmuur niet toegankelijk voor beschermde soorten. Er kan gesteld worden dat gezien de beperkte werkzaamheden aan de schil en het feit dat de betreffende gevel niet geschikt is als verblijfsplaats voor beschermde soorten er geen negatieve effecten optreden op het gebied van beschermde soorten.
De navolgende afbeeldingen tonen het te verbouwen kantoorpand in de huidige situatie.
Te verbouwen kantoorpand

Te verbouwen kantoorpand (sandwichpanelen)
Ten alle tijden is de algemene zorgplicht van toepassing. Activiteiten welke verstorend zijn voor broedende vogels, zoals rooi- en sloopwerkzaamheden, dienen bij voorkeur buiten de broedperiode gestart te worden. Voordat gestart wordt met verstorende activiteiten, moet worden vastgesteld dat er geen broedende vogels in en direct rond het plangebied aanwezig zijn. Er wordt gelegenheid gegeven aan amfibieën en grondgebonden zoogdieren, die tijdens de werkzaamheden worden gevonden, te vluchten of zich te verplaatsen naar een schuilplaats buiten het bereik van de werkzaamheden. Dit gebeurt door onder andere vegetatie of bodemmateriaal (takken, stronken, steenhopen) gefaseerd te verwijderen.
Gebiedsbescherming
Het plangebied maakt geen onderdeel uit van een Natura 2000-gebied, het Natuurnetwerk Nederland of een belangrijk weidevogelgebied en er zijn geen karakteristieke landschapselementen aanwezig. Het meest nabijgelegen Natura 2000-gebied (De Wilck) bevindt zich op een afstand van ruim 10 km. Gelet op de aard en omvang van het initiatief is van externe werking op de omliggende gebieden geen sprake.
Stikstofdepositie
In de Wet natuurbescherming is voorgeschreven dat voor alle activiteiten die mogelijk een negatief effect hebben op Natura 2000-gebieden een vergunning vereist is. Verzuring en vermesting is één van die mogelijk negatieve effecten. Aangezien de ontwikkeling slecht voorziet in één vrijstaande woning en twee appartementen en gezien de ruime afstand van meer dan 10 km tot het meest nabijgelegen Natura 2000-gebied, is een stikstofdepositieberekening niet noodzakelijk.
Houtopstanden
Op de planlocatie zijn geen houtopstanden aanwezig waarvoor bij kap een melding- of vergunningsplicht geldt.
Conclusie
Geconcludeerd kan worden dat het aspect ecologie geen belemmeringen veroorzaakt voor de beoogde ontwikkeling.
4.3 Water
De waterhuishouding is van groot belang binnen de ruimtelijke ordening. Door verstandig om te gaan met het water kan verdroging en wateroverlast (waaronder ook risico van overstromingen e.d.) voorkomen worden en de kwaliteit van het water hoog gehouden worden.
Op rijksniveau en Europees niveau zijn de laatste jaren veel plannen en wetten gemaakt met betrekking tot water. De belangrijkste hiervan zijn het Waterbeleid voor de 21e eeuw, de Waterwet en het Nationaal Waterplan.
Waterbeleid voor de 21e eeuw
De Commissie Waterbeheer 21e eeuw heeft in augustus 2000 advies uitgebracht over het toekomstige waterbeleid in Nederland. De adviezen van de commissie staan in het rapport ‘Anders omgaan met water, Waterbeleid voor de 21e eeuw’ (WB21). De kern van het rapport WB21 is dat water de ruimte moet krijgen, voordat het die ruimte zelf neemt. In het Waterbeleid voor de 21e eeuw worden twee principes (drietrapsstrategieën) voor duurzaam waterbeheer geïntroduceerd:
- vasthouden, bergen en afvoeren: dit houdt in dat overtollig water zoveel mogelijk bovenstrooms wordt vastgehouden in de bodem en in het oppervlaktewater. Vervolgens wordt zo nodig het water tijdelijk geborgen in bergingsgebieden en pas als vasthouden en bergen te weinig opleveren wordt het water afgevoerd.
- schoonhouden, scheiden en zuiveren: hier gaat het erom dat het water zoveel mogelijk schoon wordt gehouden. Vervolgens worden schoon en vuil water zoveel mogelijk gescheiden en als laatste komt het zuiveren van verontreinigd water aan bod.
Waterwet
Centraal in de Waterwet staat een integraal waterbeheer op basis van de ‘watersysteembenadering’. Deze benadering gaat uit van het geheel van relaties binnen watersystemen. Denk hierbij aan de relaties tussen waterkwaliteit, -kwantiteit, oppervlakte- en grondwater, maar ook aan de samenhang tussen water, grondgebruik en watergebruikers. Het doel van de Waterwet is het integreren van acht bestaande wetten voor waterbeheer. Door middel van één watervergunning regelt de wet het beheer van oppervlaktewater en grondwater en de juridische implementatie van Europese richtlijnen, waaronder de Kaderrichtlijn Water. Via de Waterwet gelden verschillende algemene regels. Niet alles is onder algemene regels te vangen en daarom is er de integrale watervergunning. In deze integrale watervergunning zijn zes vergunningen uit eerdere wetten (inclusief keurvergunning) opgegaan in één aparte watervergunning.
Nationaal Waterplan
Op basis van de Waterwet is het Nationaal Waterplan vastgesteld door het kabinet. Het Nationaal Waterplan geeft op hoofdlijnen aan welk beleid het Rijk in de periode 2016 - 2021 voert om te komen tot een duurzaam waterbeheer. Het Nationaal Waterplan richt zich op bescherming tegen overstromingen, beschikbaarheid van voldoende en schoon water en de diverse vormen van gebruik van water. Het geeft maatregelen die in de periode 2016 - 2021 genomen moeten worden om Nederland ook voor toekomstige generaties veilig en leefbaar te houden en de kansen die water biedt te benutten.
Waterbeheerplan
Voor de planperiode 2016 - 2021 is het Waterbeheerplan (WBP) van hoogheemraadschap van Rijnland van toepassing. In dit plan geeft Rijnland aan wat haar ambities voor de komende planperiode zijn en welke maatregelen in het watersysteem worden getroffen Het WBP legt meer dan voorheen accent op uitvoering.
De drie hoofddoelen zijn veiligheid tegen overstromingen, voldoende water en gezond water. Wat betreft veiligheid is cruciaal dat de waterkeringen voldoende hoog en stevig zijn én blijven en dat rekening wordt gehouden met mogelijk toekomstige dijkverbeteringen. Wat betreft voldoende water gaat het erom het complete watersysteem goed in te richten, goed te beheren en goed te onderhouden. Daarbij wil het hoogheemraadschap dat het watersysteem op orde en toekomstvast wordt gemaakt, rekening houdend met klimaatverandering. Immers, de verandering van het klimaat leidt naar verwachting tot meer lokale en heviger buien, perioden van langdurige droogte en zeespiegelrijzing.
Keur en beleidsregels 2015
De 'Keur en Beleidsregels' maken het mogelijk dat het hoogheemraadschap haar taken als waterkwaliteits- en kwantiteitsbeheerder kan uitvoeren. De Keur is een verordening van de waterbeheerder met wettelijke regels (gebod- en verbodsbepalingen) voor:
- Waterkeringen (onder andere duinen, dijken en kaden),
- Watergangen (onder andere kanalen, rivieren, sloten, beken),
- Andere waterstaatswerken (o.a. bruggen, duikers, stuwen, sluizen en gemalen).
De Keur bevat verbodsbepalingen voor werken en werkzaamheden in of bij de bovengenoemde waterstaatswerken. Er kan een ontheffing worden aangevraagd om een bepaalde activiteit wel te mogen uitvoeren. Als Rijnland daarin toestemt, dan wordt dat geregeld in een Watervergunning op grond van de Keur. De Keur is daarmee een belangrijk middel om via vergunningverlening en handhaving het watersysteem op orde te houden of te krijgen. In de Beleidsregels, die bij de Keur horen, is het beleid van Rijnland nader uitgewerkt. De meest actuele versies betreffen de Keur Rijnland 2015 en de Uitvoeringsregels Keur 2015.
Indien de toename aan verharding minder bedraagt dan 500 m², dan geldt alleen de algemene zorgplicht. Indien de toename meer bedraagt (t/m 5.000 m²) is in de regels opgenomen dat het oppervlak van het ter compensatie aan te leggen water, minimaal 15 % moet bedragen van het oppervlak van de toename aan verharding. Indien nieuwe compensatie moet worden gerealiseerd, moet deze voorafgaand aan het aanbrengen van de verharding zijn gerealiseerd, of gelijktijdig met het aanbrengen van de verharding worden gerealiseerd.
Planspecifiek
Watercompensatie
In de huidige situatie bestaat het plangebied vrijwel volledig uit verhard oppervlak. Met de ontwikkeling van de vrijstaande woning en de appartementen in het bestaande bedrijfsgebouw zal de grens van 500 m² dan ook niet overschreden worden. Het oppervlak aan verharding zal in de toekomstige situatie verminderen. Watercompensatie is derhalve niet vereist voor onderhavig initiatief.
Waterafvoer
De bebouwing dient te voldoen aan het beleid van het hoogheemraadschap van Rijnland over de afvoer van hemelwater en vuilwater. Dit houdt in dat het hemelwater wordt afgekoppeld en het vuilwater via het riool afgevoerd wordt. De voordelen van het afkoppelen van hemelwater zijn:
- de riolering wordt ontlast waardoor minder overstorten van ongezuiverd rioolwater optreden;
- de zuivering krijgt minder schoon water te verwerken waardoor het zuiveringsrendement verbetert;
- schoon hemelwater wordt geloosd in het gebied waar het valt, zodat er in droge tijden geen gebiedsvreemd water ingelaten hoeft te worden.
Voor zowel de appartementen als de vrijstaande woning geldt dat het hemel water afgekoppeld wordt en het vuilwater aangesloten wordt op het bestaande rioolstelsel. Hiermee wordt voldaan aan het beleid van het hoogheemraadschap van Rijnland. Geconcludeerd kan worden dat het aspect water geen belemmeringen vormt voor het beoogde initiatief.
4.4 Archeologie en Cultuurhistorie
4.4.1 Archeologie
In 1992 is in Valletta (Malta) het Europees Verdrag inzake de bescherming van het archeologisch erfgoed (Verdrag van Malta) ondertekend. Het Verdrag van Malta voorziet in bescherming van het Europees archeologisch erfgoed onder meer door de risico's op aantasting van dit erfgoed te beperken. Per 1 juli 2016 is de Erfgoedwet ingegaan totdat de Omgevingswet in werking treedt. De Erfgoedwet bundelt bestaande wet- en regelgeving voor behoud en beheer van het cultureel erfgoed in Nederland. Onder andere de Monumentenwet is hierin opgegaan. Op basis van de Erfgoedwet zijn mogelijke (toevals)vondsten bij het verrichten van werkzaamheden in de bodem altijd beschermd. Artikel 5.10 lid 1 van de Erfgoedwet stelt namelijk: 'Degene die anders dan bij het verrichten van opgravingen een vondst doet waarvan hij weet dan wel redelijkerwijs moet vermoeden dat het een archeologische vondst betreft, meldt dit zo spoedig mogelijk bij Onze Minister'.
Planspecifiek
De gemeente Kaag en Braassem heeft een archeologische beleidskaart op laten stellen voor haar gebied. Navolgende afbeelding toont een uitsnede van de archeologische beleidskaart ter plaatse van het plangebied.
Uitsnede archeologische beleidskaart (plangebied zwart omcirkeld)
Conform de archeologische beleidskaart van de gemeente Kaag en Braassem ligt het plangebied grotendeels in het gebied aangeduid als 'Historische kernen' en 'Ontginningsassen'. Hierbij geldt dat bij bodemingrepen groter dan 150 m² en dieper dan 30 cm het uitvoeren van een archeologisch onderzoek noodzakelijk is. Om die reden is door Transect een archeologisch onderzoek uitgevoerd (18 juni 2020, Transect B.V., zie
bijlagen bij toelichting bijlage 5).
Op basis van de resultaten geldt voor wat betreft het Neolithicum een lage archeologische verwachting, aangezien in die tijd het plangebied in een Waddenzee gelegen heeft. Deze omstandigheden waren dermate nat, dat ze geen bewoningsmogelijkheden bodem. Er zijn immers ook geen aanwijzingen of sporen van bodemvorming of rijping in de top ervan waargenomen. De kans dat zich daarom een intacte vindplaats uit het Neolithicum in het plangebied bevindt is hierdoor klein.
De top van het veen is niet meer intact en zichtbaar veraarde trajecten ontbreken. Ook binnen het veen zijn geen aanwijzingen voor relevante bodemniveaus waargenomen. Zodoende is de archeologische verwachting op resten uit de periode Bronstijd-Vroege Middeleeuwen laag.
Voor wat betreft de Late-Middeleeuwen-Nieuwe tijd is de verwachting in het plangebied laag. In het toemaakdek zijn geen archeologische indicatoren waargenomen die wijzen op bewoning. Tevens is de top van het toemaakdek verstoord te noemen door de aanleg van de huidige bedrijfsloods.
Conclusie
In het plangebied is sprake van een lage archeologische verwachting. Er zijn dan ook geen bezwaren voor het uitvoeren van de voorgenomen bodemingrepen. Er wordt geadviseerd om het plangebied archeologisch vrij te geven voor eventuele toekomstige bodemverstorende werkzaamheden. Het aspect archeologie vormt dan ook geen belemmeringen voor de beoogde ontwikkeling.
4.4.2 Cultuurhistorie
Goede ruimtelijke ordening betekent dat er een integrale afweging plaatsvindt van alle belangen die effect hebben op de kwaliteit van de ruimte. Een van die belangen is de cultuurhistorie. Het bestemmingsplan is een belangrijk instrument om cultuurhistorische waarden in een gebied te beschermen.
Per 1 januari 2012 is in het kader van de modernisering van de monumentenzorg (MOMO) in het Besluit ruimtelijke ordening van het rijk opgenomen dat gemeenten bij het maken van bestemmingsplannen rekening moeten houden met cultuurhistorische waarden.
Planspecifiek
De planlocatie maakt geen deel uit van een beschermd dorpsgezicht en de bestaande bebouwing betreft geen gemeentelijk of rijksmonument. Ook zijn er geen andere cultuurhistorische elementen aanwezig binnen het plangebied. Ten noordwesten van de planlocatie bevindt zich aan het Noordeinde 110 een gemeentelijk monument. De boogde ontwikkeling heeft verder geen invloed op dit monument.
Gezien het voorgaande dient te worden geconcludeerd dat het aspect cultuurhistorie geen belemmering vormt voor de uitvoerbaarheid van het voorgenomen plan.
4.5 Verkeer en parkeren
Onderdeel van een goede ruimtelijke ordening is het effect van een beoogd nieuw project op de verkeersstructuur en het parkeren in en rondom het plangebied.
4.5.1 Verkeer
Voor het maken van een inschatting van de hoeveelheid autoverkeer dat wordt gegenereerd bij ruimtelijke ontwikkelingen, zijn kencijfers verkeersgeneratie ontwikkeld. Onder verkeersgeneratie wordt hierbij verstaan de totale hoeveelheid gemotoriseerd verkeer (exclusief openbaar vervoer) die gedurende een gekozen tijdsperiode naar de beoogde ontwikkeling toe rijdt en hiervan wegrijdt.
Het nationale kennisplatform voor infrastructuur, verkeer, vervoer en openbare ruimte (CROW) geeft in publicatie 381 'Toekomstbestendig parkeren, van parkeerkencijfers naar parkeernormen' kencijfers voor verkeersgeneratie. In de richtlijnen wordt onderscheid gemaakt op basis van de functie van de ontwikkeling (wonen, bedrijf, etc.) en op basis van de locatiekenmerken. Zodoende kan bij ruimtelijke ontwikkelingen voor vrijwel elke locatie een goed beeld worden verkregen wat de totale verkeersaantrekkende werking bedraagt.
Planspecifiek
De ontwikkeling van één vrijstaande woning en twee appartementen brengt verkeersbewegingen met zich mee. Om de verkeersgeneratie te bepalen is de CROW-publicatie 381 'Toekomstbestendig parkeren' geraadpleegd. Het plangebied bevindt zich in 'rest bebouwde kom' en 'weinig stedelijk' gebied. In navolgende tabel staat de verkeersgeneratie conform de CROW-publicatie 381 weergegeven.
| Soort woning | Aantal | CROW verkeersgeneratie | Totale verkeersgeneratie |
| Koop, huis, vrijstaand | 1 | 8,2 | 8,2 |
| Huur, appartement, midden/goedkoop | 2 | 4,1 | 8,2 |
| Totaal | 3 | | 16,4 |
De totale verkeersgeneratie die de vrijstaande woning en de twee appartementen met zich meebrengen bedraagt 16,4 verkeersbewegingen per etmaal. De planlocatie is ontsloten met een inrit aan het Noordeinde. Gezien de geringe toename van het aantal verkeersbewegingen kan gesteld worden dat de verkeersgeneratie opgevangen kan worden met de huidige ontsluiting.
Daarnaast zal de verkeersgeneratie ten opzichte van de huidige situatie sterk afnemen. De verkeersgeneratie in de bestaande situatie kan eveneens berekend worden aan de hand van CROW-publicatie 381. Hierbij wordt de categorie ‘bedrijf arbeidsintensief/bezoekersextensief’ gebruikt eveneens in ‘rest bebouwde kom’ en ‘weinig stedelijk’ gebied. Hierbij hoort een gemiddelde verkeersgeneratie van 10 verkeersbewegingen per etmaal per 100 m² bvo. Uitgaande van een bvo van ca. 1.240 m² resulteert dit in een verkeersgeneratie van 124 verkeersbewegingen per etmaal. Daarmee kan gesteld worden dat de verkeersgeneratie in de toekomstige situatie aanzienlijk afneemt ten opzichte van de bestaande situatie.
Geconcludeerd kan worden dat het aspect verkeer geen belemmeringen veroorzaakt voor de beoogde ontwikkeling.
4.5.2 Parkeren
Het benodigde of gewenste aantal parkeerplaatsen bij ruimtelijke ontwikkelingen kan worden bepaald op basis van parkeerkencijfers of op basis van parkeernormen. Parkeerkencijfers zijn op de praktijk gebaseerde cijfers van de verwachte parkeerbehoefte. Parkeernormen staan voor het aantal vereiste parkeerplaatsen per type bestemming. Op basis van deze parkeernormen wordt parkeerbeleid veelal vormgegeven.
Het nationale kennisplatform voor infrastructuur, verkeer, vervoer en openbare ruimte (CROW) geeft in publicatie 381 'Toekomstbestendig parkeren, van parkeerkencijfers naar parkeernormen' richtlijnen voor parkeernormen. In de richtlijnen wordt onderscheid gemaakt op basis van de functie van de ontwikkeling (wonen, bedrijf, etc.) en op basis van de locatiekenmerken. Zodoende kan bij ruimtelijke ontwikkelingen voor vrijwel elke locatie een goed beeld worden verkregen of voorzien wordt in voldoende (auto)parkeerplaatsen. Voorts voorziet de publicatie in minimale voorwaarden voor parkeervoorzieningen.
Planspecifiek
De gemeente Kaag en Braassem heeft de Nota parkeernormen 2018 opgesteld om voor de gehele gemeente de parkeernormen voor de komende jaren vast te leggen.
| Soort woning | Aantal | Parkeernorm | Totaal aantal parkeerplaatsen |
| Grondgebonden, vrijstaand | 1 | 2,3 | 2,3 |
| Appartementen, etage, goedkoop (< 65 m²) | 2 | 1,6 | 3,2 |
| Totaal | 3 | | 5,5 |
Zoals in bovenstaande tabel staat aangegeven moeten er met de ontwikkeling afgerond 6 parkeerplaatsen mogelijk gemaakt worden. Het plangebied beschikt over voldoende ruimte om het benodigde aantal parkeerplaatsen op eigen terrein te realiseren.
Het aspect parkeren vormt geen belemmering voor de beoogde ontwikkeling.
5 Economische uitvoerbaarheid
Bij de voorbereiding van een bestemmingsplan dient, op grond van artikel 3.1.6 lid 1, sub f van het Bro, onderzoek plaats te vinden naar de (economische) uitvoerbaarheid van het plan. In principe dient bij vaststelling van een ruimtelijk besluit tevens een exploitatieplan vastgesteld te worden om verhaal van plankosten zeker te stellen. Op basis van ‘afdeling 6.4 grondexploitatie', artikel 6.12, lid 2 van de Wro kan de gemeenteraad bij het besluit tot vaststelling van het bestemmingsplan echter besluiten geen exploitatieplan vast te stellen indien:
- het verhaal van kosten van de grondexploitatie over de in het plan of besluit begrepen gronden anderszins verzekerd is;
- het bepalen van een tijdvak of fasering als bedoeld in artikel 6.13, eerste lid, onder c, 4°, onderscheidenlijk 5°, niet noodzakelijk is;
- het stellen van eisen, regels, of een uitwerking van regels als bedoeld in artikel 6.13, tweede lid, onderscheidenlijk b, c of d, niet noodzakelijk is.
Planspecifiek
Het uitvoeren van het project heeft geen financiële gevolgen voor de gemeente. De verkleuring van de bedrijfsbestemming naar wonen heeft wel tot gevolg dat het achterliggende gebied, behorende bij Braassemerland, in ontwikkeling genomen kan worden. De financiële verantwoordelijkheid voor het project en het daarbij horende risico wordt volledig gedragen door de initiatiefnemer. De gemeente heeft ten behoeve van het project met de initiatiefnemer een anterieure overeenkomst gesloten, als bedoeld in artikel 6.4a Wet ruimtelijke ordening. In deze overeenkomst wordt onder andere de betaling van de eventuele tegemoetkoming in de planschade, die het nieuwe planologisch kader kan veroorzaken, geregeld. De kosten zijn dankzij de overeenkomst anderszins verzekerd waardoor een exploitatieplan niet nodig is. De economische uitvoerbaarheid van het plan is derhalve verzekerd.
6 Maatschappelijke uitvoerbaarheid
6.1 Algemeen
Bij de voorbereiding van een ontwerp bestemmingsplan dient op grond van artikel 3.1.6 lid 1 Wro sub c overleg te worden gevoerd als bedoeld in artikel 3.1.1 Bro. Op basis van het eerste lid van dit artikel wordt overleg gevoerd met waterschappen en met die diensten van provincie en Rijk die betrokken zijn bij de zorg voor de ruimtelijke ordening of belast zijn met de behartiging van belangen welke in het plan in het geding zijn.
Een ontwerp bestemmingsplan dient conform afdeling 3.4 Awb gedurende 6 weken ter inzage gelegd worden. Hierbij is er de mogelijkheid voor een ieder om zienswijzen in te dienen op het plan. Na vaststelling door de Raad wordt het vaststellingsbesluit bekend gemaakt. Het bestemmingsplan ligt na bekendmaking 6 weken ter inzage. Gedurende deze termijn is er de mogelijkheid beroep in te dienen bij de Afdeling bestuursrechtspraak van de Raad van State. Het bestemmingsplan treedt vervolgens de dag na afloop van de tervisielegging in werking als er geen beroep is ingesteld. Is er wel beroep ingesteld dan treedt het bestemmingsplan ook in werking, tenzij naast het indienen van een beroepschrift ook om een voorlopige voorziening is gevraagd. De schorsing van de inwerkingtreding eindigt indien de voorlopige voorziening wordt afgewezen. De procedure eindigt met de uitspraak van de Afdeling bestuursrechtspraak van de Raad van State.
6.2 Verslag artikel 3.1.1 Bro overleg
In deze paragraaf of in een separate bijlage worden te zijner tijd de resultaten van het wettelijk vooroverleg opgenomen.
6.3 Verslag zienswijzen
In deze paragraaf of in een separate bijlage worden te zijner tijd de eventuele zienswijzen op het ontwerp bestemmingsplan en de gemeentelijke reactie hierop opgenomen.
7 Juridische planbeschrijving
7.1 Algemeen
Voor het bestemmingsplan is gebruik gemaakt van de in de Wet ruimtelijke ordening opgenomen standaardvorm van de Standaard Vergelijkbare Bestemmingplannen 2012 (SVBP 2012).
Dit bestemmingsplan bestaat uit een verbeelding, planregels en een toelichting. De verbeelding en de planregels vormen samen het juridisch bindende gedeelte van het bestemmingsplan. Beide planonderdelen dienen in onderlinge samenhang te worden bezien en toegepast. Op de verbeelding zijn de bestemmingen aangewezen. Aan deze bestemmingen zijn bouwregels en regels betreffende het gebruik gekoppeld.
De toelichting heeft geen rechtskracht, maar vormt niettemin een belangrijk onderdeel van het plan. De toelichting van dit bestemmingsplan geeft de beweegredenen, de onderzoeksresultaten en de beleidsuitgangspunten weer die aan het bestemmingsplan ten grondslag liggen. Ook is de toelichting van wezenlijk belang voor een juiste interpretatie en toepassing van het bestemmingsplan. Tot slot maakt een eventuele bijlage onlosmakelijk onderdeel uit van het bestemmingsplan.
7.2 Verbeelding
Op de verbeelding worden de bestemmingen weergegeven, met daarbij andere bepalingen als gebiedsaanduidingen, bouwaanduidingen, bouwvlakken etc.. Voor de analoge verbeelding is gebruik gemaakt van een digitale ondergrond (Grootschalige Basiskaart en/of kadastrale kaart).
7.3 Planregels
De planregels zijn onderverdeeld in vier hoofdstukken. Hoofdstuk I bevat de inleidende regels voor het hele plangebied. Hoofdstuk II geeft de bestemmingsregels. Hoofdstuk III geeft vervolgens de algemene regels waaronder (mogelijke) flexibiliteitsbepalingen in de vorm van wijzigings- en afwijkingsbevoegdheden. In dit derde hoofdstuk kunnen belangrijke algemene bepalingen zijn opgenomen die van invloed zijn op het bepaalde in hoofdstuk II. Ten slotte regelt hoofdstuk IV de overgangs- en slotbepalingen.
Voor de planregels is de gestandaardiseerde opbouw uit de SVBP 2012 gebruikt. In de planregels is een standaard hoofdstukindeling aangehouden die begint met 'Inleidende regels' (begrippen en wijze van meten), vervolgens met de 'Bestemmingsregels', de 'Algemene regels' (de regels die voor alle bestemmingen gelden) en de 'Overgangs- en slotregels'. In het tweede hoofdstuk, de Bestemmingsregels, staan de verschillende bestemming op alfabetische volgorde. Ook dit hoofdstuk kent een standaardopbouw:
- Bestemmingsomschrijving (in elk bestemmingsplan);
- Bouwregels (bestemmingsplanafhankelijk);
- Nadere eisen (bestemmingsplanafhankelijk);
- Afwijken van de bouwregels (bestemmingsplanafhankelijk);
- Specifieke gebruiksregels (bestemmingsplanafhankelijk);
- Afwijken van de gebruiksregels (bestemmingsplanafhankelijk);
- Omgevingsvergunning voor het uitvoeren van een werk, geen bouwwerk zijnde, of van werkzaamheden (bestemmingsplanafhankelijk).
7.4 Wijze van bestemmen
Voorliggend bestemmingsplan bevat de volgende bestemmingen:
'Tuin'
De inrit vanaf het Noordeinde is voorzien van de bestemming 'Tuin'. Binnen deze bestemming zijn de gronden onder andere bestemd voor tuinen, groenvoorzieningen, parkeervoorzieningen, toegangswegen en inritten en insteekhavens. De bouwmogelijkheden binnen deze bestemming zijn beperkt.
'Wonen'
De bestemming 'Wonen' is opgenomen voor de woningen binnen het plangebied. Woningen dienen binnen het bouwvlak gebouwd te worden. Ter plaatse van de aanduiding 'vrijstaand' is uitsluitend een vrijstaande woning toegestaan. Voor de appartementen is de aanduiding 'gestapeld' opgenomen. Tevens ter plaatse van de aanduiding 'kantoor' is een kantoor met bijhorende opslag toegestaan en is ter plaatse van de aanduiding 'bedrijf' ook een eenmanszaak in de aannemerij toegestaan die wordt uitgeoefend door de bewoner woonachtig op locatie. Maximaal is milieucategorie B2 toegestaan zoals opgenomen in de 'staat van bedrijven gemengd'.