direct naar inhoud van Toelichting
Plan: Ripselaan 6, Rijpwetering
Status: vastgesteld
Plantype: bestemmingsplan
IMRO-idn: NL.IMRO.1884.BPRIPSELAAN6-VAS1

Toelichting

Hoofdstuk 1 Inleiding

1.1 Aanleiding voor het plan

Voorliggend plan betreft een gedeeltelijke herziening van het bestemmingsplan "Buitengebied West" van gemeente Kaag en Braassem ten behoeve van het vergroten van het bouwvlak aan de Ripselaan 6 te Rijpwetering. De initiatiefnemer runt ter plaatse een manage, een paardenhouderij en een opfokbedrijf voor jongvee. Het voornemen is om het bouwvlak te vergroten naar 1,7 hectare ten behoeve van de uitbreiding van het parkeerterrein, het overdekken van de buitenrijbak en het realiseren van een recreatiewoning.

De aanpassing van het bestemmingsplan voorziet tevens in het verwijderen van de functieaanduiding 'intensieve veehouderij'. Er zijn ter plaatse geen varkens meer aanwezig en op deze wijze wordt uitgesloten dat er in de toekomst een intensieve veehouderij opgericht kan worden op de locatie.

In het hoofdstuk "Planbeschrijving" (hoofdstuk 2) wordt het initiatief verder toegelicht, daar is ook een situatietekening van de nieuwe situatie opgenomen.

De voorgenomen ontwikkeling is noodzakelijk om een aantal redenen. Het parkeerterrein biedt onvoldoende parkeerplaatsen. Het is daarom wenselijk om het parkeerterrein uit te breiden met 600 m². Daarnaast is aan de oostzijde van het bedrijf een paardenbak gesitueerd, welke zich voor een klein deel (circa 780 m²) buiten het bouwvlak bevindt. Tevens wordt deze rijbak overdekt. De paardenbak heeft een oppervlakte van ongeveer 3000 m². Om beide ontwikkeling planologisch mogelijk te maken is het noodzakelijk om het bouwvlak te vergroten. Met de vergroting van het bouwvlak wordt tevens de mogelijkheid gecreëerd om planologisch een reactiewoning toe te voegen.

De huidige parkeerplaatsen zijn niet voldoende voor het aantal paarden. Hierdoor dienen er meer parkeerplaatsen te worden gerealiseerd. Voor bovengenoemde redenen is een bouwvlak van 1,7 hectare noodzakelijk met de beperking van het bebouwingspercentage.

De gewenste ontwikkeling past niet binnen het bepaalde in het geldende bestemmingsplan. De gemeente heeft aangegeven in principe medewerking te willen verlenen met de voorgenomen ontwikkeling, mits hiervoor een partiële herziening op het bestemmingsplan wordt opgesteld conform artikel 3.1 van de Wet ruimtelijke ordening (Wro). Voorliggend document dient als toelichting waarin nader wordt gemotiveerd waarom de ontwikkeling mogelijk kan worden gemaakt en deze niet zal leiden tot onevenredige bezwaren op ruimtelijk en/of milieutechnisch vlak.

1.2 Planlocatie

De projectlocatie is gelegen aan de Ripselaan 6 te Rijpwetering en ligt aan de oostkant van Rijpwetering in het landelijk gebied van gemeente Kaag en Braassem. De locatie is kadastraal bekend onder gemeente Alkemade, sectie D, nummers 2431, 2433, 2434 & 3801.

In de volgende figuur is de topografische ligging van de locatie weergegeven.

afbeelding "i_NL.IMRO.1884.BPRIPSELAAN6-VAS1_0001.png"

Figuur 1. Uitsnede topografische kaart locatie (bron: www.opentopo.nl).

1.3 Geldende bestemmingsplannen

Ter plaatse is het bepaalde uit het bestemmingsplan "Buitengebied West" van de gemeente Kaag en Braassem, zoals vastgesteld door de gemeenteraad op 17 juni 2013, onverkort van toepassing.

Zoals te zien in de volgende figuur is ter plaatse de bestemming 'Gemengd' toegekend. Tevens is ter plaatse de functieaanduiding intensieve veehouderij van toepassing. De locatie heeft ook de gebiedsaaduiding milieuzone - ruwvoeder. Ter plaatse van de aanduiding 'milieuzone - ruwvoeder' is, de teelt van maïs/ruwvoeder niet toegestaan.

afbeelding "i_NL.IMRO.1884.BPRIPSELAAN6-VAS1_0002.png" Figuur 2. Uitsnede verbeelding bestemmingsplan (bron: www.ruimtelijkeplannen.nl).

De voorgenomen ontwikkeling past niet binnen de bepalingen uit het geldende bestemmingsplan. In het geldende bestemmingsplan is eveneens geen afwijkingsmogelijkheid en/of wijzigingsbevoegdheid opgenomen om de voorgenomen ontwikkeling mogelijk te maken. Om deze reden is het noodzakelijk het geldende bestemmingsplan gedeeltelijk te herzien met een partiële herziening (ook wel postzegelbestemmingsplan genoemd). De gemeente heeft aangegeven in principe medewerking te willen verlenen, mits wordt aangetoond dat de ontwikkeling niet zal leiden tot bezwaren op ruimtelijk en/of milieutechnisch vlak. Middels voorliggende toelichting wordt de ontwikkeling nader gemotiveerd en wordt aangetoond dat deze niet zal leiden tot onevenredige bezwaren op ruimtelijk en/of milieutechnisch vlak.

1.4 Leeswijzer

Deze toelichting is als volgt opgebouwd:

  • Hoofdstuk 2 gaat in op de huidige en gewenste situatie en bevat een beschrijving van de situatie ter plaatse zoals momenteel bekend en de gewenste situatie ter plaatse na realisatie van de plannen van de initiatiefnemer.
  • Hoofdstuk 3 gaat in op de vigerende beleidskaders. Hierin worden de plannen van de initiatiefnemer getoetst aan het ruimtelijk beleid van het rijk, de provincie en de gemeente.
  • Hoofdstuk 4 gaat in op de toetsing van het plan aan de aspecten milieu, ecologie, archeologie en cultuurhistorie, verkeer en parkeren en water. Hierin worden verschillende bureaustudies beschreven en, indien van toepassing, uitgevoerde aanvullende onderzoeken beschreven.
  • Hoofdstuk 5 gaat in op de uitvoerbaarheid van het plan. Hierin worden de financiële en maatschappelijke uitvoerbaarheid van het plan getoetst en wordt kort ingegaan op het aspect handhaving.
  • Hoofdstuk 6 bevat de wijze van bestemmen. Hierin wordt nader gespecificeerd welke onderdelen een bestemmingsplan hoort te bevatten en welke bijzondere bepalingen ten aanzien van voorliggend plan van toepassing zijn.

Hoofdstuk 2 Planbeschrijving

2.1 Huidige situatie

2.1.1 Gebiedsprofiel

De locatie is gelegen in het landelijk gebied van gemeente Kaag en Braassem.

De omgeving van de locatie bestaat voornamelijk uit agrarisch landschap. De verkavelingsstructuur betreft een strokenverkaveling met een grootschalige opzet. De onderlinge kavels worden gescheiden door kavelsloten en/of lijnen in het landschap.

In de nabije omgeving van de locatie zijn enkele agrarische bedrijven en burgerwoningen gelegen. Tevens is nabij de locatie een recreatiebedrijf gelegen. De locatie is op ongeveer 320 meter van de kern Rijpwetering gelegen.

afbeelding "i_NL.IMRO.1884.BPRIPSELAAN6-VAS1_0003.png"

Figuur 3. Luchtfoto gebiedsprofiel (bron: ruimtelijkeplannen.nl).

2.1.2 Ruimtelijke structuur

Op de locatie is momenteel een een manage, een paardenhouderij en een opfokbedrijf voor jongvee gevestigd. Ter paatse zijn een paardenstal/werkplaats, een paardenstal/rijhal, een vrijloopstal, een werktuigenberging/rijhal, een rundveestal, een werktuigenberging en een buiten rijbak aanwezig.

Het huidige bouwvlak is ongeveer momenteel 1,54 hectare groot. In de volgende figuur is een luchtfoto opgenomen van de huidige situatie.

afbeelding "i_NL.IMRO.1884.BPRIPSELAAN6-VAS1_0004.png"

Figuur 4. Luchtfoto huidige situatie (bron: ruimtelijkeplannen.nl).

2.2 Gewenste situatie

2.2.1 Nieuwe situatie en landschappelijke inpassing

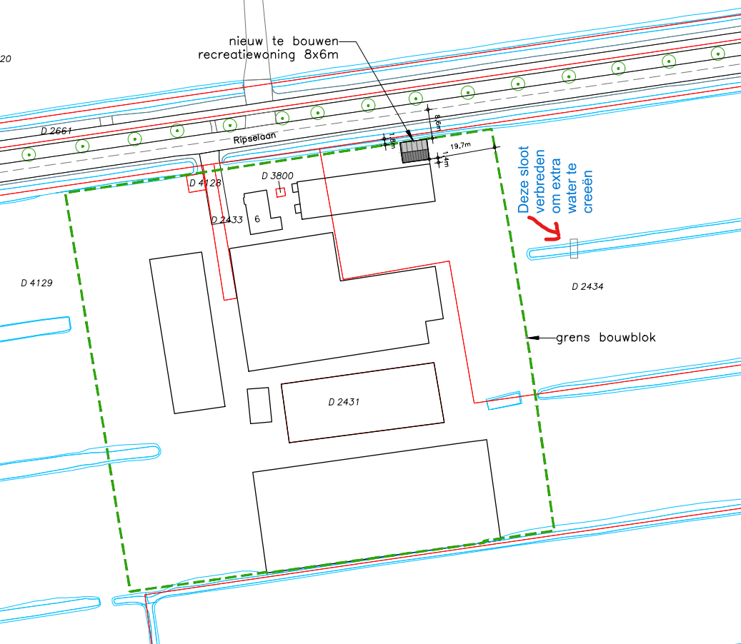
De initiatiefnemer is voornemens ter plaatse het bouwvlak te vergroten naar 1,7 hectare ten behoeve van de uitbreiding van het parkeerterrein, het overdekken van de buitenrijbak en het realiseren van een recreatiewoning.

De uitbreiding van het bouwvlak is nodig voor de parkeervoorzieningen en slechts in beperkte mate voor gebouwen (overkapping paardenbak). Omdat de uitbreiding van het bouwvlak vooral voorziet in ruimte voor bouwwerken, geen gebouwen zijnde en verharding is het niet nodig om binnen het hele bouwvlak mogelijkheden op te nemen voor het bouwen van gebouwen en dat om te borgen dat niet het hele bouwvlak wordt volgebouwd met bedrijfsgebouwen een maximaal percentage geldt voor gebouwen.

Het maximum bebouwd oppervlak wordt middels een functieaanduiding 'maximum bebouwingspercentage: 80%' vastgelegd in de planregels en op de verbeelding. Hiermee wordt het parkeren binnen het bouwvlak mogelijk gemaakt. Daarbij wordt door het toevoegen van het maximaal bebouwingspercentage het maximale aantal m2 aan gebouwen beperkt. Een maximum van 80% aan bebouwing betekent in de praktijk een bouwvlak van ongeveer 1,6 hectare voor gebouwen.

Om dit mogelijk te maken wil de initiatiefnemer de functieaanduiding 'intensieve veehouderij' inleveren. Er zijn ter plaatse immers geen varkens meer aanwezig en op deze wijze wordt uitgesloten dat er in de toekomst een intensieve veehouderij opgericht kan worden.

Conform de huidige milieu- en Natuurbeschermingswetvergunning worden ter plaatse 100 stuks vrouwelijk jongvee A3.100, 186 volwassen paarden K1.100 en 30 volwassen pony's K3.100 gehouden.

In de volgende figuur is de gewenste situatie in een situatietekening weergegeven. Een volledige situatietekening op schaal is als bijlage 1 bij deze onderbouwing opgenomen.

afbeelding "i_NL.IMRO.1884.BPRIPSELAAN6-VAS1_0005.png" Figuur 5. Situatietekening gewenste situatie (bron: DLV Advies).

Op de locatie is reeds sprake van een ingepast geheel aan bebouwing. De huidige uitbreiding van het bestemmingsvlak heeft een beperkte ingreep in de ruimtelijke structuur. Het parkeerterrein valt reeds gedeeltelijk weg door de aanwezige beplanting en de afscheiding middels een sloot. De landschappelijk inpassing is bijgevoegd in Bijlage 2 Beplantingsplan. Hiermee kan worden gesteld dat ter plaatse wordt voorzien in een goede landschappelijke inpassing.

Hoofdstuk 3 Beleidskader

3.1 Rijksbeleid

3.1.1 Nationale omgevingsvisie

Op 11 september 2020 heeft de Rijksoverheid de Nationale Omgevingsvisie (NOVI) vastgesteld. De NOVI is de langetermijnvisie van het Rijk op de toekomstige inrichting en ontwikkeling van de leefomgeving in Nederland.

Nederland staat voor een aantal urgente maatschappelijke opgaven die zowel lokaal als regionaal, nationaal en internationaal spelen. Grote en complexe opgaven zoals klimaatverandering, energietransitie, circulaire economie, bereikbaarheid en woningbouw zullen Nederland flink veranderen. Nederland heeft echter een lange traditie van aanpassen. Deze opgaven worden dan ook benut om vooruit te komen en tegelijkertijd het mooie van Nederland te behouden voor de volgende generaties.

Met de NOVI wordt een perspectief om deze grote opgaven aan te pakken geboden, om samen het land mooier en sterker te maken en daarbij voort te bouwen op het bestaande landschap en de (historische) steden. Omgevingskwaliteit is het kernbegrip: dat wil zeggen ruimtelijke kwaliteit én milieukwaliteit. Met inachtneming van maatschappelijke waarden en inhoudelijke normen voor bijvoorbeeld gezondheid, veiligheid en milieu. In dat samenspel van normen, waarden en collectieve ambities, stuurt de NOVI op samenwerking tussen alle betrokken partijen. Met de ambities van het Rijk wordt veel gevraagd van de leefomgeving. De ambities vragen meer ruimte dan er eigenlijk beschikbaar is. Derhalve wordt de volgende conclusie gesteld: niet alles kan en niet alles kan overal. De vraag daarbij is hoe kansen kunnen worden verzilverd en eventuele bedreigingen het hoofd geboden kunnen worden. Het Rijk moet en wil in dit proces het voortouw nemen. Schaarste betekent immers dat moet worden gekozen.

De NOVI stelt een nieuwe aanpak voor: integraal, samen met andere overheden en maatschappelijke organisaties, en met meer regie vanuit het Rijk. Met steeds een zorgvuldige afweging van belangen wordt gewerkt aan de prioriteiten van de overheid: ruimte voor klimaatadaptatie en energietransitie, een duurzaam en (circulair) economisch groeipotentieel, sterke en gezonde steden en regio's en een toekomstbestendige ontwikkeling van het landelijk gebied. Voor deze prioriteiten zijn voor zowel de korte als lange termijn maatregelen nodig die in de praktijk voortdurend op elkaar inspelen. Daarbij staan de volgende maatregelen centraal:

  • 1. Klimaatbestendige inrichting in 2050:
    Hierbij is het van belang dat het watergebruik beter wordt afgestemd op het beschikbare water en dat water langer wordt vastgehouden, dat functies die gebruik maken van de fysieke leefomgeving moeten meer worden afgestemd op de eigenschappen van het bodem-watersysteem en dat de energietransitie naar een volledig duurzame energiewinning verder wordt gestimuleerd en ontwikkeld.
  • 2. Duurzame en circulaire economie:
    Hierbij is het van belang dat de gevolgen voor de economie, mede door de COVID-19 pandemie, zoveel mogelijk worden beperkt en dat bij de locaties van kantoren, bedrijventerreinen, grootschalige logistieke functies en datacentra, naast de vraag van bedrijven en economische vitaliteit, aansluiting wordt gehouden op het verkeers en vervoersnetwerk, het elektriciteitsnetwerk en rekening wordt gehouden met de aantrekkelijkheid en kwaliteit van stad en land. Daarbij wordt ingezet op actieve clustering van (grootschalige) logistieke functies op logistieke knooppunten langs (inter)nationale corridors en worden investeringen gedaan in het duurzaam en circulair maken van de economie en energievoorziening in samenhang met het versterken van de kwaliteit van de leefomgeving.
  • 3. Ontwikkeling Stedelijk Netwerk Nederland:
    Hierbij is het van belang dat wordt gebouwd aan sterke, aantrekkelijke en gezonde steden met een goed bereikbaar netwerk van steden en regio's, dat de woningbouw een nieuwe, stevige impuls wordt gegeven en dat zo veel mogelijk in bestaand stedelijk gebied wordt ontwikkeld, klimaatbestendig en natuurinclusief. Daarbij behouden grote open ruimten tussen de steden het groene karakter, wordt het aanbod en de kwaliteit van groen in de stad versterkt en wordt de aansluiting op het groene gebied buiten de stad verbeterd.
  • 4. Geleidelijke en zorgvuldige herindeling van het landelijk gebied:
    Hierbij is het van belang dat de biodiversiteit wordt verbeterd, dat steeds meer richting wordt gegeven aan een duurzame kringlooplandbouw in goed evenwicht met natuur en landschap en dat wordt bijgedragen aan een landelijk gebied waarin het prettig wonen, werken en recreëren is en waarin ruimte is en blijft voor economisch vitale landbouw als belangrijke drager van het platteland.

Vanuit de NOVI geeft het Rijk kaders en richting voor zowel nationale als decentrale keuzes. Let wel: het Rijk eigent zich geen centraliserende rol toe. Integendeel, de verantwoordelijkheid ligt bij alle partijen gezamenlijk. Vanuit het Rijk wordt gestreefd naar regie op het samenspel en regie bij het bewaken van de nationale belangen. Dilemma's worden niet uit de weg gegaan, maar er worden kansen gecreëerd, juist door samen met de ambities aan de slag te gaan. Kansen om de kwaliteit van de leefomgeving te verbeteren. En zo ook kansen om sociale samenhang en economisch herstel te bevorderen en kansen om schone, veilige en duurzame technieken, die bijdragen aan de beoogde transitie naar een duurzame en circulaire samenleving, stevig te verankeren in de manier van leven en werken.

Het Rijk benoemt wel duidelijk de nationale belangen, maakt nationale keuzes, geeft richting aan decentrale afwegingen én werkt gebiedsgericht. Met de NOVI wil de Rijksoverheid in concrete gebieden tot keuzes komen. Daarbij wil het Rijk doen wat goed is voor heel Nederland en wat tegelijkertijd recht doet aan de eigenheid van de regio's. Dit vergt een goed samenspel tussen Rijk, provincie, waterschappen en gemeenten, maar ook tussen overheden en bedrijven, maatschappelijke instellingen en burgers. Vanuit al deze partijen is daarom al intensief meegedacht bij de totstandkoming van de NOVI. Bij de uitvoering van de NOVI wordt deze samenwerking voortgezet.

Centraal bij de afweging van belangen staat een evenwichtig gebruik van de fysieke leefomgeving, zowel van de boven- als van de ondergrond. Het gaat daarbij om 'omgevingsinclusief' beleid. De NOVI onderscheidt daarbij drie afwegingsprincipes:

  • 1. Combinaties van functies gaan voor enkelvoudige functies.
  • 2. Kenmerken en identiteit van een gebied staan centraal.
  • 3. Afwentelen wordt voorkomen.

Het Rijk zal bij de uitvoering van de NOVI zichtbaar maken hoe de omgevingsinclusieve benadering vorm krijgt en de afwegingsprincipes benut worden. Het rijk geeft daarbij voorkeursvolgorden voor bepaalde ontwikkelingen mee aan de provincies en gemeenten.

Zo lang geen sprake is van een nationaal belang en zo lang de ambities van het Rijk niet worden tegengewerkt geeft het Rijk de beoordeling en uitvoering van ontwikkelingen zoveel mogelijk aan provincies en gemeenten. De nationale belangen zijn juridisch verankerd in het Besluit algemene regels ruimtelijke ordening (Barro). In het Barro is aangegeven welke gebieden, of projecten, van nationaal belang zijn en aanvullende toetsing behoeven. Om te bepalen of sprake is van strijdigheid met de nationale belangen dient daarom verder te worden getoetst aan het Barro. Deze toetsing is opgenomen in de paragraaf "Besluit algemene regels ruimtelijke ordening" (paragraaf 3.1.2). De verdere toetsing van ontwikkelingen aan ruimtelijke en milieutechnische belangen vindt plaats aan het provinciaal beleid.

3.1.2 Besluit algemene regels ruimtelijke ordening

Op 17 december 2011 is de Algemene Maatregel van Bestuur (AMvB) Ruimte gedeeltelijk in werking getreden. Deze nieuwe AMvB Ruimte heeft de eerdere ontwerp AMvB Ruimte 2009 vervangen. Juridisch wordt de AMvB Ruimte aangeduid als Besluit algemene regels ruimtelijke ordening (Barro). Het Barro is op 1 oktober 2012 geactualiseerd en is vanaf die datum geheel in werking getreden.

In het Barro zijn de nationale belangen die juridische borging vereisen opgenomen. Het Barro is gericht op doorwerking van de nationale belangen in gemeentelijke bestemmingsplannen. Het Barro is deels opgebouwd uit hoofdstukken afkomstig van de ontwerp AMvB Ruimte die eind 2009 is aangeboden en deels uit nieuwe onderwerpen. Per onderwerp worden vervolgens regels gegeven, waaraan bestemmingsplannen zullen moeten voldoen.

Het besluit bepaalt tevens:

"Voor zover dit besluit strekt tot aanpassing van een bestemmingsplan dat van kracht is, stelt de gemeenteraad uiterlijk binnen drie jaar na het tijdstip van inwerkingtreding van dit besluit een bestemmingsplan vast met inachtneming van dit besluit."

Volgens de toelichting bij dit artikel geldt als hoofdregel, dat de regels van het Barro alleen van toepassing zijn wanneer na inwerkingtreding van het Barro een nieuw bestemmingsplan voor het eerst nieuwe ontwikkelingen mogelijk maakt binnen de aangegeven projectgebieden. Alleen wanneer het Barro expliciet een aanpassing van bestemmingsplannen vergt, omdat een reeds bestaand bestemmingsplan binnen een of meerdere van de projectgebieden is gelegen, dan moet dat binnen drie jaar gebeuren.

Het Barro draagt bij aan versnelling van de besluitvorming bij ruimtelijke ontwikkelingen van nationaal belang en "vermindering van de bestuurlijke drukte". Belemmeringen die de realisatie van de genoemde projecten zouden kunnen frustreren of vertragen worden door het Barro op voorhand onmogelijk gemaakt.

Daar staat tegenover dat de regelgeving voor lagere overheden weer wat ingewikkelder is geworden. Gemeenten die een bestemmingsplan opstellen dat raakvlakken heeft met een of meerdere belangen van de projecten in het Barro, zullen nauwkeurig de regelgeving van het Barro moeten controleren. Het Barro vormt daarmee een nieuwe, dwingende checklist bij de opstelling van bestemmingsplannen.

In het Barro zijn de projecten van nationaal belang beschreven. Deze projecten zijn in beeld gebracht in de bij het Barro behorende kaarten. De locatie is niet in een van de aangewezen projectgebieden gelegen.

Hiermee zijn de bepalingen uit het Barro niet van toepassing op de planlocatie en is geen sprake van strijdigheid met de nationale belangen.

3.1.3 Ladder duurzame verstedelijking

Ingevolgde artikel 3.1.6 lid 2 van het Besluit ruimtelijke ordening (Bro), de zogenaamde Ladder voor duurzame verstedelijking, dient de toelichting bij een bestemmingsplan, waarin een nieuwe stedelijke ontwikkeling mogelijk wordt maakt, een beschrijving te bevatten van de behoefte aan die ontwikkeling, en, indien het bestemmingsplan die ontwikkeling mogelijk maakt buiten het bestaand stedelijk gebied, een motivering waarom niet binnen het bestaand stedelijk gebied in die behoefte kan worden voorzien.

Een stedelijke ontwikkeling is als volgt gedefinieerd:

"ruimtelijke ontwikkeling van een bedrijventerrein of zeehaventerrein, of van kantoren, detailhandel, woningbouwlocaties of andere stedelijke voorzieningen."

Bij de voorgenomen ontwikkeling is, op basis van deze definitie, geen sprake van een stedelijke ontwikkeling. Verdere toetsing aan de Ladder duurzame verstedelijking is daarmee niet vereist.

3.2 Provinciaal beleid

3.2.1 Omgevingsvisie Zuid-Holland

De provincie heeft haar beleid eenvoudiger, transparanter en toegankelijker gemaakt voor initiatiefnemers in Zuid-Holland. Met het samenbrengen van verschillende beleidsplannen voor de fysieke leefomgeving tot één integraal Omgevingsbeleid sorteert de provincie voor op de Omgevingswet. De Omgevingswet verplicht provincies om een Omgevingsvisie en een Omgevingsverordening te maken. De Zuid-Hollandse Omgevingsvisie en Omgevingsverordening is per 07-08-2021 in werking getreden en de laatste versie is vastgesteld op 01-02-2023.

De Omgevingsvie geeft de beleidsuitgangspunten op hoofdlijnen weer. De Omgevingsvisie is niet juridisch bindend. De juridische borging van de Omgevingsvisie vindt plaats in de Omgevingsverordening, waarin de beleidsuitgangspunten uit de Omgevingsvisie in regels zijn vastgelegd.

De provincie wil nieuwe bebouwing in het landelijk gebied beperken om zo de openheid te handhaven. Agrarische ontwikkelingen (in de vorm van bebouwing en kassen) vinden plaats op bouwpercelen of anderszins geconcentreerd en houden rekening met de aanwezige kenmerken en waarden. Nieuwvestiging van intensieve veehouderij wordt niet toegelaten binnen de provincie. Intensieve veehouderij is vanwege de schaal en de aard van de bedrijfsvoering en de daarmee samenhangende ruimtelijke verschijningsvorm, in het algemeen niet passend bij het Zuid-Hollandse landschap en het karakteristieke gebruik daarvan. Glastuinbouw en boom- en sierteelt worden alleen in de daarvoor toegewezen gebieden toegestaan.

Bij de voorgenomen ontwikkeling is geen sprake vvan een nieuwe intensieve veehouderij. Met voorliggend plan wordt bovendien de functieaanduiding 'intensieve veehouderij' verwijderd. Er zijn ter paatse immers geen varkens meer aanwezig. Ook is er geen sprake van glastuinbouw en/of boom- en sierteelt. De ontwikkeling voorziet in het vergroten van het bouwvlak naar 1,7 hectare ten behoeve van de uitbreiding van het parkeerterrein, het overdekken van de buitenrijbak, het realiseren van voeropslag en het realiseren van een recreatiewoning.

Daarbij wordt een kwaliteitsslag gemaakt doordat oude bebouwing wordt gesloopt en de intensieve veehouderijtak verdwijnt. De nieuwe bebouwing wordt gebouwd volgens de huidige eisen op het gebied van duurzaamheid en energie. Dit is enerzijds een verbeterde beeldkwaliteit door nieuwe duurzame bebouwing en anderzijds door een goede landschappelijke inpassing met in het gebied passende landschappelijke elementen. Dit komt ten goede van de ruimtelijke kwaliteit en de beeldkwaliteit ter plaatse.

Verder streeft de provincie naar het behoud en een versterking van de ruimtelijke kwaliteit. Daarbij geeft de provincie richting aan een optimale wisselwerking tussen ruimtelijke ontwikkelingen en gebiedskwaliteit. In de gehele provincie, zowel in het stedelijk gebied als in het landelijk gebied, beoogt het kwaliteitsbeleid een zogenaamde 'ja, mits-beleid': ruimtelijke ontwikkelingen zijn mogelijk, met behoud of versterking van de ruimtelijke kwaliteit (waarborg ruimtelijke kwaliteit).

Om te kunnen bepalen of een ontwikkeling past bij de gebiedskwaliteit, onderscheidt de provincie de kwaliteit van gebieden in categorieën en ruimtelijke ontwikkelingen naar mate van impact op de omgeving.

De gebiedskwaliteit is weergegeven in de kwaliteitskaart. Daarin zijn de volgende lagen opgenomen:

  • Laag van de ondergrond;
  • Laag van de cultuur- en natuurlandschappen;
  • Laag van de stedelijke occupatie;
  • Laag van de beleving.

Laag van de ondergrond:

De locatie is vanuit de ondergrond in een veencomplex gelegen. Een groot deel van Zuid-Holland bestaat uit veengronden met een hoge waterstand. Het veen kent een geringe draagkracht. Daarnaast vinden we hier een groot aantal bestaande en voormalige plassen. De voormalige plassen zijn drooggemalen en staan bekend als droogmakerijen. De ondergrond in deze droogmakerijen varieert van venig tot (oude zee)klei.

Zuid-Holland kent een aantal droogmakerijen waar (in de toekomst) verzilting optreedt en het waterbeheer steeds lastiger wordt. Bij grote diepte kan daarnaast een waterveiligheidsvraagstuk spelen. Zorgvuldige omgang met het watervraagstuk (kwalitatief en/ of kwantitatief) is in deze droogmakerijen van belang. Ontwikkelingen in droogmakerijen leveren een bijdrage aan een duurzame waterhuishouding.

Bij de voorgenomen ontwikkeling is sprake van het vergroten van het bouwvlak naar 1,7 hectare ten behoeve van de uitbreiding van het parkeerterrein, het overdekken van de buitenrijbak en het realiseren van een recreatiewoning. Dit betreft een relatief kleinschalige ontwikkeling. In paragraaf 4.5 wordt nader ingegaan op het aspect waterhuishouding.

De voorgenomen ontwikkeling zal daarmee geen nadelige invloed hebben op de aspecten uit de laag van de ondergrond.

Laag van de cultuur- en natuurlandschappen:

De locatie is vanuit de cultuur- en natuurlandschappen gelegen in een droogmakerij (veen). Droogmakerijen zijn ontstaan uit natuurlijke meren en uit verveningen. Ze hebben een duidelijke begrenzing door een ringdijk, ringvaart of oude hoge oeverlanden. Het landschap is visueel open (tenzij het is verstedelijkt), grootschalig en ligt gemiddeld enkele meters lager dan de omgeving. De droogmakerij kent een aangelegd watersysteem met hoofdtochten, gemaal en een regelmatige basisverkaveling. Ontginningsboerderijen liggen op regelmatige afstand langs de ontginningsweg. Elke droogmakerij heeft haar eigen ordening en maat; kavelgrootte en lengte-breedte-verhouding zijn uniek. Deze typerende opbouw is bepalend voor de manier van inpassing van nieuwe ontwikkelingen.

In sommige gebieden is de (historische) relatie tussen droogmakerij en molengang (toentertijd om diepere plassen droog te malen) nog herkenbaar. Dit zijn bijzondere elementen in het Zuid-Hollandse landschap.

Droogmakerijen (veen)

Een aantal droogmakerijen is niet geheel uitgeveend. Ten opzichte van de droogmakerij met klei als ondergrond is de droogmakerij met veen in de ondergrond waterrijker, vaak kleinschaliger (vooral de kavelmaat) van opzet en is de bodem minder draagkrachtig. Dit is terug te zien in het gebruik en het beeld van de droogmakerijen.

Richtlijnen:

  • Bewaren verkavelingspatroon. Lengtesloten zijn beeldbepalend en worden behouden.
  • Behoud van maat en weidsheid van de poldereenheden. Eventuele nieuwe bebouwing en bouwwerken worden geplaatst binnen de bestaande structuren/ linten en niet in de veenweidepolders.

Bij de voorgenomen ontwikkeling is sprake van het vergroten van het bouwvlak naar 1,7 hectare ten behoeve van de uitbreiding van het parkeerterrein, het overdekken van de buitenrijbak en het realiseren van een recreatiewoning. Er is reeds sprake van een bestaand parkeerterrein, welke in de huidige situatie gedeeltelijk buiten het bouwvlak is gelegen. Daarnaast is er ook reeds sprake van een bestaande buitenrijbak, welke met voorgenomen ontwikkeling alleen overdekt wordt. De nieuw te realiseren recreatiewoning wordt opgericht binnen de kaders van het bouwperceel.

De voorgenomen ontwikkeling heeft daarmee dus geen nadelige gevolgen voor de verkavelingspatronen en lengtesloten. Nieuwe bebouwing wordt geplaatst binnen de bestaande structuren, de vergroting is relatief klein.

Laag van de stedelijke occupatie:

Vanuit de laag van de stedelijke occupatie is de locatie gelegen in gebied dat niet nader is gekenmerkt. De voorgenomen ontwikkeling zal daarmee geen (nadelige) invloed hebben op de aspecten uit de laag van de stedelijke occupatie.

Laag van de beleving:

Groenblauwe stedelijke structuur

Er ligt een opgave om de groenblauwe kwaliteiten zowel binnen als buiten de stad te versterken en de samenhang tussen stedelijke parken, recreatiegebieden, natuurgebieden en agrarisch landschap te vergroten. De provincie zet daarom in op het behouden en versterken van een groenblauwe stedelijke structuur. Dat is een samenhangend stelsel van verschillende groenblauwe ruimtes en routes die stad en land met elkaar verbinden: de grote parken en groenblauwe dooradering in de stad, recreatieve stad-land verbindingen en poorten, recreatiegebieden om de stad, de groene buffers en belangrijke recreatieve routes in het landelijk gebied. Het recreatieve netwerk voor fietsen, varen, wandelen en paarrijden, waarvan ook de veren in de provincie deel uitmaken, vormt een belangrijke drager van de groenblauwe structuur. Deze structuur staat in verbinding met de gebieden van bijzondere kwaliteit (natuur en kroonjuwelen), de erfgoedlijnen en de overige landschappen in de provincie. Het is een gezamenlijke opgave van provincie, gemeenten en andere partijen om deze structuur in stand te houden, waar nodig verder te ontwikkelen en barrières op te heffen, om zo de kwaliteit en samenhang te verbeteren.

Deze groene buffers vallen in categorie 2 van het beleid voor ruimtelijke kwaliteit, 'gebieden met een specifieke kwaliteit'. Ruimtelijke ontwikkelingen zijn hier mogelijk, maar extra bescherming tegen (grootschalige) stedelijke ontwikkeling is van belang om de schaal en het karakter van deze gebieden in stand te houden. Stabiele en aantrekkelijke stadsranden en goede inpassing van infrastructuur dragen hieraan bij.


Bij de voorgenomen ontwikkeling is sprake van het vergroten van het bouwvlak naar 1,7 hectare ten behoeve van de uitbreiding van het parkeerterrein, het overdekken van de buitenrijbak en het realiseren van een recreatiewoning. Er is reeds sprake van een bestaand parkeerterrein, welke in de huidige situatie gedeeltelijk buiten het bouwvlak is gelegen. Daarnaast is er ook reeds sprake van een bestaande buitenrijbak, welke met voorgenomen ontwikkeling alleen overdekt wordt. De nieuw te realiseren recreatiewoning wordt opgericht binnen de kaders van het bouwperceel. Er vindt geen verdichting plaats van de open plekken tussen weilanden en de open veenweidepolders.

De voorgenomen ontwikkeling zal daarmee geen (nadelige) invloed hebben op de aspecten uit de laag van de beleving.

Gezien het voorgaande kan worden gesteld dat de voorgenomen ontwikkeling niet zal leiden tot een onevenredige aantasting van de gebiedskwaliteit.

Naast het generieke kwaliteitsbeleid, dat geldt voor de gehele provincie, wordt een tweetal beschermingscategorieën onderscheiden, waar onder voorwaarden van ruimtelijke kwaliteit ook ontwikkelingen mogelijk zijn, maar waar vanwege de kwetsbaarheid of bijzonderheid extra voorwaarden van toepassing zijn.

In gebieden met beschermingscategorie 1 zijn ruimtelijke ontwikkelingen in beginsel alleen mogelijk voor zover ze bijdragen aan het behoud of de ontwikkeling van de specifieke waarden.

In gebieden met beschermingscategorie 2 zijn ruimtelijke ontwikkelingen mogelijk, maar met inachtneming van het instandhouden van de specifieke waarden.

De locatie is gelegen in een gebied dat is aangemerkt als beschermingscategorie 2. Het betreft een groene buffer en veenweidegebied. Ontwikkelingen zijn hier mogelijk mits dit plaatsvindt op perceelniveau. Het initiatief voldoet hieraan.

De provincie wil daarnaast de depositie van stikstof van de landbouw, maar ook van de industrie en verkeer, langdurig en stevig terugdringen, ruimtelijke en economische ontwikkeling mogelijk maken en natuurherstel realiseren. Het is daarbij van belang dat de stikstofdepositie van ruimtelijke ontwikkeling niet mag toenemen. Bij de voorgenomen ontwikkeling is geen sprake van een onevenredige toename van verkeersbewegingen. De stikstofdepositie als gevolg van de voorgenomen ontwikkeling zal daarmee niet toenemen. Zie verder het bepaalde in artikel 4.2.1.1 Gebiedsbescherming.

3.2.2 Omgevingsverordening Zuid-Holland

De Omgevingsverordening bevat de juridische vertaling van de beleidsuitgangspunten uit de Omgevingsvisie, welke tegelijkertijd met de Omgevingsverordening is opgesteld. De beleidsuitgangspunten uit de Omgevingsvisie zijn in regels vertaald en vastgelegd in de Omgevingsverordening. De meest recente versies van zowel de Omgevingsvisie als de Omgevingsverordening zijn op 07-08-2021 in werking getreden en de laatste versie is vastgesteld op 01-02-2023.

Voor wat betreft het planologisch vastleggen van een parkeerterrein, het overdekken van een buitenbak, het realiseren van extra voeropslag en het realiseren van een recreatiewoning zijn in de verordening geen specifieke bepalingen opgenomen. Alleen wanneer sprake is van een stedelijke ontwikkeling gelden aanvullende bepalingen. Zoals nader omschreven in de paragraaf "Ladder duurzame verstedelijking" (paragraaf 3.1.3) is met de voorgenomen ontwikkeling geen sprake van een stedelijke ontwikkeling. Er is daarmee geen sprake van aanvullende voorwaarden voor de gewenste verplaatsing van de woning naar een meer geschikte plaats binnen het huidige bebouwingslint.

Naast specifieke regels voor een ruimtelijke ontwikkeling gelden vanuit de verordening ook algemene regels ten aanzien van de ruimtelijke kwaliteit. Daarbij is het van belang te kijken naar de impact van een ontwikkeling op het landschap en de omgeving. Hierin wordt onderscheid gemaakt in drie soorten ontwikkelingen:

  • 1. de ruimtelijke ontwikkeling past binnen de bestaande gebiedsidentiteit, voorziet geen wijziging op structuurniveau, past bij de aard en schaal van het gebied en voldoet aan de relevante richtpunten van de kwaliteitskaart (inpassen);
  • 2. de ruimtelijke ontwikkeling past binnen de bestaande gebiedsidentiteit, maar voorziet in een wijziging op structuurniveau (aanpassen);
  • 3. de ruimtelijke ontwikkeling past niet bij de bestaande gebiedsidentiteit (transformeren).

Bij de voorgenomen ontwikkeling is sprake van het vergroten van het bouwvlak naar 1,7 hectare ten behoeve van de uitbreiding van het parkeerterrein, het overdekken van de buitenrijbak en het realiseren van een recreatiewoning. De locatie is gelegen in een veencomplex / droogmakerij. Zoals aangetoond in paragraaf 3.2.1 past de ontwikkeling binnen de bestaande gebiedsidentiteit (inpassen).

De voorgenomen ontwikkeling voorziet niet in wijzigingen aan de structuur van het landschap en zal een (zeer) beperkte impact hebben op de omgeving.

Bij de voorgenomen ontwikkeling is daarmee sprake van een ontwikkeling die past binnen de bestaande gebiedsidentiteit, die niet voorziet in wijzigingen op structuurniveau en die voldoet aan de richtpunten van de kwaliteitskaart (inpassen).

Verder zijn binnen de provincie verschillende beschermingscategorieën aangewezen voor de bescherming en instandhouding van waardevolle landschappen. Hierbij wordt onderscheid gemaakt in beschermingscategorie 1 en beschermingscategorie 2. Ten aanzien van deze gebieden gelden de volgende aanvullende bepalingen:

"Uitzonderingen vanwege beschermingscategorieën

  • a. een bestemmingsplan voor een gebied met beschermingscategorie 1, waarvan de plaats geometrisch is bepaald en verbeeld op kaart 14 in bijlage II, kan niet voorzien in een ruimtelijke ontwikkeling als bedoeld in het eerste lid, onder b en c, tenzij het gaat om de ontwikkeling van bovenlokale infrastructuur of van natuur of om een in het Programma ruimte uitgezonderde ruimtelijke ontwikkeling of een zwaarwegend algemeen belang en voorts wordt voldaan aan de onder b en c gestelde voorwaarden;
  • b. een bestemmingsplan voor een gebied met beschermingscategorie 2, waarvan de plaats geometrisch is bepaald en verbeeld op kaart 14 in bijlage II, kan niet voorzien in een ruimtelijke ontwikkeling als bedoeld in het eerste lid, onder c, tenzij het gaat om de ontwikkeling van bovenlokale infrastructuur of van natuur of om een in het Programma ruimte uitgezonderde ruimtelijke ontwikkeling of een zwaarwegend algemeen belang en voorts wordt voldaan aan de onder c gestelde voorwaarden."

De locatie is gelegen in een gebied aangeduid met beschermingscategorie 2:

afbeelding "i_NL.IMRO.1884.BPRIPSELAAN6-VAS1_0006.png" bron: Kaart 14: Ruimtelijke kwaliteit en beschermingscategoriën

Deze ontwikkeling past in artikel 6.9 lid 1 onder a: Een bestemmingsplan kan voorzien in een nieuwe ruimtelijke ontwikkeling, onder de volgende voorwaarden ten aanzien van ruimtelijke kwaliteit:

  • a. de ruimtelijke ontwikkeling past binnen de bestaande gebiedsidentiteit, voorziet geen wijziging op structuurniveau, past bij de aard en schaal van het gebied en voldoet aan de relevante richtpunten van de kwaliteitskaart (inpassen);

Deze ontwikkeling is namelijk een ontwikkeling op kavelniveau welke passend in bij de bestaande gebiedsidentitieit en geen aanpassing doet op structuurniveau.

Verder veroorzaakt deze ruimtelijke ontwikkeling als bedoeld 6.9 in het eerste lid geen significante aantasting van de wezenlijke kenmerken en waarden van belangrijke weidevogelgebieden, recreatiegebieden rond de stad, of karakteristieke landschapselementen. In de toelichting bij art 6.9 van de verordening staat dat de bescherming van de belangrijke weidevogelgebieden geen beperkingen met zich meebrengt voor ontwikkelingen binnen het huidige agrarische grondgebruik. Ontwikkelingen zoals intensivering van het graslandgebruik, de aanleg van kavelpaden, slootdempingen, ruwvoederteelt en de uitbreiding van boerderijen, blijven dus mogelijk. Dat betekent dat de uitbreiding van de manege binnen het huidige agrarische grondgebruik is toegestaan. Derhalve is het provinciale compensatiebeleid niet van toepassing zoals vastgelegd in de beleidsregel Compensatie Natuur, Recreatie en Landschap Zuid-Holland (2013).

De locatie is tevens gelegen binnen een gebied aangemerkt als 'beschermingscategorie 3 buitengebied'

afbeelding "i_NL.IMRO.1884.BPRIPSELAAN6-VAS1_0007.png"

bron: Kaart 14: Ruimtelijke kwaliteit en beschermingscategoriën

Artikel 6.9a Beschermingscategorie 3 Buitengebied

1 Een bestemmingsplan voor een locatie binnen buitengebied waarvan de plaats geometrisch is verbeeld op kaart 14 in bijlage II kan voorzien in een ruimtelijke ontwikkeling mits de openheid en het groene karakter van het landschap niet onevenredig wordt aangetast, blijkens een afdoende motivering die tevens ingaat op de keuze voor een locatie buiten bestaand stads- en dorps gebied.

2 In de motivering worden de volgende kwaliteiten betrokken:

  • de openheid en de structuur van het landschap en de vergezichten daarin;
  • de relatie tussen stad en buitengebied en het onderscheid daartussen;
  • het groene karakter, het type functies en de kenmerkende verschijningsvormen van het landschap;
  • de herkenbaarheid van de ontstaansgeschiedenis van het landschap.

De ontwikkeling vindt plaats op kavelniveau. De structuur van het landschap wordt niet aangetast door deze ontwikkeling. De uitbreiding van het parkeerterrein, het vergroten van de voeropslag en het realiseren van een recreatiewoning hebben nauwelijks tot geen invloed op de openheid van het landschap en de vergezichten daarvan. Het overdekken van de buitenrijbak vindt plaats aan de oostzijde van het perceel en sluit direct aan de bestaande bebouwing. Hierdoor is de impact minimaal op de openheid en de vergezichten minimaal. De paardenbak bevindt zich daarbij slechts voor een klein gedeelte buiten het bouwvlak, dus het grootste deel mag nu ook al gerealiseerd worden.

Omdat er sprake is van een bestaande manege vindt er geen aantasting plaats van het groene karakter, de type functies en de kenmerkende verschijningsvormen in het landschap. De herkenbaarheid van de ontstaansgeschiedenis van het landschap wordt niet aangetast omdat de ontwikkeling zich op kavelniveau afspeelt en de extra bebouwing direct aan de bestaande bebouwing plaatsvindt.

Gezien het voorgaande kan worden gesteld dat de voorgenomen ontwikkeling past binnen de regels zoals zijn opgenomen in de Omgevingsverordening van de provincie Zuid-Holland.

3.3 Gemeentelijk beleid

3.3.1 Omgevingsvisie Kaag en Braassem 2021

Op 24 januari 2022 heeft de gemeente Kaag en Braassem de Omgevingsvisie Kaag en Braassem 2021 vastgesteld. In deze brede visie verbindt de gemeente de fysieke leefomgeving en het sociale domein aan elkaar. Met de omgevingsvisie wil de gemeente borgen wat goed gaat en inzetten op verdere vernieuweing en ontwikkeling waard dit nodig is. Per onderwerp zijn opgaven weergegeven en is aangegeven met welke doelen de gemeente deze opgaven wil bereiken. De Omgevingsvisie bestaat uit 9 peilers:

1. Samenwerken in en aan Kaag en Braassem

2. Energie & Grondstoffen in Kaag en Braassem

3. Natuur, water en lucht in Kaag en Braassem

4. Wonen in Kaag en Braassem

5. Gezonde economische ontwikkeling in Kaag en Braassem

6. Sociaal Kaag en Braassem

7. Mobiliteit in Kaag en Braassem

8. Veilig Kaag en Braassem

9. Gebiedstypen

Hieronder worden alleen de peilers besproken die voor de specifieke ontwikkeling van belang zijn.

Energie & Grondstoffen

In Kaag en Braassem werken we samen hard aan een duurzame gemeente. Vrijwel iedereen uit het inwonerspanel van Kaag en Braassem (84%) vindt dat we aan de slag moeten met het thema duurzaamheid. Een grote meerderheid van hetzelfde panel (73%) geeft bovendien aan dat niet alleen de gemeente, niet alleen de inwoners en niet alleen de (agrarische) bedrijven aan de slag zouden moeten: We moeten allemaal onze schouders onder de verschillende duurzaamheidsopgaven zetten. Met duurzaam bedoelen we in dit hoofdstuk het besparen van energie, het zelf opwekken van groene stroom, het verminderen van afval en het recyclen en duurzaam gebruik van grondstoffen en materialen. We proberen hiermee samen de uitstoot van fossiele brandstoffen terug te dringen én zo min mogelijk niet-duurzame materialen te gebruiken. Om zo in de toekomst net zoveel schone energie duurzaam op te wekken als dat we zelf gebruiken. Om zo op den duur een kringloopeconomie te realiseren waardoor een begrip als afval uiteindelijk tot het verleden behoort

Wat wil de gemeente bereiken?

- Vóór 2025 een besparing van 44 terajoule realiseren in onze woningen wat gelijkstaat aan een gemiddelde besparing van ongeveer 15% van het totale energieverbruik (gas en elektriciteit)

in een gemiddelde woning.

- Vóór 2025 een besparing van 59 terajoule realiseren bij onze agrariërs en 19 terajoule minder energie verbruiken in onze kantoren, sportkantines, scholen en op het gemeentehuis.

- Vóór 2025 liggen er minimaal gemiddeld 6 zonnepanelen op iedere woning in Kaag en Braassem.

- Vóór 2025 wekken onze agrariërs minimaal 61 terajoule duurzame energie op (= 76.250 zonnepanelen) en is de commerciële en publieke dienstverlening verantwoordelijk voor een opwek van

19,6 terajoule (= 24.500 zonnepanelen).

Op het dak van de nieuwe stal zijn zonnepanelen gepland. Hiermee wil de initiatiefnemer een impuls geven aan de ambtities van Kaag en Braassem.

Natuur, water en lucht

Groen en blauw is overal aanwezig in Kaag en Braassem: de weilanden met de vele sloten, de wuivende rietkragen langs de Kagerplassen en het Braassemermeer. Het veenweide gebied is van oudsher een uniek deel van het Groene Hart waar uitzonderlijke planten en dieren voorkomen. Maar dit staat onder druk: onze veenweidegebieden waren de kraamkamer van verschillende soorten weidevogels maar soorten als de kievit en de grutto worden ook hier steeds zeldzamer, andere soorten komen al niet meer voor. Typische planten in ons gebied zoals dotterbloem, echte koekoeksbloem, kattenstaart en rietorchis zien we steeds minder langs de slootkanten en ook de weilanden bevatten weinig kruiden als klaver en boterbloem. Ook het akkerbouwgebied kan bijdragen aan onze biodiversiteit: het biedt in potentie ruimte aan de veldleeuwerik en de patrijs, maar dit betekent wel dat we ons ook voor deze soorten moeten willen inzetten op behoud want ze worden nauwelijks meer waargenomen. Onze oevers met het vele riet herbergen diverse plantensoorten, bieden nestgelegenheid voor verschillende rietzangers en zijn een beschutte leefomgeving voor ontelbare insecten. Gezonde poldersloten zijn belangrijk voor vissen en amfibieën. Ook helpen de karakteristieke sloten bij het verwerken van al het regenwater: ze zorgen ervoor dat we minderoverlast hebben tijdens een heftige onweersbui. Een natuurlijke leefomgeving waarin het groen en blauw ecologisch gezonden in evenwicht is, is niet alleen goed voor planten en dieren. Het is ook goed voor ons als mens: het geeft ontspanning en vermindert stress, stimuleert bewegen en het versterkt onze veiligheid doordat we in de toekomst beter om kunnen gaan met extremer weer.

We zijn trots op het landschap in onze gemeente, maar we moeten er ook met het oog op de toekomst zuiniger op zijn. Trots en zuinig zijn we ook op onze agrariërs die grotendeels verantwoordelijk zijn voor het huidige polderlandschap waar zoveel inwoners van genieten, waardoor dagjesmensen ons graag komen bezoeken. En juist omdat we trots en zuinig willen blijven op onze agrariërs en ons landschap, liggen hier verschillende uitdagingen op ons te wachten: het tegengaan van de verdere afname van dier- en plantensoorten, soorten terugbrengen in ons landschap, een dalende bodem die aandacht vraagt, een omgeving die zo ingericht moet worden dat het om kan gaan met extreem weer.

Deze vier opgaven zijn:

- de resterende biodiversiteit in Kaag en Braassem behouden en werken aan herstel;

- bodemdaling, al dan niet door veenoxidatie, en haar nadelige gevolgen zoveel mogelijk tegengaan dan wel benutten;

- de veiligheid van het grondwater en de kwaliteit van de bodem waarborgen;

- ervoor zorgen dat Kaag en Braassem in de toekomst goed om kan gaan met extreme regenval, droogte en hittestress (klimaatadaptatie).

De initiatiefnemer houdt met het maaien rekening met de broedvogels. Hiervoor krijgt hij subsidie om het maaien uit te stellen zodat vogels de kans krijgen om te broeden. Hiermee voldoet de initiatiefnemer aan de ambtitie van de Omgevingsvisie.

Gebiedtypen

De locatie is gelegen in een gebiedstype die is aangeduid als Droogmakerij (veen).

afbeelding "i_NL.IMRO.1884.BPRIPSELAAN6-VAS1_0008.png"

afbeelding "i_NL.IMRO.1884.BPRIPSELAAN6-VAS1_0009.png"

afbeelding "i_NL.IMRO.1884.BPRIPSELAAN6-VAS1_0010.png"

afbeelding "i_NL.IMRO.1884.BPRIPSELAAN6-VAS1_0011.png"

De ontwikkeling voldoet aan deze kaders. De recreatievefunctie van de manege wordt door deze ontwikkeling ondersteund.

Hiermee kan worden gesteld dat de ontwikkeling voldoet aan de Omgevingsvisie Kaag en Braassem 2021 van de gemeente Kaag en Braassem.

3.3.2 Welstandsnota

De gemeente Kaag en Braassem heeft op 6 september 2010 de gemeentelijke welstandsnota vastgesteld. Door middel van dit nieuwe beleid krijgt de initiatiefnemer meer vrijheid dan voorheen. Dit houdt in dat er voor het grondgebied van gemeente Kaag en Braassem in principe geen welstandstoets geldt, met uitzondering van Rijksmonumenten, Gemeentelijke Monumenten en beschermde dorpsgezichten. Door de uitzondering van deze objecten en gebieden beschermd gemeente Kaag en Braassem haar cultureel erfgoed.

afbeelding "i_NL.IMRO.1884.BPRIPSELAAN6-VAS1_0012.png"

Figuur 7. Uitsnede kaart welstand (bron: gemeente Kaag en Braassem).

Op de kaart kan men zien dat er voor de locatie geen welstandstoets geldt. Hiermee kan worden gesteld dat de voorgenomen ontwikkeling past binnen de uitgangspunten zoals zijn opgenomen in de welstandsnota van de gemeente Kaag en Braassem.

3.3.3 Parkeernota

Op 15 maart 2018 heeft de gemeente Kaag en Braassem de "Nota parkeernormen 2018" gepubliceerd. Het doel van de 'Nota parkeernormen 2018' is om voor de gehele gemeente - per gebied en per functie- de parkeernormen voor de komende jaren vast te leggen. Tevens is aangegeven op welke wijze de parkeernormen gehanteerd dienen te worden. Het hanteren van deze normen heeft als doel te waarborgen dat er voldoende parkeergelegenheid wordt gerealiseerd bij nieuwbouw, verbouw of functieverandering van voorzieningen (woningen, bedrijven, sport, recreatie, enzovoort) in Kaag en Braassem. De parkeernormennota heeft niet tot doel om eventuele bestaande parkeerproblemen op te lossen. Dit betekent concreet dat bestaande functies niet aan de normen uit deze nota hoeven te voldoen.

Met de voorliggende parkeernota worden de volgende effecten beoogd:

  • Het waarborgen van de bereikbaarheid;
  • Het waarborgen van de leefbaarheid en ruimtelijke kwaliteit;
  • Het voorkomen van verkeersonveiligheid door ongewenste parkeersituaties die (mogelijk) gevaarlijke situaties kunnen opleveren;
  • Het op gelijke en voor iedereen duidelijke wijze beoordelen van de benodigde parkeervoorzieningen bij nieuwbouw, verbouw of functieverandering van voorzieningen.

Iedere ruimtelijke ontwikkeling heeft een eigen parkeerbehoefte. Als er geen voorwaarden aan de beoogde ruimtelijke ontwikkeling worden gesteld, zal de parkeerbehoefte op de openbaar ruimte worden afgewenteld, terwijl deze niet altijd voorziet in voldoende parkeeraanbod. Dit kan leiden tot overlast bij de bestaande en toekomstige gebruikers van de openbare ruimte. Door parkeernormen te hanteren wil de gemeente enerzijds voorkomen dat er parkeeroverlast ontstaat als gevolg van nieuwe ontwikkelingen en anderzijds tracht de gemeente de bereikbaarheid van nieuwe functies te waarborgen.

De projectlocatie is gelegen in het buitengebied. De activiteiten van de projectlocatie worden niet genoemd in bijlage 2 van de nota. In dat geval bepaalt artikel 3 lid d van de beleidsregels dat voor zover een bepaalde functie niet genoemd is in bijlage 2 er gemotiveerd wordt gekozen voor de best passende parkeernorm, waarbij de landelijke richtlijnen van het CROW worden toegepast. Deze bestemmingswijzging maakt een vergroting van het parkeerterrein mogelijk. Hierdoor zal er een positief effect zijn op de parkeermogelijkheden van de inrichting.

De parkeernota van de gemeente Kaag en Braassem hanteert voor een manege als norm 0,5 parkeerplaatsen per paardenbox. De locatie heeft 61 paardenboxen waardoor er 31 parkeerplaatsen benodigd zijn. Het parkeerterrein heeft als afmeting 67 m x 22 m = 1474 m² oppervlakte aan parkeerplaats. Dit betekent dat er voor iedere auto 25 m² ruimte is om te parkeren.

Voor het agrarisch bedrijf / zorgboerderij volgt een parkeernorm van 1 parkeerplaats per werknemer/bezoek en voor de recreatiewoning ook 1. Dit betekent dat er voor de recreatiewoning 1 extra en voor het agrarisch bedrijf / zorgboerderij 5 extra parkeerplekken worden gerealiseerd.

Hierdoor wordt ruimschoots aan de norm voldaan. De bestemmingswijzging is hierdoor in overeenstemming met de parkeernota.

afbeelding "i_NL.IMRO.1884.BPRIPSELAAN6-VAS1_0013.png"

Figuur 8. Kaart gebiedsindeling Nota Parkeernormen 2018 (bron: gemeente Kaag en Braassem).

Hoofdstuk 4 Ruimtelijke- en milieuaspecten

4.1 Milieu

4.1.1 Milieuzonering

Milieuzonering beperkt zich tot milieuaspecten met een ruimtelijke dimensie, te weten: geur, stof, geluid en gevaar. De mate waarin de milieuaspecten gelden en waaraan de milieucontour wordt vastgesteld, is voor elk type bedrijvigheid verschillend. De 'Vereniging van Nederlandse Gemeenten' (VNG) geeft sinds 1986 de publicatie 'Bedrijven en Milieuzonering' uit. In deze publicatie is een lijst opgenomen met daarin de aan te houden richtafstanden tussen een gevoelige bestemming en bedrijven.

Indien van deze richtafstand afgeweken wordt dient een nadere motivatie gegeven te worden waarom dat wordt gedaan. Het zo scheiden van milieubelastende en –gevoelige functies dient twee doelen:

  • 1. het reeds in het ruimtelijk spoor voorkomen of zoveel mogelijk beperken van hinder en gevaar bij gevoelige functies (bijvoorbeeld woningen);
  • 2. het bieden van voldoende zekerheid aan de milieubelastende activiteiten (bijvoorbeeld bedrijven) zodat zij de activiteiten duurzaam, en binnen aanvaardbare voorwaarden, kunnen uitoefenen.

In de VNG handreiking zijn richtafstanden opgenomen op het gebied van geur, stof, geluid en gevaar. Indien niet aan de in de handreiking opgenomen afstanden wordt voldaan is mogelijk sprake van milieuhinder aan de betreffende gevoelige functies. De genoemde afstanden betreffen echter geen harde normen maar richtafstanden waarvan, mits goed gemotiveerd, kan worden afgeweken. Dit houdt in dat wanneer niet aan de afstanden wordt voldaan een nadere motivatie noodzakelijk is waaruit blijkt dat geen onevenredige hinder wordt veroorzaakt.

Bij de voorgenomen ontwikkeling is sprake van het houden van rundvee en paarden. Ten aanzien van het fokken en houden van rundvee en manege zijn in de handreiking de volgende richtafstanden opgenomen:

  • Geur: 100 meter.
  • Stof: 30 meter.
  • Geluid: 30 meter.
  • Gevaar: 0 meter.

Ten aanzien van het fokken en houden van overige graasdieren zijn in de handreiking de volgende richtafstanden opgenomen:

  • Geur: 50 meter.
  • Stof: 30 meter.
  • Geluid: 30 meter.
  • Gevaar: 0 meter.

Het dichtstbijzijnd gevoelig object, De Oude Steegh 2, bevindt zich op een afstand van ongeveer 340 meter (gemeten van bouwvlak tot bouwvlak). Hiermee wordt aan de gestelde richtafstanden voldaan en zal met de voorgenomen ontwikkeling geen onevenredige hinder worden veroorzaakt aan gevoelige objecten in de omgeving.

Naast het feit dat een ruimtelijke ontwikkeling geen onevenredige hinder aan gevoelige objecten in de omgeving mag veroorzaken mag deze ook niet leiden tot beperkingen van de ontwikkelingsmogelijkheden van omliggende bedrijven, functies en bestemmingen. Dit is echter vooral van belang wanneer sprake is van het oprichten van nieuwe gevoelige objecten.

Bij de voorgenomen ontwikkeling is geen sprake van het oprichten van een nieuw gevoelig object. Hiermee zullen geen omliggende bedrijven, functies en bestemmingen in de ontwikkelingsmogelijkheden worden beperkt.

4.1.2 Geur

De Wet geurhinder veehouderij (Wgv) vormt vanaf 1 januari 2007 het toetsingskader voor de milieuvergunning, als het gaat om geurhinder vanwege dierenverblijven van veehouderijen. Het tijdstip van inwerkingtreding van de wet is vastgesteld bij Koninklijk Besluit van 12 december 2006. Op 18 december 2006 is de Wet geurhinder en veehouderij gepubliceerd.

De Wet geurhinder en veehouderij geeft normen voor de geurbelasting die een veehouderij mag veroorzaken op een geurgevoelig object (bijvoorbeeld een woning). De geurbelasting wordt berekend en getoetst met het verspreidingsmodel V-Stacks vergunning. Dit geldt alleen voor dieren waarvoor geuremissiefactoren zijn opgenomen in de Wet geurhinder en veehouderij.

De gemeente Kaag en Braassen heeft op 6 februari 2012 de "Verordening geurhinder en veehouderij Kaag en Braassem" vastgesteld. Op grond van artikel 5 dienen de afstanden aangehouden te worden zoals benoemd in de Wet geurhinder en veehouderij. Verkorting van de afstanden zoals benoemd in de "Verordening geurhinder en veehouderij Kaag en Braassem" is slechts in een aantal gevallen van toepassing.

a. de uitbreiding van een bestaande veehouderij wordt belemmerd door een bestaand geurgevoelig object; indien de afstand tussen de veehouderij en het geurgevoelig object niet kleiner wordt;

b. de bestemming van een bestaande bedrijfswoning wordt gewijzigd in burgerwoning als dit het enige doelmatige gebruik van de woning betreft.In deze gevallen bedraagt de afstand van de buitenzijde van een dierenverblijf ten minste 25 meter tot een geurgevoelig object dat is gelegen buiten de bebouwde kom.

Beide gevallen zijn hier niet aan de orde dus de standaard afstanden van de Wet geurhinder en veehouderij zijn van toepassing.

Voor dieren zonder geuremissiefactor gelden minimaal aan te houden afstanden. Hiervoor dienen de minimale afstanden van 50 meter tot een geurgevoelig object buiten de bebouwde kom, en 100 meter tot een geurgevoelig object binnen de bebouwde kom te worden aangehouden. Deze afstanden gelden van emissiepunt van het dierenverblijf tot de gevel van het gevoelige object. Tussen de gevel van het dierenverblijf en de gevel van het gevoelige object geldt een minimale afstand van 50 meter bij objecten binnen de bebouwde kom en 25 meter bij objecten buiten de bebouwde kom.

Bij de voorgenomen ontwikkeling is sprake van een bestaande manage, paardenhouderij en jongvee opfokbedrijf. Voor jongvee en paarden/pony's zijn geen geuremissiefactoren vastgelegd. Dit betekent dat voor de gewenste ontwikkeling de vaste afstanden aangehouden dienen te worden. Het dichtstbijzijnd geurgevoelig object, De Oude Steegh 2, is gelegen op een afstand van ongeveer 340 meter (gemeten van bouwvlak tot bouwvlak.Daarmee kan geconcludeerd worden dat de daadwerkelijk afstand tussen het emissiepunt van de stal en de gevel van een woning nog groter is. Hiermee wordt ruimschoots aan de vaste afstanden voldaan en zal geen sprake zijn van een onevenredige geurhinder aan gevoelige objecten in de omgeving. Tevens is met de voorgenomen ontwikkeling geen sprake van uitbreiding van het aantal jongvee en/of paarden/pony's.

4.1.3 Luchtkwaliteit

De Eerste Kamer heeft op 9 oktober 2007 het wetsvoorstel voor de wijziging van de Wet milieubeheer (Wmb) goedgekeurd (Stb. 2007, 414) en vervolgens is de wijziging op 15 november 2007 in werking getreden. Met name paragraaf 5.2 uit Wmb is veranderd. Omdat paragraaf 5.2 handelt over luchtkwaliteit staat de nieuwe paragraaf 5.2 bekend als de 'Wet luchtkwaliteit'. De Wet luchtkwaliteit introduceert het onderscheid tussen 'kleine' en 'grote' projecten. Kleine projecten dragen 'niet in betekenende mate' (NIBM) bij aan de luchtkwaliteit. Een paar honderd grote projecten dragen juist wel 'in betekenende mate' bij aan de verslechtering van de luchtkwaliteit. Het gaat hierbij vooral om bedrijventerreinen en infrastructuur (wegen).

De Eerste Kamer is op 9 oktober 2007 akkoord gegaan met het wetsvoorstel over luchtkwaliteitseisen. Projecten die 'niet in betekenende mate bijdragen' (NIBM) aan de luchtverontreiniging, hoeven volgens het wetsvoorstel niet meer afzonderlijk getoetst te worden aan de grenswaarden voor de buitenlucht. Het Besluit NIBM omschrijft het begrip nader: een project dat minder dan 3% van de grenswaarden bijdraagt is NIBM. Dit komt overeen met 1,2 microgram per kubieke meter lucht (µg/m³) voor fijnstof en stikstofoxiden (NO2).

Projecten die wel 'in betekenende mate' bijdragen, zijn vaak al opgenomen in het Nationaal Samenwerkingsprogramma Luchtkwaliteit (NSL). Het NSL is erop gericht om overal de Europese grenswaarden te halen. Daarom is ook een pakket aan maatregelen opgenomen: zowel (generieke) rijksmaatregelen als locatiespecifieke maatregelen van gemeenten en provincies. Dit pakket aan maatregelen zorgt ervoor dat alle negatieve effecten van de geplande ruimtelijke ontwikkelingen ruim worden gecompenseerd. Bovendien worden alle huidige overschrijdingen tijdig opgelost. In het NSL worden de effecten van alle NIBM-projecten verdisconteerd in de autonome ontwikkeling. Het NSL omvat dus alle cumulatieve effecten van (ruimtelijke) activiteiten op de luchtkwaliteit.

4.1.3.1 Luchtkwaliteit vanuit de inrichting

De voorgenomen ontwikkeling betreft geen grootschalige infrastructurele of industriële ontwikkeling. Het aantal dieren zal eveneens niet toenemen door deze ontwikkeling. Zoals beschreven in de paragraaf Verkeersbewegingen neemt het verkeer ook niet evenredig toe. De uitstoot van fijnstof zal met de voorgenomen ontwikkeling daarmee niet in onevenredige mate toenemen, waarmee sprake is van een zogenaamde NIBM-ontwikkeling. Gezien sprake is van een NIBM-project zal bij de voorgenomen ontwikkeling geen sprake zijn van een onevenredige toename van de uitstoot van fijnstof en stikstofoxiden.

4.1.3.2 Luchtkwaliteit vanuit verkeersbewegingen

Naast het feit dat geen sprake mag zijn van een onevenredige toename van fijnstof en stikstofoxiden als gevolg van wijzigingen in de inrichting dient ook de uitbreiding van het aantal verkeersbewegingen meegenomen te worden.

Zoals nader aangetoond in de paragraaf "Verkeersbewegingen" (paragraaf 4.4.2) zal met de voorgenomen ontwikkeling geen sprake zijn van een onevenredige toename van het aantal verkeersbewegingen. Hiermee is de uitstoot van fijnstof en stikstofoxiden als gevolg van het aantal verkeersbewegingen verwaarloosbaar en valt onder de noemer NIBM, waarmee geen sprake zal zijn van een onevenredige toename van de uitstoot van fijnstof en stikstofoxiden.

4.1.4 Geluid

De mate waarin het geluid, bijvoorbeeld veroorzaakt door het wegverkeer, het woonmilieu mag belasten, is geregeld in de Wet geluidhinder en het Besluit geluidhinder (Wgh en Bgh). De kern van de Wgh is dat geluidsgevoelige bestemmingen worden beschermd tegen geluidhinder uit de omgeving ten gevolge van wegverkeer, spoorwegverkeer en industrie. De Wgh kent de volgende geluidsgevoelige bestemmingen:

  • Woningen.
  • Onderwijsgebouwen (behoudens voorzieningen zoals een gymnastieklokaal).
  • Ziekenhuizen en verpleeghuizen en daarmee gelijk te stellen voorzieningen, zoals verzorgingstehuizen, psychiatrische inrichtingen, medische centra, poliklinieken, medische kleuterdagverblijven, etc..

Daarnaast kent de Wgh de volgende geluidsgevoelige terreinen:

  • Terreinen die behoren bij andere gezondheidszorggebouwen dan algemene, categorale en academische ziekenhuizen, alsmede verpleeghuizen, voor zover deze bestemd zijn of worden gebruikt voor de in die gebouwen verleende zorg.
  • Woonwagenstandplaatsen.

Het beschermen van bijvoorbeeld het woonmilieu gebeurt aan de hand van vastgestelde zoneringen. De belangrijkste geluidsbronnen die in de Wet geluidhinder worden geregeld zijn industrielawaai, wegverkeerslawaai en spoorweglawaai. Verder gaat deze wet onder meer ook in op geluidwerende voorzieningen en geluidbelastingkaarten en actieplannen.

4.1.4.1 (Spoor)Wegverkeerslawaai

Wanneer een woning of een andere geluidsgevoelige bestemming wordt opgericht in de zone langs een weg (behalve een 30 km/uur weg) of spoorweg is de Wgh van toepassing. Middels een akoestisch onderzoek moet in dat geval worden aangetoond dat wordt voldaan aan (in de eerste instantie) de voorkeursgrenswaarde (48 decibel). Is het niet mogelijk te voldoen aan de voorkeursgrenswaarde dan biedt de Wgh de mogelijkheid af te wijken van de voorkeursgrenswaarde tot een maximale waarde (Hogere Grenswaarde). Bij burgerwoningen is ontheffing mogelijk tot 53 decibel. Bij agrarische bedrijfswoningen is zelfs ontheffing tot 58 decibel mogelijk. Bij vaststelling van het bestemmingsplan moet de voorkeursgrenswaarde, of een vastgestelde hogere waarde, in acht worden genomen.

Bij de voorgenomen ontwikkeling is geen sprake van het oprichten van een woning of andere geluidsgevoelige bestemming. Hiermee kan verdere toetsing op het gebied van (spoor)wegverkeerslawaai achterwege blijven en kan worden gesteld dat met de voorgenomen ontwikkeling geen sprake zal zijn van een onevenredige geluidshinder als gevolg van (spoor)wegverkeerslawaai.

4.1.4.2 Industrielawaai

Indien sprake is van het oprichten van een geluidshinder veroorzakende inrichting dan dient te worden aangetoond dat deze geen onevenredige geluidshinder zal veroorzaken op gevoelige objecten in de omgeving. Hierbij wordt ook een eventuele toename van het aantal verkeersbewegingen bij ontwikkelingen van een inrichting meegenomen.

Bij de voorgenomen ontwikkeling is geen sprake van het oprichten van mogelijk geluidshinder veroorzakende inrichtingen of installaties. Er is reeds sprake van een bestaande manege, paardenhouderij en jongvee opfokbedrijf. Met voorgenomen ontwikkeling wordt alleen het bouwvlak vergroot zodat een bestaand parkeerterrein en een bestaande paardenbak planologisch toegestaan worden.

Tevens zal het aantal verkeersbewegingen, zoals nader is aangetoond in de paragraaf "Verkeersbewegingen" (paragraaf 4.4.2) niet in onevenredige mate toenemen.

Hiermee zal geen sprake zijn van een onevenredige toename van de geluidsoverlast aan gevoelige objecten in de omgeving.

4.1.5 Woon- en leefklimaat

Wanneer sprake is van het oprichten van gevoelige objecten of wanneer een inrichting wordt opgericht welke mogelijk hinder aan gevoelige objecten in de omgeving veroorzaakt is het van belang te onderzoeken of ter plaatse sprake is van een aanvaardbaar woon- en leefklimaat. Een ontwikkeling kan niet plaatsvinden indien het niet aannemelijk is dat een aanvaardbaar woon- en leefklimaat kan worden gewaarborgd.

4.1.5.1 Woon- en leefklimaat op de locatie

Wanneer bij een ontwikkeling sprake is van het oprichten van gevoelige objecten op het gebied van geur, fijnstof en/of geluid dan dient te worden aangetoond dat ter plaatse een aanvaardbaar woon- en leefklimaat kan worden gewaarborgd.

Op de locatie is een manege gevestigd. Hiervoor gelden de volgende richtlijnafstanden conform de richtlijn Bedrijven en Milieuzonering:

  • Geur: 50 meter
  • Geluid: 30 meter
  • Stof: 30 meter
  • Gevaar: 0 meter.

De recreatiewoning maakt onderdeel uit van de inrichting. Er is sprake van een voldoende technische, functionele en organisatorische samenhang met de manege. De recreatiewoning staat op het terrein van de manege en dezelfde personen die de manege exploiteren, zullen de recreatiewoning gaan exploiteren. Daarbij komt dat een recreatiewoning geen gevoelig object in de zin van de Wet geurhinder en veehouderij is. Een recreatiewoning is ook geen gevoelig object in de zin van de Wet geluidhinder.

De afstand van de recreatiewoning tot de gevel van de dichtstbijzijnde paardenstal bedraagt ongeveer 30 meter. De afstand van de werktuigenberging tot de recreatiewoning bedraagt ongeveer 2 meter. Hiermee wordt niet voldaan aan de richtlijnafstanden. Desondanks is er sprake van een goed woon- en leefklimaat omdat de werktuigenberging slechts wordt gebruik een aantal maal per dag voor machines om in en uit te rijden. Het betreft dus geen constante bron van geluid. In de nacht wordt de werktuigenberging niet gebruikt. Geluidhinder zal daarom minimaal zijn.

De afstand waar de paarden gestald zullen worden in de nieuwe paarden stal en de recreatiewoning zal 45 meter bedragen. Hiermee wordt net niet aan de richtlijnafstand voldaan betreffend geur. De geurhinder zal ook minimaal zijn omdat er tussen de paardenstal en recreatiewoning, de werktuigenberging aanwezig is. Deze houdt al een deel van geur tegen. Daarbij betreft het een recreatiewoning waar mensen slechts kortstondig verblijven en niet bedoeld is voor langdurig aangesloten gebruik door dezelfde personen. De personen die verblijven in de recreatiewoning weten dat zij zich op een manege bevinden. Hiermee is een kortere afstand van 50 meter acceptabel.

In de omgeving zijn verder geen bedrijven gevestigd die invloed kunnen hebben op het woon- en leefklimaat in de recreatiewoning. De afstand van de recreatiewoning tot de doorgaande weg bedraagt ongeveer 7 meter. Deze afstand is kort, echter de personen die verblijven in een recreatiewoning zullen daar slechts kort verblijven. Hierdoor is er geen sprake van onevenredige overlast en is dit acceptabel.

Hiermee kan gesteld worden dat er sprake is van een goed woon- en leefklimaat bij de recreatiewoning.

4.1.5.2 Woon- en leefklimaat in de omgeving

Als bij een ontwikkeling wordt voorzien in een inrichting welke mogelijk leidt tot milieuhinder aan gevoelige objecten in de omgeving dan dient te worden aangetoond dat ter plaatse van de betreffende gevoelige objecten een aanvaardbaar woon- en leefklimaat kan worden gewaarborgd. Op het gebied van geur, fijnstof en geluid dient nader te worden onderzocht of sprake is van een aanvaardbaar woon- en leefklimaat.

Zoals nader aangetoond in de paragraaf "Geur" (paragraaf 4.1.2) zal met de voorgenomen ontwikkeling geen sprake zijn van een onevenredige toename van de geurhinder aan de omgeving. Ook zal er, zoals nader aangetoond in de paragraaf "Luchtkwaliteit" (paragraaf 4.1.3) sprake zijn van een project dat niet in betekende mate bijdraagt aan de uitstoot van fijnstof en stikstofoxiden. Ten slotte zal, zoals nader aangetoond in de paragraaf "Geluid" (paragraaf 4.1.4) geen sprake zijn van een onevenredige toename van de geluidshinder aan de omgeving.

Hiermee zal de voorgenomen ontwikkeling geen onevenredig nadelige invloed hebben op het woon- en leefklimaat ter plaats van gevoelige objecten in de omgeving en kan worden gesteld dat ter plaatse een aanvaardbaar woon- en leefklimaat kan worden geborgd.

4.1.6 Externe veiligheid

Externe Veiligheid heeft betrekking op de veiligheid rondom opslag, gebruik, productie en transport van gevaarlijke stoffen. De daaraan verbonden risico's dienen aanvaardbaar te blijven.

Het externe veiligheidsbeleid bestaat uit twee onderdelen: het plaatsgebonden risico (PR) en het groepsrisico (GR). Het plaatsgebonden risicobeleid bestaat uit harde afstandseisen tussen risicobron en (beperkt) kwetsbaar object. Het groepsrisico is een maat die aangeeft hoe groot de kans is op een ongeval met gevaarlijke stoffen met een bepaalde groep slachtoffers.

In de wet is geregeld wanneer de verantwoordingsplicht van toepassing is. Omdat de wettelijke basis per risicobron verschilt, verschillen per risicobron ook de voorwaarden die verantwoording wel of niet verplicht stellen.

De veiligheidsregio is op 19 november 2021 om advies gevraagd en heeft op 23 december 2021 advies uitgebracht. Zij hebben aangegeven geen bezwaren te hebben tegen het plan. Zie hiervoor Bijlage 3 Advies Veiligheidsregio

4.1.6.1 Risicovolle inrichtingen

Nabij de locatie bevinden zich geen risicovolle inrichtingen. Daarnaast geldt alleen voor bedrijven die vallen onder het Besluit externe veiligheid inrichtingen (Bevi) de verantwoordingsplicht wanneer binnen het invloedsgebied een ruimtelijk besluit genomen wordt. Er is geen sprake van ligging binnen het invloedsgebied van bedrijven welke vallen onder Bevi. In de volgende figuur is de risicokaart weergegeven, waarop mogelijke risicovolle inrichtingen weergegeven zijn. De locatie is rood omcirkelt.

afbeelding "i_NL.IMRO.1884.BPRIPSELAAN6-VAS1_0014.png"

Figuur 9. Uitsnede Risicokaart (bron: risicokaart.nl).

4.1.6.2 Transport (spoor-, vaar- en autowegen) en buisleidingen

Het externe veiligheidsbeleid bij vervoer gevaarlijke stoffen over de weg, spoor en water is vastgelegd in het Besluit externe veiligheid transportroutes (Bevt). In het Bevt zijn veiligheidsafstanden vastgesteld en risicoplafonds die gebruikt moeten worden voor de berekening van het groepsrisico.

De locatie is niet binnen het invloedsgebied van een transportroute over weg, water of spoor gelegen. De locatie is eveneens niet binnen het invloedsgebied van een (buis)leiding gelegen.

4.1.6.3 Groepsrisico

Naast het plaatsgebonden risico dient ook het groepsrisico in acht te worden genomen. Hierbij is het van belang te kijken of de locatie binnen een invloedsgebied van een risicobron of transportroute is gelegen.

De locatie is niet binnen een invloedsgebied van een risicobron en/of transportroute gelegen. Hiermee hoeft het groepsrisico niet verder te worden verantwoord.

4.1.7 Bodem

De bodemkwaliteit is in het kader van de Wet ruimtelijke ordening (Wro) van belang indien er sprake is van functieveranderingen en/of een ander gebruik van de gronden. De bodem moet geschikt zijn voor de functie. Mocht er een verontreiniging te verwachten zijn dan wel mocht deze feitelijk aanwezig zijn, dan dient voor vaststelling van een plan en/of het nemen van het besluit inzichtelijk gemaakt te worden of de bodemverontreiniging de voorgenomen functie- en/of bestemmingswijziging in het kader van gezondheid en/of financieel gezien in de weg staat. Hierbij dient inzichtelijk gemaakt te worden of sprake is van een te verwachten of feitelijke verontreiniging.

Dit is echter vooral van belang wanneer inrichtingen worden opgericht waarbij gedurende een groot deel van de dag mensen zullen verblijven. In het verleden is een bodemonderzoek uitgevoerd. (Van Dijk; kenmerk 5259.03; d.d. 9 januari 2004). Bij het project zijn er geen belemmeringen te verwachten voor de ontwikkelingen omdat de locatie onverdacht is op de aanwezigheid van bodemverontreiniging. Hiermee kan worden aangenomen dat de er geen belemmeringen zijn te verwachten voor de ontwikkelingen omdat de locatie onverdacht is op de aanwezigheid van bodemverontreiniging.

4.1.8 Directe ammoniakschade

Bij een intensief varkens- of pluimveebedrijf kan sprake zijn van directe ammoniakschade. Dit is de schade die ammoniak uit de stallen van dergelijke bedrijven kan veroorzaken aan gewassen die verbouwd worden nabij de stal.

In het Activiteitenbesluit Milieubeheer is ammoniakschade echter niet opgenomen omdat dit wordt gezien als bedrijfsschade in plaats van als milieuschade. Het Instituut voor Plantenziektenkundig Onderzoek heeft in 1981 het rapport "Stallucht en Planten" opgesteld. Hierin worden de gevolgen van ammoniak uit dergelijke bedrijven op verschillende gevoelige planten en/of bomen uiteengezet. In dit rapport zijn richtafstanden opgenomen tussen de stallen en gevoelige planten en/of bomen. Indien gewenst kan in het bestemmingsplan rekening gehouden worden met de in het rapport genoemde afstanden tussen bedrijfsmatige boomkwekerijen en de stallen.

In 1996 is het rapport aangevuld met het rapport "Effecten van ammoniak op planten in de directe omgeving van stallen, update van een risicoschatting" van het Instituut AB-DLO van het voormalige Ministerie van Landbouw, Natuur en Visserij (LNV).

In november 1998 is door middel van een mailing aan de Nederlandse gemeenten algemene bekendheid aan dit rapport gegeven. Tevens is de bijbehorende notitie "Risico van gewasschade in de directe omgeving van ammoniakbronnen” van AB-DLO van 23 juli 1997 bekend gemaakt. De vraag is in hoeverre ook dit rapport en deze notitie bij de beoordeling van directe ammoniakschade afkomstig van een vergunningplichtige inrichting betrokken dient te worden. Hierover heeft de Raad van State een uitspraak gedaan waaruit blijkt dat deze notitie bij beoordeling van plannen of projecten ten behoeve van een varkens- en/of pluimveebedrijf niet gehanteerd hoeft te worden. De richtafstanden uit het rapport “Stallucht en Planten” kunnen echter toegepast worden bij ontwikkeling van een dergelijk intensief veehouderijbedrijf.

Het rapport 'Stallucht en Planten” geeft richtafstanden van 50 meter tussen stallen en gevoelige planten en bomen (zoals coniferen) en 25 meter tussen stallen en minder gevoelige planten en bomen.

Nabij de locatie zijn geen bedrijfsmatige boomkwekerijen gelegen welke directe ammoniakschade zouden kunnen ondervinden van het bedrijf van de initiatiefnemer. Hiermee zal geen sprake zijn van directe ammoniakschade.

4.1.9 Voortoets MER-beoordeling

Op 16 mei 2017 is het nieuwe Besluit milieueffectrapportage in werking getreden. Uit dit besluit blijkt dat toetsing aan de drempelwaarden in de D-lijst uit de bijlage van het besluit ontoereikend is om de vraag te beantwoorden of een m.e.r.-beoordelingsprocedure moet worden doorlopen. Indien een activiteit een omvang heeft die onder de drempelwaarden ligt, dient op grond van de selectiecriteria in de EEG-richtlijn milieu-effectbeoordeling te worden vastgesteld of belangrijke nadelige gevolgen van de activiteit voor het milieu kunnen worden uitgesloten. Pas als dat het geval is, is de activiteit niet m.e.r.-(beoordelings)plichtig.

In het kader van de wijziging van het Besluit m.e.r. is een handreiking opgesteld. Deze handreiking geeft aan hoe moet worden vastgesteld of een activiteit, met een omvang onder de drempelwaarde, toch belangrijke nadelige gevolgen voor het milieu heeft. In de handreiking is opgenomen dat voor elk besluit of plan dat betrekking heeft op activiteit(en) die voorkomen op de D-lijst uit de bijlage van het besluit en die een omvang hebben die beneden de drempelwaarden liggen een toets moet worden uitgevoerd of belangrijke nadelige milieugevolgen kunnen worden uitgesloten. Voor deze toets wordt de term vormvrije m.e.r.-beoordeling gebruikt.

Uit deze toets kan een van twee onderstaande conclusies volgen:

  • 1. Belangrijke nadelige milieueffecten zijn uitgesloten;
    of
  • 2. Belangrijke nadelige milieueffecten zijn niet uit te sluiten.

In het eerste geval is de activiteit niet m.e.r.(-beoordelings)-plichtig in het andere geval dient een m.e.r.-beoordeling te worden uitgevoerd en de bijbehorende procedure te worden gevolgd. Die toetsing in het kader van de vormvrije m.e.r.-beoordeling dient te geschieden aan de hand van de selectiecriteria in bijlage III van de EU-richtlijn milieubeoordeling projecten.

In de bijlage bij het besluit wordt in activiteit D9 een landinrichtingsproject genoemd. Het plan en dewijzigingen (inclusief de aanpassing van de bestemming van de grond met, op dit moment eenagrarische bestemming) kunnen in termen van activiteit als landinrichtingsproject beschouwd worden.

Het plan betreft de vergroting van het bestemmingsvlak ‘Gemengd’ van 1,5 ha naar 1,7 ha. Uit de verbeelding is af te leiden dat het gehele bestemmingsvlak tevens het bouwvlak is. Voor het bouwvlak geldt een maximaal bebouwingspercentage van 80%. Naast de vergroting van het bestemmingsvlak wordt de bestemming intensieve veehouderij geschrapt en worden een aantal activiteiten gewijzigd.

Uit diverse jurisprudentie in relatie tot het Besluit m.e.r. blijkt dat niet alleen de omvang van de wijziging, maar ook de vigerende bestemming van het gebied een rol speelt bij het bepalen of er sprake is van een activiteit genoemd in lijst D van de bijlage van het Besluit m.e.r. Deze jurisprudentie vaak betrekking hebben op de vraag of een aangevraagde activiteit wel of niet moet worden gezien als een stedelijke ontwikkeling.

Echter, naar analogie met deze jurisprudentie over de reikwijdte van een stedelijke ontwikkeling is gelet op de aard en omvang van de wijzigingen en activiteiten, er geen sprake is van een landinrichtingsproject, zoals bedoeld in D9 van de bijlage bij het Besluit m.e.r. de conclusie is dat het Besluit m.e.r. niet van toepassing is. Er hoeft geen (vormvrij) m.e.r.beoordelingsbesluit genomen te worden. Hierbij speelt ook een rol dat voor functiewijziging van landbouwgrond de (indicatieve) drempelwaarde van 125 hectare of meer betreft. Een wijziging van 0,5 ha is minder dan 0,5% van de drempelwaarde.

Er hoeft derhalve geen (vormvrij) m.e.r-beoordelingsbesluit genomen te worden.

4.2 Ecologie

4.2.1 Wet natuurbescherming

Op 1 januari 2017 is de Wet natuurbescherming in werking getreden. Deze wet vervangt drie wetten, de Natuurbeschermingswet 1998, de Boswet en de Flora- en faunawet. In de Wet natuurbescherming wordt de bescherming van verschillende dieren- en plantensoorten geregeld. Met name bescherming van kwetsbare soorten is hierbij van belang.

De Wet natuurbescherming kent een vergunningplicht voor de gebiedsbescherming en een ontheffingsplicht voor de planten- en soortenbescherming. Een vergunning/ontheffing voor een project wordt alleen verleend als de instandhoudingsdoelen van een gebied niet in gevaar worden gebracht en als geen sprake is van mogelijke aantasting van beschermde planten- en dierensoorten of de leefgebieden van deze soorten.

Voor activiteiten is het van belang om te bepalen of deze leiden tot mogelijke schade aan de natuur. De Wet natuurbescherming toetst aanvragen op drie aspecten, namelijk gebiedsbescherming, houtopstanden en soortenbescherming.

4.2.1.1 Gebiedsbescherming

Natuurgebieden die belangrijk zijn voor flora en fauna zijn op basis van de Europese Vogel- en Habitatrichtlijn aangewezen als Natura 2000 gebieden. Voor al deze gebieden gelden instandhoudingsdoelen. De essentie van het beschermingsregime voor deze gebieden is dat deze instandhoudingsdoelen niet in gevaar mogen worden gebracht. Het is daarbij daarom verboden om projecten of andere handelingen uit te voeren of te realiseren die de kwaliteit van de habitats kunnen verslechteren of een verstorend effect kunnen hebben op de soorten waarvoor het betreffende gebied is aangewezen.

Zoals te zien in de volgende figuur is de locatie niet gelegen in een Natura 2000. Het dichtstbijzijnd Natura 2000 gebied "De Wilck" is gelegen op een afstand van ongeveer 10 kilometer van de locatie. Op een dergelijke afstand is het mogelijk dat de voorgenomen ontwikkeling van invloed is op het betreffende gebied. Echter neemt het aantal dieren niet toe in de inrichting, Ook zal het aantal verkeersbewegingen niet toenemen. Daardoor zal er geen toename zijn van stikstofdepositie in omringende Natura 2000 gebieden.

afbeelding "i_NL.IMRO.1884.BPRIPSELAAN6-VAS1_0015.png" Figuur 10. Uitsnede kaart Natura 2000 gebieden (bron: AERIUS Calculator).

In artikel 3.4 Strijdig gebruik stikstof van de bestemmingsplanregels wordt de stikstofdepoisite beperkt door de aanwezige vergunning op basis van de Wet natuurbescherming. Conform de huidige Natuurbeschermingswetvergunning worden ter plaatse 100 stuks vrouwelijk jongvee A3.100, 186 volwassen paarden K1.100 en 30 volwassen pony's K3.100 gehouden.

Een eventuele uitbreiding van dieraantallen op de locatie dient gekoppeld te worden aan nieuwe vergunning op basis van de Wet natuurbescherming.

Gezien het voorgaande zullen met de voorgenomen ontwikkeling geen van de Natura 2000 gebieden onevenredig worden geschaad.

4.2.1.2 Houtopstanden

Het onderdeel houtopstanden van de Wet natuurbescherming heeft als doel bossen te beschermen en de bestaande oppervlakte aan bos- en houtopstanden in stand te houden. Indien een houtopstand onder de Wet natuurbescherming valt en deze gekapt gaat worden, moet een kapmelding worden gedaan en geldt een verplichting om de betreffende grond binnen 3 jaar opnieuw in te planten, de zogenaamde herplantplicht. Als een bos of houtopstand definitief gekapt wordt, zal een ontheffing of compensatie van deze herplantplicht verleend moeten worden. De herplantplicht is niet van toepassing voor het vellen van een houtopstand in verband met realisatie van een Natura 2000-doel.

Houtopstanden vallen onder de Wet natuurbescherming als het zelfstandige eenheden van bomen, boomvormers, struiken, hakhout of griend betreffen die:

  • buiten de bebouwde kom-boswet liggen;
  • een oppervlakte hebben van 10 are of meer;
  • rijbeplantingen die meer dan twintig bomen omvatten, gerekend over het totaal aantal rijen;

Bij de voorgenomen ontwikkeling is geen sprake van het kappen van houtopstanden of bos met een oppervlakte van 10 are of meer en/of rijbeplantingen die meer dan 20 bomen omvatten. Hiermee is het onderdeel houtopstanden uit de Wet natuurbescherming niet van toepassing op de voorgenomen ontwikkeling.

4.2.1.3 Soortenbescherming

De soortenbescherming in de Wet natuurbescherming voorziet in bescherming van (leefgebieden) van beschermde soorten planten en dieren en is daarmee altijd aan de orde. De soortenbescherming is gericht op het duurzaam in stand houden van de wilde flora en fauna in hun natuurlijke leefomgeving. De mate van bescherming is afhankelijk van de soort en het daarvoor geldende beschermingsregime. De Wet natuurbescherming kent zowel verboden als de zorgplicht. De zorgplicht is altijd van toepassing en geldt voor iedereen en in alle gevallen. De verbodsbepalingen zijn gebaseerd op het 'nee, tenzij-principe'. Voor verschillende categorieën soorten en activiteiten zijn vrijstellingen of ontheffingen van deze verbodsbepalingen mogelijk. Het is voor elke beschermde soort in elk geval verboden deze te vervoeren of bij te hebben.

  • Vogelrichtlijn:
    Dit betreffen alle vogelsoorten die in Nederland als broedvogel, standvogel, wintergast of doortrekker aanwezig kunnen zijn, met uitzondering van exoten en verwilderde soorten, zoals bedoeld in artikel 1 van de Vogelrichtlijn. Voor soorten beschermd vanuit de Vogelrichtlijn geldt dat het verboden is in het wild levende soorten opzettelijk te doden of te vangen, nesten of rustplaatsen van deze soorten opzettelijk te vernielen of te beschadigen en/of weg te nemen, eieren van deze soorten te rapen en/of bij te hebben en/of deze soorten opzettelijk te storen (tenzij de verstoring niet van wezenlijke invloed is op de instandhouding van de betreffende soort).
  • Habitarichtlijn:
    Dit zijn alle soorten van bijlage IV onderdeel a van de Habitatrichtlijn inclusief het verdrag van Bern bijlage II en het Verdrag van Bonn bijlage I, voor zover hun natuurlijke verspreidingsgebied zich in Nederland bevindt. In de bijlagen van de Verdragen van Bern en Bonn worden ook vogels genoemd. Voor de soorten beschermd vanuit de Habitatrichtlijn geldt dat het verboden is in het wild levende soorten in hun natuurlijke verspreidingsgebied opzettelijk te doden, te vangen of te verstoren, eieren van deze soorten te rapen, vernielen en/of bij te hebben, voortplantingsplaatsen en/of rustplaatsen van deze soorten te beschadigen of te vernielen en/of beschermde planten in hun natuurlijke verspreidingsgebied opzettelijk te plukken en te verzamelen, af te snijden, te ontwortelen en/of te vernielen.
  • Nationaal beschermde soorten:
    Dit zijn soorten die genoemd zijn in Bijlage A van de Wet natuurbescherming. Het gaat hier om de bescherming van zoogdieren, amfibieën, reptielen, vissen, dagvlinders, libellen, kevers en vaatplanten voorkomend in Nederland. Voor de Nationaal beschermde soorten geldt dat het verboden is om de in het wild levende zoogdieren, amfibieën, reptielen, vissen, dagvlinders, libellen en kevers opzettelijk te doden of te vangen, de vaste voortplantingsplaatsen en/of rustplaatsen van deze soorten opzettelijk te beschadigen of te vernielen en/of beschermde vaatplanten in hun natuurlijke verspreidingsgebied opzettelijk te plukken en te verzamelen, af te snijden, te ontwortelen en/of te vernielen.
  • Zorplicht:
    Naast beschermde dier- en plantensoorten, moet iedereen voldoende rekening houden met in het wild levende dieren en planten en hun directe leefomgeving. Deze zorgplicht geldt voor alle, dus ook voor niet beschermde, soorten planten en dieren.

Als een ruimtelijke ingreep direct of indirect leidt tot het aantasten van verblijf- en/of rustplaatsen van de aangewezen, niet vrijgestelde beschermde soorten of hun leefgebied, kan het project in strijd zijn met de Wet Natuurbescherming. Afhankelijk van de ingreep en de soort kan dan een ontheffing noodzakelijk zijn. Ontheffingen worden slechts verleend wanneer er geen andere bevredigende oplossing voor de ingreep bestaat, de ingreep vanwege een in de wet genoemd belang dient plaats te vinden en de gunstige staat van instandhouding van de soort niet in gevaar komt. Vaak worden hierbij mitigerende en compenserende maatregelen gevraagd.

De grond op de locatie bestaat voornamelijk uit grasland en is regelmatig in beroering. Binnen het projectgebied is weinig tot geen opgaande beplanting aanwezig. Hiermee is ter plaatse onvoldoende gelegenheid voor dieren om zich te verschuilen en zijn onvoldoende voedselbronnen aanwezig.

Er worden geen beschermde soorten verwacht waarvoor geen algemene vrijstelling geldt bij ruimtelijke ontwikkelingen. Activiteiten welke verstorend zijn voor broedende vogels, zoals rooi- en sloopwerkzaamheden, dienen bij voorkeur buiten de broedperiode gestart te worden. Indien binnen de broedperiode gestart wordt met verstorende activiteiten, moet aantoonbaar worden vastgesteld dat er geen broedende vogels in en direct rond het plangebied aanwezig zijn. De initiatiefnemer zal hier rekening mee houden.

4.2.2 Natuurnetwerk Nederland

Een vorm van gebiedsbescherming komt voort uit de aanwijzing van een gebied als Natuurnetwerk Nederland (NNN), voorheen de Ecologische Hoofdstructuur (EHS). Het NNN is een netwerk van natuurgebieden en verbindingszones. Planten en dieren kunnen zich zo van het ene naar het andere gebied verplaatsen. Op plekken waar gaten in het netwerk zitten, leggen de provincies nieuwe natuur aan. De provincies zijn verantwoordelijk voor begrenzing en ontwikkeling van het NNN en stellen hier zelf beleid voor op.

Het NNN is in de eerste plaats belangrijk als netwerk van leefgebieden voor planten en dieren. Robuuste leefgebieden voor flora en fauna zijn nodig om het uitsterven van soorten te voorkomen. Het netwerk is er daarnaast ook voor rust en recreatie, voor mensen die willen genieten van de schoonheid van de natuur.

Voor dergelijke gebieden geldt dat het natuurbelang prioriteit heeft en dat andere activiteiten niet mogen leiden tot aantasting of beperking van de natuurdoelen. De status als NNN is niet verankerd in de natuurwetgeving, maar het belang dient in de planologische afweging een rol te spelen.

Zoals te zien in de volgende figuur is de locatie niet in het NNN gelegen. Het dichtstbijzijnd NNN-gebied is gelegen op een afstand van ongeveer 900 meter.

 afbeelding "i_NL.IMRO.1884.BPRIPSELAAN6-VAS1_0016.png"

Figuur 11. Uitsnede kaart NNN (bron: Provincie Zuid-Holland).

Gezien de locatie niet in het NNN is gelegen zal de voorgenomen ontwikkeling geen nadelige invloed hebben op deze gebieden. Het plangebied is wel gelegen in een weidevogelgebied of de strategische reservering natuur. Hier liggen echter geen karakteristieke landschapselementen in het plangebied. De genoemde beschermde gebieden veroorzaken geen planologische belemmeringen voor het initiatief.

4.2.3 Wet ammoniak en veehouderij

Op 8 mei 2002 is de Wet ammoniak en veehouderij (Wav) in werking getreden. De Wav vormt een onderdeel van de ammoniakregelgeving voor dierenverblijven van veehouderijen en kent een emissiegerichte benadering voor heel Nederland met daarnaast aanvullend beleid ter bescherming van de (zeer) kwetsbare gebieden. Deze (zeer) kwetsbare gebieden ingevolge de Wav (Wav-gebieden) zijn gebieden die nadelige invloed kunnen ondervinden als de uitstoot van ammoniak op deze gebieden toeneemt. Ter bescherming van deze gebieden is een zone van 250 meter rondom deze gebieden aangewezen als buffer om ontwikkelingen die schadelijk zijn voor deze gebieden te beperken.

Hoewel in de provincie Zuid-Holland geen Wav-gebieden zijn aangewezen, zijn deze gebieden altijd gelegen binnen het Natuurnetwerk Nederland (NNN). Dit betekent niet dat alle NNN-gebieden ook zijn aangemerkt als Wav-gebieden, maar wel dat alle Wav-gebieden eveneens zijn aangemerkt als NNN-gebieden en ook als dusdanig zijn opgenomen op de betreffende kaart (Gebiedsbescherming - weidevogelgebied).

Zoals aangetoond in de paragraaf "Natuurnetwerk Nederland" (paragraaf 4.2.2) is de locatie niet binnen 250 meter van een NNN-gebied gelegen. Hiermee kan de locatie dus ook niet binnen 250 meter van een Wav-gebied gelegen zijn, waarmee kan worden gesteld dat met de voorgenomen ontwikkeling geen sprake is van een onevenredige aantasting van de betreffende gebieden.

4.3 Archeologie en cultuurhistorie

4.3.1 Archeologie

Op 16 januari 1992 is in Valletta (Malta) het Europees Verdrag inzake de bescherming van het archeologisch erfgoed (Verdrag van Malta) ondertekend. Het Nederlandse parlement heeft dit verdrag in 1998 goedgekeurd. Het Verdrag van Malta voorziet in bescherming van het Europees archeologisch erfgoed onder meer door de risico's op aantasting van dit erfgoed te beperken. Deze bescherming is in Nederland wettelijk verankerd in de Erfgoedwet. Op basis van deze wet zijn mogelijke (toevals-)vondsten bij het verrichten van werkzaamheden in de bodem altijd beschermd. Er geldt een meldingsplicht bij het vinden van (mogelijke) waardevolle zaken. Dat melden dient terstond te gebeuren.

In het kader van een goede ruimtelijke ordening in relatie tot de Erfgoedwet kan vooronderzoek naar mogelijke waarden nodig zijn zodat, waar nodig, die waarden veilig gesteld kunnen worden en/of het initiatief aangepast kan worden.

Gemeenten stellen, ter bescherming van mogelijk voorkomende archeologische waarden, een eigen beleid op, waarbij de kans op het aantreffen van archeologische resten in de bodem is weergegeven in een archeologische verwachtingskaart. Afhankelijk van de verwachtingswaarde stelt de gemeente Kaag en Braassem voorwaarden voor het uitvoeren van archeologisch onderzoek.

Zoals te zien in de volgende figuur is de locatie vanuit de archeologische verwachtingskaart gelegen in een gebied dat is aangemerkt als 'Lage verwachting'.

afbeelding "i_NL.IMRO.1884.BPRIPSELAAN6-VAS1_0017.png"

Figuur 12. Uitsnede archeologische verwachtingskaart (bron: Gemeente Kaag en Braassem).

Ten aanzien van deze gebieden stelt de gemeente in haar beleid dat in gebieden van 'Lage verwachting' geen beperkingen gelden en dat de bodem niet in huidige staat behouden hoeft te blijven.

Hiermee kan worden gesteld dat met de voorgenomen ontwikkeling geen mogelijk voorkomende archeologische resten zullen worden geschaad.

4.3.2 Cultuurhistorie

Het cultuurhistorisch erfgoed van Nederland bestaat uit monumentale panden, historische zichtlijnen, kenmerkende landschappen en waardevolle lijn- en/of vlakelementen. Het cultuurhistorisch erfgoed geeft een beeld van de geschiedenis van het landschap. Daarom is bescherming van deze elementen van belang.

De cultuurhistorische waarden van een gebied zijn in kaart gebracht in de zogenaamde cultuurhistorische waardenkaart. Deze wordt door de provincies beheerd.

Zoals te zien in de volgende figuur zijn nabij de locatie cultuurhistorisch waardevolle elementen gelegen. Het rood gearcheerde zijn de 'Middeleeuwse stads- en dorpskernen - kenmerken. Deze kernen liggen aan de westerzijde van de inrichting en de paardenbak zal worden gebouwd aan de oosterzijde van het perceel. Er zal op dit punt geen beïnvloeding zijn van de cultuurhistorische waarden.

De windmolens en de bijbehorende molenbiotoop staan ook aangegeven op de kaart. De locatie valt buiten de molenbiotoop dus er zal geen sprake zijn van onevenredige aantasting van cultuurhistorisch waardevolle elementen.

afbeelding "i_NL.IMRO.1884.BPRIPSELAAN6-VAS1_0018.png"

Figuur 13. Uitsnede cultuurhistorische waardenkaart (bron: Provincie Zuid-Holland).

Hiermee kan worden gesteld dat met de voorgenomen ontwikkeling geen sprake zal zijn van onevenredige aantasting van cultuurhistorisch waardevolle elementen.

4.4 Verkeer en parkeren

4.4.1 Infrastructuur en parkeren

Een goede ontsluiting is gerealiseerd op de Ripselaan. De locatie is voorzien van een inrit welke aansluit op de openbare weg. Hierbij heeft het inkomend en vertrekkend verkeer voldoende ruimte om het bedrijf te betreden en verlaten, waardoor geen onnodige verkeershinder op de openbare weg zal plaatsvinden.

Op het terrein zelf is voldoende gelegenheid voor personenauto's en vrachtwagens om te keren. Hierbij hoeft niet op de openbare weg alsnog gekeerd te worden, waardoor geen achteruit rijdende personenauto's en/of vrachtwagens de openbare weg op hoeven rijden. Dit bevordert de verkeersveiligheid.

In de huidige situatie vindt het parkeren geheel op eigen terrein plaats. Het parkeerterrein zal na de bestemmingswijziging ongeveer 1474 m² bedragen. Bij de voorgenomen ontwikkeling is het vereist dat het parkeren ook na realisatie van het project geheel op eigen terrein plaatsvindt. Ook na realisatie van het project zal er op eigen terrein voldoende gelegenheid zijn voor zowel vracht- als personenauto's om te kunnen parkeren. Hiermee zal parkeren, ook na realisatie van het project, geheel op eigen terrein plaatsvinden. Zie voor een verdere onderbouwing paragraaf 3.3.3 Parkeernota.

4.4.2 Verkeersbewegingen

Bij de voorgenomen ontwikkeling is sprake van vergroting van een bouwvlak ten behoeve van een manege. De parkeerplaats wordt door deze bestemmingswijziging vergroot. In vergelijking met de huidige situatie zal het aantal verkeersbewegingen niet in onevenredige mate toenemen. Dit komt omdat de bestemmingswijziging geen bedrijfsvergroting in zal houden. De bestaande activiteiten worden geconsolideerd. De intensieve tak zal daarbij verdwijnen en daarvoor komen geen nieuwe activiteiten in de plaats. Gezien het aantal verkeersbewegingen niet onevenredig toeneemt zal geen sprake zijn van negatieve effecten op de verkeersveiligheid en zal geen sprake zijn van een toenemende overlast aan de omgeving. Mocht er in de toekomst wel sprake zijn van nieuwe activiteiten dan zal er rekening worden gehouden met de mogelijke impact van verkeersbewegingen.

4.5 Wateraspecten

Het aspect water is van groot belang binnen de ruimtelijke ordening. Door verstandig om te gaan met het water kan verdroging en wateroverlast (waaronder ook risico van overstromingen e.a.) voorkomen worden en kan ook de kwaliteit van het water hoog gehouden worden.

Met ingang van 3 juli 2003 is een watertoets in de vorm van een waterparagraaf en de toelichting hierop een verplicht onderdeel voor ruimtelijke plannen en projecten van provincies, regionale openbare lichamen en gemeenten. De watertoets is verankerd in de Waterwet (Wtw). Dit houdt in dat de toelichting bij het ruimtelijk plan of project een beschrijving dient te bevatten van de wijze waarop rekening is gehouden met de gevolgen voor de waterhuishouding. Dit beleid is voortgezet in het huidige Besluit ruimtelijke ordening (Bro).

In dit besluit wordt het begrip “waterhuishouding” breed opgevat. Aangesloten wordt bij de definitie zoals die is opgenomen in de Wtw. Zowel het oppervlaktewater als het grondwater valt onder de zorg voor de waterhuishouding. Bij de voorbereiding van een waterparagraaf dienen alle van belang zijnde waterhuishoudkundige aspecten beoordeeld te worden.

De locatie valt onder het werkgebied van het Hoogheemraadschap van Rijnland (hierna: het waterschap).

Het Waterschap is op 8 februari 2022 om advies gevraagd en heeft op 18 februari 2022 aangegeven geen bezwaren tegen het plan te hebben. Zie hiervoor Bijlage 4 Advies waterschap. Het advies van het Waterschap wordt opgevolgd en de compensatie wordt in hetzelfde peilgebied aangebracht.

4.5.1 Voorgenomen activiteit

Bij de voorgenomen ontwikkeling is sprake van het uitbreiden van het parkeerterrein, het overdekken van een reeds aanwezige onoverdekte paardenbak en het realiseren van een recreatiewoning.

Afkoppeling van het hemelwater zal plaatsvinden middels een gescheiden stelsel. Hierbij zal het hemelwater afkomstig van het verhard oppervlak niet op het riool worden afgevoerd, maar middels straatkolken en dakgoten worden afgevoerd naar infiltratie- en/of bergingsvoorzieningen. Van belang daarbij is dat bij een ruimtelijke ontwikkeling hydrologisch neutraal wordt ontwikkeld.

Aanleg van nieuw verhard oppervlak leidt tot versnelde afvoer van hemelwater naar de watergangen. Om te voorkomen dat hierdoor wateroverlast ontstaat, is de aanleg van extra waterberging van belang (waterbergingscompensatie). Voor de mate van compensatie hanteert het waterschap de richtlijn dat minimaal 15 % van de toename van het verharde oppervlak dient te worden gecompenseerd.

Bij de voorgenomen ontwikkeling zal het verhard oppervlak toenemen met ongeveer 3.100 m2. Vanuit het beleid van het waterschap (15 % van de toename van het verhard oppervlak) is voor de gewenste ontwikkeling hiermee een compensatie nodig van 465 m². De toegepaste verharding is halfverharding. Zie hiervoor 11.3 Algemene regel van de Uitvoeringsregels Keur 2017. Bij een toename van minder dan 5.000 m² aan verhard oppervlakte moet er twee weken voor de start van de werkzaamheden dit worden gemeld bij het Hoogheemraadschap.

Compensatie zal plaatsvinden door middel van waterberging. Dit is nader uitgewerkt in de paragraaf "Compenserende waterberging" (paragraaf 4.5.2).

Om negatieve effecten op de huidige goede waterkwaliteit te voorkomen en waterbesparing te bereiken wordt/worden:

  • zoveel mogelijk maatregelen getroffen om het waterverbruik zo gering mogelijk te laten zijn en verontreiniging van het regenwater en oppervlaktewater te voorkomen;
  • duurzame, niet-uitloogbare bouwmaterialen toegepast;

een bergingsvoorziening gerealiseerd.

Als in de toekomst extra verharding wordt aangebracht dan is het wenselijk dat de nieuwe sloten haaks op de weg langs de westgrens van het (nieuwe) bouwvlak worden gegraven

4.5.2 Compenserende waterberging

Ter compensatie van de toename van het verharde oppervlak bij ruimtelijke ontwikkelingen dient compenserende waterberging plaats te vinden om wateroverlast te voorkomen. Zoals nader aangetoond in de vorige paragraaf is voor de voorgenomen ontwikkeling 465 m² aan compenserende waterberging nodig.

Het is van belang dat de gewenste bergingsvoorziening boven de gemiddeld hoogste grondwaterstand (GHG) wordt uitgevoerd, zodat het water ruimte heeft te infiltreren of vertraagd af te stromen naar het oppervlaktewater. Zoals te zien in de volgende figuur bedraagt de GHG ter plaatse minder dan 40 centimeter onder het maaiveld.

afbeelding "i_NL.IMRO.1884.BPRIPSELAAN6-VAS1_0019.png"

Figuur 14. Uitsnede kaart grondwaterstanden (bron: Alterra Wageningen UR).

Infiltratie is doorgaans goed mogelijk wanneer de GHG op minimaal 50 centimeter onder het maaiveld is gelegen. Met een gemiddelde GHG ter plaatse van minder dan 40 centimeter onder maaiveld is infiltratie niet goed mogelijk en dient te worden voorzien in passende waterberging. De compensatie van de toename verharding binnen de polder Drooggemaakt Veender- en Lijkderpolder dient op hetzelfde peil van deze polder te worden gecompenseerd. De compenserende maatregelen zullen plaatsvinden aan de rechterzijde van het perceel. Dit is binnen hetzelfde peilgebied.

afbeelding "i_NL.IMRO.1884.BPRIPSELAAN6-VAS1_0020.png"

Bron: DLV Advies

Mogelijk is voor de gewenste waterbergingsvoorziening een omgevingsvergunning voor het uitvoeren van werken, geen bouwwerken zijnde of van werkzaamheden in het kader van de Wet algemene bepalingen omgevingsrecht, een ontheffing op de Keur van het Waterschap en/of een Watervergunning in het kader van de Waterwet noodzakelijk. Het Waterschap heeft aangegeven dat in ieder geval een watervergunning nodig is. Deze en mogelijk overige vergunningen zullen te zijner tijd worden aangevraagd.

Hoofdstuk 5 Uitvoerbaarheid

5.1 Economische uitvoerbaarheid

Bij de voorbereiding van een nieuwe ruimtelijk project dient op grond van artikel 3.1.6 lid 1, sub f van het Besluit ruimtelijke ordening (Bro) onderzoek plaats te vinden naar de uitvoerbaarheid van het project. Onderdeel daarvan is een onderzoek naar de financiële haalbaar van het project. Een tweede bepaling omtrent het financiële aspect is het eventueel verhalen van projectkosten. In principe dient bij vaststelling van het ruimtelijke besluit tevens een exploitatieplan vastgesteld te worden om verhaal van projectkosten zeker te stellen.

Op basis van artikel 6.12 van de Wet ruimtelijke ordening (Wro) stelt de gemeente een exploitatieplan vast voor gronden waarop een bij algemene maatregel van bestuur aangewezen bouwplan is voorgenomen. In artikel 6.2.1 van het Bro zijn deze bouwplannen nader omschreven:

" Artikel 6.2.1

Als bouwplan als bedoeld in artikel 6.12, eerste lid, van de wet, wordt aangewezen een bouwplan voor:

  • a. de bouw van een of meer woningen;
  • b. de bouw van een of meer andere hoofdgebouwen;
  • c. de uitbreiding van een gebouw met ten minste 1.000 m2 bruto-vloeroppervlakte of met een of meer woningen;
  • d. de verbouwing van een of meer aaneengesloten gebouwen die voor andere doeleinden in gebruik of ingericht waren, voor woondoeleinden, mits ten minste 10 woningen worden gerealiseerd;
  • e. de verbouwing van een of meer aaneengesloten gebouwen die voor andere doeleinden in gebruik of ingericht waren, voor detailhandel, dienstverlening, kantoor of horecadoeleinden, mits de cumulatieve oppervlakte van de nieuwe functies ten minste 1.500 m2 bruto-vloeroppervlakte bedraagt;
  • f. de bouw van kassen met een oppervlakte van ten minste 1.000 m2 bruto-vloeroppervlakte."

Bij de voorgenomen ontwikkeling is geen sprake van een in het betreffende artikel genoemde bouwplan, waarmee geen exploitatieplan nodig is.

Kosten voor het uitvoeren en doorlopen van de procedure zijn daarnaast voor rekening van de initiatiefnemer. Gemaakte kosten door de gemeente worden middels het heffen van leges op de initiatiefnemer verhaald, zoals is opgenomen in de legesverordening van de gemeente Kaag en Braassem. Er zal tevens een anterieure overeenkomst gesloten worden tussen de gemeente en de initiatiefnemer om ook zaken zoals eventuele planschade te regelen.

5.2 Maatschappelijke uitvoerbaarheid

Het voorliggend plan betreft een herziening op het bestemmingsplan "Buitengebied West" van gemeente Kaag en Braassem en wordt opgesteld conform de Uniforme Voorbereidingsprocedure conform afdeling 3.4 van de Algemene wet bestuursrecht (Awb).

In het kader van deze procedure wordt eenieder tijdens de terinzagetermijn in de gelegenheid gesteld zienswijzen op het plan in te dienen. Wanneer het plan ter inzage ligt wordt gepubliceerd in de gemeentelijke bladen, op de gemeentelijke website en in de digitale Staatscourant. Tevens wordt het plan voor eenieder digitaal raadpleegbaar gesteld via www.ruimtelijkeplannen.nl.

Voorafgaand is er met de Provincie voor het voorliggende ontwerpbestemmingsplan ambtelijke afstemming geweest. De reactie van de provincie was als volgt:

"De ontwikkelingen die mogelijk worden gemaakt met het betreffende plan hebben een verstorend effect op weidevogels. De uitbreiding ten opzichte van de al aanwezige bebouwing is echter van een beperkte omvang en worden mogelijk gemaakt in een gebied waar al verstorende elementen als bebouwing en bomen aanwezig zijn. Het verstoringsgebied zal door deze ontwikkeling niet toenemen, waardoor er geen significante aantasting zal zijn van belangrijk weidevogelgebied.”

"We merken nog wel op dat de naastgelegen percelen worden gebruikt voor het stallen van het één en ander en dat lijkt ons niet de bedoeling. Het zijn agrarische gronden met natuurwaarden (immers weidevogelgebied), waar wat ons betreft alleen activiteiten thuishoren die vallen onder een agrarische bedrijfsvoering. Daarvan is hier geen sprake."

Het Waterschap is op 8 februari 2022 om advies gevraagd en heeft op 18 februari 2022 aangegeven geen bezwaren tegen het plan te hebben. Zie hiervoor Bijlage 4 Advies waterschap.

De veiligheidsregio is op 19 november 2021 om advies gevraagd en heeft op 23 december 2021 advies uitgebracht. Zij hebben aangegeven geen bezwaren te hebben tegen het plan. Zie hiervoor Bijlage 3 Advies Veiligheidsregio

Hoofdstuk 6 Wijze van bestemmen

6.1 Doel en reikwijdte

Het bestemmingsplan is een middel waarmee functies aan gronden worden toegekend. Het gaat dus om het toekennen van gebruiksmogelijkheden. In artikel 3.1 van de Wet ruimtelijke ordening (Wro) is bepaald dat twee begrippen centraal staan. Dit zijn:

  • 1. goede ruimtelijke ordening;
  • 2. uitvoerbaarheid.

Als een plan aan deze twee eisen voldoet, voldoet het aan de wet.

Via een bestemmingsplan worden functies aan gronden gegeven. Vanuit de Wro volgt een belangrijk principe, namelijk toelatingsplanologie. Het wordt de grondgebruiker (eigenaar, huurder, etc.) toegestaan om de functie die het bestemmingsplan bepaalt uit te oefenen. Dit houdt in dat:

  • 1. de grondgebruiker niet kan worden verplicht om een in het bestemmingsplan aangewezen bestemming ook daadwerkelijk te realiseren, en;
  • 2. de grondgebruiker geen andere functie mag uitoefenen in strijd met de gegeven bestemming (de overgangsregels zijn hierbij mede van belang).

Een afgeleide van de gebruiksregels in het bestemmingsplan zijn regels voor bebouwing (omgevingsvergunning voor het bouwen) en regels voor het verrichten van 'werken' (omgevingsvergunning voor het uitvoeren van werken, geen bouwwerken zijnde, of van werkzaamheden). Een bestemmingsplan regelt derhalve het toegestane gebruik van gronden (en de bouwwerken en gebouwen) en kan daarbij regels geven voor:

  • 1. het bebouwen van de gronden;
  • 2. het verrichten van werken (aanleggen).

Het bestemmingsplan is een belangrijk instrument voor het voeren van ruimtelijk beleid, maar het is niet het enige instrument. Andere wetten en regels zoals bijvoorbeeld de Woningwet, de Monumentenwet 1988, de Algemeen Plaatselijke Verordening, de Wet Milieubeheer, de Wet algemene bepalingen omgevingsrecht en de bouwverordening zijn ook erg belangrijk voor het uitvoeren van het ruimtelijk beleid. Via overeenkomsten kan de gemeente met betrokken partijen aanvullende afspraken maken voor zover dat niet via het bestemmingsplan geregeld kan worden. Denk hierbij bijvoorbeeld aan het zeker stellen dat bepaalde activiteiten ook werkelijk verricht worden om zo het toelatingskarakter van een bestemmingsplan aan te scherpen.

6.2 Onderdelen van een bestemmingsplan

Een bestemmingsplan bestaat uit 3 onderdelen. Dit zijn de toelichting, de planregels en de verbeelding (plankaart).

6.2.1 De toelichting

De toelichting wordt opgesteld volgens artikel 3.1.6 van het Besluit ruimtelijke ordening (Bro). Hier staat, in het kort, dat in de toelichting verslag gedaan moet worden van de gemaakte keuzes in het plan. Voor een ontwikkelingsgericht plan vraagt dat een andere motivatie dan voor op beheer gerichte plannen (een plan kan ook zowel ontwikkelingsgericht zijn voor het ene deel en voor een ander deel beheergericht).

Ook moet ingegaan worden op het aspect water, de afstemming met andere overheden (indien nodig), het onderzoek voor zover nodig voor de uitvoerbaarheid en de wijze waarop inspraak is verricht (indien nodig). Als er bij het bestemmingsplan een milieu-effect rapport is gemaakt hoeft niet ingegaan te worden op monumentale en/of andere waarden in het plangebied noch de milieukwaliteit in het gebied, want dat gebeurt in dat geval in het milieu-effect rapport. Via de toelichting wordt zo inzicht gegeven in de twee eisen uit artikel 3.1 van de Wet ruimtelijke ordening (Wro).

Centraal in de toelichting moet staan waarom de functies als opgenomen op de plankaart, met de bijhorende regels, de mogelijkheden bieden en waarom dit past op die locatie.

Bijlagen bij de toelichting:

Bij de toelichting kunnen bijlagen opgenomen zijn. Die bijlagen maken een onlosmakelijk onderdeel uit van het bestemmingsplan zelf. Omdat ze een onlosmakelijk onderdeel zijn van het bestemmingsplan kan de toelichting zelf kort van tekst blijven omtrent het desbetreffende onderwerp. Hierdoor blijft de toelichting zelf kort en daarmee leesbaar.

Algemene beleidsdocumenten hoeven vanwege het algemeen geldende karakter niet als bijlage opgenomen te worden bij het bestemmingsplan. Denk aan verschillende sectorale beleidsdocumenten als ook structuurvisies. Een toelichting moet, voor zover het beleidsstuk relevant is voor het plan, aangeven wat de relatie is tussen het bestemmingsplan en dat beleidsdocument.

6.2.2 De planregels

De planregels zijn verdeeld over 4 hoofdstukken:

  • 1. Inleidende regels:
    In dit hoofdstuk worden begrippen verklaard die in de planregels worden gebruikt (artikel 1). Dit gebeurt om een eenduidige uitleg en toepassing van de planregels te waarborgen. Deze begrippen zijn soms erg belangrijk voor een goed inzicht in de gebruiksmogelijkheden. Ook is de wijze waarop gemeten moet worden bij het toepassen van de regels (artikel 2) bepaald;
  • 2. Bestemmingsregels:
    In dit hoofdstuk zijn de bepalingen van de bestemmingen opgenomen. Dit gebeurt in alfabetische volgorde. Als er voorlopige bestemmingen, nog uit te werken bestemmingen en/of dubbelbestemmingen zijn, worden die ook in alfabetische volgorde, achter de bestemmingsregels opgenomen. Ieder artikel kent een vaste opzet. Eerst wordt het toegestane gebruik geformuleerd in de bestemmingsomschrijving, vervolgens zijn bouwregels opgenomen. Aansluitend volgen de (mogelijke) afwijkingsmogelijkheden met betrekking tot de bouw en/of het gebruik. Ten slotte zijn (eventuele) omgevingsvergunningen voor het uitvoeren van een werk, geen bouwwerk zijnde of van werkzaamheden opgenomen, aangevuld met mogelijke wijzigingsbevoegdheden. Belangrijk om te vermelden is dat naast de bestemmingsregels ook in andere regels relevante informatie staat die mede gelezen en geïnterpreteerd moeten worden. Alleen zo ontstaat een volledig beeld van hetgeen is geregeld;
  • 3. Algemene regels:
    In dit hoofdstuk zijn regels opgenomen met een algemeen karakter die gelden voor het hele plan. Deze moeten daarom altijd goed gelezen worden voordat op basis van de bestemmingregels interpretaties worden verricht. Voorbeelden van algemene regels zijn de anti-dubbeltelregel, algemene procedurebepalingen maar ook regels met betrekking tot mogelijke binnenplanse afwijkingen (een binnenplanse afwijking is, zoals het woord het al zegt, een afwijkingsmogelijkheid van de regels in het bestemmingsplan zelf, dit in tegenstelling tot 'buitenplanse' afwijkingen). In de algemene regels kunnen erg belangrijke bepalingen zijn opgenomen;
  • 4. Overgangs- en slotregels:
    In het laatste hoofdstuk wordt het overgangsrecht geregeld en wordt bepaald hoe het bestemmingsplan heet (de slotregel).

Bijlagen bij de planregels:

Bij de regels kunnen bijlagen opgenomen zijn. Die bijlagen maken een onlosmakelijk onderdeel uit van de regels.

6.2.3 De verbeelding

Op de verbeelding worden de bestemmingen weergegeven met daarbij andere bepalingen zoals gebiedsaanduidingen, bouwaanduidingen, bouwvlakken, etc.. Via de bijhorende regels in de planregels wordt bepaald wat hier wel en niet is toegestaan.

De verbeelding wordt ook wel plankaart genoemd. Dan wordt hetzelfde bedoeld. Belangrijk te weten is dat een digitaal bestand (een '.gml-bestand') leidend is. Dat digitaal bestand bepaalt waar welke bestemming ligt en waar welke aanduidingen etc.. Een afgeleide van dat digitale bestand is bijvoorbeeld een '.pdf-bestand' of een papieren (analoge) verbeelding. Bij twijfel over een '.pdf-bestand' of een papieren versie van de verbeelding geeft het digitale bestand de juridische doorslag.

6.3 Voorliggend bestemmingsplan

Voorliggend bestemmingsplan bestaat uit een verbeelding, planregels en een toelichting. De verbeelding en de planregels vormen tezamen het juridisch bindende gedeelte van het bestemmingsplan. Beide planonderdelen dienen in onderlinge samenhang te worden bezien en toegepast. Op de verbeelding zijn de bestemmingen aangewezen. Aan deze bestemmingen zijn bouwregels en regels betreffende het gebruik gekoppeld.

De toelichting heeft geen rechtskracht, maar vormt niettemin een belangrijk onderdeel van het plan. De toelichting van dit bestemmingsplan geeft een weergave van de beweegredenen, de onderzoeksresultaten en de beleidsuitgangspunten die aan het bestemmingsplan ten grondslag liggen.

Tot slot is de toelichting van wezenlijk belang voor een juiste interpretatie en toepassing van het bestemmingsplan.

Voorliggend bestemmingsplan bevat de volgende bestemming:

  • 'Gemengd', waarbij de functie het uitoefenen van een grondgebonden agrarisch bedrijf, een manege en een zorgboerderij; worden neergelegd.

Dit plan kent de volgende noemenswaardige bijzonderheden:

  • De aanduiding 'intensieve veehouderij' is verwijderd uit de regels. Hierdoor is het uitoefenen van een intensieve veehouderij bij wijze van neventak niet meer toegestaan.

Met dit hoofdstuk is voldaan aan artikel 3.1.1 van het Besluit omgevingsrecht (Bro).